מטבח אדריכלית שמרוב עומס 'התפספס' לה התכנית שלנו האם זה דבר שקורה ??

  • הוסף לסימניות
  • #1
חתמנו עם מישהי על 17 אל"ש כולל ליווי.
לאחר מעשה אנחנו מבינים שהיא ממש יקרה.
אשמח לדעת מה הטווח מחירים לאדריכלית טובה+ליווי לתוכנית המצורפת.
וגם-
מה כולל הליווי?
ותוך כמה זמן מאז התשלום הראשוני התכנית אמורה להיות אצל הנגר?

זו שחתמנו איתה לא בקטע לתקשר בעצמה עם האנשי מקצוע וכשהנגר לא הבין משהו בתכנית שהיא עשתה אנחנו אלו שהיינו צריכים לפענח מה הכוונה (ובסוף הנגר נתן הצעת מחיר וציין שזה לא כולל את הקטע שלא הצליח לפענח מה הכוונה בו)
ובחירת חומרים שאנחנו הבנו שזה יהיה בתצוגת מטבחים התברר כפגישה במשרד שלה ובה היא הראתה את הדוגמיות של כמה חברות ובקשה שנבחר מתוך זה
והדמיה בתלת מימד שהבטיחה היא לא נתנה כי התוכנה לא עבדה לה
והכי מהכל-
חתמנו איתה לפני 3 חודשים והתוכנית נגרות רק כמעט מוכנה כי היא ממש בעומס עבודה מטורף בתקופה האחרונה מה שאומר שאין לנו מטבח לפסח.

האם זה דבר שקורה אצל אדריכליות?
או שנפלנו בפח?
איך נכון לפעול מול סיפור כזה?

וגם אשמח לשמות של חברות מטבחים שיעשו לי מטבח עד פסח
(אפילו משהו פשוט ולא תוכנית של אדריכלית, הגעתי למסקנה שמטבח בעיצוב אישי שייך לאנשים עם עצבי ברזל בלבד)



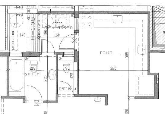
‏‏לכידה.JPG
 
נערך לאחרונה ב:
  • הוסף לסימניות
  • #2
מדבריך נשמע כמו התנהלות לא מקצועית מצד האדריכלית
מה כולל הליווי?
בד"כ הכל מפורט בהסכם, מס' הפגישות, סיורי חומרים, פיקוח על הבניה וכו'
זו שחתמנו איתה לא בקטע לתקשר בעצמה עם האנשי מקצוע
אדריכל הוא כמו מנצח על תזמורת והוא בהחלט אמור לתקשר עם בעלי המקצוע
ובחירת חומרים שאנחנו הבנו שזה יהיה בתצוגת מטבחים התברר כפגישה במשרד שלה ובה היא הראתה את הדוגמיות של כמה חברות ובקשה שנבחר מתוך זה
נשמע כמו חוסר מקצועיות / נסיון לצמצם יציאות בעקבות העומס, סיור חומרים משמע סיור פיזי באולמות תצוגה וכד'
והדמיה בתלת מימד שהבטיחה היא לא נתנה כי התוכנה לא עבדה לה
אם נכללה הדמיה בהסכם היא אמורה לדאוג לאופציה חלופית, לבקש מקולגה תמורת תשלום
האם זה דבר שקורה אצל אדריכליות?
אני לא יודעת מה קורה אצל כל האדריכליות אבל בהחלט נשמע כמו התנהלות לא מקצועית,
אם יש עומס לא לוקחים עוד עבודות ונותנים ללקוחות ליפול בין הכסאות...
מטבח בעיצוב אישי שייך לאנשים עם עצבי ברזל בלבד
לא מחייב בכלל, זו כנראה החוויה הנ"ל הובילה למסקנה הזו
נראה לי ש99% אחוז מהאנשים שמחליפים מטבח עובדים עם מעצבת / אדריכלית אפילו של חברת מטבחים
ומתכננים מטבח חדש, מטבח "מוכן" זה בד"כ אופציות שקבלנים לוקחים כדי להוזיל עלויות
כשמתכננים מטבח תמיד הוא יהיה בעיצוב אישי לפי הלקוח, הגובה שלו, מס' נפשות, הרגלי בישול ואכילה, כמות הכלים והמכשירים, הקפדה על הפרדה מוחלטת בין בשרי / חלבי, צורת המבנה הפיזי של חלל המטבח ועוד ועוד
כמעט בלתי אפשרי בלי תכנון אישי, או שאולי לא הבנתי טוב והכוונה לתוכנית מנגר?
 
נערך לאחרונה ב:
  • הוסף לסימניות
  • #3
נשמע כמו חוסר מקצועיות / נסיון לצמצם יציאות בעקבות העומס, סיור חומרים משמע סיור פיזי באולמות תצוגה וכד'
היא כתבה בחירת חומרים, לא סיור. הדברים האלה, כולל לוחות זמנים אמורים להיות בחוזה מראש.
 
  • הוסף לסימניות
  • #5
אני מכיר נגר מטבח מוכשר מאוד
באיזה איזור?
 
  • הוסף לסימניות
  • #6
חתמנו עם מישהי על 17 אל"ש כולל ליווי.
לאחר מעשה אנחנו מבינים שהיא ממש יקרה.
אשמח לדעת מה הטווח מחירים לאדריכלית טובה+ליווי לתוכנית המצורפת.
וגם-
מה כולל הליווי?
ותוך כמה זמן מאז התשלום הראשוני התכנית אמורה להיות אצל הנגר?

זו שחתמנו איתה לא בקטע לתקשר בעצמה עם האנשי מקצוע וכשהנגר לא הבין משהו בתכנית שהיא עשתה אנחנו אלו שהיינו צריכים לפענח מה הכוונה (ובסוף הנגר נתן הצעת מחיר וציין שזה לא כולל את הקטע שלא הצליח לפענח מה הכוונה בו)
ובחירת חומרים שאנחנו הבנו שזה יהיה בתצוגת מטבחים התברר כפגישה במשרד שלה ובה היא הראתה את הדוגמיות של כמה חברות ובקשה שנבחר מתוך זה
והדמיה בתלת מימד שהבטיחה היא לא נתנה כי התוכנה לא עבדה לה
והכי מהכל-
חתמנו איתה לפני 3 חודשים והתוכנית נגרות רק כמעט מוכנה כי היא ממש בעומס עבודה מטורף בתקופה האחרונה מה שאומר שאין לנו מטבח לפסח.

האם זה דבר שקורה אצל אדריכליות?
או שנפלנו בפח?
איך נכון לפעול מול סיפור כזה?

וגם אשמח לשמות של חברות מטבחים שיעשו לי מטבח עד פסח
(אפילו משהו פשוט ולא תוכנית של אדריכלית, הגעתי למסקנה שמטבח בעיצוב אישי שייך לאנשים עם עצבי ברזל בלבד)



צפה בקובץ המצורף 2176940
המטבח המצורף זה מטבח הקבלן.כן?
זה מה שאתם רוצים לבצע?
 
  • הוסף לסימניות
  • #7
בחירת חומרים לא אמורה להערך בסיור?
אם אין הדמיה ורואים רק דוגמיות איך ניתן לקבל תמונה של איך המטבח יראה?
לא בהכרח, תלוי מה מסכמים מראש.
אם מרגישים שלא מקבלים תמונה ברורה מספיק מבקשים הדמיה.
בסיור בחירת חומרים את גם לא מקבלת תמונה ברורה של המטבח שלך, רק רואה את החומרים יותר בגדול, את סוג החזיתות והידיות וכו'.
 
  • הוסף לסימניות
  • #8
אנחנו היינו חסרי הבנה וחסרי ניסיון ולכן לא הכל היה כתוב בחוזה.
מעניין אותי לשמוע מאדריכליות שעושות מטבחים טווח מחירים של תכנון נגרות מטבח ומרפסת שירות וארון כביסה דו צדדי לתוכנית שצרפתי
ואלו מכאן שגובות את הסכומים באזור ה17 אל"ש לסדר גודל של עבודה כזו-
מה אתן נותנות בתמורה?
(יש עוד אדריכליות שגובות סדר גודל של מחירים כאלו לעבודה כזו או שההיא ראתה שאנחנו תמימים והעיזה לנסות את מזלה??)
 
  • הוסף לסימניות
  • #9
המחיר הוא יחסית גבוה
וגם אם כן היתה אמורה ללכת אתכם לאולמות התצוגה. נשמע התנהלות לא מקצועית בכלל
 
  • הוסף לסימניות
  • #11
17K רק למטבח? לכל הבית?
זה מחיר הזוי..
זה תלוי מ-א-ד מה כלול בהצעת מחיר, אם זה כולל גם תכנית מטבחים זה מחיר ממש לא יקר, - לא ראיתי את ההסכם וגם לא נאמר כאן כמה מ"ר הדירה; בכל מקרה לפי מה שמתואר פה זה לא אמור להיות היחס ללקוח, דבר ראשון שאתם צריכים לעשות זה לעבור על החוזה סעיף סעיף ולראות אם מה שאתם מבקשים ממנה כלול בהסכם - אם כן תבהירו לה זאת מיד.
 
  • הוסף לסימניות
  • #12
17K רק למטבח? לכל הבית?
זה מחיר הזוי..
זה תלוי מ-א-ד מה כלול בהצעת מחיר, אם זה כולל גם תכנית מטבחים זה מחיר ממש לא יקר, - לא ראיתי את ההסכם וגם לא נאמר כאן כמה מ"ר הדירה; בכל מקרה לפי מה שמתואר פה זה לא אמור להיות היחס ללקוח, דבר ראשון שאתם צריכים לעשות זה לעבור על החוזה סעיף סעיף ולראות אם מה שאתם מבקשים ממנה כלול בהסכם - אם כן תבהירו לה זאת מיד.
המחיר של 17 אל"ש זה רק למטבח ומרפסת שירות.
מטבח קבלן בגודל בינוני (צרפתי את התוכנית עם המידות המדויקות בהודעה הראשונה)
 
  • הוסף לסימניות
  • #13
אתם יכולים ליצור איתי קשר ואנסה לעזור במה שאוכל.
זה בהחלט לא צריך לקרות!!! עומס -אדריכליות יודעות לקחת כמות לקוחות שיעמדו בלחץ ופה זה נשמע שמשהו בשרות שלה קצת פחות.
לדעתי לכו על נגר חברת מטבחים לא תזרום עד פסח.
המייל שלי architectruth7616 .....
 
  • הוסף לסימניות
  • #14
המחיר ממש לא ריאלי!!!!!
גם ההצעות הכי יקרות ממעצבות עם שם לא קיבלתי במחיר הזה.
 
  • הוסף לסימניות
  • #15
לא נשמע טוב, יקר והתנהלות לא מקצועית (על פניו, אי אפשר לשפוט אם לא שמענו 2 צדדים)
אבל למעשה- אל תוותרו על מטבח מפורט, זה יהיה חבל מאוד
שווה להשקיע עוד קצת ולקבל מטבח מושלם
לגבי אספקה לפסח- זה באמת בעיה, אבל גם אם תחליטו ששווה לכם לוותר על תכנון מפורט העיקר שיהיה לפסח
תלכו לפחות לפגישת יעוץ שמישהי מקצועית תעבור על המטבח של החברה ותתן הערות...
בהצלחה!
(מטבח זה דבר שמשקיעים בו פעם בהרבה שנים, וכדאי להשקיע כמו שצריך)
 
  • הוסף לסימניות
  • #16
אתם יכולים ליצור איתי קשר ואנסה לעזור במה שאוכל.
זה בהחלט לא צריך לקרות!!! עומס -אדריכליות יודעות לקחת כמות לקוחות שיעמדו בלחץ ופה זה נשמע שמשהו בשרות שלה קצת פחות.
לדעתי לכו על נגר חברת מטבחים לא תזרום עד פסח.
המייל שלי architectruth7616 .....
אבל הנגר מציע רק את הנגרות ולא את השיש לדוגמא..
על פניו אין סיכוי לקבל מטבח עד פסח גם אם תשלמו כפול.
 
  • הוסף לסימניות
  • #17
בעניין הנ"ל עדיין לא הצלחנו למצוא מי שיכול לעשות לנו מטבח עד פסח ואנחנו בלי שום מטבח (דירה חדשה מהקבלן)-
אשמח מאוד לקבל שמות של חברות מטבחים מהירות שיספקו עבודה עד פסח .
חשוב חברות שעובדות עם מעצבות כי התוכנית שקיבלנו מהאדריכלית ההיא צריך בה כמה תיקונים והיא מאוד עסוקההההה ואני לא רוצה להסתמך על תוכנית שלא בטוח שיהיה מי שיענה לשאלות של הנגר וכו'
(למרות ששילמנו על התוכנית הזו מחיר מלא, היא מבחינתה טוענת שזה שלא קיבלנו שרות זה רק אשמתנו בגלל שהיינו עדינים מדי...)

וגם התייעצות נוספת-אני רואה כאן בפורום מטבחים וחדרי ילדים בעיצובים מרשימים ומתחשק לי גם...
ובהעברת דירה שמנו בצד תקציב מכובד לזה
רק שאין לי כוח שוב ליפול בפח
ולשלם ולחכות ולחכות ולהתאכזב
ועוד לצאת לא בסדר כי לא נדנדנו מספיק ולא שילמנו מספיק
(האדריכלית ההיא רצתה שנשלם גם על הליווי שהיא לא עשתה כי...יש לה המון הוצאות משרד
בסוף היא התפשרה שנשלם 'רק' 3,500 ש"ח על תוכנית 'כמעט' גמורה וגם על זה עשתה פרצופים כי בעלה אמר שמגיע לה יותר...)
מתלבטים אם לא עדיף להיכנס לחנות רהיטים ולבחור מקטלוג ובזה נגמר הסיפור.
אולי פחות מרשים ופחות פרקטי ועדיין בריאות הנפש חשובה יותר.
השאלה האם יש דרך גם לעשות עיצוב פרטי וגם בלי כאב ראש?
יש כזה דבר עבודת נגרות בראש שקט?
מצד אחד מעוניינים באדריכלית מצד שני חוששים מאוד....
אשמח מאוד למידע מכאלו שעברו את התהליך
וגם טיפים בשבילנו איך למנוע מראש סיפורים כאלו.
 
  • הוסף לסימניות
  • #18
כמו בכל תחום יש כאלו שנותנים שירות יותר טוב ויש שפחות
(למרות שיכול להיות שהיא נתנה לפי מה שסוכם, אבל לא ידעתם לסכם מראש מה חשוב לכם)
בכל מקרה, כרגע- אתם במצב שתדעו מה לסכם מראש,
ועל מה לברר
כך שרוב הסיכויים שתצליחו למצוא מישהי שמתאימה למה שאתם מחפשים
(ויש הרבה מעולות בשוק שנותנות שירות מצוין)
 
  • הוסף לסימניות
  • #19
לפי התכנית אני מבינה שאתם ממודיעין עילית,
יש מעצבות מעולות שמפיקות תכניות ברמה עם שרות מצוין!
מה שעברתם לא משקף את המציאות בכלל.
אשמח להמליץ לכם על טובות בתחום!
 
  • הוסף לסימניות
  • #20
אין כזה דבר 'לפספס' תוכנית של לקוח!!!

ולצערי יש כאלו מקרים, וגם מקרים דומים,
שמעתי לא פעם על משפחות שהיו בתהליך תכנון/עיצוב לבית עם אדריכלית/מעצבת ממש מומלצת (לא אותה אחת, כל פעם מישהי אחרת)
שכנראה רמת ההמלצות שלה, נתנה לה הרגשה שאפשר 'לפספס' ללקוחות דברים!...
זה ממש מזעזע!
לדוג' אדריכלית שלא תכננה נק' מים למכות כביסה והתשובה שלה ללקוח הייתה 'שכחתי'...
או שהיא בנתה תכנון שלם של הבית, כולל הורדת קירות. בעל הדירה שם לב שבתכנון שלה יש הורדת קירות שהמהנדס לא מאשר להוריד, כשהפנה את תשומת הלב של האדריכלית לך, היא ביטלה את הטענה, ואחרי שהלקוח הביא שוב את המהנדס - לפגישה נוספת בתשלום מלא, וכמובן שהמהנדס חזר ואמר שאי אפשר להוריד את הקיר המדובר, תגובתה של האדריכלית הייתה 'נגוזו חלומותיך' (לעניין התכנון)

שימו לב, ותזהו מהדברים הללו!!!!!!
 

פרוגבוט

תוכן שיווקי
פרסומת

הצטרפות לניוזלטר

איזה כיף שהצטרפתם לניוזלטר שלנו!

מעכשיו, תהיו הראשונים לקבל את כל העדכונים, החדשות, ההפתעות בלעדיות, והתכנים הכי חמים שלנו בפרוג!

לוח מודעות

הפרק היומי

הפרק היומי! כל ערב פרק תהילים חדש. הצטרפו אלינו לקריאת תהילים משותפת!


תהילים פרק כה

אלְדָוִד אֵלֶיךָ יי נַפְשִׁי אֶשָּׂא:באֱלֹהַי בְּךָ בָטַחְתִּי אַל אֵבוֹשָׁה אַל יַעַלְצוּ אֹיְבַי לִי:גגַּם כָּל קוֶֹיךָ לֹא יֵבֹשׁוּ יֵבֹשׁוּ הַבּוֹגְדִים רֵיקָם:דדְּרָכֶיךָ יי הוֹדִיעֵנִי אֹרְחוֹתֶיךָ לַמְּדֵנִי:ההַדְרִיכֵנִי בַאֲמִתֶּךָ וְלַמְּדֵנִי כִּי אַתָּה אֱלֹהֵי יִשְׁעִי אוֹתְךָ קִוִּיתִי כָּל הַיּוֹם:וזְכֹר רַחֲמֶיךָ יי וַחֲסָדֶיךָ כִּי מֵעוֹלָם הֵמָּה:זחַטֹּאות נְעוּרַי וּפְשָׁעַי אַל תִּזְכֹּר כְּחַסְדְּךָ זְכָר לִי אַתָּה לְמַעַן טוּבְךָ יי:חטוֹב וְיָשָׁר יי עַל כֵּן יוֹרֶה חַטָּאִים בַּדָּרֶךְ:טיַדְרֵךְ עֲנָוִים בַּמִּשְׁפָּט וִילַמֵּד עֲנָוִים דַּרְכּוֹ:יכָּל אָרְחוֹת יי חֶסֶד וֶאֱמֶת לְנֹצְרֵי בְרִיתוֹ וְעֵדֹתָיו:יאלְמַעַן שִׁמְךָ יי וְסָלַחְתָּ לַעֲוֹנִי כִּי רַב הוּא:יבמִי זֶה הָאִישׁ יְרֵא יי יוֹרֶנּוּ בְּדֶרֶךְ יִבְחָר:יגנַפְשׁוֹ בְּטוֹב תָּלִין וְזַרְעוֹ יִירַשׁ אָרֶץ:ידסוֹד יי לִירֵאָיו וּבְרִיתוֹ לְהוֹדִיעָם:טועֵינַי תָּמִיד אֶל יי כִּי הוּא יוֹצִיא מֵרֶשֶׁת רַגְלָי:טזפְּנֵה אֵלַי וְחָנֵּנִי כִּי יָחִיד וְעָנִי אָנִי:יזצָרוֹת לְבָבִי הִרְחִיבוּ מִמְּצוּקוֹתַי הוֹצִיאֵנִי:יחרְאֵה עָנְיִי וַעֲמָלִי וְשָׂא לְכָל חַטֹּאותָי:יטרְאֵה אוֹיְבַי כִּי רָבּוּ וְשִׂנְאַת חָמָס שְׂנֵאוּנִי:כשָׁמְרָה נַפְשִׁי וְהַצִּילֵנִי אַל אֵבוֹשׁ כִּי חָסִיתִי בָךְ:כאתֹּם וָיֹשֶׁר יִצְּרוּנִי כִּי קִוִּיתִיךָ:כבפְּדֵה אֱלֹהִים אֶת יִשְׂרָאֵל מִכֹּל צָרוֹתָיו:
נקרא  2  פעמים
למעלה