שאלה איזה תוכנית עדיפה משלושתם ?

  • הוסף לסימניות
  • #1
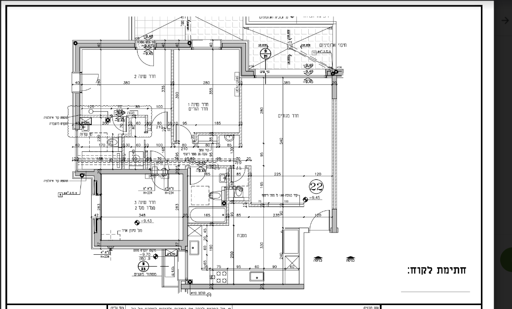
יש לי 3 תוכניות
ישנה נקודה שגרמה לי לייצר את האופציה השניה שהחדר הורים החלון נמצא במרפסת ויותר מכך מהחדר ילדים ישנה דלת כך שלא היתה פרטיות וגם שקט השאלה האם התוכנית הגיונית או שצפופה קצת המינוסים בגדול אמבטיית ילדים ללא חלון מצד שני היחידת הורים שהיתה ללא חלון עברה לעמדה עם חלון וגם החדר כביסה הצטופף קצת וגם הוא ללא חלון הרווחים בגדול מיקומים טובים יותר לריהוט סלון יותר גדול עם מיקומים יותר מושלמים לספה ספרייה ושולחן המטבח קצת נתקע באופציה הזאת וכן המסדרון במקום שהוא כמו מבוך שמייצר פרטיות המסדרון ישר מהסלון ללא פרטיות בגדול אני ישמח לשמוע תגובות זה מאוד מאוד יעזור לי אהה וגם היחידית הורים גודלת ל 170 על 220 מה שמייצר יחידה גדולה מאוד השאלהגדולה מה עדיף תודהרבה
 

קבצים מצורפים

  • אופציה1.png
    אופציה1.png
    KB 174 · צפיות: 151
  • אופציה 2.jpg
    אופציה 2.jpg
    KB 175.1 · צפיות: 150
  • אופציה 3.jpg
    אופציה 3.jpg
    KB 165.6 · צפיות: 155
  • הוסף לסימניות
  • #21
אגב זה המיקומים של אופציה 2 חדר שינה הורים אנחנו נסובב את המיטות לרוחב וכנראה לא לאורך אבל בגדול המיקומים כן בסדר מה דעתך?
קצת המטבח השתנה מאז כי רצינו קיר גבוהים והיינו צריכים לעשות מטבח ח מה שתקע את הפינת אוכל
קודם כל אין ספק שהדברים נראים הרבה יותר טוב כשיש ריהוט מול העיניים...
דבר שני בקשר לחדר שינה הייתי מאריכה את הארון עוד קצת, יש עוד מקום
ואת המטבח הייתי מתכננת אחרת
הייתי מיישרת קו איפה שהמקרר שימשיך בקו ישר עם הספה
ואת השייש ממשיכה בר' איפה שהחלון וח' איפה שהפינת אוכל עכשיו ומאריכה את זה עוד ושמה נותנת בר ישיבה
את הגבוהים בקיר שליד הכניסה
ובשיש הנוסף שמה כיור
ומחליפה את הכיריים עם הכיור השני
מצרפת קובץ
מקווה שהובנתי...
אגב זה בלי לדעת את הצרכים שלכם של המטבח
רק מה הייתי עושה באופן כללי
 

קבצים מצורפים

  • Inkedתוכנית ריהוט אופציה 2.jpg
    Inkedתוכנית ריהוט אופציה 2.jpg
    KB 261.9 · צפיות: 77
  • הוסף לסימניות
  • #22
קודם כל אין ספק שהדברים נראים הרבה יותר טוב כשיש ריהוט מול העיניים...
דבר שני בקשר לחדר שינה הייתי מאריכה את הארון עוד קצת, יש עוד מקום
ואת המטבח הייתי מתכננת אחרת
הייתי מיישרת קו איפה שהמקרר שימשיך בקו ישר עם הספה
ואת השייש ממשיכה בר' איפה שהחלון וח' איפה שהפינת אוכל עכשיו ומאריכה את זה עוד ושמה נותנת בר ישיבה
את הגבוהים בקיר שליד הכניסה
ובשיש הנוסף שמה כיור
ומחליפה את הכיריים עם הכיור השני
מצרפת קובץ
מקווה שהובנתי...
אגב זה בלי לדעת את הצרכים שלכם של המטבח
רק מה הייתי עושה באופן כללי
זה נכון בתוכנית של המטבח לא עדכנית שם העדכני במטבח זה שזה כמו שאמרת הבעיה הרעיון שלך הוא מאוד חכם
יש לי בעיה בקיר של הגבוהים שהוא קטן 240 אין מקום למזווה מקרר ובילד אין לכן את המזווה שמתי ליד הכיור החלבי צמוד לאמבטיה ואת הפינת אוכל בתוך הנישה מה שקצת היה תקוע מה שהבאת מאוד חכם יש לציין אבל מה את מציעה למזווה
 

קבצים מצורפים

  • מטבח + אופציה 2.png
    מטבח + אופציה 2.png
    KB 132.2 · צפיות: 63
  • הוסף לסימניות
  • #24
זה נכון בתוכנית של המטבח לא עדכנית שם העדכני במטבח זה שזה כמו שאמרת הבעיה הרעיון שלך הוא מאוד חכם
יש לי בעיה בקיר של הגבוהים שהוא קטן 240 אין מקום למזווה מקרר ובילד אין לכן את המזווה שמתי ליד הכיור החלבי צמוד לאמבטיה ואת הפינת אוכל בתוך הנישה מה שקצת היה תקוע מה שהבאת מאוד חכם יש לציין אבל מה את מציעה למזווה
אפשר לעשות אופציה כזאת
בקיר שצמוד לכניסה לתת תנורים ומזווה ואז המשך של השיש שיתחבר עם השיש השני בר'
אחר כך בשיש המרכזי להזיז את הכיור והכיריים קצת יותר ימינה (ימינה בתמונה)
אחר כך בקיר של החלון להזיז גם את הכיור לכיוון הזה
ובקיר מאחורי האמבטיה לשים את המקרר וממשיכים ארונות גבוהים מעליו ולכיוון שמאלה (בתמונה) והרמוניקה מתחת
ושוב, לישר את הקיר עם הספה ושם לשים פינת אוכל מטר על מטר (2 כיסאות מכל צד)
מקווה שברור
מצרפת תמונה
1681805043737.png
 
  • הוסף לסימניות
  • #25
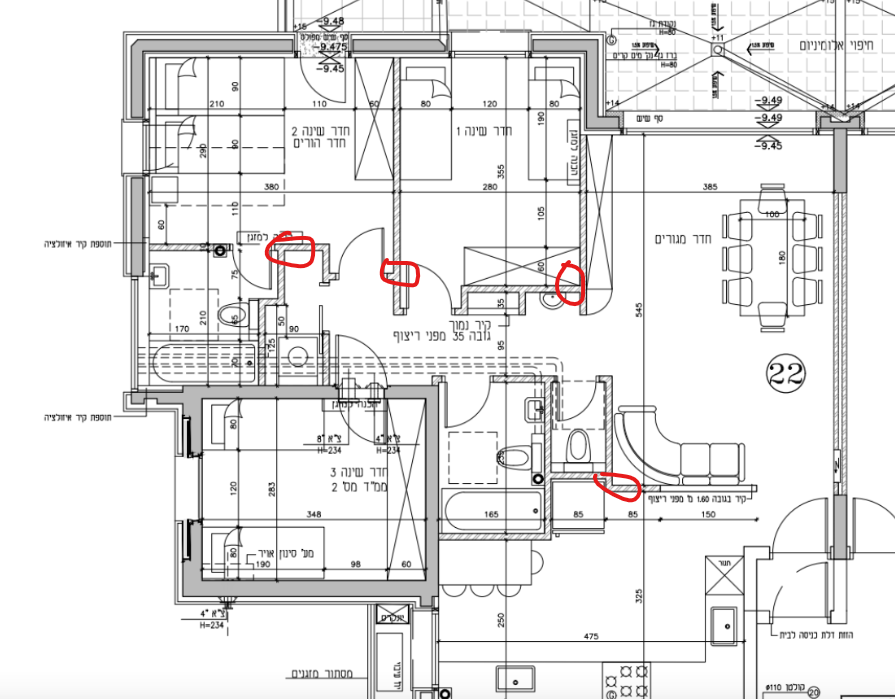
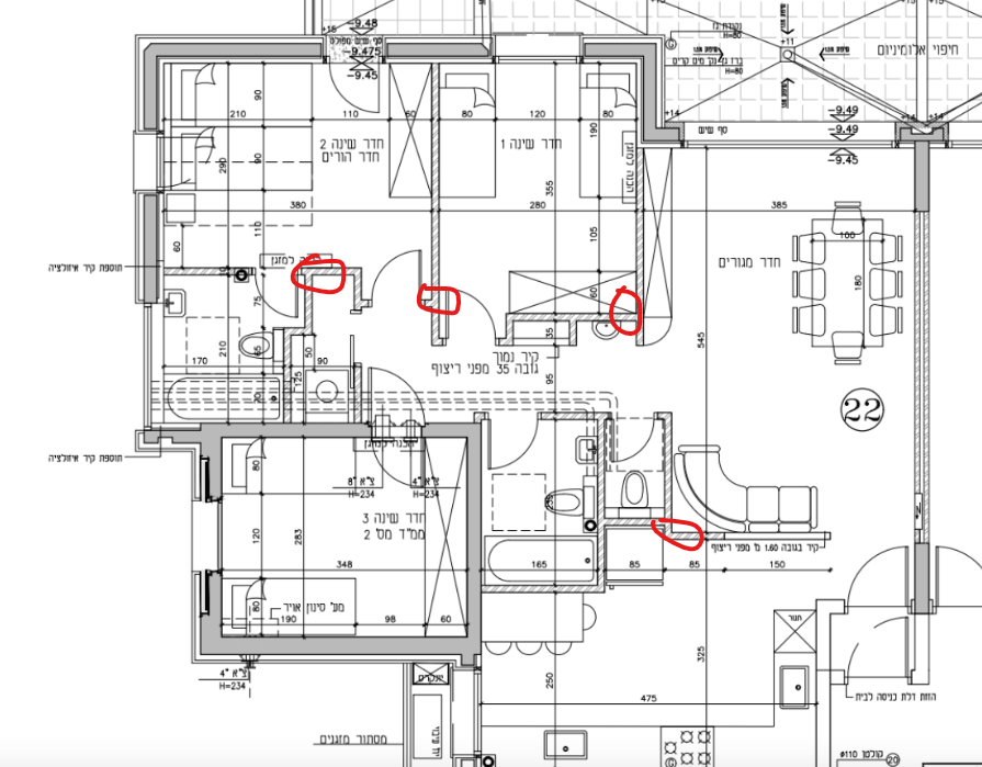
1681823527992.png

זה מצב קיים או מתוכנן ?
אם קיים , ייתכן מאד שבמקומות הללו ישנם עמודי בטון קיימים ,
אם תרצו פתרון לביטול העמודים הנ"ל עם חיזוק באמצעות פרופיל פלדה ,
אשמח לתת שירות
 

קבצים מצורפים

  • 1681823502857.png
    1681823502857.png
    KB 195.2 · צפיות: 60
  • הוסף לסימניות
  • #26
  • הוסף לסימניות
  • #27
אני חושבת שכדאי להקטין את האמבטיה של היח"ה לטובת חדר שירות יותר גדול
לא שייך כי יש קולטן ולא ניתן להזיז בכלל מה שיצר את הבעיה עם הדלת כי אתה יכול לשים או לפני או אחרי הקולטן ואם נשים לפני אתה מאבד פינה חשובה מהחדר שיכולה להתאים ללול או עריסה או משהו אחר אבל לא הופך למעבר
 
  • הוסף לסימניות
  • #28
אפשר לעשות אופציה כזאת
בקיר שצמוד לכניסה לתת תנורים ומזווה ואז המשך של השיש שיתחבר עם השיש השני בר'
אחר כך בשיש המרכזי להזיז את הכיור והכיריים קצת יותר ימינה (ימינה בתמונה)
אחר כך בקיר של החלון להזיז גם את הכיור לכיוון הזה
ובקיר מאחורי האמבטיה לשים את המקרר וממשיכים ארונות גבוהים מעליו ולכיוון שמאלה (בתמונה) והרמוניקה מתחת
ושוב, לישר את הקיר עם הספה ושם לשים פינת אוכל מטר על מטר (2 כיסאות מכל צד)
מקווה שברור
מצרפת תמונה
צפה בקובץ המצורף 1355207
זה רעיון מעולה אם כי המידות לא נותנים כל כך אבל מה אם לשים מזווה לבד בפינה של 45 ס"מ כפי שאת רואה בתוכנית ופינת אוכל כמו שהצעת עכשיו מטר על מטר מה עדיף?
אגב אני ממתין לדעתך על התוכנית אם עדיין ככה ככה או שזה כן תוכנית שעובדת תודה רבה רבה
 
  • הוסף לסימניות
  • #29
זה רעיון מעולה אם כי המידות לא נותנים כל כך אבל מה אם לשים מזווה לבד בפינה של 45 ס"מ כפי שאת רואה בתוכנית ופינת אוכל כמו שהצעת עכשיו מטר על מטר מה עדיף?
אגב אני ממתין לדעתך על התוכנית אם עדיין ככה ככה או שזה כן תוכנית שעובדת תודה רבה רבה
יש מצב שעדיף באמת התוכנית הקיימת עם פינת אוכל מטר על מטר,
אבל 2 האופציות עובדות לטעמי.
ובקשר לתוכנית באופן כללי-אני חושבת שהיא טובה.
יתכנו עוד דיוקים פה ושם אבל כפי שהצלחתי להבין היא עונה יפה על הפרוגרמה שלכם.
 
  • הוסף לסימניות
  • #30
אם יש לכם עמודים קיימים שאתם מעוניניים להרוס' להקטין ,
אן אם אתם רוצים להרחיב פתחים קיימים בקירות בטון / בחזיתות ,
אוכל לתת הנחיות ואישורים ,
 

פרוגבוט

תוכן שיווקי
פרסומת

פוסטים חדשים שאולי לא קראת....

הכותרת לא באה להתריס היא באה להדגיש מצב
ולא לא באתי לומר שאבא או אמא עם ילד או שניים זה לא אתגר
אבל שימו לב
בעוד אתם בונים על ההורים לרוב פסח ולכן מכשירים פיסת שיש קטן לפינת קפה. מדף במקרר. ובארון
כי מילא רוב החג נהייה אצל ההורים
ההורים והרווקים בבית קורעים את עצמם [תזכרו זה לא היה כזה מזמן]
כן אמא שלך לא נחה כבר 3 שבועות

להפוך בית שלם 100+ מטר של ארונות כיורים שולחנות מטבח סלון כיסאות מזווה מיטות
לכשר לפסח
לאפשרות שאתם וילדכם הסתובבו בחופשיות עם מצה ואפיקומן שסבא קנה
לא נכנסתי להוצאות המטורפות שקצת עוברות לידכם. למה שתקנו מצות יין או חסה או נייר כסף לציפוי המטבח
ושוב לא בהאשמה ולא בטרוניה אלא כנתון מציאותי
אז זו''צ יקר קצת שימת לב
לפרגן לבוא לעזור חצי יום
לפרגן ארוחה לעובדים בבית [הבית שלך חמץ המטבח שלהם במרפסת שרות]
לתת מילה טובה או שוקולד
והחשוב מכל
מעשרות להורים
הם חשובים יותר מכל כולל ארגון או קמחה דפסחא הם ההורים שלך

והם יממנו לך את ארוחות וסעודות החג
בס"ד

ההבדל בין נוכלות לבין כישלון



לפני כחודש נערך בבני ברק מיפגש מאוד מעניין של גוף הנקרא "הפורום להגנת הצרכן" והוא עסק בעיקר בדרכים למניעת נפילות נדל"ן בהם הציבור החרדי "מומחה" ליפול חזור ונפול.

הנוכחים, מומחים איש איש בתחומו, תיארו את הנוכלויות הרווחות היום ותיארו בצבעים קודרים ואמיתיים את המצב בכי רע, היו שם גדולי הדיינים שדיברו על הצורך להבטיח שהדור השני לא עושה שטויות עם הדירה שקיבלו מההורים וכן הלאה.

כאשר ר' איצ'ה דזיאלובסקי העניק לי את רשות המילה האחרונה (בגלל שאיחרתי – הרגל נעשה טבע) בקשתי מהנוכחים שלא יישפכו את התינוק אם המים, כלומר שלא יביאו אנשים למצב שבו הם חושדים בכל מה שלא זז שהוא נוכלות, הדבר הזה טענתי עלול להביא לשיתוק מוחלט של שוק השקעות הנדל"ן החרדי אשר היה והינו הקטליזטור הראשי של הציבור החרדי בדרכו לנישואי ילדים ברוגע ושלווה, המסר המרכזי של שתי דקות הנאום שלי זה מה שאתם הולכים לקרוא באלף מילים הבאות: לא כל עסקה כושלת היא אשמת המשווק!

צרות אחרונות משכחות את הראשונות וכך שכחתי מזה לגמרי, אלא שהשבוע פורסמה כתבה בעיתון 'דה-מרקר' (מי שלא מכיר לא הפסיד - מלא באהבת כסף ושנאת חרדים) כתבת תחקיר עומק אודות תופעת העוקצים בציבור החרדי הכרוכים במבצעי 10/90 הזכורים לשימצה.

מה שלא אהבתי זה ההתמקדות במתווך חרדי מסוים כאילו הוא שורש הרע בעולם כולו ואיך מלאו ליבו כביכול, ומעשה שהיה כך הווה בעשרות עותקים ברחבי הארץ שרובם מוכרים לי היטיב:

אברכים שחושבים שהם אנשי-עסקים פותו בידי אנשי-עסקים שחושבים שהם אברכים לקנות דירות פאר בערים שהם מכירים רק מחלונות האוטובוס בדרך למירון, נתניה ובת ים מככבות בכתבה אך זה לאורך כל הארץ בערים אשר אברך ממוצע מכיר את שמותיהם רק מהתרעות פיקוד העורף (או מהנפילות שאחריהן) ומעולם לא ביקר בהן.

אז איך משכנעים אברך כולל חסידי בן 22 שקיבל מההורים חצי מיליון ₪ לצורך יחידת 'סליחה' בביתר, לרכוש פנטהוז בהרצליה בארבע מיליון ₪ ?

מספרים לו שזה מבצע מיוחד שהתגלה רק למתווך בגילוי שמימי וכעת צריך רק לשלם עשרה אחוז שזה ארבע מאות אלף שקל ואת המאה הנותרים להביא למתווך על הגילוי הנפלא.

ואיך הדלפון שלנו יממן את מה שעשירי טבריה מתקשים?

כאן מגיע החלק השני של הגילוי אליהו – המתווך יודע לנבא כי בעוד שלוש שנים, כשיצטרכו להשלים את הרכישה הדירה תהיה שווה חמישה מיליון, ואז האברך דנן יתברר כסוחר מוצלח ביותר אשר ימשוך חזרה את הארבע מאות ועוד מיליון רווח נקי וכך לא יצטרך לגור בדירת הסליחה אלא בדירה גדולה המרחיבה דעתו של אדם ומרחיבה ארנקו של המשווק.

אז איפה הקצ'?

שעכשיו זה "אחרי שלוש שנים" ומתברר כי המחיר הכי גבוה שאפשר לקבל על הדירה הוא שלוש וחצי מיליון ואחרי ההוצאות מגיעים לשלוש מאתיים נטו ביד, מה שאומר שלפעמים עדיף לאותו אברך לעשות "ויברח" ולהותיר את הארבע מאות אצל החברה והמשווק ולחזור ליחידת הסליחה אבל וחפוי ראש, והפעם כשוכר...

זה פחות או יותר המסלול שאותו עוברות בחודשים אלו מאות משפחות מאנ"ש שכל מה שהם רצו זה לחתן את הילדים בכבוד וכעת הם מרוסקים לחלוטין וייקח להם שנים רבות אם בכלל כדי להתאושש מהתהום הכלכלית שהם הוכנסו אליה בידי משווק פלוני.

אך עשרת הקוראים כאן יודעים שעד כאן הייתה רק ההקדמה, כעת נתחיל עם הניתוח הכואב של הנתונים ואת הצד של לימוד זכות:

ובכן, קודם כל צריך לדעת שרבים מאוד הרוויחו בפריסיילים ותכניות דומות הרבה כסף, פגשתי ועודני פוגש כל יום אברכים צעירים ומבוגרים שהרוויחו סכומים אגדיים בשנים האחרונות כתוצאה מהפטנט הזה, לא ערכתי מחקר עומק אך מהתרשמותי המרוויחים רבים בהרבה על המפסידים וחבל שאת זה שומרים בסוד מאימת המצ'ינגים, הסיבה היחידה שמספרים לי על כך זה או כדי לשאול איך לעשות את הסיבוב הבא או כדי להתייעץ איך לצמצם את המסים העצומים (ברוך השם, כשיש מס סימן שיש שבח).

כל מי שקנה דירה בירושלים במחירי פריסייל של עשרים ומשהו אלף עשה את המיליון הזה, כך גם רבים שהשקיעו בחלק מהפרוייקטים בבן שמן וכך גם במקומות נוספים אשר המחירים עלו שם דרמטית ולקחו איתם את המשקיעים כלפי מעלה.

אז מה קרה בכל הפרוייקטים הכושלים?

שני דברים, הראשון שלא ידוע לי אם קרה זה הקפצת מחירים, מאוד ייתכן שמשווק מסוים יבוא לקבלן שיש לו כבר פריסייל ויגיד לו במקום למכור ב3.9 אביא לך קונים בארבע מיליון ואז מקבלים תרי זוזי: מאה אלף מהקבלן ועוד אחד מהלקוח, חד גדיא דזבין את אבא.

זה נורא לשמוע שיש דברים כאלו וטיפש מי שנופל לכך אך מי שיותר טיפש ממנו הוא מי שמאמין שאפשר למנוע דבר כזה באמצעות בירור אם המתווך אמין: גם המתווך האמין ביותר לא יעמוד בפני ניסיון של מאתיים אלף ₪ רק מלאך יוותר על זה ולא ניתנה תורת העסקים למלאכי השרת.

אך הדבר הזה לא מתקיים בדרך כלל משום שרוב הקונים יודעים לבדוק בערך את המחיר בסביבה ולא נופלים לבורות עמוקים, מה שכן קורה זה הדבר השני ועליו ברצוננו לדבר:

המחיר פשוט לא עלה, ולפעמים אפילו ירד.

כן רבייסיי, מחירי דירות לא רק עולים, לפעמים הם גם יורדים, כגון למשל בתקופת מלחמה.

עד מלחמת שמחת-נורא המחירים בנתניה למשל אכן השתוללו כי הצרפתים קנו שם בהמוניהם והוא הדין בצפת שהאמריקאים עטו עליה כי אצלם אין הבדל בין ירושלים לצפת, באמריקה זה מרחק סביר לנסיעה יומיומית לעבודה, אז מישהו משווק להם את זה כירושלים לעניים והם קנו וקנו והמחירים עלו ועלו והייתה היתכנות מסויימת לעלייה צפוייה.

ואז הגיע המלחמה ואין חוצניקים, ועוד מלחמה ועוד מבצע ושום דבר לא חזר לעצמו ואפשר לקלל את איראן (מגיע להם) ואת החמאס (עוד יותר מגיע) אך זה לא יעזור לעובדה הפשוטה שמחירי המגדלים שיועדו בעיקר לאוכלוסיות אלו צולל.

לא בהרבה, אך מספיקה ירידה של 8% כדי שכל העסק יהפוך להפסד.

זה נכון שמעצבן שהמשווק ניבא שהמחירים יעלו והם לא, אמנם אמרו חז"ל שנבואה ניתנה לשוטים אך האמונה כי יש למישהו נבואה ניתנה לשוטים גדולים עוד יותר... כל בר דעת העושה עסקים יודע שבכל הקשור לניבוי עתידות - המשווק ועטיפת המסטיק יודעים לנבא באותה מידה ומי שמסתמך על הבטחות אודות העתיד (כולל אלפי אברכים שנופלים היום בפריסייל של המחר שנקרא פינוי בינוי המבוסס על אותה נבואה כמעט) אין לו לבוא בטענות אלא על עצמו, לא המשווק נשך לשונרא.

מקווה שהצלחתי להסביר: לא כל עסקה כושלת היא נוכלות ולא כל ירידת מחירים היא עקיצה, בכל עסק ייתכן מאוד הפסד ומי שלא מוכן לכך שלא ייכנס לעולם ההשקעות.

אז להפסיק להשקיע בנדל"ן?

חלילה, כמה שיותר להשקיע בנדל"ן וכל המרבה הרי זה משובח – ואם ירצה השם ויהיה זמן נרחיב אולי בטור הבא על "מה כן" – אך רק עסקאות נטולות הימור על כל הקופה, כך שגם אם נגזר עליך להפסיד זה יהיה רק קצת ורק זמני.

ברור לי שכל הדברים האמורים כאן ברורים לכל אחד מעשרת הקוראים וסליחה שבזבזתי את זמנכם אך אם זה ירגיע אבא סוער אחד -שכועס בכל ליבו על המתווך שכאילו הפיל את החתן שלו - והיה זה שכרי.



גילוי נאות: לכותב אין ולא היה שום אינטרס כלכלי בשום פרוייקט של פריסל והוא אינו קשור היום לשום שיווק לא במישרין ולא בעקיפין, המידע מובא ללא כל אינטרס כלכלי אלא כצדקה ושירות לציבור, לשאלות ספציפיות ניתן לפנות למייל והתשובות שם חינם וללא אחריות.
סיכום אירועים: איראן בלהבות - מהמחאות ועד לסף עימות עולמי

הרקע וההתפרצות (סוף דצמבר 2025):

המחאות החלו ב-28 בדצמבר 2025 בטהראן, על רקע משבר כלכלי חריף וצניחה חדה בערך הריאל. מה שהחל כזעקת סוחרים ואזרחים על יוקר המחיה, הפך במהירות לגל הפגנות חסר תקדים ב-187 ערים הקורא להפלת המשטר.


הטבח והחשכת המידע (ינואר 2026):
  • דיכוי אלים: המשטר האיראני הגיב באכזריות יוצאת דופן. לפי נתוני ארגון זכויות האדם HRANA, נכון ל-23 בינואר, מספר ההרוגים המאומת עומד על למעלה מ-5,000 בני אדם, בהם 4,716 מפגינים ועשרות ילדים.
    יש דיווחים לא מאומתים מצד האופוזיציה האיראנית על מעל 60,000 הרוגים!

  • מעצרים המוניים: למעלה מ-26,500 בני אדם נעצרו, וקיים חשש כבד להוצאות להורג המוניות בבתי הכלא.

  • חסימת אינטרנט: החל מה-8 בינואר הוטל מצור דיגיטלי כמעט מוחלט על המדינה כדי למנוע זליגת תיעודים מהטבח.

המעורבות האמריקנית - "הארמדה של טראמפ":
הנשיא טראמפ, שחזר והזהיר את טהראן מפני המשך הטבח, הכריז ב-22 בינואר כי "ארמדה" אמריקנית (צי ספינות מלחמה, כולל נושאת המטוסים אברהם לינקולן) עושה את דרכה למפרץ הפרסי. טראמפ הבהיר כי ארה"ב בוחנת אפשרויות תקיפה ישירות נגד מטרות שלטוניות אם לא ייפסק הדיכוי. ולאחר הדלפות על ממדי הטבח, הכריז "העזרה בדרך".


הזווית הישראלית והאזורית:
  • כוננות שיא: ישראל נמצאת בדריכות עליונה מחשש שהסלמה אמריקנית תוביל לתגובה איראנית ישירה או באמצעות שלוחיה (פרוקסי).

  • איומי נתניהו: ראש הממשלה נתניהו הזהיר כי אם איראן תבצע "טעות" ותתקוף את ישראל, היא תפגוש עוצמה שטרם הכירה.

  • איומי טהראן: המשטר האיראני הודיע כי במקרה של תקיפה, בסיסים אמריקניים ויעדים בישראל יהיו "מטרות לגיטימיות".

באשכול זה נמשיך לעדכן סביב השעון בכל התפתחות, דיווחים מהשטח ופרשנויות ביטחוניות.
עודכן אדר תשפ"ד
ראשית, גופי הכשרות
ברוב אשכולות בנושא 'השקעות בשוק ההון' בפרוג, משתרבב עניין הכשרות.
למען הסדר באשכול זה נעלה עדכונים בנושא כשרות.
אני אשתדל לסכם ולתמצת ככל האפשר.

יש 4 גופי כשרות
  • בד"ץ העדה החרדית - על פי פסקי הרב יעקב בלוי זצ"ל שהיה בקיא גדול בתחום שוק ההון והוא שהביא את פסקיו ועל פי פסקים אלו נוהגים עד היום בגוף כשרות זה. היום הכשרות בראשות הרב שלמה זאב קרליבך.
  • גלאט הון - על פי פסקי רבי ניסים קרליץ והרב שמואל ואזנר. שסמכו ידיהם על הרב יעקב לנדו שמכיר את שוק ההון לעומקו. הרב משה שטרנבוך ראב"ד העדה החרדית הוא מרבני 'גלאט הון'.
  • תשואה כהלכה – הרב שמואל דוד גרוס, רב חסידי גור אשדוד ועוד רבנים מוכרים וידועים בכל שכבות הציבור החרדי.
  • כלכלה על פי ההלכה- הרב אריה דביר, על פי פסקי הרב יוסף שלום אלישיב.

היום בכל החברות יש מסלולים כשרים, שמאושרים לפחות ע"י אחת מהכשרויות.
בין החברות שנמצאת ברשותם תעודת כשרות אפשר למצוא את:
אלטשולר שחם, אינפיניטי, הפניקס, הראל, כלל, מגדל, מור, מיטב דש, מנורה.

רשימות קרנות כשרות:

הצטרפות לניוזלטר

איזה כיף שהצטרפתם לניוזלטר שלנו!

מעכשיו, תהיו הראשונים לקבל את כל העדכונים, החדשות, ההפתעות בלעדיות, והתכנים הכי חמים שלנו בפרוג!

לוח מודעות

הפרק היומי

הפרק היומי! כל ערב פרק תהילים חדש. הצטרפו אלינו לקריאת תהילים משותפת!


תהילים פרק כה

אלְדָוִד אֵלֶיךָ יי נַפְשִׁי אֶשָּׂא:באֱלֹהַי בְּךָ בָטַחְתִּי אַל אֵבוֹשָׁה אַל יַעַלְצוּ אֹיְבַי לִי:גגַּם כָּל קוֶֹיךָ לֹא יֵבֹשׁוּ יֵבֹשׁוּ הַבּוֹגְדִים רֵיקָם:דדְּרָכֶיךָ יי הוֹדִיעֵנִי אֹרְחוֹתֶיךָ לַמְּדֵנִי:ההַדְרִיכֵנִי בַאֲמִתֶּךָ וְלַמְּדֵנִי כִּי אַתָּה אֱלֹהֵי יִשְׁעִי אוֹתְךָ קִוִּיתִי כָּל הַיּוֹם:וזְכֹר רַחֲמֶיךָ יי וַחֲסָדֶיךָ כִּי מֵעוֹלָם הֵמָּה:זחַטֹּאות נְעוּרַי וּפְשָׁעַי אַל תִּזְכֹּר כְּחַסְדְּךָ זְכָר לִי אַתָּה לְמַעַן טוּבְךָ יי:חטוֹב וְיָשָׁר יי עַל כֵּן יוֹרֶה חַטָּאִים בַּדָּרֶךְ:טיַדְרֵךְ עֲנָוִים בַּמִּשְׁפָּט וִילַמֵּד עֲנָוִים דַּרְכּוֹ:יכָּל אָרְחוֹת יי חֶסֶד וֶאֱמֶת לְנֹצְרֵי בְרִיתוֹ וְעֵדֹתָיו:יאלְמַעַן שִׁמְךָ יי וְסָלַחְתָּ לַעֲוֹנִי כִּי רַב הוּא:יבמִי זֶה הָאִישׁ יְרֵא יי יוֹרֶנּוּ בְּדֶרֶךְ יִבְחָר:יגנַפְשׁוֹ בְּטוֹב תָּלִין וְזַרְעוֹ יִירַשׁ אָרֶץ:ידסוֹד יי לִירֵאָיו וּבְרִיתוֹ לְהוֹדִיעָם:טועֵינַי תָּמִיד אֶל יי כִּי הוּא יוֹצִיא מֵרֶשֶׁת רַגְלָי:טזפְּנֵה אֵלַי וְחָנֵּנִי כִּי יָחִיד וְעָנִי אָנִי:יזצָרוֹת לְבָבִי הִרְחִיבוּ מִמְּצוּקוֹתַי הוֹצִיאֵנִי:יחרְאֵה עָנְיִי וַעֲמָלִי וְשָׂא לְכָל חַטֹּאותָי:יטרְאֵה אוֹיְבַי כִּי רָבּוּ וְשִׂנְאַת חָמָס שְׂנֵאוּנִי:כשָׁמְרָה נַפְשִׁי וְהַצִּילֵנִי אַל אֵבוֹשׁ כִּי חָסִיתִי בָךְ:כאתֹּם וָיֹשֶׁר יִצְּרוּנִי כִּי קִוִּיתִיךָ:כבפְּדֵה אֱלֹהִים אֶת יִשְׂרָאֵל מִכֹּל צָרוֹתָיו:
נקרא  2  פעמים
למעלה