אינטרפוץ

  • הוסף לסימניות
  • #1
שאלה:
במקלחון ממליצים לעשות 2 כפול 3 דרך.
האם לא יותר פרקטי במקום זה לעשות אחד של 4 דרך ?
 
  • הוסף לסימניות
  • #2
שאלה:
במקלחון ממליצים לעשות 2 כפול 3 דרך.
האם לא יותר פרקטי במקום זה לעשות אחד של 4 דרך ?
כמה שיקולים לפה ולפה
1. ב-2*3 יש באמבטיה שני ידיות
יש כאלו שאוהבים את זה ויש כאלו שפחות
2. ב-1*4 יש בורר שלפעמים (בעיקרון יש ברירת מחדל לבורר, אבל הוא יכול להתקלקל) פותחים את הברז בציפיה שיצאו מים מהמזלף ופתאום יוצאים מים קפואים מהראש גשם, שזה לא הכי נעים...
3. יש טוענים שמערכת 1*4 יותר רגישה ויכולה להתקלקל מאשר 2*3

בהצלחה
 
  • הוסף לסימניות
  • #3
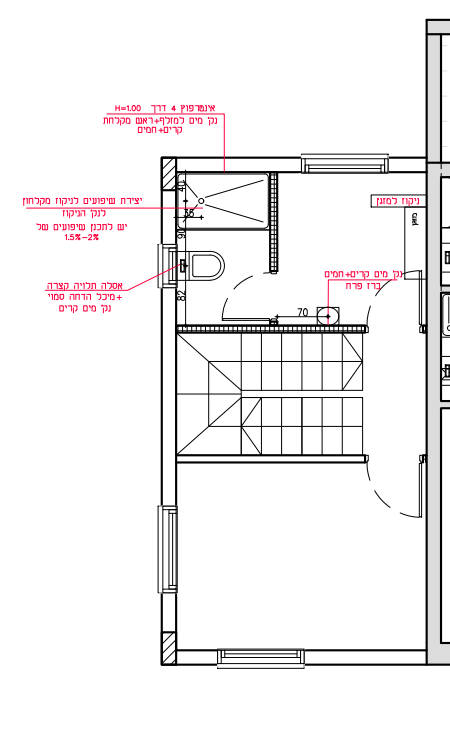
הכי נוח 3 דרך עם בורר מצבים
 
  • הוסף לסימניות
  • #5
לא נכון :)
יש 3 דרך, שממנו יוצאים 3 יציאות - מים חמים, מים קרים, ובורר מצבים
מהבורר מצבים יש 3 יציאות: ראש גשם, מזלף, ופית מילוי
הנה
1689638743068.png
 
  • הוסף לסימניות
  • #6
לפעמים נוח יותר 2*3, ככה אפשר להפעיל גם את הראש גשם וגם את הטוש בו זמנית.
שימו לב כדאי שהידית לא תהיה מתחת הראש גשם - שלא יצטרכו לפתוח את המים ולברוח משטף המים הקרים.
 
  • הוסף לסימניות
  • #7
האם לא יותר פרקטי במקום זה לעשות אחד של 4 דרך ?
4 דרך בד"כ יותר זול לעומת 2 של 3
3 דרך אפשר להפעיל את שניהם בו זמנית, 4 דרך זה או -או

מבחינת המראה 3 דרך הוא קטן יותר אבל יהיו 2. עניין של טעם אישי

1689663957967.png
1689664015959.png
 
  • הוסף לסימניות
  • #8
אבל בשלוש דרך זה להפעיל ולכוון את הטמפרטורה מחדש, בשונה מארבע דרך שפשוט מעבירים את הטמפרטורה שכבר נבחרה ליציאה האחרת. לא כך ?

שאלה נוספת: יש 1.1 על 1.5 באמבטיה מבוגרים. האם מקלחון עדיף על פני אמבטיה בגלל המרווח שנשאר בחדר ?
 
  • הוסף לסימניות
  • #9
  • הוסף לסימניות
  • #11
אבל בשלוש דרך זה להפעיל ולכוון את הטמפרטורה מחדש, בשונה מארבע דרך שפשוט מעבירים את הטמפרטורה שכבר נבחרה ליציאה האחרת. לא כך ?

שאלה נוספת: יש 1.1 על 1.5 באמבטיה מבוגרים. האם מקלחון עדיף על פני אמבטיה בגלל המרווח שנשאר בחדר ?
גם אני מתלבטת בין 4 דרך ל 2 של 3 דרך,
4 דרך- אין צורך לכוון את הטמפרטורה מחדש בהחלפה בין הברזים
לעומת נוחות השימוש ב 2 של 3 דרך שאין צורך להשתמש בלחצן, וילדים לא תמיד מסתדרים איתו
אשמח לתגובה מנסיון
 
  • הוסף לסימניות
  • #12
עניין של העדפה אישית, אני לא רואה ככ עניין בנושא של הטמפרטורה,
אני אוהבת שאפשר להשתמש בשניהם בו זמנית,
ומבחינת נראות - בעיניי 2 של 3 יותר יפה.
 
  • הוסף לסימניות
  • #13
עניין של העדפה אישית, אני לא רואה ככ עניין בנושא של הטמפרטורה,
אני אוהבת שאפשר להשתמש בשניהם בו זמנית,
ומבחינת נראות - בעיניי 2 של 3 יותר יפה.
אוקי, יש משהו בזה
שאלה נוספת, מתלבטת בין ברז מהקיר באמבטיה לבין פיית מילוי מהאמבטיה עצמה,
האם ילדים יכולים להסתדר בלי ברז אלא רק עם הפיית מילוי מהאמבטיה?
 
  • הוסף לסימניות
  • #14
שאלה נוספת, מתלבטת בין ברז מהקיר באמבטיה לבין פיית מילוי מהאמבטיה עצמה,
האם ילדים יכולים להסתדר בלי ברז אלא רק עם הפיית מילוי מהאמבטיה?
למה לא?
 
  • הוסף לסימניות
  • #16
  • הוסף לסימניות
  • #17
אוקי, יש משהו בזה
שאלה נוספת, מתלבטת בין ברז מהקיר באמבטיה לבין פיית מילוי מהאמבטיה עצמה,
האם ילדים יכולים להסתדר בלי ברז אלא רק עם הפיית מילוי מהאמבטיה?
אני עשיתי 3 דרך עם בורר של שני מצבים פיית מלוי וברז בדיוק בגלל הסיבה הזאת
 
  • הוסף לסימניות
  • #18
לא יודעת מה היתרון, תלוי בשימושים שלכם

אני עשיתי 3 דרך עם בורר של שני מצבים פיית מלוי וברז בדיוק בגלל הסיבה הזאת
אם יש לך ברז אז בשביל מה צריך את הפיית מילוי?
מעניין אותי מנסיון של מישהי שיש לה רק את הפיית מילוי האם לא חסר לה הברז.
 
  • הוסף לסימניות
  • #19
מעניין אותי מנסיון של מישהי שיש לה רק את הפיית מילוי האם לא חסר לה הברז.
לי אין ולא חסר לי, אבל אין לי ילדים מעל גיל שנתיים.
 
  • הוסף לסימניות
  • #20
אם יש לך ברז אז בשביל מה צריך את הפיית מילוי?
מעניין אותי מנסיון של מישהי שיש לה רק את הפיית מילוי האם לא חסר לה הברז.
לי לא חסר
 

פרוגבוט

תוכן שיווקי
פרסומת

אשכולות דומים

הצטרפות לניוזלטר

איזה כיף שהצטרפתם לניוזלטר שלנו!

מעכשיו, תהיו הראשונים לקבל את כל העדכונים, החדשות, ההפתעות בלעדיות, והתכנים הכי חמים שלנו בפרוג!

לוח מודעות

הפרק היומי

הפרק היומי! כל ערב פרק תהילים חדש. הצטרפו אלינו לקריאת תהילים משותפת!


תהילים פרק כה

אלְדָוִד אֵלֶיךָ יי נַפְשִׁי אֶשָּׂא:באֱלֹהַי בְּךָ בָטַחְתִּי אַל אֵבוֹשָׁה אַל יַעַלְצוּ אֹיְבַי לִי:גגַּם כָּל קוֶֹיךָ לֹא יֵבֹשׁוּ יֵבֹשׁוּ הַבּוֹגְדִים רֵיקָם:דדְּרָכֶיךָ יי הוֹדִיעֵנִי אֹרְחוֹתֶיךָ לַמְּדֵנִי:ההַדְרִיכֵנִי בַאֲמִתֶּךָ וְלַמְּדֵנִי כִּי אַתָּה אֱלֹהֵי יִשְׁעִי אוֹתְךָ קִוִּיתִי כָּל הַיּוֹם:וזְכֹר רַחֲמֶיךָ יי וַחֲסָדֶיךָ כִּי מֵעוֹלָם הֵמָּה:זחַטֹּאות נְעוּרַי וּפְשָׁעַי אַל תִּזְכֹּר כְּחַסְדְּךָ זְכָר לִי אַתָּה לְמַעַן טוּבְךָ יי:חטוֹב וְיָשָׁר יי עַל כֵּן יוֹרֶה חַטָּאִים בַּדָּרֶךְ:טיַדְרֵךְ עֲנָוִים בַּמִּשְׁפָּט וִילַמֵּד עֲנָוִים דַּרְכּוֹ:יכָּל אָרְחוֹת יי חֶסֶד וֶאֱמֶת לְנֹצְרֵי בְרִיתוֹ וְעֵדֹתָיו:יאלְמַעַן שִׁמְךָ יי וְסָלַחְתָּ לַעֲוֹנִי כִּי רַב הוּא:יבמִי זֶה הָאִישׁ יְרֵא יי יוֹרֶנּוּ בְּדֶרֶךְ יִבְחָר:יגנַפְשׁוֹ בְּטוֹב תָּלִין וְזַרְעוֹ יִירַשׁ אָרֶץ:ידסוֹד יי לִירֵאָיו וּבְרִיתוֹ לְהוֹדִיעָם:טועֵינַי תָּמִיד אֶל יי כִּי הוּא יוֹצִיא מֵרֶשֶׁת רַגְלָי:טזפְּנֵה אֵלַי וְחָנֵּנִי כִּי יָחִיד וְעָנִי אָנִי:יזצָרוֹת לְבָבִי הִרְחִיבוּ מִמְּצוּקוֹתַי הוֹצִיאֵנִי:יחרְאֵה עָנְיִי וַעֲמָלִי וְשָׂא לְכָל חַטֹּאותָי:יטרְאֵה אוֹיְבַי כִּי רָבּוּ וְשִׂנְאַת חָמָס שְׂנֵאוּנִי:כשָׁמְרָה נַפְשִׁי וְהַצִּילֵנִי אַל אֵבוֹשׁ כִּי חָסִיתִי בָךְ:כאתֹּם וָיֹשֶׁר יִצְּרוּנִי כִּי קִוִּיתִיךָ:כבפְּדֵה אֱלֹהִים אֶת יִשְׂרָאֵל מִכֹּל צָרוֹתָיו:
נקרא  2  פעמים
למעלה