עיצוב חלל בקשה לחוות דעת מקצועית – העמדת ריהוט בסלון

  • הוסף לסימניות
  • #1
שלום רב,

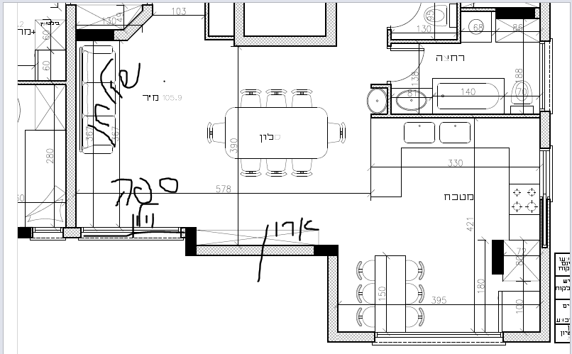
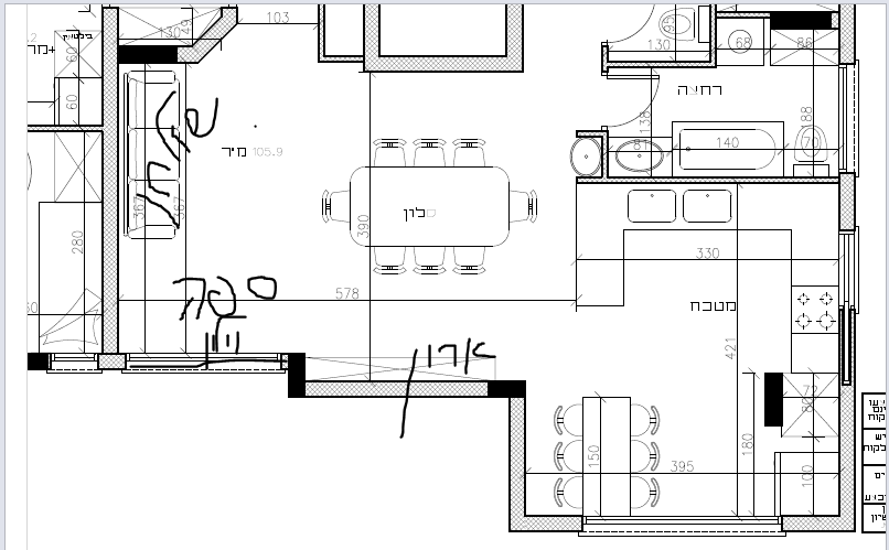
אשמח לקבל חוות דעת מקצועית בנוגע להעמדת הריהוט בסלון, הכולל שולחן סלון וספרייה (וילון כבר קיים).

מצרפת שתי אפשרויות שעלו, ואשמח לשמוע מהי האופציה המומלצת בעיניכם, וכן פתוחה להצעות ורעיונות נוספים.

תודה רבה,
1769632244429.png


1769631984395.png
 

קבצים מצורפים

  • unnamed (2).png
    unnamed (2).png
    KB 79 · צפיות: 35
  • image (11).png
    image (11).png
    KB 79.5 · צפיות: 37
  • 1769631969057.png
    1769631969057.png
    KB 246.8 · צפיות: 206
  • הוסף לסימניות
  • #2
שלום רב,

אשמח לקבל חוות דעת מקצועית בנוגע להעמדת הריהוט בסלון, הכולל שולחן סלון וספרייה (וילון כבר קיים).

מצרפת שתי אפשרויות שעלו, ואשמח לשמוע מהי האופציה המומלצת בעיניכם, וכן פתוחה להצעות ורעיונות נוספים.

תודה רבה,
צפה בקובץ המצורף 2168978

צפה בקובץ המצורף 2168973
למה לשנות
לפי השרטוט המקורי זה הכי מוצלח
 
  • הוסף לסימניות
  • #3
למה לא כמו שמשורטט בתוכנית?
נראה שיכול להיכנס לכם פינת ספות מרווחת שמוסתרת מהדלת ומשקיפה על כל הבית
ארון בנישה שזה מעולה ואת השולחן תוכלו להצמיד קצת יותר לספריה באמצע שבוע ולמרכז בשבת

אם תכניסו את הארון ואת הספות כמו באופציה 2 ישאר לכם ספריה קטנה וספה קטנה
וכמו באופציה 1 יהיה לכם ממש צפוף באזור הזה של הסלון להכניס גם ספה וגם שולחן בעוד שנשאר לכם חלל ענק ריק במרכז
 
  • הוסף לסימניות
  • #4
למה לשנות
לפי השרטוט המקורי זה הכי מוצלח
למה לא כמו שמשורטט בתוכנית?
נראה שיכול להיכנס לכם פינת ספות מרווחת שמוסתרת מהדלת ומשקיפה על כל הבית
ארון בנישה שזה מעולה ואת השולחן תוכלו להצמיד קצת יותר לספריה באמצע שבוע ולמרכז בשבת

אם תכניסו את הארון ואת הספות כמו באופציה 2 ישאר לכם ספריה קטנה וספה קטנה
וכמו באופציה 1 יהיה לכם ממש צפוף באזור הזה של הסלון להכניס גם ספה וגם שולחן בעוד שנשאר לכם חלל ענק ריק במרכז

תודה על התגובות.
אני כן מעוניינת בחלל בסלון ולכן לא רוצה שולחן באמצע.
הסלון לא מאד גדול וגם משמש כמעבר בכניסה לבית, לא הייתי רוצה לחסום אותו.
 
  • הוסף לסימניות
  • #5
תודה על התגובות.
אני כן מעוניינת בחלל בסלון ולכן לא רוצה שולחן באמצע.
הסלון לא מאד גדול וגם משמש כמעבר בכניסה לבית, לא הייתי רוצה לחסום אותו.
אז הייתי משאירה את ההעמדה שבתוכנית ומעבירה את השולחן למתחת לחלון- ליד הספה
 

פרוגבוט

תוכן שיווקי
פרסומת

הצטרפות לניוזלטר

איזה כיף שהצטרפתם לניוזלטר שלנו!

מעכשיו, תהיו הראשונים לקבל את כל העדכונים, החדשות, ההפתעות בלעדיות, והתכנים הכי חמים שלנו בפרוג!

לוח מודעות

הפרק היומי

הפרק היומי! כל ערב פרק תהילים חדש. הצטרפו אלינו לקריאת תהילים משותפת!


תהילים פרק כה

אלְדָוִד אֵלֶיךָ יי נַפְשִׁי אֶשָּׂא:באֱלֹהַי בְּךָ בָטַחְתִּי אַל אֵבוֹשָׁה אַל יַעַלְצוּ אֹיְבַי לִי:גגַּם כָּל קוֶֹיךָ לֹא יֵבֹשׁוּ יֵבֹשׁוּ הַבּוֹגְדִים רֵיקָם:דדְּרָכֶיךָ יי הוֹדִיעֵנִי אֹרְחוֹתֶיךָ לַמְּדֵנִי:ההַדְרִיכֵנִי בַאֲמִתֶּךָ וְלַמְּדֵנִי כִּי אַתָּה אֱלֹהֵי יִשְׁעִי אוֹתְךָ קִוִּיתִי כָּל הַיּוֹם:וזְכֹר רַחֲמֶיךָ יי וַחֲסָדֶיךָ כִּי מֵעוֹלָם הֵמָּה:זחַטֹּאות נְעוּרַי וּפְשָׁעַי אַל תִּזְכֹּר כְּחַסְדְּךָ זְכָר לִי אַתָּה לְמַעַן טוּבְךָ יי:חטוֹב וְיָשָׁר יי עַל כֵּן יוֹרֶה חַטָּאִים בַּדָּרֶךְ:טיַדְרֵךְ עֲנָוִים בַּמִּשְׁפָּט וִילַמֵּד עֲנָוִים דַּרְכּוֹ:יכָּל אָרְחוֹת יי חֶסֶד וֶאֱמֶת לְנֹצְרֵי בְרִיתוֹ וְעֵדֹתָיו:יאלְמַעַן שִׁמְךָ יי וְסָלַחְתָּ לַעֲוֹנִי כִּי רַב הוּא:יבמִי זֶה הָאִישׁ יְרֵא יי יוֹרֶנּוּ בְּדֶרֶךְ יִבְחָר:יגנַפְשׁוֹ בְּטוֹב תָּלִין וְזַרְעוֹ יִירַשׁ אָרֶץ:ידסוֹד יי לִירֵאָיו וּבְרִיתוֹ לְהוֹדִיעָם:טועֵינַי תָּמִיד אֶל יי כִּי הוּא יוֹצִיא מֵרֶשֶׁת רַגְלָי:טזפְּנֵה אֵלַי וְחָנֵּנִי כִּי יָחִיד וְעָנִי אָנִי:יזצָרוֹת לְבָבִי הִרְחִיבוּ מִמְּצוּקוֹתַי הוֹצִיאֵנִי:יחרְאֵה עָנְיִי וַעֲמָלִי וְשָׂא לְכָל חַטֹּאותָי:יטרְאֵה אוֹיְבַי כִּי רָבּוּ וְשִׂנְאַת חָמָס שְׂנֵאוּנִי:כשָׁמְרָה נַפְשִׁי וְהַצִּילֵנִי אַל אֵבוֹשׁ כִּי חָסִיתִי בָךְ:כאתֹּם וָיֹשֶׁר יִצְּרוּנִי כִּי קִוִּיתִיךָ:כבפְּדֵה אֱלֹהִים אֶת יִשְׂרָאֵל מִכֹּל צָרוֹתָיו:
נקרא  2  פעמים
למעלה