הניקית 'ארבע' מתלבטת בין תוכניות מטבח

  • הוסף לסימניות
  • #1
לבקשת @ארבע שלא יכולה לפתוח פה אשכול חדש משל עצמה-
פותחת אשכול שאלה עבורה
השאלה עצמה בהודעה הבאה

תודה!
 
  • הוסף לסימניות
  • #5
אולי רק מי שבקהילה של אדריכלים ומעצבי פנים
 
  • הוסף לסימניות
  • #6
תודה לרותי היקרה שפתחה עבורי את האשכול

מצורפות כאן תוכניות שונות של מטבח, פלוס תוכנית הדירה.
אשמח להכוונה מהי התוכנית המועדפת.
ד.png
 
נערך לאחרונה ב:
  • הוסף לסימניות
  • #7
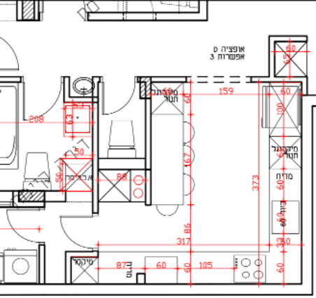
תוכנית מס' 1 עם מידות
1 עם מידות.png
 
נערך לאחרונה ב:
  • הוסף לסימניות
  • #8
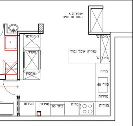
תוכנית מס' 2 עם מידות
2 עם מידות.png
 
נערך לאחרונה ב:
  • הוסף לסימניות
  • #9
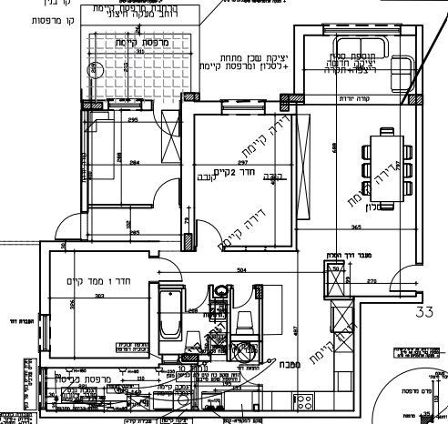
תוכנית מס' 3 עם מידות

תודה ענקית למשיבים ולמסייעים.
3 עם מידות.png
 
נערך לאחרונה ב:
  • הוסף לסימניות
  • #10
לדעתי, מבין כל התכניות, תוכנית 2 היא גם התוכנית הנוחה ביותר מצד הפרקטיקה של עבודה במטבח וגם ידידותית יותר, אממה שפינת האוכל מאוד צפופה. אולי אפשר להזיז את הדלת לכיוון המרפסת עד העמוד שמאחורי האסלה (כמו בתוכנית 3, אבל לא לעשות דלתות כפולות).
עוד משהו, נראה שאין מספיק מקומות אכסון, אבל צריך לבדוק בצורה מעמיקה.
בהצלחה רבה!!

נ.ב. לא הבנתי מה קורה על הקיר שגובל באסלה. האם אפשר להוריד את הקירות שם? אם כן, כדאי לנסות סקיצות כאלו.
 
  • הוסף לסימניות
  • #11
@ארבע
תכתבי גם מה הדרישות ומה חשוב לך יותר ממה
מס' מקומות בפ אוכל
הפרדה בין בשרי לחלבי (עדיפות לשישים נפרדים?)

בכ"א, את תוכנית 1 לא אהבתי...
קצת מקומות ישיבה (או שמתאים לך?)
עמוד בשיש החלבי
ומשולשי עבודה לא נוחים (בפרט החלבי)

תכנית 2 הכי יפה
מבחינת משולשי עבודה
פתרון לעמוד (לא מפריע בשיש)
משטחי עבודה יפים
אני אישית אוהבת הפרדה מלאה בבשרי/חלבי

אגב, למה לא הכל מגירות?
ארונות מתחת לשיש זה בזבוז שטח, לא נח ומכיל פחות.
 
  • הוסף לסימניות
  • #12
תכתבי גם מה הדרישות ומה חשוב לך יותר ממה
מס' מקומות בפ אוכל
הפרדה בין בשרי לחלבי (עדיפות לשישים נפרדים?)
מה שחשוב -
1) 2 תנורים בגובה ולא אחד על השני
2) מקומות ישיבה

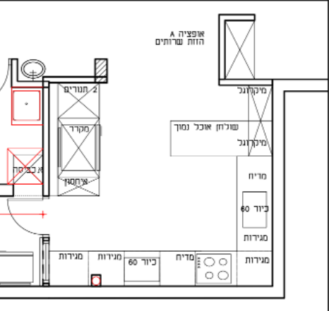
מצורפת תוכנית נוספת של אופציה שבה מזיזם את קיר השירותים - אופציה זו מיקרת בעשרים אלף שקל, לערך. השאלה אם ההשקעה כדאית.

אגב זה לא המטבח שלי, אני שואלת עבור קרובי.
image (1).png
 
  • הוסף לסימניות
  • #13
אגב, למה לא הכל מגירות?
ארונות מתחת לשיש זה בזבוז שטח, לא נח ומכיל פחות.
הכל מגירות, עדיין אין חלוקה פנימית של הארונות, זה רק תכנון מלמעלה של צורת המטבח
 
  • הוסף לסימניות
  • #14
אני הכי התחברתי לאופציה 3
 
  • הוסף לסימניות
  • #15
מה שחשוב -
1) 2 תנורים בגובה ולא אחד על השני
2) מקומות ישיבה

מצורפת תוכנית נוספת של אופציה שבה מזיזם את קיר השירותים - אופציה זו מיקרת בעשרים אלף שקל, לערך. השאלה אם ההשקעה כדאית.

אגב זה לא המטבח שלי, אני שואלת עבור קרובי.
צפה בקובץ המצורף 1109180


כדאי או אלא כדאי זה שאלה שקשה לענות עליה, אבל קל לומר שהורדת השירותים משפרת מאוד את החלל. אפשר להמשיך להשקיע בתכנון ולהגיע לתוכניו מוצלחות!
 
  • הוסף לסימניות
  • #17
  • הוסף לסימניות
  • #18
תוכנית מספר 3.
יש משטחי עבודה רצופים. יש את הפינה של הר' שנותנת הרבה משטח עבודה והנחה.
יש מקום מרווח לשולחן.
 
  • הוסף לסימניות
  • #19
אני בעד 3
הכל נראה הרמוני
מסודר
רציף
שולחן אוכל ממוקם בצורה אופטימלית
 
  • הוסף לסימניות
  • #20
בגדול 3.למרות שיש כמה דברים לא מובנים.
למה צריך 2 מדיח.
וכן להזיז את העיניים שמאלה וליד לשים את המיקרוגל וכו.
בהצלחה.
 

פרוגבוט

תוכן שיווקי
פרסומת

פוסטים חדשים שאולי לא קראת....

הצטרפות לניוזלטר

איזה כיף שהצטרפתם לניוזלטר שלנו!

מעכשיו, תהיו הראשונים לקבל את כל העדכונים, החדשות, ההפתעות בלעדיות, והתכנים הכי חמים שלנו בפרוג!

לוח מודעות

הפרק היומי

הפרק היומי! כל ערב פרק תהילים חדש. הצטרפו אלינו לקריאת תהילים משותפת!


תהילים פרק כה

אלְדָוִד אֵלֶיךָ יי נַפְשִׁי אֶשָּׂא:באֱלֹהַי בְּךָ בָטַחְתִּי אַל אֵבוֹשָׁה אַל יַעַלְצוּ אֹיְבַי לִי:גגַּם כָּל קוֶֹיךָ לֹא יֵבֹשׁוּ יֵבֹשׁוּ הַבּוֹגְדִים רֵיקָם:דדְּרָכֶיךָ יי הוֹדִיעֵנִי אֹרְחוֹתֶיךָ לַמְּדֵנִי:ההַדְרִיכֵנִי בַאֲמִתֶּךָ וְלַמְּדֵנִי כִּי אַתָּה אֱלֹהֵי יִשְׁעִי אוֹתְךָ קִוִּיתִי כָּל הַיּוֹם:וזְכֹר רַחֲמֶיךָ יי וַחֲסָדֶיךָ כִּי מֵעוֹלָם הֵמָּה:זחַטֹּאות נְעוּרַי וּפְשָׁעַי אַל תִּזְכֹּר כְּחַסְדְּךָ זְכָר לִי אַתָּה לְמַעַן טוּבְךָ יי:חטוֹב וְיָשָׁר יי עַל כֵּן יוֹרֶה חַטָּאִים בַּדָּרֶךְ:טיַדְרֵךְ עֲנָוִים בַּמִּשְׁפָּט וִילַמֵּד עֲנָוִים דַּרְכּוֹ:יכָּל אָרְחוֹת יי חֶסֶד וֶאֱמֶת לְנֹצְרֵי בְרִיתוֹ וְעֵדֹתָיו:יאלְמַעַן שִׁמְךָ יי וְסָלַחְתָּ לַעֲוֹנִי כִּי רַב הוּא:יבמִי זֶה הָאִישׁ יְרֵא יי יוֹרֶנּוּ בְּדֶרֶךְ יִבְחָר:יגנַפְשׁוֹ בְּטוֹב תָּלִין וְזַרְעוֹ יִירַשׁ אָרֶץ:ידסוֹד יי לִירֵאָיו וּבְרִיתוֹ לְהוֹדִיעָם:טועֵינַי תָּמִיד אֶל יי כִּי הוּא יוֹצִיא מֵרֶשֶׁת רַגְלָי:טזפְּנֵה אֵלַי וְחָנֵּנִי כִּי יָחִיד וְעָנִי אָנִי:יזצָרוֹת לְבָבִי הִרְחִיבוּ מִמְּצוּקוֹתַי הוֹצִיאֵנִי:יחרְאֵה עָנְיִי וַעֲמָלִי וְשָׂא לְכָל חַטֹּאותָי:יטרְאֵה אוֹיְבַי כִּי רָבּוּ וְשִׂנְאַת חָמָס שְׂנֵאוּנִי:כשָׁמְרָה נַפְשִׁי וְהַצִּילֵנִי אַל אֵבוֹשׁ כִּי חָסִיתִי בָךְ:כאתֹּם וָיֹשֶׁר יִצְּרוּנִי כִּי קִוִּיתִיךָ:כבפְּדֵה אֱלֹהִים אֶת יִשְׂרָאֵל מִכֹּל צָרוֹתָיו:
נקרא  2  פעמים
למעלה