הצילו.... 1.30 u.k., או שהכל בסדר?

  • הוסף לסימניות
  • #1
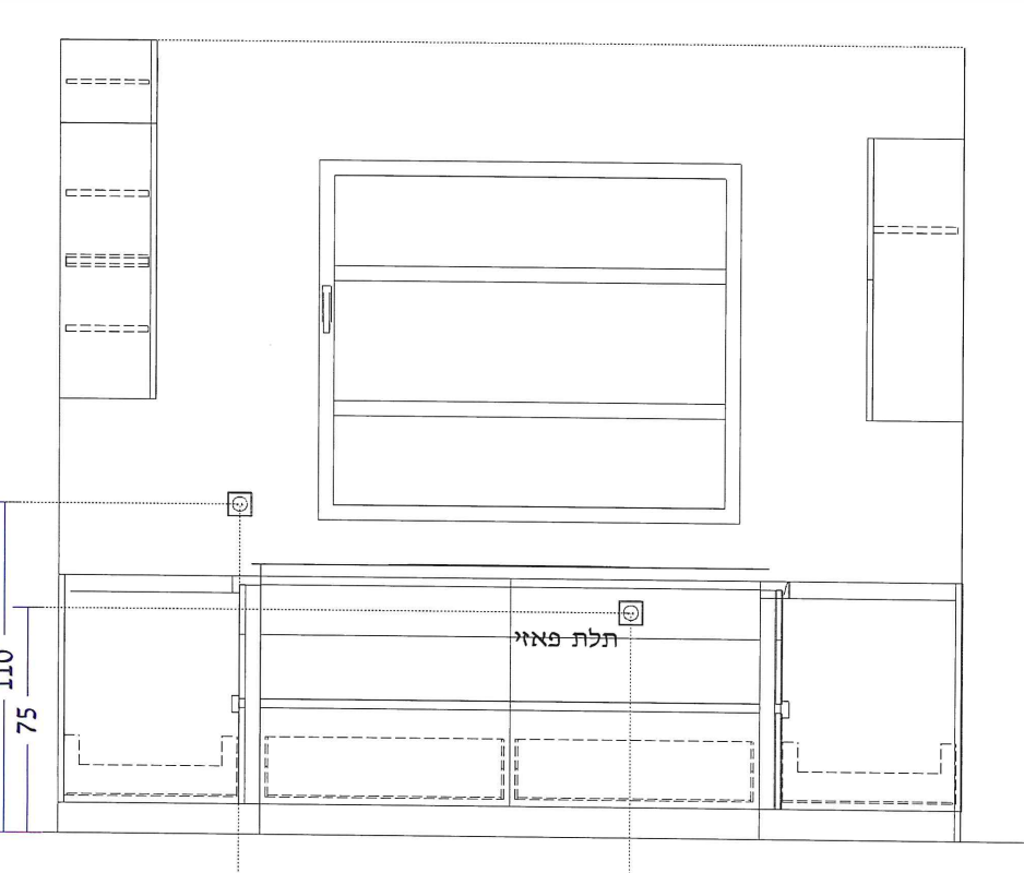
שלום, בתכנית המטבח, כיריים בחזית, ומעליהם חלון שאמור להכניס אור ואויר למטבח ומעבר לו...
הבעיה - בתכנון רשום שהחלון בגובה 1.15 מהריצוף (u.k.), בפועל הקבלן כבר עשה אותו בגובה 1.30 מהריצוף (כולל הסף לחלון).

לפרק את זה הזה הרבה בלגן וכסף (כבר עשו כיסים לחלונות, וטיח ושפריץ מבחוץ).

אין בחלון הזה הרבה מה לראות, והמטרה היא אור ואויר. אבל עדיין זה ממש גבוה. אולי זה יהיה נראה חריג, וגם הגישה לחלון הזה תהיה קשה ממש (למרות שבכל מקרה יש שיש וכיריים מפרידים).

שוה לפרק או שזה יהיה לא נורא ??







1701082618901.png
1701082640996.png
 
  • הוסף לסימניות
  • #2
מה שוודאי שווה, זה לעשות לקבלן דרמות
כאילו אין מה לדבר והוא חייב לפרק ולעשות הכל מחדש
גם אם תחליטו לוותר בסוף, שיהיה ברור לו שבאתם לקראתו בצורה סופר משמעותית
שעל כל פרצוף שהוא יעשה בעתיד על משהו, תציעו לו אולי הוא רוצה בכל זאת לתקן את החלון במטבח
 
  • הוסף לסימניות
  • #3
מה שב @בעצם... אמר/ה
ולגופו של עניין, דווקא בגלל שזה במטבח יכול להיות שזה אפילו לטובה
כך החלון פחות יתלכלך
ולא נורא בכלל שהוא לא בקו של כל החלונות האחרים
שיפוץ קל ומשמח!
 
  • הוסף לסימניות
  • #5
  • הוסף לסימניות
  • #6
אצלי יש 3 חלונות יחסית צרים לאורך כמעט כל השיש
הם מתחילים בגובה 1.40 מהרצפה (ברוטו, כלומר המסגרת אלומיניום מתחילה שם)
שיש גוב 90 + 50 ס"מ קרמיקה
באמת לא ממש רואים החוצה אבל בשביל אור ואוורור זה בסדר גמור
 
  • הוסף לסימניות
  • #7
מבחינת הפרקטיות של השימוש,
תזמינו חלון עם ידית נמוכה, ולא באמצע החלון, על מנת שיהיה לכם גישה נוחה לידית גם כשאתם במרחק בגלל השיש.
 
  • הוסף לסימניות
  • #9
לדעתי עדיף גבוה דווקא בגלל שהחלון נמצא מעל הכיריים. כך יהיו פחות סיכויים שהרוח תכבה את האש.
דבר נוסף, נראה בפריסה שהחלון מתוכנן בפתיחה צירית? אם כך, לא מומלץ. כנף החלון בפתיחתה "תגרוף" את הנמצא על השיש/כיריים. נכון לבצע חלון דרייקיפ/2 כנפיים נגררות (כנף על כנף).
בהצלחה.
 
  • הוסף לסימניות
  • #11

פרוגבוט

תוכן שיווקי
פרסומת

הצטרפות לניוזלטר

איזה כיף שהצטרפתם לניוזלטר שלנו!

מעכשיו, תהיו הראשונים לקבל את כל העדכונים, החדשות, ההפתעות בלעדיות, והתכנים הכי חמים שלנו בפרוג!

לוח מודעות

הפרק היומי

הפרק היומי! כל ערב פרק תהילים חדש. הצטרפו אלינו לקריאת תהילים משותפת!


תהילים פרק כה

אלְדָוִד אֵלֶיךָ יי נַפְשִׁי אֶשָּׂא:באֱלֹהַי בְּךָ בָטַחְתִּי אַל אֵבוֹשָׁה אַל יַעַלְצוּ אֹיְבַי לִי:גגַּם כָּל קוֶֹיךָ לֹא יֵבֹשׁוּ יֵבֹשׁוּ הַבּוֹגְדִים רֵיקָם:דדְּרָכֶיךָ יי הוֹדִיעֵנִי אֹרְחוֹתֶיךָ לַמְּדֵנִי:ההַדְרִיכֵנִי בַאֲמִתֶּךָ וְלַמְּדֵנִי כִּי אַתָּה אֱלֹהֵי יִשְׁעִי אוֹתְךָ קִוִּיתִי כָּל הַיּוֹם:וזְכֹר רַחֲמֶיךָ יי וַחֲסָדֶיךָ כִּי מֵעוֹלָם הֵמָּה:זחַטֹּאות נְעוּרַי וּפְשָׁעַי אַל תִּזְכֹּר כְּחַסְדְּךָ זְכָר לִי אַתָּה לְמַעַן טוּבְךָ יי:חטוֹב וְיָשָׁר יי עַל כֵּן יוֹרֶה חַטָּאִים בַּדָּרֶךְ:טיַדְרֵךְ עֲנָוִים בַּמִּשְׁפָּט וִילַמֵּד עֲנָוִים דַּרְכּוֹ:יכָּל אָרְחוֹת יי חֶסֶד וֶאֱמֶת לְנֹצְרֵי בְרִיתוֹ וְעֵדֹתָיו:יאלְמַעַן שִׁמְךָ יי וְסָלַחְתָּ לַעֲוֹנִי כִּי רַב הוּא:יבמִי זֶה הָאִישׁ יְרֵא יי יוֹרֶנּוּ בְּדֶרֶךְ יִבְחָר:יגנַפְשׁוֹ בְּטוֹב תָּלִין וְזַרְעוֹ יִירַשׁ אָרֶץ:ידסוֹד יי לִירֵאָיו וּבְרִיתוֹ לְהוֹדִיעָם:טועֵינַי תָּמִיד אֶל יי כִּי הוּא יוֹצִיא מֵרֶשֶׁת רַגְלָי:טזפְּנֵה אֵלַי וְחָנֵּנִי כִּי יָחִיד וְעָנִי אָנִי:יזצָרוֹת לְבָבִי הִרְחִיבוּ מִמְּצוּקוֹתַי הוֹצִיאֵנִי:יחרְאֵה עָנְיִי וַעֲמָלִי וְשָׂא לְכָל חַטֹּאותָי:יטרְאֵה אוֹיְבַי כִּי רָבּוּ וְשִׂנְאַת חָמָס שְׂנֵאוּנִי:כשָׁמְרָה נַפְשִׁי וְהַצִּילֵנִי אַל אֵבוֹשׁ כִּי חָסִיתִי בָךְ:כאתֹּם וָיֹשֶׁר יִצְּרוּנִי כִּי קִוִּיתִיךָ:כבפְּדֵה אֱלֹהִים אֶת יִשְׂרָאֵל מִכֹּל צָרוֹתָיו:
נקרא  2  פעמים
למעלה