אדריכלות התייעצות /תוכנית קומת קרקע בוילת יוקרה

  • הוסף לסימניות
  • #1
אני באמצע תוכניות להיתר עבור בניית וילה במושב יוקרתי סמוך לירושלים, מסתפק קצת לגבי התוכניות, אשמח לשמוע מחכמת ההמונים.
דגשים:
הבית לא מיועד למגורים עבורי, מתכוון למכור לאחר סיום היתר או לאחר בניית שלד.

ע"פ הערכת שמאי מחיר הבית בסיום בניה הוא 9 מיליון, כך שהרוכשים הפונטציאלים שלי הם אוכלוסיה חילונית עשירה, מה שאומר שצריך להשקיע ביוקרה ובנראות של הבית, ואין טעם במיליון חדרים כי גם ככה זה לא אוכלוסיה מרובת ילדים.

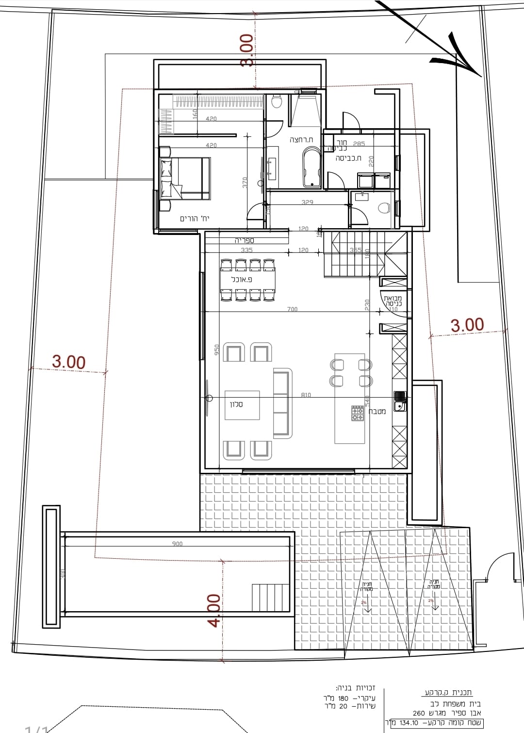
כרגע בעיקר מסתפק לגבי העמדה של הבריכה בקומת קרקע [מצורף 2 האופציות]
אם למישהו יש הערות/הארות נוספות אשמח להחכים.
נ.ב החזית פונה לכיוון הנוף
 

קבצים מצורפים

  • אופציה 1-בריכה בצד.jpeg
    אופציה 1-בריכה בצד.jpeg
    KB 134.7 · צפיות: 98
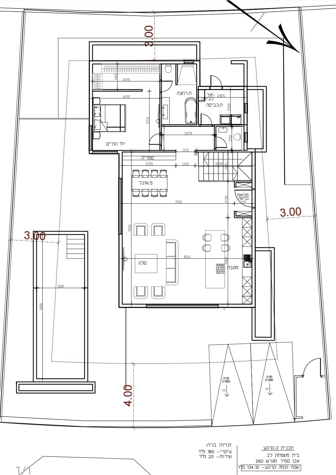
  • אופציה 2-בריכה בחזית.jpeg
    אופציה 2-בריכה בחזית.jpeg
    KB 157.1 · צפיות: 104
  • הוסף לסימניות
  • #2
אני באמצע תוכניות להיתר עבור בניית וילה במושב יוקרתי סמוך לירושלים, מסתפק קצת לגבי התוכניות, אשמח לשמוע מחכמת ההמונים.
נ.ב החזית פונה לכיוון הנוף
סה"כ בית מתוכנן סביר --אבל אם מדובר במיזם יוקרתי --מניסיון ---הייתי מציע להתיחס לנ"ל
למרות שהחזית פונה לנוף --זו טעות לדעתי למקם את הבריכה בכניסה לבית ליד החניות הפילרים וכ"ו --- יותר נכון
להפוך את הבית שהסלון יפנה אחורה לחצר פנימית ושם תמוקם הבריכה -- זה "ראש " של בית יוקרתי
במקרה הנ"ל החזית האחורית מיותמת לחלוטין -- חבל לא לנצל את המגרש שיחיה עם הבית
ואם צריך בדיעבד לשקול בין 2 האופציות -- אז ברור לי
1- שהבריכה צריכה להיות בצד ואולי קצת לקחת אחורה אם אפשר --- גם כדאי לבדוק בחוק אם המיקום חוקי ממבחינת קוי בניין ומרחק מגבולות -- כבר יותר משנה בוטלו הקלות מקלות בעניין
2- יש גם דרישה בחוק לגדר את הבריכה וצריך לחשוב גם על זה --- מצוב פיתרון אפשרי
3- חלונות --סימנתי בכחול איפה נכון לדעתי
4- יח" הורית -- אומנם מרווחת אבל מתוכננת די סתמי -- מציע לחשוב על משהו יותר מתאים --חלון שלא יהיה במקלחון
ואפשר למצוא סידור -- יותר אטרקטיבי
5- מציע בשירותים כביסה וכ"ו -- קצת להגדיל חלונות אם אפשר
6- גם בכניסה לבית --משהו לא מסתדר לי עם השער כניסה והחניה -- בדר"כ החניות צמודות לגדר והשער משמאל
7- המדרגות מתוכננות לא תקין --- חייבים לפי חוק --לתת משטח מנוחה לאחר 16 מדרגות -- וגם מדרגות משולשות
לא תקני {שטח אפור } ולא עובר בהרבה ועדות --ובלי שום קשר לא מוצדק בבית יוקרה
8 -- הייתי גם מציע שאם יש מרתף -- אז לתת אופציה חכמה --לגישה מבחוץ --לצורך יח"ד נוספת -- משרד --וכ"ו
זה משהו שמוכר עם הרבה ערך מוסף לדירה
9- בהצלחה
 

קבצים מצורפים

  • אופציה 1-בריכה בצד.jpeg
    אופציה 1-בריכה בצד.jpeg
    KB 271.5 · צפיות: 59
  • הוסף לסימניות
  • #3
סה"כ בית מתוכנן סביר --אבל אם מדובר במיזם יוקרתי --מניסיון ---הייתי מציע להתיחס לנ"ל
למרות שהחזית פונה לנוף --זו טעות לדעתי למקם את הבריכה בכניסה לבית ליד החניות הפילרים וכ"ו --- יותר נכון
להפוך את הבית שהסלון יפנה אחורה לחצר פנימית ושם תמוקם הבריכה -- זה "ראש " של בית יוקרתי
במקרה הנ"ל החזית האחורית מיותמת לחלוטין -- חבל לא לנצל את המגרש שיחיה עם הבית
ואם צריך בדיעבד לשקול בין 2 האופציות -- אז ברור לי
1- שהבריכה צריכה להיות בצד ואולי קצת לקחת אחורה אם אפשר --- גם כדאי לבדוק בחוק אם המיקום חוקי ממבחינת קוי בניין ומרחק מגבולות -- כבר יותר משנה בוטלו הקלות מקלות בעניין
2- יש גם דרישה בחוק לגדר את הבריכה וצריך לחשוב גם על זה --- מצוב פיתרון אפשרי
3- חלונות --סימנתי בכחול איפה נכון לדעתי
4- יח" הורית -- אומנם מרווחת אבל מתוכננת די סתמי -- מציע לחשוב על משהו יותר מתאים --חלון שלא יהיה במקלחון
ואפשר למצוא סידור -- יותר אטרקטיבי
5- מציע בשירותים כביסה וכ"ו -- קצת להגדיל חלונות אם אפשר
6- גם בכניסה לבית --משהו לא מסתדר לי עם השער כניסה והחניה -- בדר"כ החניות צמודות לגדר והשער משמאל
7- המדרגות מתוכננות לא תקין --- חייבים לפי חוק --לתת משטח מנוחה לאחר 16 מדרגות -- וגם מדרגות משולשות
לא תקני {שטח אפור } ולא עובר בהרבה ועדות --ובלי שום קשר לא מוצדק בבית יוקרה
8 -- הייתי גם מציע שאם יש מרתף -- אז לתת אופציה חכמה --לגישה מבחוץ --לצורך יח"ד נוספת -- משרד --וכ"ו
זה משהו שמוכר עם הרבה ערך מוסף לדירה
9- בהצלחה
תודה רבה על המענה המפורט!!
החניות הם בתת קרקע, המגרש נמצא בטופגורפיה עולה והחניות נמצאות על קו הרחוב, כך שגם אם הבריכה תהיה מקדימה היא לא תהיה ליד חניה.
1. מבחינת קוי בניין, ההקלות בוטלו אך בוועדה הספציפית הזו כבר הסיפקו להעביר תב"ע מיוחדת לבריכות.
2. אוקיי
3. לגבי החלונות, השאלה אם מומלץ לחלק לשנים את החלון, חשבתי עדיף חלון אחד ארוך כדי שיהיה פנורמי לנוף.
4.מה עוד יש לשפר ביחידת הורים מלבד החלון?
5. קיבלתי
6. זהו, המגרש בטפגורפיה עולה, זה מה שהתבע מאפשרת.
7. מה הכוונה מדרגות משולשות?
8. יש מרתף, רשמית 30 מ"ר היתר, מעשית רוצה בערך 180 מ"ר, הכניסה דרך החניה המקורה כדי לא לפגוע בבית עצמו, יש לך עוד פיתרון?
9. תודה רבה!!
 
  • הוסף לסימניות
  • #4
תודה רבה על המענה המפורט!!
החניות הם בתת קרקע, המגרש נמצא בטופגורפיה עולה והחניות נמצאות על קו הרחוב, כך שגם אם הבריכה תהיה מקדימה היא לא תהיה ליד חניה.
אכן משנה את ההתיחסות לגמרי --צריך רוח הקדש כדי להבין את זה --אם בתוכנית היו מדרגות עליה לבית היה יותר קל לנחש --
1. מבחינת קוי בניין, ההקלות בוטלו אך בוועדה הספציפית הזו כבר הסיפקו להעביר תב"ע מיוחדת לבריכות.
מצוין -- קח בחשבון שחובה --לעשות בחזית איזה פרגולה -- ובמקום שנשאר תעשה בריכה
3. לגבי החלונות, השאלה אם מומלץ לחלק לשנים את החלון, חשבתי עדיף חלון אחד ארוך כדי שיהיה פנורמי לנוף.
זה לא משנה אותו אפקט --זה שיקולים של האדריכל/ית במבינת הנראות של הבית ותכנון פנים
4.מה עוד יש לשפר ביחידת הורים מלבד החלון?
מצוב --תכנון חדר הורים בבית בסביון שתכננתי לפני כמה שנים מאוד דומה לקונספציה שלכם
תראה מה אפשר ללמוד מזה
7. מה הכוונה מדרגות משולשות?
אחרי שעולים 9 מדרגות יש 4 מדרגות משולשות -- זה אמור להיות משטח {פודסט } חלק
תשוה לתמונה שצרפתי -- גם המדרגות מאוד דומות
8. יש מרתף, רשמית 30 מ"ר היתר, מעשית רוצה בערך 180 מ"ר, הכניסה דרך החניה המקורה כדי לא לפגוע בבית עצמו, יש לך עוד פיתרון?
ואני מבין שהמלבן שרואים מאחורי המטבח --הוא המעבר למרתף -- לא אהבתי את הפיתרון הזה כלכך
יותר יפה היה אם המרתף היה ממש צמוד לחניה -- אין לי מה להציע בנתונים הקיימים
 

קבצים מצורפים

  • תוכניות סביון - עותק.jpg
    תוכניות סביון - עותק.jpg
    KB 72.6 · צפיות: 45

פרוגבוט

תוכן שיווקי
פרסומת

הצטרפות לניוזלטר

איזה כיף שהצטרפתם לניוזלטר שלנו!

מעכשיו, תהיו הראשונים לקבל את כל העדכונים, החדשות, ההפתעות בלעדיות, והתכנים הכי חמים שלנו בפרוג!

לוח מודעות

הפרק היומי

הפרק היומי! כל ערב פרק תהילים חדש. הצטרפו אלינו לקריאת תהילים משותפת!


תהילים פרק כה

אלְדָוִד אֵלֶיךָ יי נַפְשִׁי אֶשָּׂא:באֱלֹהַי בְּךָ בָטַחְתִּי אַל אֵבוֹשָׁה אַל יַעַלְצוּ אֹיְבַי לִי:גגַּם כָּל קוֶֹיךָ לֹא יֵבֹשׁוּ יֵבֹשׁוּ הַבּוֹגְדִים רֵיקָם:דדְּרָכֶיךָ יי הוֹדִיעֵנִי אֹרְחוֹתֶיךָ לַמְּדֵנִי:ההַדְרִיכֵנִי בַאֲמִתֶּךָ וְלַמְּדֵנִי כִּי אַתָּה אֱלֹהֵי יִשְׁעִי אוֹתְךָ קִוִּיתִי כָּל הַיּוֹם:וזְכֹר רַחֲמֶיךָ יי וַחֲסָדֶיךָ כִּי מֵעוֹלָם הֵמָּה:זחַטֹּאות נְעוּרַי וּפְשָׁעַי אַל תִּזְכֹּר כְּחַסְדְּךָ זְכָר לִי אַתָּה לְמַעַן טוּבְךָ יי:חטוֹב וְיָשָׁר יי עַל כֵּן יוֹרֶה חַטָּאִים בַּדָּרֶךְ:טיַדְרֵךְ עֲנָוִים בַּמִּשְׁפָּט וִילַמֵּד עֲנָוִים דַּרְכּוֹ:יכָּל אָרְחוֹת יי חֶסֶד וֶאֱמֶת לְנֹצְרֵי בְרִיתוֹ וְעֵדֹתָיו:יאלְמַעַן שִׁמְךָ יי וְסָלַחְתָּ לַעֲוֹנִי כִּי רַב הוּא:יבמִי זֶה הָאִישׁ יְרֵא יי יוֹרֶנּוּ בְּדֶרֶךְ יִבְחָר:יגנַפְשׁוֹ בְּטוֹב תָּלִין וְזַרְעוֹ יִירַשׁ אָרֶץ:ידסוֹד יי לִירֵאָיו וּבְרִיתוֹ לְהוֹדִיעָם:טועֵינַי תָּמִיד אֶל יי כִּי הוּא יוֹצִיא מֵרֶשֶׁת רַגְלָי:טזפְּנֵה אֵלַי וְחָנֵּנִי כִּי יָחִיד וְעָנִי אָנִי:יזצָרוֹת לְבָבִי הִרְחִיבוּ מִמְּצוּקוֹתַי הוֹצִיאֵנִי:יחרְאֵה עָנְיִי וַעֲמָלִי וְשָׂא לְכָל חַטֹּאותָי:יטרְאֵה אוֹיְבַי כִּי רָבּוּ וְשִׂנְאַת חָמָס שְׂנֵאוּנִי:כשָׁמְרָה נַפְשִׁי וְהַצִּילֵנִי אַל אֵבוֹשׁ כִּי חָסִיתִי בָךְ:כאתֹּם וָיֹשֶׁר יִצְּרוּנִי כִּי קִוִּיתִיךָ:כבפְּדֵה אֱלֹהִים אֶת יִשְׂרָאֵל מִכֹּל צָרוֹתָיו:
נקרא  2  פעמים
למעלה