עיצוב פנים התיעצות בחלוקת חלל

  • הוסף לסימניות
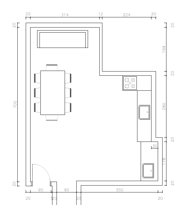
  • #1
צריכה בבקשה יעוץ
צריכה להכניס פה ספריה+ שולחן אוכל/אי ל4 אנשים + ארונות גבוהים(מקרר ותנור מינימום)
אשמח לרעיונות איך אני עושה את זה ועדין משאירה חלל סביר
היה קיר קטן בין הסלון למטבח שהורדתי, המטבח קיים, מעדיפה כמה שפחות שינויים
מדובר בסקיצה מינימלית, יש חלון גדול היכן שהספה עומדת ומאחורי הארונות מטבח
תודה רבה
1736723164971.png
 
  • הוסף לסימניות
  • #2
מה עם לשים את הגבוהים בנישה של ה178 ?
תרוויחי קו אחיד ויפה
להמשיך את השיש בר' עד הסוף
וממול הגבוהים אי
 
  • הוסף לסימניות
  • #3
מה עם לשים את הגבוהים בנישה של ה178 ?
תרוויחי קו אחיד ויפה
להמשיך את השיש בר' עד הסוף
וממול הגבוהים אי
מיד קפץ לי בעין השיש ב 2 עומקים
קיר גבוהים באמת יכול לפתור את המדרגה
חושבת שצריך בדירה כ"כ קטנה שולחן במטבח בנוסף לפינת אוכל?
אפשר לקרב את השולחן לאזור המטבח ואז יהיה לך קיר פנוי לספריה
אם החלון בסלון לא על כל הקיר עדיף שם
בהצלחה!
 
  • הוסף לסימניות
  • #5
יש עוד אופציות,
משהו מינימלי
1736725070336.png


1736725375269.png

באופציה השניה ליישר את השיש, ולעשות אחסון ב20 ס"מ מאחורה- מדפים
 
נערך לאחרונה ב:
  • הוסף לסימניות
  • #7

פרוגבוט

תוכן שיווקי
פרסומת

הצטרפות לניוזלטר

איזה כיף שהצטרפתם לניוזלטר שלנו!

מעכשיו, תהיו הראשונים לקבל את כל העדכונים, החדשות, ההפתעות בלעדיות, והתכנים הכי חמים שלנו בפרוג!

לוח מודעות

הפרק היומי

הפרק היומי! כל ערב פרק תהילים חדש. הצטרפו אלינו לקריאת תהילים משותפת!


תהילים פרק כה

אלְדָוִד אֵלֶיךָ יי נַפְשִׁי אֶשָּׂא:באֱלֹהַי בְּךָ בָטַחְתִּי אַל אֵבוֹשָׁה אַל יַעַלְצוּ אֹיְבַי לִי:גגַּם כָּל קוֶֹיךָ לֹא יֵבֹשׁוּ יֵבֹשׁוּ הַבּוֹגְדִים רֵיקָם:דדְּרָכֶיךָ יי הוֹדִיעֵנִי אֹרְחוֹתֶיךָ לַמְּדֵנִי:ההַדְרִיכֵנִי בַאֲמִתֶּךָ וְלַמְּדֵנִי כִּי אַתָּה אֱלֹהֵי יִשְׁעִי אוֹתְךָ קִוִּיתִי כָּל הַיּוֹם:וזְכֹר רַחֲמֶיךָ יי וַחֲסָדֶיךָ כִּי מֵעוֹלָם הֵמָּה:זחַטֹּאות נְעוּרַי וּפְשָׁעַי אַל תִּזְכֹּר כְּחַסְדְּךָ זְכָר לִי אַתָּה לְמַעַן טוּבְךָ יי:חטוֹב וְיָשָׁר יי עַל כֵּן יוֹרֶה חַטָּאִים בַּדָּרֶךְ:טיַדְרֵךְ עֲנָוִים בַּמִּשְׁפָּט וִילַמֵּד עֲנָוִים דַּרְכּוֹ:יכָּל אָרְחוֹת יי חֶסֶד וֶאֱמֶת לְנֹצְרֵי בְרִיתוֹ וְעֵדֹתָיו:יאלְמַעַן שִׁמְךָ יי וְסָלַחְתָּ לַעֲוֹנִי כִּי רַב הוּא:יבמִי זֶה הָאִישׁ יְרֵא יי יוֹרֶנּוּ בְּדֶרֶךְ יִבְחָר:יגנַפְשׁוֹ בְּטוֹב תָּלִין וְזַרְעוֹ יִירַשׁ אָרֶץ:ידסוֹד יי לִירֵאָיו וּבְרִיתוֹ לְהוֹדִיעָם:טועֵינַי תָּמִיד אֶל יי כִּי הוּא יוֹצִיא מֵרֶשֶׁת רַגְלָי:טזפְּנֵה אֵלַי וְחָנֵּנִי כִּי יָחִיד וְעָנִי אָנִי:יזצָרוֹת לְבָבִי הִרְחִיבוּ מִמְּצוּקוֹתַי הוֹצִיאֵנִי:יחרְאֵה עָנְיִי וַעֲמָלִי וְשָׂא לְכָל חַטֹּאותָי:יטרְאֵה אוֹיְבַי כִּי רָבּוּ וְשִׂנְאַת חָמָס שְׂנֵאוּנִי:כשָׁמְרָה נַפְשִׁי וְהַצִּילֵנִי אַל אֵבוֹשׁ כִּי חָסִיתִי בָךְ:כאתֹּם וָיֹשֶׁר יִצְּרוּנִי כִּי קִוִּיתִיךָ:כבפְּדֵה אֱלֹהִים אֶת יִשְׂרָאֵל מִכֹּל צָרוֹתָיו:
נקרא  2  פעמים
למעלה