לא סתם עוד אחד !
משתמש חדש
- הוסף לסימניות
- #1
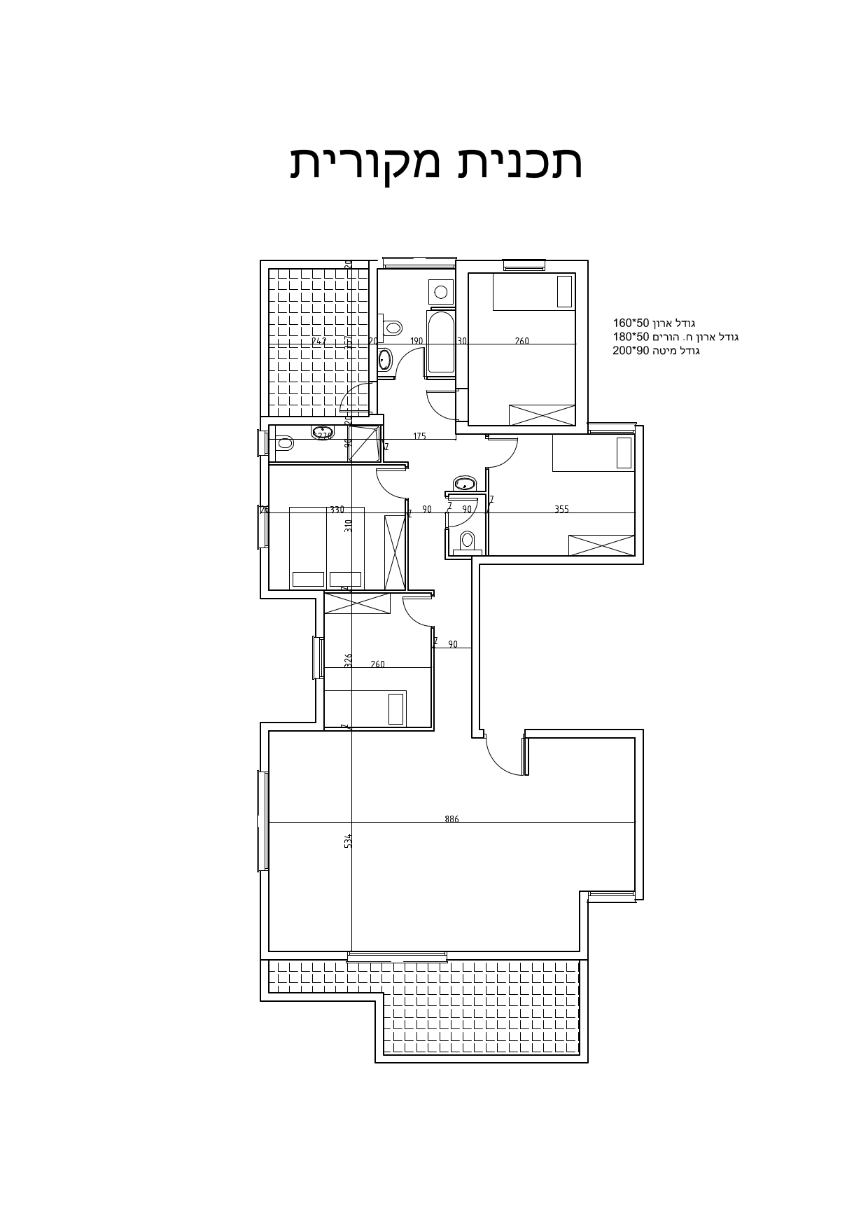
שלום וברכה קניתי דירת 5 חדרים חדשה מקבלן, יש לי אופציה לספק תוכנית חלוקה חלופית.
הדברים העיקריים שהפריעו בחלוקת הקבלן הם :
1. פרוזדור מתעקל (שגוזל גם שטח).
2. יחידת הורים קטנה מאוד (רוחב 90).
כדי לפתור את הבעיות הנ"ל מיקמתי מחדש את שירותי האורחים על חשבון החדר שמאחוריו (ונוצר ממנו כמין צורת ר') והעברתי את פינת נטילת הידיים למול השירותים.
מה דעתכם ?
א' האם תכנית 1/2 טובה יותר מחלוקת הקבלן ?
ב' האם ישנן אופציות טובות יותר ?
ג' האם ישנן דברים נוספים שאפשר לשפר בחלוקת הדירה ?
תודה רבה לכל המשתתפים
צפה בקובץ המצורף 1580258
הדברים העיקריים שהפריעו בחלוקת הקבלן הם :
1. פרוזדור מתעקל (שגוזל גם שטח).
2. יחידת הורים קטנה מאוד (רוחב 90).
כדי לפתור את הבעיות הנ"ל מיקמתי מחדש את שירותי האורחים על חשבון החדר שמאחוריו (ונוצר ממנו כמין צורת ר') והעברתי את פינת נטילת הידיים למול השירותים.
מה דעתכם ?
א' האם תכנית 1/2 טובה יותר מחלוקת הקבלן ?
ב' האם ישנן אופציות טובות יותר ?
ג' האם ישנן דברים נוספים שאפשר לשפר בחלוקת הדירה ?
תודה רבה לכל המשתתפים
קבצים מצורפים
נערך לאחרונה ב:
הנושאים החמים