עיצוב עזרה בהעמדת ריהוט סלון

  • הוסף לסימניות
  • #1
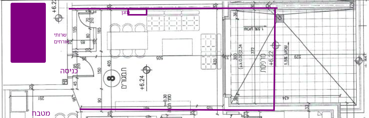
חלק משרטוט הבית.
החלק המסומן בשחור הוא הסלון - אורך 8 מטר על 4 מטר
בגלל ההרחבה על חשבון המרפסת יש עמודים אחרי כ - 180 משמאל
אשמח לעזרה ובהעמדת ריהוט ספות (עדיפות לספת 3 וכורסה), שולחן וספריה של 2 עמודות + פס ויטרינה

תודה!
1748160134311.png
 
  • הוסף לסימניות
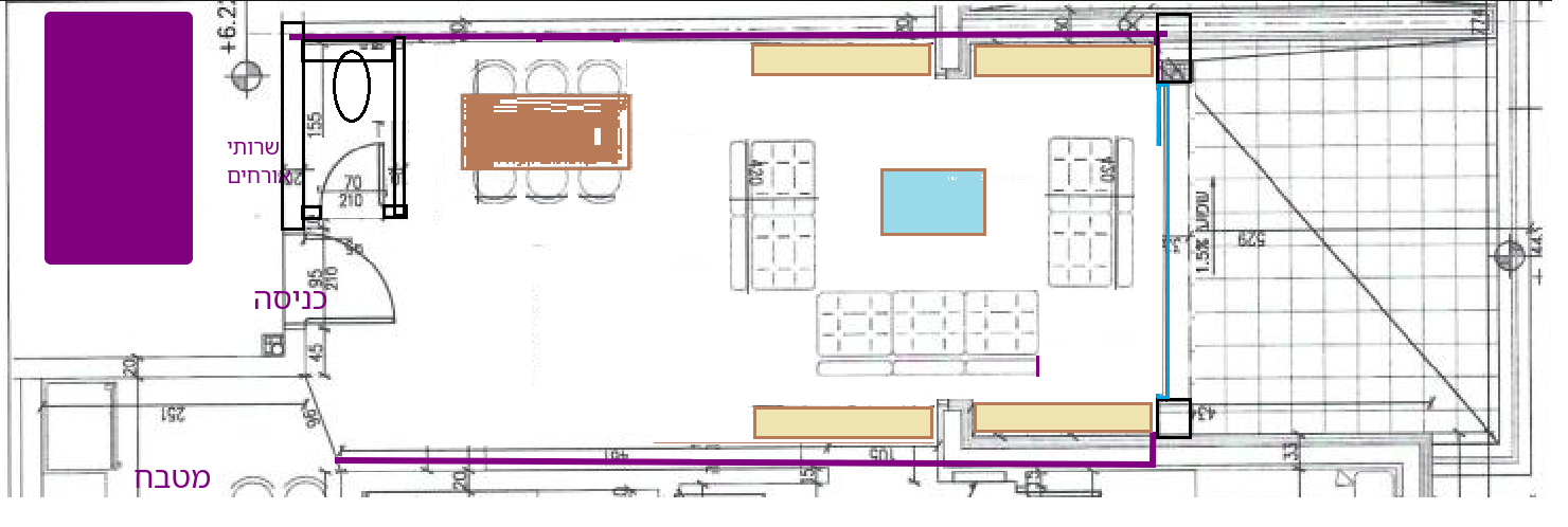
  • #3
העמודים האלה קצת מעצבנים כי הם תקועים -- מציע משהו לשיקולכם --ואולי יש עוד אופציות
גם מציע שינוי בדלת לשירותי אורחים

1748160134311.png
 
  • הוסף לסימניות
  • #4
מקפיצה לעוד רעיונות.
תודה
 
  • הוסף לסימניות
  • #6
מציינת שיש נוף לכיוון המרפסת.
אפשר לשנות גם את ענין הספות. לא רכשנו עדין.
 
  • הוסף לסימניות
  • #7
סלון גדול זה נפלא אבל שרותים על דלת הכניסה לא כ"כ נפלא.
הייתי מקטינה על חשבון שרותי אורחים עם פינת נטילה
סלון בהרחבה.PNG
 
  • הוסף לסימניות
  • #8
דלת הכניסה מימין. כבר בנוי.. נישה מגבס?
1748198880086.png
 
  • הוסף לסימניות
  • #9
אולי להזיז את השולחן לצד ימין (לפני העמודים)
 
  • הוסף לסימניות
  • #10
הכניסה לחדרים מפה.
1748340755828.png
 

פרוגבוט

תוכן שיווקי
פרסומת

הצטרפות לניוזלטר

איזה כיף שהצטרפתם לניוזלטר שלנו!

מעכשיו, תהיו הראשונים לקבל את כל העדכונים, החדשות, ההפתעות בלעדיות, והתכנים הכי חמים שלנו בפרוג!

לוח מודעות

הפרק היומי

הפרק היומי! כל ערב פרק תהילים חדש. הצטרפו אלינו לקריאת תהילים משותפת!


תהילים פרק כה

אלְדָוִד אֵלֶיךָ יי נַפְשִׁי אֶשָּׂא:באֱלֹהַי בְּךָ בָטַחְתִּי אַל אֵבוֹשָׁה אַל יַעַלְצוּ אֹיְבַי לִי:גגַּם כָּל קוֶֹיךָ לֹא יֵבֹשׁוּ יֵבֹשׁוּ הַבּוֹגְדִים רֵיקָם:דדְּרָכֶיךָ יי הוֹדִיעֵנִי אֹרְחוֹתֶיךָ לַמְּדֵנִי:ההַדְרִיכֵנִי בַאֲמִתֶּךָ וְלַמְּדֵנִי כִּי אַתָּה אֱלֹהֵי יִשְׁעִי אוֹתְךָ קִוִּיתִי כָּל הַיּוֹם:וזְכֹר רַחֲמֶיךָ יי וַחֲסָדֶיךָ כִּי מֵעוֹלָם הֵמָּה:זחַטֹּאות נְעוּרַי וּפְשָׁעַי אַל תִּזְכֹּר כְּחַסְדְּךָ זְכָר לִי אַתָּה לְמַעַן טוּבְךָ יי:חטוֹב וְיָשָׁר יי עַל כֵּן יוֹרֶה חַטָּאִים בַּדָּרֶךְ:טיַדְרֵךְ עֲנָוִים בַּמִּשְׁפָּט וִילַמֵּד עֲנָוִים דַּרְכּוֹ:יכָּל אָרְחוֹת יי חֶסֶד וֶאֱמֶת לְנֹצְרֵי בְרִיתוֹ וְעֵדֹתָיו:יאלְמַעַן שִׁמְךָ יי וְסָלַחְתָּ לַעֲוֹנִי כִּי רַב הוּא:יבמִי זֶה הָאִישׁ יְרֵא יי יוֹרֶנּוּ בְּדֶרֶךְ יִבְחָר:יגנַפְשׁוֹ בְּטוֹב תָּלִין וְזַרְעוֹ יִירַשׁ אָרֶץ:ידסוֹד יי לִירֵאָיו וּבְרִיתוֹ לְהוֹדִיעָם:טועֵינַי תָּמִיד אֶל יי כִּי הוּא יוֹצִיא מֵרֶשֶׁת רַגְלָי:טזפְּנֵה אֵלַי וְחָנֵּנִי כִּי יָחִיד וְעָנִי אָנִי:יזצָרוֹת לְבָבִי הִרְחִיבוּ מִמְּצוּקוֹתַי הוֹצִיאֵנִי:יחרְאֵה עָנְיִי וַעֲמָלִי וְשָׂא לְכָל חַטֹּאותָי:יטרְאֵה אוֹיְבַי כִּי רָבּוּ וְשִׂנְאַת חָמָס שְׂנֵאוּנִי:כשָׁמְרָה נַפְשִׁי וְהַצִּילֵנִי אַל אֵבוֹשׁ כִּי חָסִיתִי בָךְ:כאתֹּם וָיֹשֶׁר יִצְּרוּנִי כִּי קִוִּיתִיךָ:כבפְּדֵה אֱלֹהִים אֶת יִשְׂרָאֵל מִכֹּל צָרוֹתָיו:
נקרא  2  פעמים
למעלה