אדריכלות עזרה בעיצוב הבית

  • הוסף לסימניות
  • #1
אנחנו עומדים לפני שיפוץ ויש לנו בגדול את התוכנית הרצויה היינו שם עם הקבלן שיפוצים וגם איש מטבחים.
יש לנו ספק קטן לגבי יצירת חדר שירות. ותוספת שירותים בקומה הראשונה.
אני מצרף את התוכנית של שתי הקומות ואשמח לקבל הצעת מחיר.
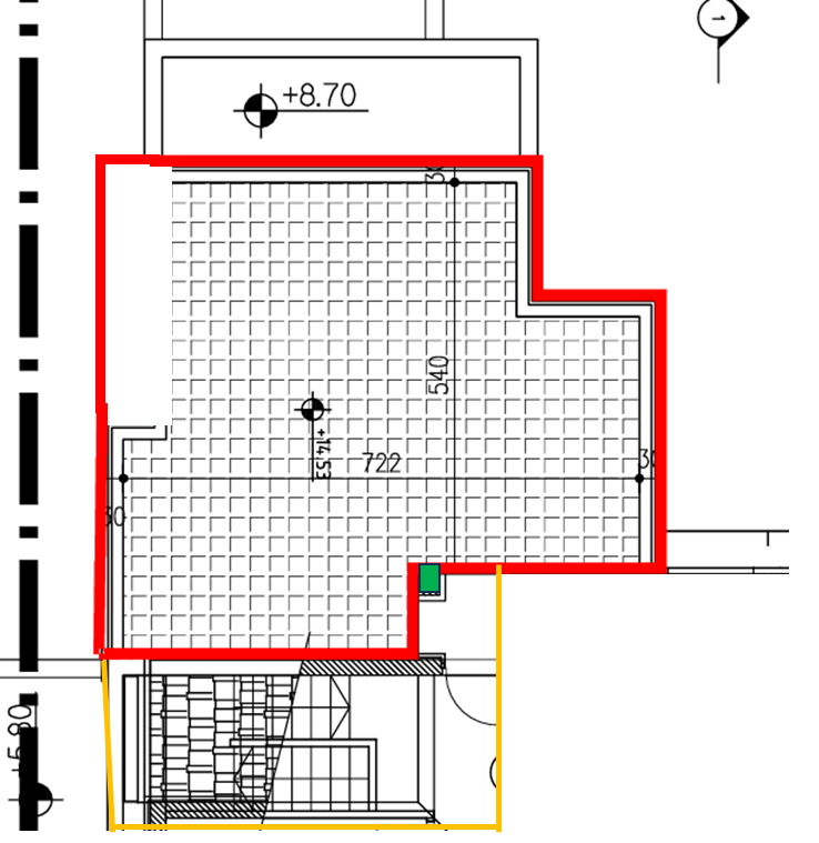
מדובר על דירה מספר 4.
קומה 1
בקומה הראשונה משנים את המטבח ממש לכניסה לבית.
המטבח שנמצא היום מבוטל כי אנחנו פותחים שם קיר (ויטרינה גדולה ליציאה לגינה) הקיר הימני של חדר שינה מספר 3 נכנס עד לקו אפס עם החלון (חדר עבודה).
חדר שינה מספר 2 הופך ליחידת הורים מה שאומר שלא יהיו לנו שירותי אורחים הספק שלנו האם לבנות בצמוד לחדר העבודה שירותי אורחים. לא לכיוון הסלון אלא צמוד לדלת של חדר העבודה.

קומה 2
בקומה השנייה אנחנו רוצים לבטל את יחידת ההורים ולעשות את המקלחת שלה למקלחת קומתית ואת המקלחת הקיימת להפוך לחדר שירות גדול שיכלול מכונת כביסה מייבש תלייה לחולצות קרש גיהוץ וכו'.
כנראה שנצטרך להגדיל את החדר על חשבון החדר הסמוך. זו בגדול התוכנית נשמח לקבל עצות מחכימות
 

קבצים מצורפים

  • F07-D16-20160621תוכנית בנייה אדריכלית ל דגם D16.pdf
    4.9 MB · צפיות: 89
  • הוסף לסימניות
  • #2
אנחנו עומדים לפני שיפוץ ויש לנו בגדול את התוכנית הרצויה היינו שם עם הקבלן שיפוצים וגם איש מטבחים.
יש לנו ספק קטן לגבי יצירת חדר שירות. ותוספת שירותים בקומה הראשונה.
אני מצרף את התוכנית של שתי הקומות ואשמח לקבל הצעת מחיר.
מדובר על דירה מספר 4.
קומה 1
בקומה הראשונה משנים את המטבח ממש לכניסה לבית.
המטבח שנמצא היום מבוטל כי אנחנו פותחים שם קיר (ויטרינה גדולה ליציאה לגינה) הקיר הימני של חדר שינה מספר 3 נכנס עד לקו אפס עם החלון (חדר עבודה).
חדר שינה מספר 2 הופך ליחידת הורים מה שאומר שלא יהיו לנו שירותי אורחים הספק שלנו האם לבנות בצמוד לחדר העבודה שירותי אורחים. לא לכיוון הסלון אלא צמוד לדלת של חדר העבודה.

קומה 2
בקומה השנייה אנחנו רוצים לבטל את יחידת ההורים ולעשות את המקלחת שלה למקלחת קומתית ואת המקלחת הקיימת להפוך לחדר שירות גדול שיכלול מכונת כביסה מייבש תלייה לחולצות קרש גיהוץ וכו'.
כנראה שנצטרך להגדיל את החדר על חשבון החדר הסמוך. זו בגדול התוכנית נשמח לקבל עצות מחכימות
מוזמנים ליצור קשר בכתובת המייל שבחתימה ולגבי הצעת מחיר מותאמת ונכונה עבורכם.
 
  • הוסף לסימניות
  • #3
לדעתי חובה שירותי אורחים בקומה ראשונה.
כל אורח שירצה להיכנס לשירותים יעלה לקומת החדרים? או יכנס ליח"ה? לא הגיוני

מעבר לזה בנוגע לחלוקה לא אפשרי בעיניי לתת חו"ד בלי להבין את הפרוגרמה. מה המטרה שלכם בשינויים האלה, באיזה שלב אתם בחיים ועוד.

ברמה האישית לא הייתי מוותרת על חדר נוסף בבית עם יחידת שירותים ומקלחון.

בהצלחה רבה!
 
  • הוסף לסימניות
  • #4
מדובר על דירה מספר 4.
קומה 1
בקומה הראשונה משנים את המטבח ממש לכניסה לבית.
ראיתי את התוכנית --לדעתי מיקום לא נכון להעביר את המטבח --גם יקטין את הסלון וגם מטבח צר -- אולי למקם מיטבח במקום חדר 3 באיזה צורה -- ולהגדיל לכיוון הרחבה בין החדרים
חדר שינה מספר 2 הופך ליחידת הורים
רעיון נחמד -- וחייבים להגדיל כמו שהצעת
מה שאומר שלא יהיו לנו שירותי אורחים הספק שלנו האם לבנות בצמוד לחדר העבודה שירותי אורחים. לא לכיוון הסלון אלא צמוד לדלת של חדר העבודה.
אפשר לשים שירותי אורחים מתחת למדרגות בקטע הגבוה -- פיתרון מקובל
קומה 2
בקומה השנייה אנחנו רוצים לבטל את יחידת ההורים ולעשות את המקלחת שלה למקלחת קומתית ואת המקלחת הקיימת להפוך לחדר שירות גדול שיכלול מכונת כביסה מייבש תלייה לחולצות קרש גיהוץ וכו'.
החדר שרות יהיה גדול יחסית --והשירותים יהיו קטנים יחסית -
אבל זה רעיון טוב אם באמת נחוץ
 
  • הוסף לסימניות
  • #5
ראיתי את התוכנית --לדעתי מיקום לא נכון להעביר את המטבח --גם יקטין את הסלון וגם מטבח צר -- אולי למקם מיטבח במקום חדר 3 באיזה צורה -- ולהגדיל לכיוון הרחבה בין החדרים

רעיון נחמד -- וחייבים להגדיל כמו שהצעת

אפשר לשים שירותי אורחים מתחת למדרגות בקטע הגבוה -- פיתרון מקובל

החדר שרות יהיה גדול יחסית --והשירותים יהיו קטנים יחסית -
אבל זה רעיון טוב אם באמת נחוץ
אם נגדיל לכיוון הרחבה בין החדרים המטבח יהיה צמוד למדרגות גם יצמצם את המעבר וגם יורדים ישר לתוך מטבח קצת דחוק לדעתי.
והמקום היום לא שייך כי אנחנו רוצים מאוד לפתוח ויטרינה כמה שיותר גדולה לכיוון הגינה.
 

פרוגבוט

תוכן שיווקי
פרסומת

אשכולות דומים

אנחנו עומדים לפני שיפוץ ויש לנו בגדול את התוכנית הרצויה היינו שם עם הקבלן שיפוצים וגם איש מטבחים.
יש לנו ספק קטן לגבי יצירת חדר שירות. ותוספת שירותים בקומה הראשונה.
אני מצרף את התוכנית של שתי הקומות ואשמח לקבל הצעת מחיר.
מדובר על דירה מספר 4.
קומה 1
בקומה הראשונה משנים את המטבח ממש לכניסה לבית.
המטבח שנמצא היום מבוטל כי אנחנו פותחים שם קיר (ויטרינה גדולה ליציאה לגינה) הקיר הימני של חדר שינה מספר 3 נכנס עד לקו אפס עם החלון (חדר עבודה).
חדר שינה מספר 2 הופך ליחידת הורים מה שאומר שלא יהיו לנו שירותי אורחים הספק שלנו האם לבנות בצמוד לחדר העבודה שירותי אורחים. לא לכיוון הסלון אלא צמוד לדלת של חדר העבודה.

קומה 2
בקומה השנייה אנחנו רוצים לבטל את יחידת ההורים ולעשות את המקלחת שלה למקלחת קומתית ואת המקלחת הקיימת להפוך לחדר שירות גדול שיכלול מכונת כביסה מייבש תלייה לחולצות קרש גיהוץ וכו'.
כנראה שנצטרך להגדיל את החדר על חשבון החדר הסמוך. זו בגדול התוכנית נשמח לקבל
תמונות של הבית - אורך (5).jpg


אם נעצור לרגע ונחשב את שעות העבודה שלנו בבית, נגלה נתון מפתיע: חדר הכביסה הוא אחד החללים הפעילים ביותר. אנחנו נמצאים בו שעות מדי שבוע- ממיינים, מעבירים, תולים ומקפלים. ולמרות זאת, משום מה, הוא נשאר לעיתים קרובות החדר הכי מוזנח בבית; צפוף, עמוס בסלים ונטול השראה.

בפרויקט הזה, החלטתי להפסיק להתייחס לחדר הכביסה כאל "חדר שירות" צדדי, ולהפוך אותו לחלל עבודה חכם שפשוט עובד בשבילנו.

המהלך ששינה את הכל: ארון כביסה דו צדדי

הבעיה המרכזית הייתה חדר כביסה קטן מאוד עם דלת כניסה מהמטבח ודלת נוספת לחדר הרחצה הצמוד. במקום להשאיר את המעבר לחדר הרחצה, החלטתי לבטל את הדלת ובמקומה תכננתי ארון נגרות חכם.
מהצד של האמבטיה הילדים משליכים בגדים לפתחים מעוגלים, ומהצד של הכביסה – הבגדים כבר מחכים ממוינים לשליפה ישירה למכונה. התוצאה? סלי הכביסה נעלמו מהבית.


תמונות של הבית - אורך (8).jpg



תמונות של הבית - אורך (7).jpg

שרשרת עבודה מלאה באפס מאמץ

כשהשטח קטן, הדיוק הוא הכל. השרשרת מתחילה ברגע שהמכונה מסיימת: בזכות המיקום האסטרטגי בצמוד לחצר השירות, הכביסה הרטובה עוברת ישירות למייבש או נתלית בחצר הצמודה ללא צורך בסלים כבדים.

מעל המכונות הצבתי משטח עץ רחב שמאפשר לקפל את הבגדים מיד כשהם יוצאים מהמייבש או מהתלייה, מה שמונע את הערימות המוכרות שמחכות "למחר" על הספה בסלון. מעל המשטח שולב מוט תלייה מובנה; חולצות שנתלות עליו כשהן עוד לחות נמתחות מעצמן, שומרות על הצורה וחוסכות כ-80% ממאמץ הגיהוץ בהמשך.

עבור הפריטים שכן דורשים גיהוץ, שילבנו פתרון פשוט וזול: קרש גיהוץ המתקפל אל הקיר ונישה ייעודית למגהץ בתוך מסגרת החלון, כך שהכל נגיש ונסגר בשנייה.
כדי להשלים את הסדר והבטיחות, הגבהנו את הרצפה מתחת למכונות למניעת הצטברות לכלוך, והוספנו ארונות עליונים לחומרי ניקוי הרחק מהישג ידם של הילדים.
אחד מהארונות העליונים מתחבר לחדר הרחצה של ההורים וגם משם יש פתח להשלכת הכביסה.


תמונות של הבית - אורך (3).jpg


חדר הרחצה: כשפרקטיקה פוגשת עיצוב

גם בחדר הרחצה של הילדים הושקעה מחשבה רבה. בחרנו בחיפויים בטקסטורת טרוונטין בשילוב אריחים דומיננטיים בגוון כחול-חלודה שמעניקים עומק. תכננו כיור רחב ועמוק במיוחד, שנבנה בהתאמה אישית כדי לשמש גם כעמדת רחצה נוחה ובטיחותית לתינוקות, יחד עם אחסון תחתון נדיב לכל מה שצריך בשלוף.




תמונות של הבית - אורך (5).jpg

תמונות של הבית - אורך (4).jpg
תמונות של הבית - אורך (2).jpg
תמונות של הבית - אורך (6).jpg

בשורה התחתונה

עיצוב פנים טוב הוא כזה שפותר את ה"כאבים" הקטנים של היום-יום. כשאנחנו הופכים את חדר הכביסה מחלל מוזנח למכונה משומנת של סדר וארגון, איכות החיים בבית כולו עולה.


תמונה של לפני -IMG_2567.JPG



רוצים גם אתם להפוך את המטלות הביתיות לחוויה קלה ומעוצבת? מוזמנים ליצור קשר.

הצטרפות לניוזלטר

איזה כיף שהצטרפתם לניוזלטר שלנו!

מעכשיו, תהיו הראשונים לקבל את כל העדכונים, החדשות, ההפתעות בלעדיות, והתכנים הכי חמים שלנו בפרוג!

לוח מודעות

הפרק היומי

הפרק היומי! כל ערב פרק תהילים חדש. הצטרפו אלינו לקריאת תהילים משותפת!


תהילים פרק כה

אלְדָוִד אֵלֶיךָ יי נַפְשִׁי אֶשָּׂא:באֱלֹהַי בְּךָ בָטַחְתִּי אַל אֵבוֹשָׁה אַל יַעַלְצוּ אֹיְבַי לִי:גגַּם כָּל קוֶֹיךָ לֹא יֵבֹשׁוּ יֵבֹשׁוּ הַבּוֹגְדִים רֵיקָם:דדְּרָכֶיךָ יי הוֹדִיעֵנִי אֹרְחוֹתֶיךָ לַמְּדֵנִי:ההַדְרִיכֵנִי בַאֲמִתֶּךָ וְלַמְּדֵנִי כִּי אַתָּה אֱלֹהֵי יִשְׁעִי אוֹתְךָ קִוִּיתִי כָּל הַיּוֹם:וזְכֹר רַחֲמֶיךָ יי וַחֲסָדֶיךָ כִּי מֵעוֹלָם הֵמָּה:זחַטֹּאות נְעוּרַי וּפְשָׁעַי אַל תִּזְכֹּר כְּחַסְדְּךָ זְכָר לִי אַתָּה לְמַעַן טוּבְךָ יי:חטוֹב וְיָשָׁר יי עַל כֵּן יוֹרֶה חַטָּאִים בַּדָּרֶךְ:טיַדְרֵךְ עֲנָוִים בַּמִּשְׁפָּט וִילַמֵּד עֲנָוִים דַּרְכּוֹ:יכָּל אָרְחוֹת יי חֶסֶד וֶאֱמֶת לְנֹצְרֵי בְרִיתוֹ וְעֵדֹתָיו:יאלְמַעַן שִׁמְךָ יי וְסָלַחְתָּ לַעֲוֹנִי כִּי רַב הוּא:יבמִי זֶה הָאִישׁ יְרֵא יי יוֹרֶנּוּ בְּדֶרֶךְ יִבְחָר:יגנַפְשׁוֹ בְּטוֹב תָּלִין וְזַרְעוֹ יִירַשׁ אָרֶץ:ידסוֹד יי לִירֵאָיו וּבְרִיתוֹ לְהוֹדִיעָם:טועֵינַי תָּמִיד אֶל יי כִּי הוּא יוֹצִיא מֵרֶשֶׁת רַגְלָי:טזפְּנֵה אֵלַי וְחָנֵּנִי כִּי יָחִיד וְעָנִי אָנִי:יזצָרוֹת לְבָבִי הִרְחִיבוּ מִמְּצוּקוֹתַי הוֹצִיאֵנִי:יחרְאֵה עָנְיִי וַעֲמָלִי וְשָׂא לְכָל חַטֹּאותָי:יטרְאֵה אוֹיְבַי כִּי רָבּוּ וְשִׂנְאַת חָמָס שְׂנֵאוּנִי:כשָׁמְרָה נַפְשִׁי וְהַצִּילֵנִי אַל אֵבוֹשׁ כִּי חָסִיתִי בָךְ:כאתֹּם וָיֹשֶׁר יִצְּרוּנִי כִּי קִוִּיתִיךָ:כבפְּדֵה אֱלֹהִים אֶת יִשְׂרָאֵל מִכֹּל צָרוֹתָיו:
נקרא  2  פעמים
למעלה