עיצוב פנים עזרה ברעיון לתכנון

  • הוסף לסימניות
  • #1
שלום וברכה
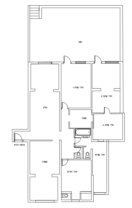
מצורף שרטוט של דירה ברמות פולין - בניה טרומית עם הרבה קירות עבים שצריך כמה שפחות לשבור כדי לא לייקר עלויות...
אני צריכה רעיון לתכנון 1)עם יחידת דיור 2)בלי יחידת דיור
כל רעיון נוסף יתקבל בברכה:)

מצב קיים
1687865497406.png

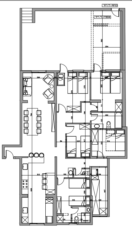
תכנון ראשון - עם יחידת דיור
1687865598242.png

אופציה נוספת בלי יחידת דיור
1687865671273.png
 
  • הוסף לסימניות
  • #2
2 האופציות נראות מנוצלות ומתוכננות ממש יפה (במטבח יש צורך גם בבר וגם בפינת אוכל?) לגמרי החלטה של הלקוח מה הוא מעדיף / צריך
 
  • הוסף לסימניות
  • #3
נראה שחדרי השינה כולם ללא חלונות מלבד החדר עם היציאה לחצר.
 
  • הוסף לסימניות
  • #4
מצטרף להנ"ל--חדרי השינה בלי איורור ואור -- זה ממש בעיה - בלתי נסבלת לדעתי
אם יש עוד אפשרות לפתוח חלונות ---או שיש חלונות שלא סומנו בתוכנית --כדאי לסמן
ואם זה המצב --- צריך לחשוב על משהו יצירתי לאחד חללים ואולי להסתפק בפחות חדרים -- והיח"ד בסימן שאלה גדול
 

פרוגבוט

תוכן שיווקי
פרסומת

אשכולות דומים

שלום וברכה,
בהמשך לשיחתנו, מצורפים טווחי המחירים לעבודות המבוקשות בהתאם לצרכים שעלו.
המחירים הינם משוערים ויכולים להתעדכן לאחר פגישת שטח והגדרת היקף העבודה המדויק.

פגישת שטח ראשונית (עד שעה וחצי) בעלות של 500 ₪.
במידה ונבחר להמשיך לביצוע וללקיחת לפחות שניים מהסעיפים המוצעים, עלות הפגישה מתקזזת מההמשך.

יום רכישות וליווי בחנויות (עד 3 שעות בירושלים): 1,300 ₪

חדר כביסה
שינוי ממיקום קיים למיקום חדש ותכנון חדר כביסה מלא הכולל ארון כביסה, שילוב מכונת כביסה ומייבש, כיור, פתרונות אחסון ופריסות לביצוע: 3,500–5,500 ₪

סלון
שרטוט ותכנון סגירת חורף בשיתוף איש אלומיניום כולל פריסות: 2,000 ₪
נגרות משלימה: 3,000-5,000 ₪
תכנון תקרה: 2,500-3,500 ₪
בחירת גופי תאורה בחנות: תוספת 500 ₪
(או בחירה דרך קטלוגים ללא עלות נוספת)
עיצוב קירות: 1,000–1,500 ₪ לכל קיר

חדר בנים
ארון מתוכנן או ספרייה בנגרות אישית: 2,000–3,000 ₪
הדמיה, שרטוט והכוונה בבחירת חומרים כולל פגישה עם נגר: 500 ₪

כניסה מהחצר
החלפת גדר חיצונית בהתאם לפגישת שטח
טיפול והתאמת ריהוט חוץ לפי ימי בחירה בפועל

שלב ב' - מטבח
שינויים כגון החלפת מקרר, ביטול כסאות לטובת שולחן רציף, הוספת מדיח כלים ועוד.
תכנון נקודתי ושרטוט לנגר: 1,500-2,500 ₪ (בהתאם להיקף העבודה)

ייעוץ והכוונה כללית
כולל עד 10 שינויים או המלצות בנושאים כגון צביעה, תאורה, שקעים, דלתות, משקופים, ברזים ועוד.
עלות חבילת ייעוץ: 1,000 ₪ + מע"מ

מחסן - שירותים ומקלחון
תכנון ושרטוט לביצוע: 2,500–3,000 ₪

אשמח להמשיך משלב זה בתיאום פגישה מסודרת ולעבור יחד על הפרטים כדי להתאים הצעת מחיר מדויקת בהתאם לצרכים בשטח.

הצטרפות לניוזלטר

איזה כיף שהצטרפתם לניוזלטר שלנו!

מעכשיו, תהיו הראשונים לקבל את כל העדכונים, החדשות, ההפתעות בלעדיות, והתכנים הכי חמים שלנו בפרוג!

לוח מודעות

הפרק היומי

הפרק היומי! כל ערב פרק תהילים חדש. הצטרפו אלינו לקריאת תהילים משותפת!


תהילים פרק כה

אלְדָוִד אֵלֶיךָ יי נַפְשִׁי אֶשָּׂא:באֱלֹהַי בְּךָ בָטַחְתִּי אַל אֵבוֹשָׁה אַל יַעַלְצוּ אֹיְבַי לִי:גגַּם כָּל קוֶֹיךָ לֹא יֵבֹשׁוּ יֵבֹשׁוּ הַבּוֹגְדִים רֵיקָם:דדְּרָכֶיךָ יי הוֹדִיעֵנִי אֹרְחוֹתֶיךָ לַמְּדֵנִי:ההַדְרִיכֵנִי בַאֲמִתֶּךָ וְלַמְּדֵנִי כִּי אַתָּה אֱלֹהֵי יִשְׁעִי אוֹתְךָ קִוִּיתִי כָּל הַיּוֹם:וזְכֹר רַחֲמֶיךָ יי וַחֲסָדֶיךָ כִּי מֵעוֹלָם הֵמָּה:זחַטֹּאות נְעוּרַי וּפְשָׁעַי אַל תִּזְכֹּר כְּחַסְדְּךָ זְכָר לִי אַתָּה לְמַעַן טוּבְךָ יי:חטוֹב וְיָשָׁר יי עַל כֵּן יוֹרֶה חַטָּאִים בַּדָּרֶךְ:טיַדְרֵךְ עֲנָוִים בַּמִּשְׁפָּט וִילַמֵּד עֲנָוִים דַּרְכּוֹ:יכָּל אָרְחוֹת יי חֶסֶד וֶאֱמֶת לְנֹצְרֵי בְרִיתוֹ וְעֵדֹתָיו:יאלְמַעַן שִׁמְךָ יי וְסָלַחְתָּ לַעֲוֹנִי כִּי רַב הוּא:יבמִי זֶה הָאִישׁ יְרֵא יי יוֹרֶנּוּ בְּדֶרֶךְ יִבְחָר:יגנַפְשׁוֹ בְּטוֹב תָּלִין וְזַרְעוֹ יִירַשׁ אָרֶץ:ידסוֹד יי לִירֵאָיו וּבְרִיתוֹ לְהוֹדִיעָם:טועֵינַי תָּמִיד אֶל יי כִּי הוּא יוֹצִיא מֵרֶשֶׁת רַגְלָי:טזפְּנֵה אֵלַי וְחָנֵּנִי כִּי יָחִיד וְעָנִי אָנִי:יזצָרוֹת לְבָבִי הִרְחִיבוּ מִמְּצוּקוֹתַי הוֹצִיאֵנִי:יחרְאֵה עָנְיִי וַעֲמָלִי וְשָׂא לְכָל חַטֹּאותָי:יטרְאֵה אוֹיְבַי כִּי רָבּוּ וְשִׂנְאַת חָמָס שְׂנֵאוּנִי:כשָׁמְרָה נַפְשִׁי וְהַצִּילֵנִי אַל אֵבוֹשׁ כִּי חָסִיתִי בָךְ:כאתֹּם וָיֹשֶׁר יִצְּרוּנִי כִּי קִוִּיתִיךָ:כבפְּדֵה אֱלֹהִים אֶת יִשְׂרָאֵל מִכֹּל צָרוֹתָיו:
נקרא  2  פעמים
למעלה