• הוסף לסימניות
  • #1
שלום,
אחרי שנעזרתי כאן רבות בתכנון הדירה עם רעיונות מצוינים ומושלמים וסיעור מוחות לא רגיל!
אשמח לקבל עצות ורעיונות כיצד לנצל ב100% את שטח המטבח,
איזו סקיצה הכי נראית לכם והאם יש מה עוד לשפר
מצ"ב כמה סקיצות (ב' ו-ג' המקרר נפתח על השולחן ונראה לי מעצבן)

נקודות שחשוב לי:
*מקרר נגיש לשיש,
*מצד שמאל הסלון ולמעלה יהיה חלון (זאת בניה חדשה ולא סגור עדיין היכן יהיה החלון,)
*שלחן אוכל (עדיף לא דלפק)
*משטחי שיש נוחים וגדולים וכמובן ארונות גבוהים לתנור ומזווה.
ב.jpg
ג.jpg
תודה ענקית!
א.jpg
 
  • הוסף לסימניות
  • #2
הנקודות הבעייתיות שבכל תוכנית:
עליונה ימנית-או להשתמש בכיור או להשתמש בכיסא-לא שניהם:confused:
וכמו שכבר כתבת הפתיחה של המקרר נפתחת על שולחן האוכל
עליונה שמאלית-לא חושבת שאפשר להכניס ולהוציא תבניות מהתנורים,אולי לוותר על המזווה ולסובב את התנורים
ושוב יש את הבעיה של המקרר עם השולחן.
תוכנית תחתונה- 2 הכסאות הקרובים לקיר סיוט להיכנס ולצאת.
וכמובן שוב,לא כתוב בילט אין,אבל הארון שקרוב לקיר הימני אין אפשרות להכניס ולהוציא תבניות.
 
  • הוסף לסימניות
  • #3
אולי כך יותר סביר.
אמנם חסר מקום ישיבה אחד ,אבל אפשר להזיז את השולחן בזמן האוכל ולהוסיף כסא
או ספסל צמוד לקיר.
עזרה בתכנון מטבח.PNG

ויתכן שכדאי להחליף צדדים ולהעביר את הכיריים לצד השני.
 
נערך לאחרונה ב:
  • הוסף לסימניות
  • #4
@byy תודה רבה
עליונה ימנית- האם יעזור שאני אחליף בין המקרר לתנור ,(אפשר לעשות כיור או גז צמוד למקר - כדאי?)
ובשיש החלבי אני אזיז את הכיור יותר לימין שהמשטח שיש יהיה יותר לכיוון הכיסא?
מה את אומרת?
 
  • הוסף לסימניות
  • #5
@byy תודה רבה
עליונה ימנית- האם יעזור שאני אחליף בין המקרר לתנור ,(אפשר לעשות כיור או גז צמוד למקר - כדאי?)
ובשיש החלבי אני אזיז את הכיור יותר לימין שהמשטח שיש יהיה יותר לכיוון הכיסא?
מה את אומרת?
אפשר להחליף בינהם אבל השיש של ה40 יורד וגם צריך להזיז את הכיור ימינה.
אפשר בשיש החלבי להזיז את הכיור.זה יפתור את בעית הנגישות לכיור.עדיין תהיה בעיה לפתוח שם ארון או מגירות
וראי את ההערה שהוספתי לגבי הכיריים בתוכנית שהעלתי.
 
  • הוסף לסימניות
  • #6
מאד מפריע לי הקיר האלכסון, הוא לגמרי תוקע את המטבח
אם תוכלו ליישר אותו, שחצי מהשטח ילך למטבח וחצי מהשטח ילך לחדר ליד, תקבלו מטבח יותר מנוצל
נגיד משהו כזה
Screenshot 2025-10-28 at 11.42.54.png
 
  • הוסף לסימניות
  • #7

קבצים מצורפים

  • עזרה בתכנון מטבח.PNG
    עזרה בתכנון מטבח.PNG
    KB 67.4 · צפיות: 73
  • הוסף לסימניות
  • #8
תודה רבה על כל הרעיונות,
אבל בפועל הם לא מסתדרים לי עם המידות
למשל אצל @ilan p הקיר היכן ששמת את הכיריים הוא רק 2.27 כך שירד לי זוית של 60+ כיריים 60 + כיור 60
ישאר משטח שיש בין כיריים לכיור 47 ס"מ- לא נראה לי מעשי,
אשמח שמוע על עוד כיווני מחשבה,

תודה
 
  • הוסף לסימניות
  • #9
אבל בפועל הם לא מסתדרים לי עם המידות
ישאר משטח שיש בין כיריים לכיור 47 ס"מ- לא נראה לי מעשי,
הרעיון שלי מסתדר אם מיישרים את הקיר הקטום כמו בסקיצה שהעלתי שיוצא בקו יש עם העמוד
אז זה מגדיל את הקיר ל 280 לפחות ואין בעיה
לא הייתי מציע פיתרון כמו שחשבתם ---
במקום של הקיר הקטום --איפה הכיריים -- יש שם קיר שמסומן להריסה -- מציע לא להרוס אותו
גם המטבח גודל וגם - לא קיר קטום סטייל שנות 90
 
  • הוסף לסימניות
  • #10
הלוואי,
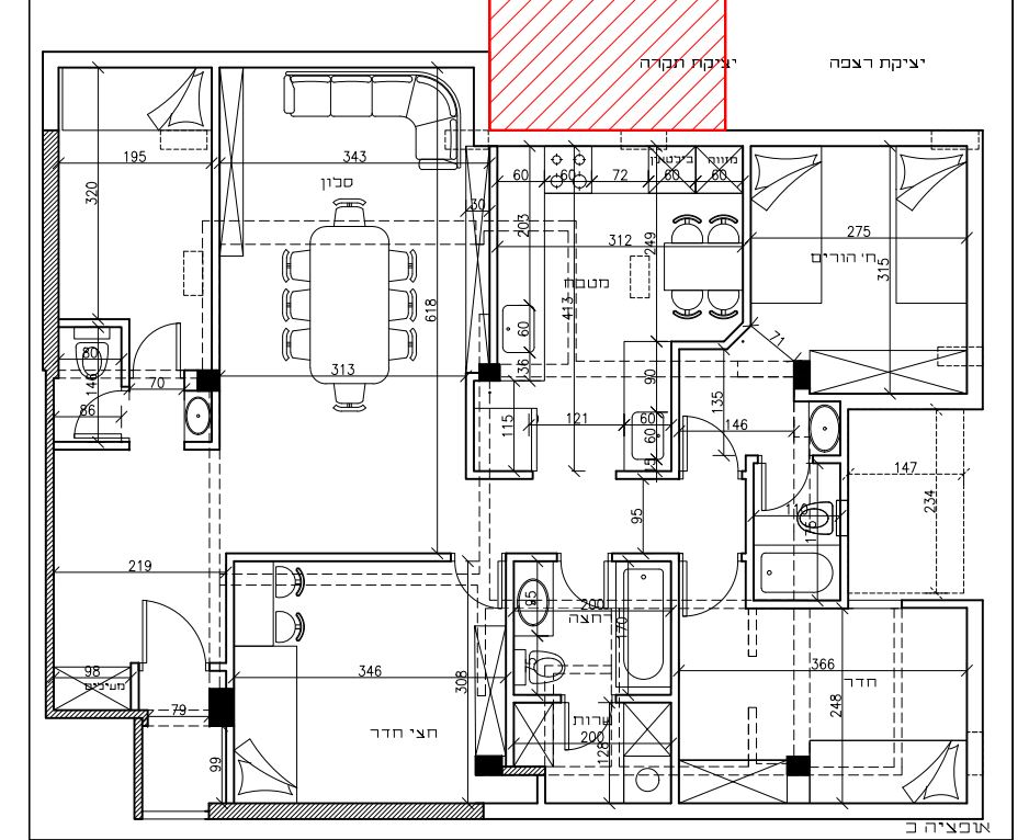
אין לי אופציה כי זה יתקע את הכניסה של החדר ליד,
מצ"ב תכנית של כל הדירה (כל הדירה נהרסת ונבנית מחדש הכל קירות חול שמיועדים להריסה)
תודה רבה
14.jpg
 
  • הוסף לסימניות
  • #11
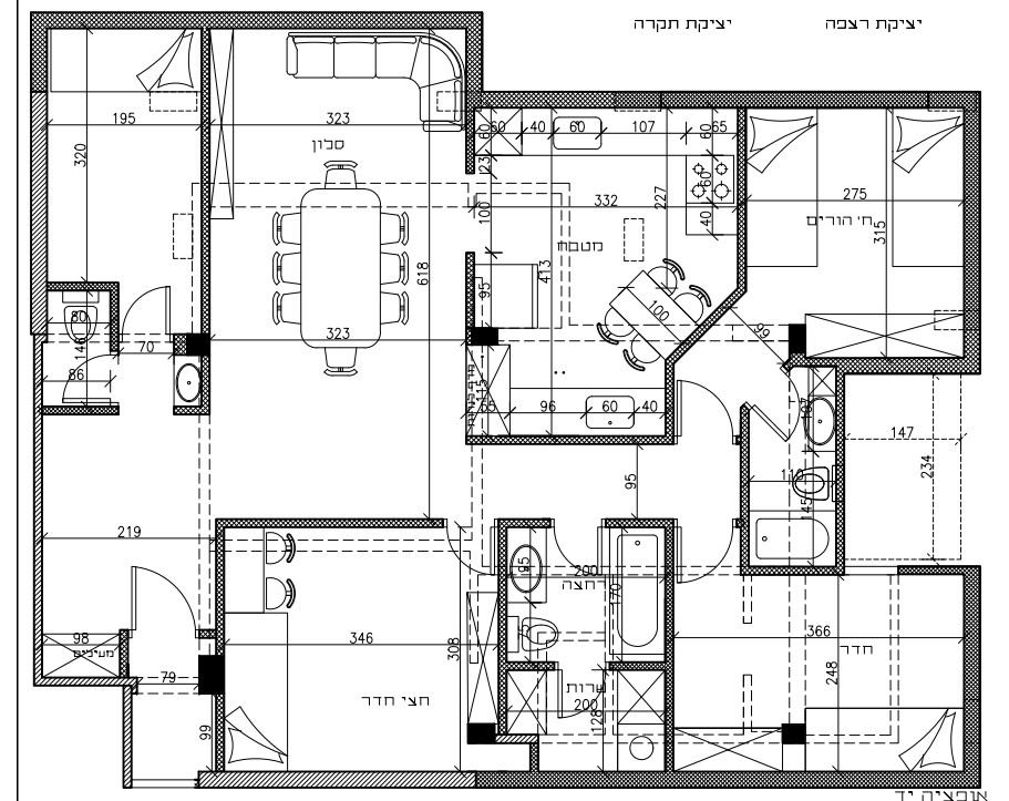
כבר ראיתי את הדירה הזו ;) מקווה שאתם מתקדמים כבר.
גם מבחינת ה'טיול עם המצרכים לאחר הקניה' עדיפה התוכנית שהעלתי,שבה הכניסה למטבח בתחילת הסלון ולא באמצעו.קרוב יותר לדלת הבית
אגב, ביחידת הורים יש מעבר של כ50 ס"מ לאסלה.
 
  • הוסף לסימניות
  • #12
כבר ראיתי את הדירה הזו ;) מקווה שאתם מתקדמים כבר.
גם מבחינת ה'טיול עם המצרכים לאחר הקניה' עדיפה התוכנית שהעלתי,שבה הכניסה למטבח בתחילת הסלון ולא באמצעו.קרוב יותר לדלת הבית
אגב, ביחידת הורים יש מעבר של כ50 ס"מ לאסלה.
התכנית הזו נבחרה אחרי הרבה מחשבה על כל הצרכים ,
אני באמת מתחילה לחשוב שעדיף להחליף בין החדר בכניסה למטבח
כי במטבח הנוכחי מאד קשה לתכנן שם את כל מה שאני רוצה,
מצד שני בחדר בכניסה החלון בתוך מובלעת ואני לא יודעת כמה זה יהיה מוצלח בתור מטבח,
מה אתם אומרים ?
היו עוד הצעות של מטבח מחובר לסלון או ללא חלון אבל פחות התחברתי
 
  • הוסף לסימניות
  • #13
התכנית הזו נבחרה אחרי הרבה מחשבה על כל הצרכים ,
אני באמת מתחילה לחשוב שעדיף להחליף בין החדר בכניסה למטבח
כי במטבח הנוכחי מאד קשה לתכנן שם את כל מה שאני רוצה,
מצד שני בחדר בכניסה החלון בתוך מובלעת ואני לא יודעת כמה זה יהיה מוצלח בתור מטבח,
מה אתם אומרים ?
היו עוד הצעות של מטבח מחובר לסלון או ללא חלון אבל פחות התחברתי
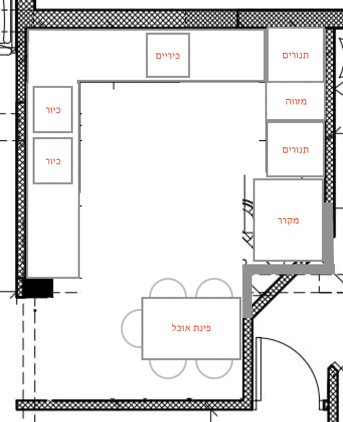
התכוונתי לתוכנית של המטבח שהעלתי כאן למעלה שפינת האוכל בכניסה ולא על קיר האלכסון
 
  • הוסף לסימניות
  • #14
רעיון ממש טוב,
ניסיתי להעביר את הכיריים ממול,
ושהתנור יהיה ליד המקרר,
רשמתי מידות של כל קטע,

היכן כדאי לשים מזווה?- אולי לגנוב מהשיש הבשרי שהוא 140 ?
והאם 77 ס"מ לשיש חלבי לא קטן מדי?
תודה רבה:
ללא שם.png
 
  • הוסף לסימניות
  • #15
הלוואי,
תודה רבה
מצוב אופציה קצת דעת אחרת ---למבינים בלבד !!!
אם זה היה בית שלי -- ככה הייתי עושה -- כייפי ביותר - אור בעיניים
ואפשר גם להחזיר את החדרון אם מאוד נחוץ -- או לעשות חדרון חצי פתוח לשעת הצורך

14.jpg
 
  • הוסף לסימניות
  • #16
  • הוסף לסימניות
  • #17
@byy
@ilan p
החלון היכן שסימן @ilan p ,
אגב ממש נהנתי מהרעיון שהמרפסת שרות יוצאת מהמטבח, בלי לשנות את כל הבית האם כדאי להחליף בין המטבח לחדר ויהיה אוורורבמטבח דרך המרפסת שרות משהו כזה?
נראה לכם יהיה יותר קל לתכנן כך את המטבח?
תודה ענקית על כל התגובות והרעיונות!
שינוי.jpg
 
  • הוסף לסימניות
  • #18
המטבח @ilan p תכנן הרבה יותר נורמלי ומתפקד. גם מיקום שרותי האורחים הרבה יותר נורמלי שם ,אם רק מסתדר מבחינת אינסטלציה.
קצת חיסרון שאין אוורור ישיר למטבח ולא כולם אוהבים ריח כביסה שמתערבב בריח בישול
מה שלא מסתדר לי זה החדר הורים בתוכנית שלו .העמוד עם המיטה-איך זה עובד?
 
  • הוסף לסימניות
  • #19
@byy ,
תודה - את החדר הורים אני לא אשנה - אני צריכה את המיטות דווקא לכיוון הזה,
את החדר ליד אני ארבע ואולי אני יקטין רק את האורך שלו ב60 ס"מ בערך (כמו שצרפתי בתכנון) (חדר של 10 מטר יצא)
כך אני אעביר את חדר הרחצה יותר לפנים הבית ואגדיל את אורך המ. שרות ב60 ס"מ,
את השירותים אני לא יכולה לעשות שם בגלל האינסטלציה זה יגביה לי את הבית ב12 ס"מ ואני לא רוצה,
אבל את המטבח להעביר לשם כן אפשר ,
עדיף מטבח בכניסה לבית מאשר בפנים הבית?
 

פרוגבוט

תוכן שיווקי
פרסומת

הצטרפות לניוזלטר

איזה כיף שהצטרפתם לניוזלטר שלנו!

מעכשיו, תהיו הראשונים לקבל את כל העדכונים, החדשות, ההפתעות בלעדיות, והתכנים הכי חמים שלנו בפרוג!

לוח מודעות

הפרק היומי

הפרק היומי! כל ערב פרק תהילים חדש. הצטרפו אלינו לקריאת תהילים משותפת!


תהילים פרק כה

אלְדָוִד אֵלֶיךָ יי נַפְשִׁי אֶשָּׂא:באֱלֹהַי בְּךָ בָטַחְתִּי אַל אֵבוֹשָׁה אַל יַעַלְצוּ אֹיְבַי לִי:גגַּם כָּל קוֶֹיךָ לֹא יֵבֹשׁוּ יֵבֹשׁוּ הַבּוֹגְדִים רֵיקָם:דדְּרָכֶיךָ יי הוֹדִיעֵנִי אֹרְחוֹתֶיךָ לַמְּדֵנִי:ההַדְרִיכֵנִי בַאֲמִתֶּךָ וְלַמְּדֵנִי כִּי אַתָּה אֱלֹהֵי יִשְׁעִי אוֹתְךָ קִוִּיתִי כָּל הַיּוֹם:וזְכֹר רַחֲמֶיךָ יי וַחֲסָדֶיךָ כִּי מֵעוֹלָם הֵמָּה:זחַטֹּאות נְעוּרַי וּפְשָׁעַי אַל תִּזְכֹּר כְּחַסְדְּךָ זְכָר לִי אַתָּה לְמַעַן טוּבְךָ יי:חטוֹב וְיָשָׁר יי עַל כֵּן יוֹרֶה חַטָּאִים בַּדָּרֶךְ:טיַדְרֵךְ עֲנָוִים בַּמִּשְׁפָּט וִילַמֵּד עֲנָוִים דַּרְכּוֹ:יכָּל אָרְחוֹת יי חֶסֶד וֶאֱמֶת לְנֹצְרֵי בְרִיתוֹ וְעֵדֹתָיו:יאלְמַעַן שִׁמְךָ יי וְסָלַחְתָּ לַעֲוֹנִי כִּי רַב הוּא:יבמִי זֶה הָאִישׁ יְרֵא יי יוֹרֶנּוּ בְּדֶרֶךְ יִבְחָר:יגנַפְשׁוֹ בְּטוֹב תָּלִין וְזַרְעוֹ יִירַשׁ אָרֶץ:ידסוֹד יי לִירֵאָיו וּבְרִיתוֹ לְהוֹדִיעָם:טועֵינַי תָּמִיד אֶל יי כִּי הוּא יוֹצִיא מֵרֶשֶׁת רַגְלָי:טזפְּנֵה אֵלַי וְחָנֵּנִי כִּי יָחִיד וְעָנִי אָנִי:יזצָרוֹת לְבָבִי הִרְחִיבוּ מִמְּצוּקוֹתַי הוֹצִיאֵנִי:יחרְאֵה עָנְיִי וַעֲמָלִי וְשָׂא לְכָל חַטֹּאותָי:יטרְאֵה אוֹיְבַי כִּי רָבּוּ וְשִׂנְאַת חָמָס שְׂנֵאוּנִי:כשָׁמְרָה נַפְשִׁי וְהַצִּילֵנִי אַל אֵבוֹשׁ כִּי חָסִיתִי בָךְ:כאתֹּם וָיֹשֶׁר יִצְּרוּנִי כִּי קִוִּיתִיךָ:כבפְּדֵה אֱלֹהִים אֶת יִשְׂרָאֵל מִכֹּל צָרוֹתָיו:
נקרא  2  פעמים
למעלה