עיצוב פנים צריכה עזרה דחופה בתכנון חדר שינה

  • הוסף לסימניות
  • #1
חברי הפורום שלום,

אשמח להתייעצות ועזרה.
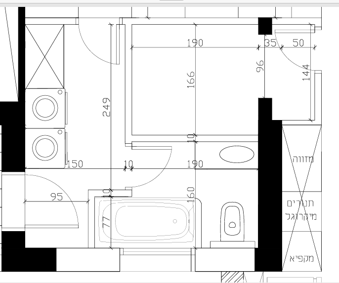
דירה שבמהלך הביצוע, קיר שהיה אמור לההרס התגלו בו שני עמודים שלא ניתנים להריסה.
החדר הוא חדר שינה עם יחידת הורים והעמודים האלו מחייבים אותי לשנות תכנון.
מעלה מה שהצלחתי אבל אשמח לחוות דעת ואולי למציאת פרונות יצירתיים יותר כי אני לא כ"כ אוהבת מה שיצא...

כמה הערות:
1. הדלת למטה היא דלת יציאה למרפסת.
2. בתכנון הנוכחי המקלחון יהיה רק שיפוע ברצפה כי הוא משמש מעבר לשירותים ולכיור.


1748981484105.png
 
  • הוסף לסימניות
  • #2
אשמח להתייעצות ועזרה.
מעלה מה שהצלחתי אבל אשמח לחוות דעת ואולי למציאת פרונות יצירתיים יותר כי אני לא כ"כ אוהבת מה שיצא...
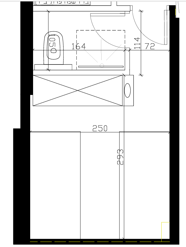
סה"כ מידות החדר מתאימות לחדר ילדים סטנדרטי ביותר -- ומאוד קשה גם לשלב יח הורית --אבל כנראה אי אפשר לוותר על זה ----- אולי נכון במקרה הנ"ל לפצל בין הכיור לשירותים ומקלחת -- מצוב רעיון --- יח הורית רוחב 80
עדיין מאולץ ביותר אבל נראה לי קצת יותר נורמלי --לשיקולכם

1748981484105.png
 
  • הוסף לסימניות
  • #3
סה"כ מידות החדר מתאימות לחדר ילדים סטנדרטי ביותר -- ומאוד קשה גם לשלב יח הורית --אבל כנראה אי אפשר לוותר על זה ----- אולי נכון במקרה הנ"ל לפצל בין הכיור לשירותים ומקלחת -- מצוב רעיון --- יח הורית רוחב 80
עדיין מאולץ ביותר אבל נראה לי קצת יותר נורמלי --לשיקולכם

צפה בקובץ המצורף 1979533
תודה רבה!
ניסיתי.
זה לא מסתדר מבחינת המידות.
יש למישהו עוד רעיון?
 
  • הוסף לסימניות
  • #4
אני גם הייתי הולכת יותר על הכיוון של התכנית החדשה
בתכנית הראשונה לפי העין לא נראה שהמרחקים עובדים נכון
אבל גם בתכנית השניה יש בעיה עם מעבר למרפסת
זה מרגיש קצת לנסות לדחוף את הכל בשטח ממש קטן

 
  • הוסף לסימניות
  • #5
התוכנית שהעלית לא עובדת בשום פנים ואופן :(
אולי יש מצב להחליף עם חדר אחר בבית?
 
  • הוסף לסימניות
  • #6
תודה על העצות.
האופציה היחידה היתה להחליף עם חדר השירות והאמבטיה.
מעלה את שניהם. אשמח לחוות דעתכם.

בחדר שינה יהיה חלון (מחכה למיקום מהמהנדס...)
חדר שינה:

1749119687961.png

1749119537820.png
 
  • הוסף לסימניות
  • #7
מה יהיה עם הקצב של נטפרי לפתיחת תמונות?:rolleyes:
 
  • הוסף לסימניות
  • #8
רוצה להעלות קובץ אוטוקאד? אני מוכנה לעזור ,אבל קצת מורכב עם תמונות.
 
  • הוסף לסימניות
  • #9
תודה!
 

קבצים מצורפים

  • לפרוג.dwg
    KB 195.5 · צפיות: 23
  • הוסף לסימניות
  • #10
אגב שתי חדרי השינה האחרים קיימים ובעלי הדירה לא מעוניינים לגעת בזה בכלל.
 
  • הוסף לסימניות
  • #11
למה מיועד החדרון הריק?
 
  • הוסף לסימניות
  • #12
איפה הקולטן? או שזו דירת קרקע ואין בעיה איפה למקם שירותים?
ומה זה הריבוע הצהוב בחדר האחרון,לא עמוד?
 
  • הוסף לסימניות
  • #13
לא. זה לא עמוד.
אין בעיה למקם שירותים איפה שרוצים.
בגדול לחדר ארונות ואחסון אבל הם ביקשו למצוא אופציה שיכנס שם מיטה לשינה
 
  • הוסף לסימניות
  • #14
מלי,שלחתי לך את הקובץ
 

פרוגבוט

תוכן שיווקי
פרסומת

הצטרפות לניוזלטר

איזה כיף שהצטרפתם לניוזלטר שלנו!

מעכשיו, תהיו הראשונים לקבל את כל העדכונים, החדשות, ההפתעות בלעדיות, והתכנים הכי חמים שלנו בפרוג!

לוח מודעות

הפרק היומי

הפרק היומי! כל ערב פרק תהילים חדש. הצטרפו אלינו לקריאת תהילים משותפת!


תהילים פרק כה

אלְדָוִד אֵלֶיךָ יי נַפְשִׁי אֶשָּׂא:באֱלֹהַי בְּךָ בָטַחְתִּי אַל אֵבוֹשָׁה אַל יַעַלְצוּ אֹיְבַי לִי:גגַּם כָּל קוֶֹיךָ לֹא יֵבֹשׁוּ יֵבֹשׁוּ הַבּוֹגְדִים רֵיקָם:דדְּרָכֶיךָ יי הוֹדִיעֵנִי אֹרְחוֹתֶיךָ לַמְּדֵנִי:ההַדְרִיכֵנִי בַאֲמִתֶּךָ וְלַמְּדֵנִי כִּי אַתָּה אֱלֹהֵי יִשְׁעִי אוֹתְךָ קִוִּיתִי כָּל הַיּוֹם:וזְכֹר רַחֲמֶיךָ יי וַחֲסָדֶיךָ כִּי מֵעוֹלָם הֵמָּה:זחַטֹּאות נְעוּרַי וּפְשָׁעַי אַל תִּזְכֹּר כְּחַסְדְּךָ זְכָר לִי אַתָּה לְמַעַן טוּבְךָ יי:חטוֹב וְיָשָׁר יי עַל כֵּן יוֹרֶה חַטָּאִים בַּדָּרֶךְ:טיַדְרֵךְ עֲנָוִים בַּמִּשְׁפָּט וִילַמֵּד עֲנָוִים דַּרְכּוֹ:יכָּל אָרְחוֹת יי חֶסֶד וֶאֱמֶת לְנֹצְרֵי בְרִיתוֹ וְעֵדֹתָיו:יאלְמַעַן שִׁמְךָ יי וְסָלַחְתָּ לַעֲוֹנִי כִּי רַב הוּא:יבמִי זֶה הָאִישׁ יְרֵא יי יוֹרֶנּוּ בְּדֶרֶךְ יִבְחָר:יגנַפְשׁוֹ בְּטוֹב תָּלִין וְזַרְעוֹ יִירַשׁ אָרֶץ:ידסוֹד יי לִירֵאָיו וּבְרִיתוֹ לְהוֹדִיעָם:טועֵינַי תָּמִיד אֶל יי כִּי הוּא יוֹצִיא מֵרֶשֶׁת רַגְלָי:טזפְּנֵה אֵלַי וְחָנֵּנִי כִּי יָחִיד וְעָנִי אָנִי:יזצָרוֹת לְבָבִי הִרְחִיבוּ מִמְּצוּקוֹתַי הוֹצִיאֵנִי:יחרְאֵה עָנְיִי וַעֲמָלִי וְשָׂא לְכָל חַטֹּאותָי:יטרְאֵה אוֹיְבַי כִּי רָבּוּ וְשִׂנְאַת חָמָס שְׂנֵאוּנִי:כשָׁמְרָה נַפְשִׁי וְהַצִּילֵנִי אַל אֵבוֹשׁ כִּי חָסִיתִי בָךְ:כאתֹּם וָיֹשֶׁר יִצְּרוּנִי כִּי קִוִּיתִיךָ:כבפְּדֵה אֱלֹהִים אֶת יִשְׂרָאֵל מִכֹּל צָרוֹתָיו:
נקרא  2  פעמים
למעלה