עיצוב שאלה דחופה לגבי שבירת קיר בין סלון למטבח.

  • הוסף לסימניות
  • #1
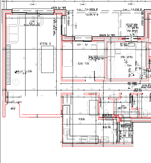
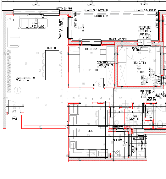
אנחנו לקראת קניית דירה,
ורוצים לשבור את הקיר בין הסלון למטבח כדי שיהיה קצת יותר רוחב וגם יופי ונוחות.
אני מצרפת פה תוכנית של הדירה ,אשמח לחוות דעת האם זה אפשרי וחכם מבחינת עיצוב ,והאם זה באמת ייתן מראה רחב יותר.
את המקרר שאמור להיות איפה שהקיר חשבנו להעביר לממול.- האם זה יראה יפה?
תודה מראש.
 

קבצים מצורפים

  • תוכנית דירה.png
    תוכנית דירה.png
    KB 99.2 · צפיות: 110
  • הוסף לסימניות
  • #2
ואיפה תשימו שולחן במטבח?
רק קחו בחשבון שאם שוברים קיר לא בבניה- חסר לכם שם ריצוף (ובד"כ גם אלו שליד נשברים)
 
  • הוסף לסימניות
  • #3
זה יתן מראה פתוח יותר, אבל:
1. אין מקום לשולחן
2. זה יוצר מטבח פתוח שרואים מכל הבית
 
  • הוסף לסימניות
  • #4
חשבנו אולי לשים רק שולחן אחד גם לסלון וגם למטבח.
כי המטבח ממש קטן ולא יהיה שם מקום לשולחן.
רק קחו בחשבון שאם שוברים קיר לא בבניה- חסר לכם שם ריצוף (ובד"כ גם אלו שליד נשברים)
כן וודאי.
 
  • הוסף לסימניות
  • #5
אנחנו לקראת קניית דירה,
ורוצים לשבור את הקיר בין הסלון למטבח כדי שיהיה קצת יותר רוחב וגם יופי ונוחות.
אני מצרפת פה תוכנית של הדירה ,אשמח לחוות דעת האם זה אפשרי וחכם מבחינת עיצוב ,והאם זה באמת ייתן מראה רחב יותר.
את המקרר שאמור להיות איפה שהקיר חשבנו להעביר לממול.- האם זה יראה יפה?
תודה מראש.
אפשר לשבור את הקיר בין המטבח לסלון (זה שמאחורי המקרר עכשיו)
אות הפתח בין המטבח למסדרון לסגור
 
  • הוסף לסימניות
  • #7
ומה זה ייתן?
שיהיה מקום לשולחן?
אבל אני חושבת שמבחינת מראה יותר פתוח זה לא ייתן כלום לא?
זה יתן מעבר וזרימה בין הסלון למטבח
ולא מעבר למטבח דרך המסדרון
 
  • הוסף לסימניות
  • #8
הכל אפשרי, אך שימי לב מה יתפסו עיניו של האורח העומד בפתח הבית, והאם זה מתאים לך.
1715759297385.png


דבר נוסף, את צריכה לשקול מה זרימת המשתמשים בחלל.
כלומר האם ביומיום המטבח הוא המקום המרכזי ואיליו נכנסים הילדים \ההורים בתדירות גבוהה?
או האם הסלון הוא החלל המרכזי בבית?
וכך תוכלי לדייק איזה מבין הקירות להוריד ואיזה ואיפה להשאיר.
בסופו של דבר הבית אמור להיות נוח לשימוש הדיירים הספציפיים שגרים בו.
 
  • הוסף לסימניות
  • #9
אם זו דירה בבניה ההייתי מחליפה בין המטבח לחדר שצמוד לסלון- ואת הקיר שמפריד בינהם ההיתי שוברת... ממקמת שם את המטבח...
ואת המטבח הופכת לחדר נוסף... ככה את יכולה להכניס גם אי קטן,, גם נגדילה את המראה של הסלון.....
 
  • הוסף לסימניות
  • #10
אם זו דירה בבניה ההייתי מחליפה בין המטבח לחדר שצמוד לסלון- ואת הקיר שמפריד בינהם ההיתי שוברת... ממקמת שם את המטבח...
ואת המטבח הופכת לחדר נוסף... ככה את יכולה להכניס גם אי קטן,, גם נגדילה את המראה של הסלון.....
זהו שהדירה כבר בנויה.
אבל זה באמת רעיון לשיפוץ בעתיד :)
 
  • הוסף לסימניות
  • #11
הכל אפשרי, אך שימי לב מה יתפסו עיניו של האורח העומד בפתח הבית, והאם זה מתאים לך.
צפה בקובץ המצורף 1651323

דבר נוסף, את צריכה לשקול מה זרימת המשתמשים בחלל.
כלומר האם ביומיום המטבח הוא המקום המרכזי ואיליו נכנסים הילדים \ההורים בתדירות גבוהה?
או האם הסלון הוא החלל המרכזי בבית?
וכך תוכלי לדייק איזה מבין הקירות להוריד ואיזה ואיפה להשאיר.
בסופו של דבר הבית אמור להיות נוח לשימוש הדיירים הספציפיים שגרים בו
זה נראה לך אסתטי שמי שנמצא בדלת רואה את המקרר של המטבח ?
או שזה יהיה מחזר?
ומבחינת מה החלל המרכזי אז הסלון בגדול הוא המרכזי כרגע (זוג צעיר..)אבל בהמשך החיים אני מאמינה שגם המטבח יהפוך להיות כזה.
וממש תודה על הפירוט.
 
  • הוסף לסימניות
  • #12
ורוצים לשבור את הקיר בין הסלון למטבח כדי שיהיה קצת יותר רוחב וגם יופי ונוחות.
האם זה אפשרי וחכם מבחינת עיצוב ,והאם זה באמת ייתן מראה רחב יותר.
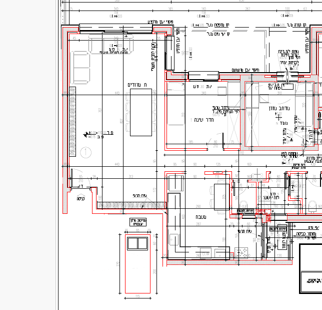
מבין את הצורך במטבח פתוח אך לא רואה משמעות כל כך בשבירת הקיר שהצעתם
כן רואה משמעות אם זה מעשי לשנות מיקום למטבח לפי סקיצה מצוב - -וזה עולם אחר
ומודע לחיסרון שהחדר יאוורר דרך חדר שרות
 

קבצים מצורפים

  • 1650761-afcd7085a6f206f72a12894acb067924.png
    1650761-afcd7085a6f206f72a12894acb067924.png
    KB 196.4 · צפיות: 62
  • הוסף לסימניות
  • #13
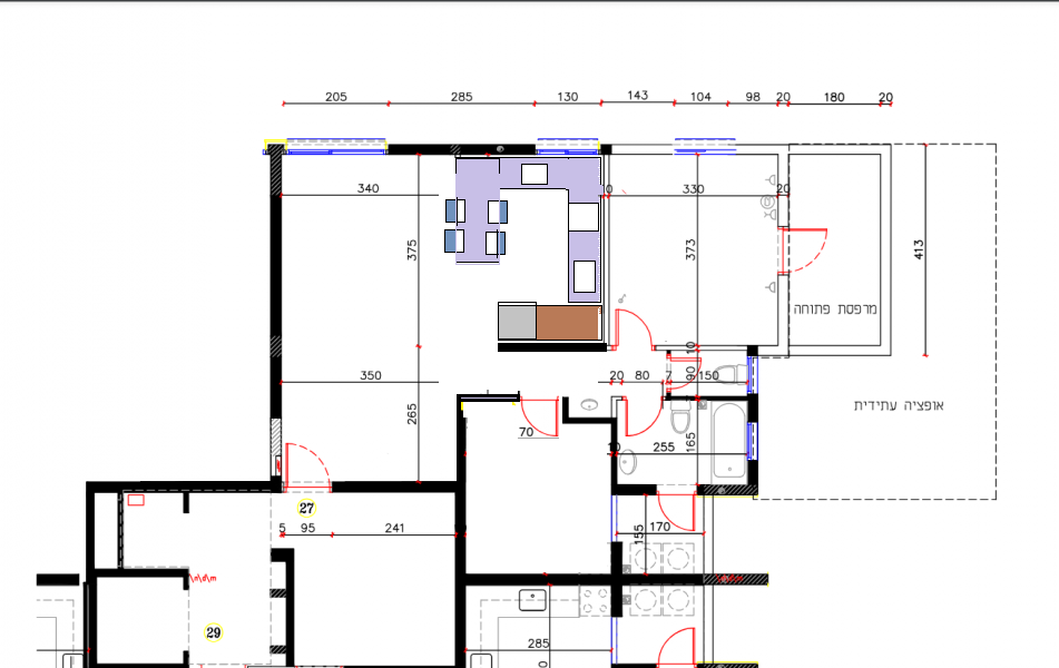
מבנה הדירה שלנו בחלק הזה דומה מאד,
רק שאנחנו צרפנו את מרפסת השירות למטבח (הוספנו את מסתור הכביסה שהיה אח"כ כמרפסת שירות חדשה למטבח, ובנוסף - חדר כביסה בתוך הבית)

1715762020141.png


אני מבשלת ונמצאת המון במטבח,
הפריעה לי מאד מאד העובדה שמהמטבח יראו רק את מי שעובר בפרוזדור.
לא יראו את הנכנסים לבית, לא יראו את היושבים בסלון (הילדים באמצע השבוע, כל המשפחה בסעודות שבת..) וכו'.

לאחר התלבטויות רבות - שברנו חלקית את הקיר שמפריד בין המטבח לסלון (בערך 15 ס"מ מעל גובה השיש, ועד התקרה).
השבירה החלקית הביאה למצב שהמטבח לא חשוף באופן מלא (את השיש והבלגן שעליו רואים רק חלקית מאד), ובנוסף - לא היינו צריכים השלמה של ריצוף.
את המקרר, תנורים וכו' - העברנו לקיר מול (רואים אותם מהכניסה, וזה החסרון היחיד בשינוי שעשינו).

את שולחן האוכל פיצלנו לשניים - שולחן בגובה סנדרטי לאורך הקיר שמול הגז (3 מקומות, בפועל נכנסים אפילו 5) + 2 מקומות בשולחן שיש באזור שבו שברנו את הקיר.
קיבלנו קצת השגות על הפיצול של שולחן האוכל לשניים, אבל בפועל זה עובד לנו מקסים!
מאפשר לחלק קצת בין שולחן הילדים, לבין המתבגרים והמבוגרים שאוכלים (הרבה פעמים גם ארוחות שונות, בשרי וחלבי וכו'). נותן סוג של 'פינת קפה' נפרדת.

ומה שהכי חשוב - השבירה של הקיר היתה משמעותית לנו מאד מאד! לא מתחרטים לרגע!!
מאפשר זרימה בין המשפחה והילדים בסלון, לי ולמי שנמצא במטבח, נותן תחושה של מעורבות בבית גם בזמן הבישולים, ומצד שני - לא חושף את המטבח לכניסה באופן מוגזם. נותן תחושה מאווררת ורחבה בכניסה לבית.

זה בערך השרטוט של המטבח המעודכן שלנו
(האזור הצבוע בירוק זה הקיר ששברנו) :

1715762760341.png


בהצלחה רבה
 

קבצים מצורפים

  • 1715761984282.png
    1715761984282.png
    KB 66.3 · צפיות: 31
  • 1715762509918.png
    1715762509918.png
    KB 39.9 · צפיות: 30
נערך לאחרונה ב:
  • הוסף לסימניות
  • #14
מבין את הצורך במטבח פתוח אך לא רואה משמעות כל כך בשבירת הקיר שהצעתם
כן רואה משמעות אם זה מעשי לשנות מיקום למטבח לפי סקיצה מצוב - -וזה עולם אחר
ומודע לחיסרון שהחדר יאוורר דרך חדר שרות
האמת שאין אפשרות כרגע לשינוי כזה
ולמה אתה לא רואה משמעות בשבירת הקיר? זה לא ייתן מראה פתוח?
 
  • הוסף לסימניות
  • #15
מבנה הדירה שלנו בחלק הזה דומה מאד,
רק שאנחנו צרפנו את מרפסת השירות למטבח (הוספנו את מסתור הכביסה שהיה אח"כ כמרפסת שירות חדשה למטבח, ובנוסף - חדר כביסה בתוך הבית)

צפה בקובץ המצורף 1651383

אני מבשלת ונמצאת המון במטבח,
הפריעה לי מאד מאד העובדה שמהמטבח יראו רק את מי שעובר בפרוזדור.
לא יראו את הנכנסים לבית, לא יראו את היושבים בסלון (בעיקר בסעודות שבת..) וכו'.

לאחר התלבטויות רבות - שברנו חלקית את הקיר שמפריד בין המטבח לסלון (בערך 15 ס"מ מעל גובה השיש, ועד התקרה).
השבירה החלקית הביאה למצב שהמטבח לא חשוף באופן מלא (את השיש והבלגן שעליו רואים רק חלקית מאד), ובנוסף - לא היינו צריכים השלמה של ריצוף.
את המקרר, תנורים וכו' - העברנו לקיר מול (רואים אותם מהכניסה, וזה החסרון היחיד בשינוי שעשינו).

את שולחן האוכל פיצלנו לשניים - שולחן בגובה סנדרטי לאורך הקיר שמול הגז (3 מקומות, בפועל נכנסים אפילו 5) + 2 מקומות בשולחן שיש באזור שבו שברנו את הקיר.
קיבלנו קצת השגות על הפיצול של שולחן האוכל לשניים, אבל בפועל זה עובד לנו מקסים!
מאפשר לחלק קצת בין שולחן הילדים, לבין המתבגרים והמבוגרים שאוכלים (הרבה פעמים גם ארוחות שונות, בשרי וחלבי וכו'). נותן סוג של 'פינת קפה' נפרדת.

ומה שהכי חשוב - השבירה של הקיר היתה משמעותית לנו מאד מאד! לא מתחרטים לרגע!!
מאפשר זרימה בין המשפחה והילדים בסלון, לי ולמי שנמצא במטבח, נותן תחושה של מעורבות בבית גם בזמן הבישולים, ומצד שני - לא חושף את המטבח לכניסה באופן מוגזם. נותן תחושה מאווררת ורחבה בכניסה לבית.

זה בערך השרטוט של המטבח המעודכן שלנו
(האזור הצבוע בירוק זה הקיר ששברנו) :

צפה בקובץ המצורף 1651401

בהצלחה רבה
תודה על הפירוט !
זה בהחלט רעיון לשבור חלקית את הקיר ולשים שם שולחן קטן.
ובגדול חשבתם על הרעיון לשבור את כל הקיר?
 
  • הוסף לסימניות
  • #16

קבצים מצורפים

  • 1650761-afcd7085a6f206f72a12894acb067924 (1).png
    1650761-afcd7085a6f206f72a12894acb067924 (1).png
    KB 210.6 · צפיות: 55
  • הוסף לסימניות
  • #17
כן, חשבנו.
תודה על הפירוט !
זה בהחלט רעיון לשבור חלקית את הקיר ולשים שם שולחן קטן.
ובגדול חשבתם על הרעיון לשבור את כל הקיר?
כן, חשבנו הרבה על אופציה של שבירת הקיר,
ושולחן אוכל במיקום הזה (דומה מאד לשרטוט שהוסיף עכשיו ilan p, עלו כמה אופציות חלופיות דומות).
הפריע לנו שיושבים ואוכלים ממש מול הכניסה. ובנוסף - היתה לנו בעיה אמיתית עם השלמת הריצוף (נגמר לנו, נגמר בחברה, ולא השגנו בשום מקום אחר).
אבל חושבת שזו אפשרות בהחלט סבירה.
 
  • הוסף לסימניות
  • #18
כן, חשבנו.

כן, חשבנו הרבה על אופציה של שבירת הקיר,
ושולחן אוכל במיקום הזה (דומה מאד לשרטוט שהוסיף עכשיו ilan p, עלו כמה אופציות חלופיות דומות).
הפריע לנו שיושבים ואוכלים ממש מול הכניסה. ובנוסף - היתה לנו בעיה אמיתית עם השלמת הריצוף (נגמר לנו, נגמר בחברה, ולא השגנו בשום מקום אחר).
אבל חושבת שזו אפשרות בהחלט סבירה.
לפני כמה שנים עשיתם את זה?
זה משהו שעדכני גם היום?
 
  • הוסף לסימניות
  • #19
כן, חשבנו.

כן, חשבנו הרבה על אופציה של שבירת הקיר,
ושולחן אוכל במיקום הזה (דומה מאד לשרטוט שהוסיף עכשיו ilan p, עלו כמה אופציות חלופיות דומות).
הפריע לנו שיושבים ואוכלים ממש מול הכניסה. ובנוסף - היתה לנו בעיה אמיתית עם השלמת הריצוף (נגמר לנו, נגמר בחברה, ולא השגנו בשום מקום אחר).
אבל חושבת שזו אפשרות בהחלט סבירה.
אפשר לעשות את זה אולי בגובה בר
זאת אומרת שהשיש ימשיך לשם ויש מקומות ישיבה
זה גם נותן עוד משטחי עבודה נוחים
ולדעתי יכסה יותר את הרצפה
אגב לגבי זה שרואים מהכניסה את מי שאוכל - מעניין לראות אם זה בשטח באמת ככה
לפי השרטוט זה דווקא נראה שממש יצטרכו להכניס ראש כדי לראות, לא?
 

פרוגבוט

תוכן שיווקי
פרסומת

פוסטים חדשים שאולי לא קראת....

הכותרת לא באה להתריס היא באה להדגיש מצב
ולא לא באתי לומר שאבא או אמא עם ילד או שניים זה לא אתגר
אבל שימו לב
בעוד אתם בונים על ההורים לרוב פסח ולכן מכשירים פיסת שיש קטן לפינת קפה. מדף במקרר. ובארון
כי מילא רוב החג נהייה אצל ההורים
ההורים והרווקים בבית קורעים את עצמם [תזכרו זה לא היה כזה מזמן]
כן אמא שלך לא נחה כבר 3 שבועות

להפוך בית שלם 100+ מטר של ארונות כיורים שולחנות מטבח סלון כיסאות מזווה מיטות
לכשר לפסח
לאפשרות שאתם וילדכם הסתובבו בחופשיות עם מצה ואפיקומן שסבא קנה
לא נכנסתי להוצאות המטורפות שקצת עוברות לידכם. למה שתקנו מצות יין או חסה או נייר כסף לציפוי המטבח
ושוב לא בהאשמה ולא בטרוניה אלא כנתון מציאותי
אז זו''צ יקר קצת שימת לב
לפרגן לבוא לעזור חצי יום
לפרגן ארוחה לעובדים בבית [הבית שלך חמץ המטבח שלהם במרפסת שרות]
לתת מילה טובה או שוקולד
והחשוב מכל
מעשרות להורים
הם חשובים יותר מכל כולל ארגון או קמחה דפסחא הם ההורים שלך

והם יממנו לך את ארוחות וסעודות החג
בס"ד

ההבדל בין נוכלות לבין כישלון



לפני כחודש נערך בבני ברק מיפגש מאוד מעניין של גוף הנקרא "הפורום להגנת הצרכן" והוא עסק בעיקר בדרכים למניעת נפילות נדל"ן בהם הציבור החרדי "מומחה" ליפול חזור ונפול.

הנוכחים, מומחים איש איש בתחומו, תיארו את הנוכלויות הרווחות היום ותיארו בצבעים קודרים ואמיתיים את המצב בכי רע, היו שם גדולי הדיינים שדיברו על הצורך להבטיח שהדור השני לא עושה שטויות עם הדירה שקיבלו מההורים וכן הלאה.

כאשר ר' איצ'ה דזיאלובסקי העניק לי את רשות המילה האחרונה (בגלל שאיחרתי – הרגל נעשה טבע) בקשתי מהנוכחים שלא יישפכו את התינוק אם המים, כלומר שלא יביאו אנשים למצב שבו הם חושדים בכל מה שלא זז שהוא נוכלות, הדבר הזה טענתי עלול להביא לשיתוק מוחלט של שוק השקעות הנדל"ן החרדי אשר היה והינו הקטליזטור הראשי של הציבור החרדי בדרכו לנישואי ילדים ברוגע ושלווה, המסר המרכזי של שתי דקות הנאום שלי זה מה שאתם הולכים לקרוא באלף מילים הבאות: לא כל עסקה כושלת היא אשמת המשווק!

צרות אחרונות משכחות את הראשונות וכך שכחתי מזה לגמרי, אלא שהשבוע פורסמה כתבה בעיתון 'דה-מרקר' (מי שלא מכיר לא הפסיד - מלא באהבת כסף ושנאת חרדים) כתבת תחקיר עומק אודות תופעת העוקצים בציבור החרדי הכרוכים במבצעי 10/90 הזכורים לשימצה.

מה שלא אהבתי זה ההתמקדות במתווך חרדי מסוים כאילו הוא שורש הרע בעולם כולו ואיך מלאו ליבו כביכול, ומעשה שהיה כך הווה בעשרות עותקים ברחבי הארץ שרובם מוכרים לי היטיב:

אברכים שחושבים שהם אנשי-עסקים פותו בידי אנשי-עסקים שחושבים שהם אברכים לקנות דירות פאר בערים שהם מכירים רק מחלונות האוטובוס בדרך למירון, נתניה ובת ים מככבות בכתבה אך זה לאורך כל הארץ בערים אשר אברך ממוצע מכיר את שמותיהם רק מהתרעות פיקוד העורף (או מהנפילות שאחריהן) ומעולם לא ביקר בהן.

אז איך משכנעים אברך כולל חסידי בן 22 שקיבל מההורים חצי מיליון ₪ לצורך יחידת 'סליחה' בביתר, לרכוש פנטהוז בהרצליה בארבע מיליון ₪ ?

מספרים לו שזה מבצע מיוחד שהתגלה רק למתווך בגילוי שמימי וכעת צריך רק לשלם עשרה אחוז שזה ארבע מאות אלף שקל ואת המאה הנותרים להביא למתווך על הגילוי הנפלא.

ואיך הדלפון שלנו יממן את מה שעשירי טבריה מתקשים?

כאן מגיע החלק השני של הגילוי אליהו – המתווך יודע לנבא כי בעוד שלוש שנים, כשיצטרכו להשלים את הרכישה הדירה תהיה שווה חמישה מיליון, ואז האברך דנן יתברר כסוחר מוצלח ביותר אשר ימשוך חזרה את הארבע מאות ועוד מיליון רווח נקי וכך לא יצטרך לגור בדירת הסליחה אלא בדירה גדולה המרחיבה דעתו של אדם ומרחיבה ארנקו של המשווק.

אז איפה הקצ'?

שעכשיו זה "אחרי שלוש שנים" ומתברר כי המחיר הכי גבוה שאפשר לקבל על הדירה הוא שלוש וחצי מיליון ואחרי ההוצאות מגיעים לשלוש מאתיים נטו ביד, מה שאומר שלפעמים עדיף לאותו אברך לעשות "ויברח" ולהותיר את הארבע מאות אצל החברה והמשווק ולחזור ליחידת הסליחה אבל וחפוי ראש, והפעם כשוכר...

זה פחות או יותר המסלול שאותו עוברות בחודשים אלו מאות משפחות מאנ"ש שכל מה שהם רצו זה לחתן את הילדים בכבוד וכעת הם מרוסקים לחלוטין וייקח להם שנים רבות אם בכלל כדי להתאושש מהתהום הכלכלית שהם הוכנסו אליה בידי משווק פלוני.

אך עשרת הקוראים כאן יודעים שעד כאן הייתה רק ההקדמה, כעת נתחיל עם הניתוח הכואב של הנתונים ואת הצד של לימוד זכות:

ובכן, קודם כל צריך לדעת שרבים מאוד הרוויחו בפריסיילים ותכניות דומות הרבה כסף, פגשתי ועודני פוגש כל יום אברכים צעירים ומבוגרים שהרוויחו סכומים אגדיים בשנים האחרונות כתוצאה מהפטנט הזה, לא ערכתי מחקר עומק אך מהתרשמותי המרוויחים רבים בהרבה על המפסידים וחבל שאת זה שומרים בסוד מאימת המצ'ינגים, הסיבה היחידה שמספרים לי על כך זה או כדי לשאול איך לעשות את הסיבוב הבא או כדי להתייעץ איך לצמצם את המסים העצומים (ברוך השם, כשיש מס סימן שיש שבח).

כל מי שקנה דירה בירושלים במחירי פריסייל של עשרים ומשהו אלף עשה את המיליון הזה, כך גם רבים שהשקיעו בחלק מהפרוייקטים בבן שמן וכך גם במקומות נוספים אשר המחירים עלו שם דרמטית ולקחו איתם את המשקיעים כלפי מעלה.

אז מה קרה בכל הפרוייקטים הכושלים?

שני דברים, הראשון שלא ידוע לי אם קרה זה הקפצת מחירים, מאוד ייתכן שמשווק מסוים יבוא לקבלן שיש לו כבר פריסייל ויגיד לו במקום למכור ב3.9 אביא לך קונים בארבע מיליון ואז מקבלים תרי זוזי: מאה אלף מהקבלן ועוד אחד מהלקוח, חד גדיא דזבין את אבא.

זה נורא לשמוע שיש דברים כאלו וטיפש מי שנופל לכך אך מי שיותר טיפש ממנו הוא מי שמאמין שאפשר למנוע דבר כזה באמצעות בירור אם המתווך אמין: גם המתווך האמין ביותר לא יעמוד בפני ניסיון של מאתיים אלף ₪ רק מלאך יוותר על זה ולא ניתנה תורת העסקים למלאכי השרת.

אך הדבר הזה לא מתקיים בדרך כלל משום שרוב הקונים יודעים לבדוק בערך את המחיר בסביבה ולא נופלים לבורות עמוקים, מה שכן קורה זה הדבר השני ועליו ברצוננו לדבר:

המחיר פשוט לא עלה, ולפעמים אפילו ירד.

כן רבייסיי, מחירי דירות לא רק עולים, לפעמים הם גם יורדים, כגון למשל בתקופת מלחמה.

עד מלחמת שמחת-נורא המחירים בנתניה למשל אכן השתוללו כי הצרפתים קנו שם בהמוניהם והוא הדין בצפת שהאמריקאים עטו עליה כי אצלם אין הבדל בין ירושלים לצפת, באמריקה זה מרחק סביר לנסיעה יומיומית לעבודה, אז מישהו משווק להם את זה כירושלים לעניים והם קנו וקנו והמחירים עלו ועלו והייתה היתכנות מסויימת לעלייה צפוייה.

ואז הגיע המלחמה ואין חוצניקים, ועוד מלחמה ועוד מבצע ושום דבר לא חזר לעצמו ואפשר לקלל את איראן (מגיע להם) ואת החמאס (עוד יותר מגיע) אך זה לא יעזור לעובדה הפשוטה שמחירי המגדלים שיועדו בעיקר לאוכלוסיות אלו צולל.

לא בהרבה, אך מספיקה ירידה של 8% כדי שכל העסק יהפוך להפסד.

זה נכון שמעצבן שהמשווק ניבא שהמחירים יעלו והם לא, אמנם אמרו חז"ל שנבואה ניתנה לשוטים אך האמונה כי יש למישהו נבואה ניתנה לשוטים גדולים עוד יותר... כל בר דעת העושה עסקים יודע שבכל הקשור לניבוי עתידות - המשווק ועטיפת המסטיק יודעים לנבא באותה מידה ומי שמסתמך על הבטחות אודות העתיד (כולל אלפי אברכים שנופלים היום בפריסייל של המחר שנקרא פינוי בינוי המבוסס על אותה נבואה כמעט) אין לו לבוא בטענות אלא על עצמו, לא המשווק נשך לשונרא.

מקווה שהצלחתי להסביר: לא כל עסקה כושלת היא נוכלות ולא כל ירידת מחירים היא עקיצה, בכל עסק ייתכן מאוד הפסד ומי שלא מוכן לכך שלא ייכנס לעולם ההשקעות.

אז להפסיק להשקיע בנדל"ן?

חלילה, כמה שיותר להשקיע בנדל"ן וכל המרבה הרי זה משובח – ואם ירצה השם ויהיה זמן נרחיב אולי בטור הבא על "מה כן" – אך רק עסקאות נטולות הימור על כל הקופה, כך שגם אם נגזר עליך להפסיד זה יהיה רק קצת ורק זמני.

ברור לי שכל הדברים האמורים כאן ברורים לכל אחד מעשרת הקוראים וסליחה שבזבזתי את זמנכם אך אם זה ירגיע אבא סוער אחד -שכועס בכל ליבו על המתווך שכאילו הפיל את החתן שלו - והיה זה שכרי.



גילוי נאות: לכותב אין ולא היה שום אינטרס כלכלי בשום פרוייקט של פריסל והוא אינו קשור היום לשום שיווק לא במישרין ולא בעקיפין, המידע מובא ללא כל אינטרס כלכלי אלא כצדקה ושירות לציבור, לשאלות ספציפיות ניתן לפנות למייל והתשובות שם חינם וללא אחריות.
סיכום אירועים: איראן בלהבות - מהמחאות ועד לסף עימות עולמי

הרקע וההתפרצות (סוף דצמבר 2025):

המחאות החלו ב-28 בדצמבר 2025 בטהראן, על רקע משבר כלכלי חריף וצניחה חדה בערך הריאל. מה שהחל כזעקת סוחרים ואזרחים על יוקר המחיה, הפך במהירות לגל הפגנות חסר תקדים ב-187 ערים הקורא להפלת המשטר.


הטבח והחשכת המידע (ינואר 2026):
  • דיכוי אלים: המשטר האיראני הגיב באכזריות יוצאת דופן. לפי נתוני ארגון זכויות האדם HRANA, נכון ל-23 בינואר, מספר ההרוגים המאומת עומד על למעלה מ-5,000 בני אדם, בהם 4,716 מפגינים ועשרות ילדים.
    יש דיווחים לא מאומתים מצד האופוזיציה האיראנית על מעל 60,000 הרוגים!

  • מעצרים המוניים: למעלה מ-26,500 בני אדם נעצרו, וקיים חשש כבד להוצאות להורג המוניות בבתי הכלא.

  • חסימת אינטרנט: החל מה-8 בינואר הוטל מצור דיגיטלי כמעט מוחלט על המדינה כדי למנוע זליגת תיעודים מהטבח.

המעורבות האמריקנית - "הארמדה של טראמפ":
הנשיא טראמפ, שחזר והזהיר את טהראן מפני המשך הטבח, הכריז ב-22 בינואר כי "ארמדה" אמריקנית (צי ספינות מלחמה, כולל נושאת המטוסים אברהם לינקולן) עושה את דרכה למפרץ הפרסי. טראמפ הבהיר כי ארה"ב בוחנת אפשרויות תקיפה ישירות נגד מטרות שלטוניות אם לא ייפסק הדיכוי. ולאחר הדלפות על ממדי הטבח, הכריז "העזרה בדרך".


הזווית הישראלית והאזורית:
  • כוננות שיא: ישראל נמצאת בדריכות עליונה מחשש שהסלמה אמריקנית תוביל לתגובה איראנית ישירה או באמצעות שלוחיה (פרוקסי).

  • איומי נתניהו: ראש הממשלה נתניהו הזהיר כי אם איראן תבצע "טעות" ותתקוף את ישראל, היא תפגוש עוצמה שטרם הכירה.

  • איומי טהראן: המשטר האיראני הודיע כי במקרה של תקיפה, בסיסים אמריקניים ויעדים בישראל יהיו "מטרות לגיטימיות".

באשכול זה נמשיך לעדכן סביב השעון בכל התפתחות, דיווחים מהשטח ופרשנויות ביטחוניות.
עודכן אדר תשפ"ד
ראשית, גופי הכשרות
ברוב אשכולות בנושא 'השקעות בשוק ההון' בפרוג, משתרבב עניין הכשרות.
למען הסדר באשכול זה נעלה עדכונים בנושא כשרות.
אני אשתדל לסכם ולתמצת ככל האפשר.

יש 4 גופי כשרות
  • בד"ץ העדה החרדית - על פי פסקי הרב יעקב בלוי זצ"ל שהיה בקיא גדול בתחום שוק ההון והוא שהביא את פסקיו ועל פי פסקים אלו נוהגים עד היום בגוף כשרות זה. היום הכשרות בראשות הרב שלמה זאב קרליבך.
  • גלאט הון - על פי פסקי רבי ניסים קרליץ והרב שמואל ואזנר. שסמכו ידיהם על הרב יעקב לנדו שמכיר את שוק ההון לעומקו. הרב משה שטרנבוך ראב"ד העדה החרדית הוא מרבני 'גלאט הון'.
  • תשואה כהלכה – הרב שמואל דוד גרוס, רב חסידי גור אשדוד ועוד רבנים מוכרים וידועים בכל שכבות הציבור החרדי.
  • כלכלה על פי ההלכה- הרב אריה דביר, על פי פסקי הרב יוסף שלום אלישיב.

היום בכל החברות יש מסלולים כשרים, שמאושרים לפחות ע"י אחת מהכשרויות.
בין החברות שנמצאת ברשותם תעודת כשרות אפשר למצוא את:
אלטשולר שחם, אינפיניטי, הפניקס, הראל, כלל, מגדל, מור, מיטב דש, מנורה.

רשימות קרנות כשרות:

הצטרפות לניוזלטר

איזה כיף שהצטרפתם לניוזלטר שלנו!

מעכשיו, תהיו הראשונים לקבל את כל העדכונים, החדשות, ההפתעות בלעדיות, והתכנים הכי חמים שלנו בפרוג!

לוח מודעות

הפרק היומי

הפרק היומי! כל ערב פרק תהילים חדש. הצטרפו אלינו לקריאת תהילים משותפת!


תהילים פרק כה

אלְדָוִד אֵלֶיךָ יי נַפְשִׁי אֶשָּׂא:באֱלֹהַי בְּךָ בָטַחְתִּי אַל אֵבוֹשָׁה אַל יַעַלְצוּ אֹיְבַי לִי:גגַּם כָּל קוֶֹיךָ לֹא יֵבֹשׁוּ יֵבֹשׁוּ הַבּוֹגְדִים רֵיקָם:דדְּרָכֶיךָ יי הוֹדִיעֵנִי אֹרְחוֹתֶיךָ לַמְּדֵנִי:ההַדְרִיכֵנִי בַאֲמִתֶּךָ וְלַמְּדֵנִי כִּי אַתָּה אֱלֹהֵי יִשְׁעִי אוֹתְךָ קִוִּיתִי כָּל הַיּוֹם:וזְכֹר רַחֲמֶיךָ יי וַחֲסָדֶיךָ כִּי מֵעוֹלָם הֵמָּה:זחַטֹּאות נְעוּרַי וּפְשָׁעַי אַל תִּזְכֹּר כְּחַסְדְּךָ זְכָר לִי אַתָּה לְמַעַן טוּבְךָ יי:חטוֹב וְיָשָׁר יי עַל כֵּן יוֹרֶה חַטָּאִים בַּדָּרֶךְ:טיַדְרֵךְ עֲנָוִים בַּמִּשְׁפָּט וִילַמֵּד עֲנָוִים דַּרְכּוֹ:יכָּל אָרְחוֹת יי חֶסֶד וֶאֱמֶת לְנֹצְרֵי בְרִיתוֹ וְעֵדֹתָיו:יאלְמַעַן שִׁמְךָ יי וְסָלַחְתָּ לַעֲוֹנִי כִּי רַב הוּא:יבמִי זֶה הָאִישׁ יְרֵא יי יוֹרֶנּוּ בְּדֶרֶךְ יִבְחָר:יגנַפְשׁוֹ בְּטוֹב תָּלִין וְזַרְעוֹ יִירַשׁ אָרֶץ:ידסוֹד יי לִירֵאָיו וּבְרִיתוֹ לְהוֹדִיעָם:טועֵינַי תָּמִיד אֶל יי כִּי הוּא יוֹצִיא מֵרֶשֶׁת רַגְלָי:טזפְּנֵה אֵלַי וְחָנֵּנִי כִּי יָחִיד וְעָנִי אָנִי:יזצָרוֹת לְבָבִי הִרְחִיבוּ מִמְּצוּקוֹתַי הוֹצִיאֵנִי:יחרְאֵה עָנְיִי וַעֲמָלִי וְשָׂא לְכָל חַטֹּאותָי:יטרְאֵה אוֹיְבַי כִּי רָבּוּ וְשִׂנְאַת חָמָס שְׂנֵאוּנִי:כשָׁמְרָה נַפְשִׁי וְהַצִּילֵנִי אַל אֵבוֹשׁ כִּי חָסִיתִי בָךְ:כאתֹּם וָיֹשֶׁר יִצְּרוּנִי כִּי קִוִּיתִיךָ:כבפְּדֵה אֱלֹהִים אֶת יִשְׂרָאֵל מִכֹּל צָרוֹתָיו:
נקרא  2  פעמים
למעלה