- הוסף לסימניות
- #21
מצטרפת למה שכתבו פה למעלה מומלץ מאוד תכנון מקצועי -
את יכולה לפנות אליי לתכנון או רק ליעוץ ואשמח לעזור לך
את יכולה לפנות אליי לתכנון או רק ליעוץ ואשמח לעזור לך
אני לא אוהבת לגרום לאנשים להוציא כסף מיותרמקפיצה
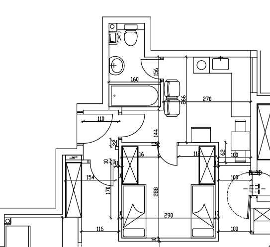
בינתיים הגענו לרעיון שנראה לי נכון יותר מבחינת תכנון חדר האמבטיה וחדר השינה
אבל את השטח המרכזי אני עדיין לא מצליחה לארגן כמו שאני אוהבת
למישהי יש רעיון ?
אשמח לכל כוון... מציינת שאפשר לבצע שינויי קירות קלים (הקיר הימני גובל בממ"ד)
תודהצפה בקובץ המצורף 765401
אני בתהליך עם אדריכלית מטעמיאני לא אוהבת לגרום לאנשים להוציא כסף מיותר
ולכן פעמים רבות לא אייעץ ללכת לאדריכל/ית חיצוני/ת
אבל במקרה הזה- אתם הולכים לשלם כסף לא מועט על ההסבה ליח"ד, יש לה שטח לא קטן מצד אחד אך לא פשוט מצד שני
ולכן נראה לי שאסור לכם במקרה הזה לחסוך את העלות של תכנון נכון
זה לא אמור לעלות ממון רב אם תסתפקו בהטמעת השינויים ע"י אדריכלית השינויים של הפרויקט, כך האדריכלית מטעמכם תצטרך רק לבדוק ולדייק אופציות עד שתגיעו לאופציה המתאימה
הכניסה לאמבטיה נכונה יותר מבחינת סידור האמבטיה אך לא מצד המיקום של הפתח כלפי המטבחאני בתהליך עם אדריכלית מטעמי
והיא זאת שהציעהאת האופציה של שינוי הכניסה לחדר האמבטיה
אך בהקשר של חדר המגורים אני לא מרגישה שמתחברת למה שהיא מציעה
נכוןמשהו במידות שח החדר או במידות הרהיטים שם נראה לא נכון או לא פרופורציונאלי
2 כורסאות כדי שיוכלו לשבת שם שניהם תמיד, כמובן למקם אותם אחד ליד השני-למה 2 כורסאות ולא ספה קטנה?
-אם את דוחפת את הדלת של האמבטיה פנימה תהפכי אותה להזזה.
-הבלוקים של המיטות בחדר שינה מטעים: אורך הקיר 287, אורך מיטה 200, נשאר 87 לארון, ובשרטוט הוא נראה גדול יותר- וזה משפיע על התכנון של הבית שלך במיטה הימנית.
עדיף שיראו מול הכניסה את השיש?והכורסאות להזיז זה ממש חוסם את הכניסה
אז לדעתך עדיף לדחוף את הכורסאות לנישה ולהזיז את קיר השיש ליד האמבטיה?זה יחידת דיור גם ככה המטבמ זה בערך כל הבית.. הכןרסאות לא באמת מסתירות
יש מצב תלוי איך ישבאז לדעתך עדיף לדחוף את הכורסאות לנישה ולהזיז את קיר השיש ליד האמבטיה?
rhon.co.il
מעכשיו, תהיו הראשונים לקבל את כל העדכונים, החדשות, ההפתעות בלעדיות, והתכנים הכי חמים שלנו בפרוג!
חלה שגיאה בשליחה. נסו שוב!
לוח לימודים
מסלולי לימוד שאפשר להצטרף
אליהם ממש עכשיו:
תהילים פרק כה
אלְדָוִד אֵלֶיךָ יי נַפְשִׁי אֶשָּׂא:באֱלֹהַי בְּךָ בָטַחְתִּי אַל אֵבוֹשָׁה אַל יַעַלְצוּ אֹיְבַי לִי:גגַּם כָּל קוֶֹיךָ לֹא יֵבֹשׁוּ יֵבֹשׁוּ הַבּוֹגְדִים רֵיקָם:דדְּרָכֶיךָ יי הוֹדִיעֵנִי אֹרְחוֹתֶיךָ לַמְּדֵנִי:ההַדְרִיכֵנִי בַאֲמִתֶּךָ וְלַמְּדֵנִי כִּי אַתָּה אֱלֹהֵי יִשְׁעִי אוֹתְךָ קִוִּיתִי כָּל הַיּוֹם:וזְכֹר רַחֲמֶיךָ יי וַחֲסָדֶיךָ כִּי מֵעוֹלָם הֵמָּה:זחַטֹּאות נְעוּרַי וּפְשָׁעַי אַל תִּזְכֹּר כְּחַסְדְּךָ זְכָר לִי אַתָּה לְמַעַן טוּבְךָ יי:חטוֹב וְיָשָׁר יי עַל כֵּן יוֹרֶה חַטָּאִים בַּדָּרֶךְ:טיַדְרֵךְ עֲנָוִים בַּמִּשְׁפָּט וִילַמֵּד עֲנָוִים דַּרְכּוֹ:יכָּל אָרְחוֹת יי חֶסֶד וֶאֱמֶת לְנֹצְרֵי בְרִיתוֹ וְעֵדֹתָיו:יאלְמַעַן שִׁמְךָ יי וְסָלַחְתָּ לַעֲוֹנִי כִּי רַב הוּא:יבמִי זֶה הָאִישׁ יְרֵא יי יוֹרֶנּוּ בְּדֶרֶךְ יִבְחָר:יגנַפְשׁוֹ בְּטוֹב תָּלִין וְזַרְעוֹ יִירַשׁ אָרֶץ:ידסוֹד יי לִירֵאָיו וּבְרִיתוֹ לְהוֹדִיעָם:טועֵינַי תָּמִיד אֶל יי כִּי הוּא יוֹצִיא מֵרֶשֶׁת רַגְלָי:טזפְּנֵה אֵלַי וְחָנֵּנִי כִּי יָחִיד וְעָנִי אָנִי:יזצָרוֹת לְבָבִי הִרְחִיבוּ מִמְּצוּקוֹתַי הוֹצִיאֵנִי:יחרְאֵה עָנְיִי וַעֲמָלִי וְשָׂא לְכָל חַטֹּאותָי:יטרְאֵה אוֹיְבַי כִּי רָבּוּ וְשִׂנְאַת חָמָס שְׂנֵאוּנִי:כשָׁמְרָה נַפְשִׁי וְהַצִּילֵנִי אַל אֵבוֹשׁ כִּי חָסִיתִי בָךְ:כאתֹּם וָיֹשֶׁר יִצְּרוּנִי כִּי קִוִּיתִיךָ:כבפְּדֵה אֱלֹהִים אֶת יִשְׂרָאֵל מִכֹּל צָרוֹתָיו:
הנושאים החמים



Reactions: אבסולוט פרימה בלרינה, חלומות ירוקים, Harmonyapro ועוד 113 משתמשים116 //