עיצוב תכנון מטבח חדש

  • הוסף לסימניות
  • #1
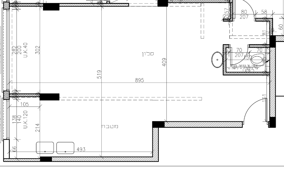
אנחנו משפצים דירה מהיסוד ואמורים להזמין גם מטבח...
אין באפשרותינו לקחת מעצבת פנים, כנראה נזמין מטבח אצל נגר זול יחסית אבל צריך להגיע אליו עם תוכניות סופיות סופיות כולל חלוקת ארונות
כרגע אין במטבח אפילו חשמל ואינסטלציה
יש לנו תוכנית שהאדריכלית שתכננה את כל החלוקת דירה נתנה אבל הדגישה שנפנה למעצבת כי זה מבט על כללי ..

יש למשהו רעיונות איך לשפר את התוכנית ? ואיך לתכנון את חלוקת הארונות? אין לנו הבנה בנושא בכלל ..

לגבי הכיריים האם כדאי להשאיר מתחת לחלון ? פחות מעדיפה מבחינת לכלוך אבל ככה אני מרויחה ניצול מקסימלי של משטחים בשרי וחלבי בלי הפסקה באמצע..

בעיקר מתלבטת לגבי הדלפק , לא רוצים שהישיבה תהייה לכיון הסלון ותתפוס שם מקום , ולכיון המטבח (כמו בסקיצה ) אם נעשה דלפק עם ארונות מתחת זה לפחות רוחב 50-60 ואז אין מקום במטבח והוא צפוף ממש ואם נעשה רק דלפק דק (30 ס"מ לדוגמה) בלי ארונות מתחת לא יהיה מה שיחזיק אותו מהצד השני כי הוא ארוך יחסית..

נשמח לעיצות!
 

קבצים מצורפים

  • מטבח1.PNG
    מטבח1.PNG
    KB 169.3 · צפיות: 257
  • סלון ומטבח.PNG
    סלון ומטבח.PNG
    KB 83.4 · צפיות: 253
  • הוסף לסימניות
  • #2
לתכנן מטבח בלי הבנה בנושא ובלי מעצבת , לדעתי זה לזרוק כסף לפח!
בפרט שאת מתכננת פינה שיוצרת שטח מת...
או שתקראי מלא חומר בנושא שתהיה לך הבנה או תקחי מישהי מתחילה....
המון הצלחה!

אם את רוצה כאן קצת עזרה כדאי לך לתת נתונים על בני הבית ועל צרכי השימוש במטבח...
 
נערך לאחרונה ב:
  • הוסף לסימניות
  • #3
שימוש רגיל ,משפחה עם 4 ילדים כן ירבו..
מה את מתכוונת שטח מת?אין לי דרך לבטל את הפינה אני צריכה את השטח של המטבח מעליו..
 
  • הוסף לסימניות
  • #4
חשבתי בעקרון לא להשתמש בפינה , לעשות מגירות מכיון הצד של החלון ומהצד השני גם ארון או מגירות
שיכולו להפתח לסירוגין ולא להשתמש בפינה עצמה כי אני לא אוהבת את הפתרונות הקיימים לפינות,לא חושבת שמספיק פרקטיים..
 
  • הוסף לסימניות
  • #5
הגודל של המטבח הנתון ממש מאתגר.
הרבה הרבה הצלחה!
 
  • הוסף לסימניות
  • #7
למה מתאגר? מבחינת אורך הוא דוקא די ארוך , יש אפשרות למשטחים גדולים יחסית
המטבח צר, זה האתגר...
ישאר מרווח עמידה של 1 מטר בין הכיסאות לשיש... מה שלא מאפשר מעבר ל2 אנשים במקביל...
הסלון גם צר ...
לא טוב לשים את הגז צמוד לפינה אלא 10-30 ס"מ מהצד.

את יכולה ללכת לחברה/ נגר שכן נותנים עיצוב מטבח/תכנון חלוקת ארונות.
 
  • הוסף לסימניות
  • #8
הי,
יש לי בשבילך הצעה מעניינת ממש
מוזמנת ליצור קשר ב0548562448
 
  • הוסף לסימניות
  • #9
עדיף שהשולחן יבלוט לכיוון הסלון ולא לתוך המטבח (גם כך יהיה צפוף...)
את הכיריים להזיז מעט שמאלה
את הארון הגבוה ליד השולחן הייתי מבטלת. הוא מעמיק את תחושת הכוך וחבל.
 
  • הוסף לסימניות
  • #10
ומה הייתם מציעים לגבי הפינה ?
האם לא להשתמש בפינה , לעשות מגירות מכיון הצד של החלון ומהצד השני גם
או להשתמש באחד מהפתרונות לפינות?
או שיש רעיון אחר?
 
  • הוסף לסימניות
  • #11
עדיף שהשולחן יבלוט לכיוון הסלון ולא לתוך המטבח (גם כך יהיה צפוף...)
את הכיריים להזיז מעט שמאלה
את הארון הגבוה ליד השולחן הייתי מבטלת. הוא מעמיק את תחושת הכוך וחבל.
איזה רוחב לדעתכם לעשות את הדלפק ? רק להמשיך את העמוד הקיים שם מצד המטבח ומצד הסלון סוג 30 ס"מ
או כדאי לעשות רוחב נורמלי שמאפשר גם ארונות מתחת?
כי בגלל שאני רוצה דלפק ארוך לא ניתן לבנותו ללא תמיכה בכלל ואם לא אעשה ארונות מתחת על מה הוא ישב?
סתם דיקט מצופה פורמייקה? מנהסתם מראה פחות יפה..
 
  • הוסף לסימניות
  • #12
תחשבי שוב אם לא שווה מעצבת
אני לא מתחרטת שלקחתי
כל יום אני מברכת אותה!
מטבח מעוצב או לא זה לא דומה ולא כמו....

בהצלחה
 
  • הוסף לסימניות
  • #13
ומה הייתם מציעים לגבי הפינה ?
האם לא להשתמש בפינה , לעשות מגירות מכיון הצד של החלון ומהצד השני גם
או להשתמש באחד מהפתרונות לפינות?
או שיש רעיון אחר?
הפתרונות לפינה יקרים מאד, ומבזבזים מקום.
אפשר לעשות עם גישה מהצד השני אולי?
או לבטל לגמרי
 
  • הוסף לסימניות
  • #14
ומה הייתם מציעים לגבי הפינה ?
האם לא להשתמש בפינה , לעשות מגירות מכיון הצד של החלון ומהצד השני גם
או להשתמש באחד מהפתרונות לפינות?
או שיש רעיון אחר?
התפיסה שלי היא להרוג את הפינה.
הפתרונות יקרים ולא באמת חוסכים מקום, כמו שכבר כתבו.

איזה רוחב לדעתכם לעשות את הדלפק ? רק להמשיך את העמוד הקיים שם מצד המטבח ומצד הסלון סוג 30 ס"מ
או כדאי לעשות רוחב נורמלי שמאפשר גם ארונות מתחת?
כי בגלל שאני רוצה דלפק ארוך לא ניתן לבנותו ללא תמיכה בכלל ואם לא אעשה ארונות מתחת על מה הוא ישב?
סתם דיקט מצופה פורמייקה? מנהסתם מראה פחות יפה..
זה דורש תכנון יותר מעמיק, כי צריך לתכנן גם את הסלון כדי לראות איך זה יעבוד
אולי באמת תנסי לתכנן את הסלון וכשהשאלה תהיה ממוקדת יהיה אפשר לתת לך תשובות
בהצלחה!
 
  • הוסף לסימניות
  • #15
מה עומק ורוחב הרצוי למגירות לסירים? לעגלת בקבוקים ?
איזה פתרון קיים לארון למיקסר ? אין לי כל כך מקום לתריס כי אז יגזול לי חלק מהמשטח בשיש..
 
  • הוסף לסימניות
  • #16
עדיף שהשולחן יבלוט לכיוון הסלון ולא לתוך המטבח (גם כך יהיה צפוף...)
את הכיריים להזיז מעט שמאלה
את הארון הגבוה ליד השולחן הייתי מבטלת. הוא מעמיק את תחושת הכוך וחבל.נכון מאד
לגמרי נכון
 
  • תודה
Reactions: GRN
  • הוסף לסימניות
  • #17
מה עומק ורוחב הרצוי למגירות לסירים? לעגלת בקבוקים ?
איזה פתרון קיים לארון למיקסר ? אין לי כל כך מקום לתריס כי אז יגזול לי חלק מהמשטח בשיש..
תדעי שיש אפשרות לקחת מעצבת לפגישה חד פעמית / תשלום מוזל , בלי עיצוב הוםסטיילנג, חומרים , תאורה וכו'...
אלא רק לתכנון פרקטי ונח שישמש אותך לשנים ארוכות וטובות.

וכן כדאי לך לקרוא המון חומר באתר יש המון מידע.

בגדול, לכל הנ"ל אפשר לעשות מגירות בגודל סטנדרטי לפי החלוקה במטבח ולמצוא את המקום המתאים לכל פריט.
גם בהמשך החיים יש תחלופה וחפצים יותר דינאמים ופחות...
לדוג' משפחה עם 4 קטנים צריכה מגירה ל3-5 סירים בינונים, ובע"ה כשתגדלו, תצטרכי מקום לעוד 3-4 סירים גדולים...
 
  • הוסף לסימניות
  • #18
מה עומק ורוחב הרצוי למגירות לסירים? לעגלת בקבוקים ?
איזה פתרון קיים לארון למיקסר ? אין לי כל כך מקום לתריס כי אז יגזול לי חלק מהמשטח בשיש..
יתכן שיעזור לך לשוטט באתר של עמרי רדאי, יש שם הרבה חומר על מטבחים
kitchen-guide.co.il
בהצלחה!
 
  • הוסף לסימניות
  • #19
הי, אשמח להמלצה על מעצבת מעולה ומנוסה למטבח, למשפחה עם ילדים. תודה!
 

פרוגבוט

תוכן שיווקי
פרסומת

אשכולות דומים

הצטרפות לניוזלטר

איזה כיף שהצטרפתם לניוזלטר שלנו!

מעכשיו, תהיו הראשונים לקבל את כל העדכונים, החדשות, ההפתעות בלעדיות, והתכנים הכי חמים שלנו בפרוג!

לוח מודעות

הפרק היומי

הפרק היומי! כל ערב פרק תהילים חדש. הצטרפו אלינו לקריאת תהילים משותפת!


תהילים פרק כה

אלְדָוִד אֵלֶיךָ יי נַפְשִׁי אֶשָּׂא:באֱלֹהַי בְּךָ בָטַחְתִּי אַל אֵבוֹשָׁה אַל יַעַלְצוּ אֹיְבַי לִי:גגַּם כָּל קוֶֹיךָ לֹא יֵבֹשׁוּ יֵבֹשׁוּ הַבּוֹגְדִים רֵיקָם:דדְּרָכֶיךָ יי הוֹדִיעֵנִי אֹרְחוֹתֶיךָ לַמְּדֵנִי:ההַדְרִיכֵנִי בַאֲמִתֶּךָ וְלַמְּדֵנִי כִּי אַתָּה אֱלֹהֵי יִשְׁעִי אוֹתְךָ קִוִּיתִי כָּל הַיּוֹם:וזְכֹר רַחֲמֶיךָ יי וַחֲסָדֶיךָ כִּי מֵעוֹלָם הֵמָּה:זחַטֹּאות נְעוּרַי וּפְשָׁעַי אַל תִּזְכֹּר כְּחַסְדְּךָ זְכָר לִי אַתָּה לְמַעַן טוּבְךָ יי:חטוֹב וְיָשָׁר יי עַל כֵּן יוֹרֶה חַטָּאִים בַּדָּרֶךְ:טיַדְרֵךְ עֲנָוִים בַּמִּשְׁפָּט וִילַמֵּד עֲנָוִים דַּרְכּוֹ:יכָּל אָרְחוֹת יי חֶסֶד וֶאֱמֶת לְנֹצְרֵי בְרִיתוֹ וְעֵדֹתָיו:יאלְמַעַן שִׁמְךָ יי וְסָלַחְתָּ לַעֲוֹנִי כִּי רַב הוּא:יבמִי זֶה הָאִישׁ יְרֵא יי יוֹרֶנּוּ בְּדֶרֶךְ יִבְחָר:יגנַפְשׁוֹ בְּטוֹב תָּלִין וְזַרְעוֹ יִירַשׁ אָרֶץ:ידסוֹד יי לִירֵאָיו וּבְרִיתוֹ לְהוֹדִיעָם:טועֵינַי תָּמִיד אֶל יי כִּי הוּא יוֹצִיא מֵרֶשֶׁת רַגְלָי:טזפְּנֵה אֵלַי וְחָנֵּנִי כִּי יָחִיד וְעָנִי אָנִי:יזצָרוֹת לְבָבִי הִרְחִיבוּ מִמְּצוּקוֹתַי הוֹצִיאֵנִי:יחרְאֵה עָנְיִי וַעֲמָלִי וְשָׂא לְכָל חַטֹּאותָי:יטרְאֵה אוֹיְבַי כִּי רָבּוּ וְשִׂנְאַת חָמָס שְׂנֵאוּנִי:כשָׁמְרָה נַפְשִׁי וְהַצִּילֵנִי אַל אֵבוֹשׁ כִּי חָסִיתִי בָךְ:כאתֹּם וָיֹשֶׁר יִצְּרוּנִי כִּי קִוִּיתִיךָ:כבפְּדֵה אֱלֹהִים אֶת יִשְׂרָאֵל מִכֹּל צָרוֹתָיו:
נקרא  2  פעמים
למעלה