
לשפץ עם טעם ולשמור על המקוריות ?! מאמר חובה לקריאה!
יש גם בונוס קטן: איך להפוך עמוד בעייתי להזדמנות תכנונית מנצחת!
המאמר נכתב בעקבות דיון מקצועי שנתקלתי בו כאן בפורום, במדור 'אדריכלות ועיצוב', על טרנד גווני הסהרה והטקסטורות המחורצות. אין ספק שמדובר בשילוב אסתטי, רגוע ואצילי, אולם מעבר לאסתטיקה עלתה שאלה מהותית יותר: האם עיצוב צריך להיגזר מטרנד, או מאורח החיים של האנשים שגרים בבית.
בתחום עיצוב הפנים קיימים סגנונות רבים מודרני, כפרי, פרובנסי, דרמטי ועוד – אך מעבר להגדרה הסגנונית, נקודת המוצא החשובה ביותר היא התאמת הבית למי שחי בו בפועל: להרגלים, לצרכים, לאופי השימוש בחלל ולתחושת היום־יום הרצויה.
הפרויקט המוצג כאן מדגים גישה זו היטב. מדובר בזוג עם כמה ילדים, שביקשו בית מואר, רגוע ונעים לשהייה יומיומית, עם תחושה של טבע וחומרים רכים. הבקשה הייתה לבית מודרני ונקי, אך לא כזה שמרגיש קר או מנוכר, ולא סגנון פרובנסי או דקורטיבי מדי.
לשם כך נבחרה פלטת צבעים בהירה ומרוככת, נעשה שימוש בחומרים טבעיים, ובעיקר הושם דגש על תכנון שמכניס אור ויוצר תחושת שקט בחלל הציבורי.
כך למשל, בקצה הסלון קיימת מרפסת הפונה לנוף פנורמי פתוח, אולם דלת הוויטרינה המקורית הייתה צרה והגבילה את כניסת האור ואת הקשר עם החוץ. במסגרת התכנון הורחבה הפתיחה כמעט לכל רוחב הקיר, מה שאפשר הכנסת אור טבעי משמעותית יותר, פתיחת המבט אל הנוף וחיזוק תחושת המרחב בסלון.
במטבח, לדוגמה, נשמר קו נקי ופשוט, אך השיש בעל אופי דרמטי, יחד עם נגיעות העץ שמתחת לאי ובוויטרינה מעל הארונות העליונים, מאזנים את המראה ומונעים תחושה סטרילית מדי. חזרתיות של העץ מופיעה גם בספרייה שבסלון, וכך נוצר קשר חומרי בין האזורים השונים ותחושת הרמוניה בחלל.
בסלון נשקלו פתרונות דקורטיביים שונים כגון גופי תאורה תלויים, הנמכות תקרה וקרניזים, אך בסופו של דבר הוחלט להימנע מהם לטובת קו רגוע ואחיד. הבחירה הייתה להישאר עם גופי תאורה וצילינדרים צמודי תקרה בלבד, שתורמים למראה הנקי והסולידי ולתחושת מרחב פתוח.
ולא פחות חשוב – המהלך התכנוני עצמו תרם רבות ליצירת חלל מרווח ונוח. ננסה להביא דוגמה בולטת שיכולה להועיל גם לכם בתכנון מרחבים:
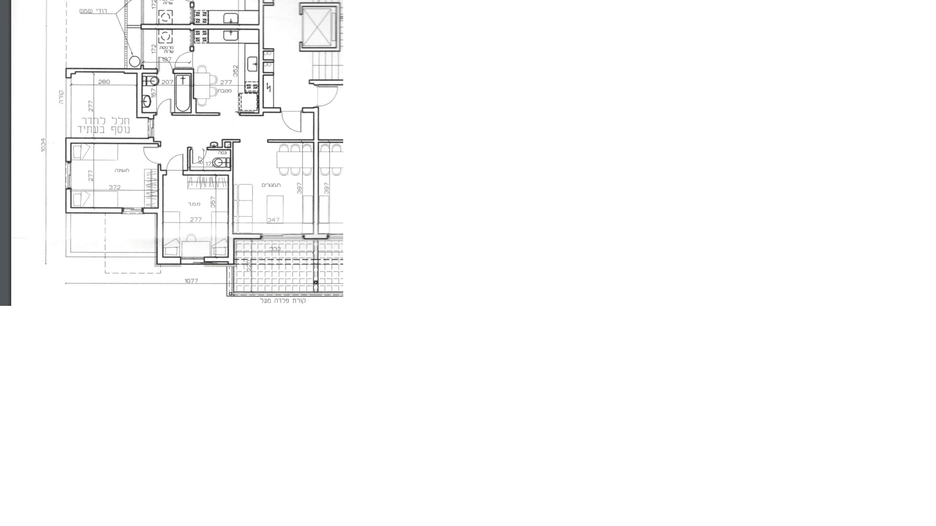
במצב הקיים עמד במרכז החלל עמוד בולט (ללא פתרון הנדסי להסרה). בנוסף, מדרגות לקומה השנייה ירדו ישירות אל שטח המטבח, ויצרו הפרעה תפקודית בחלל. חדי העין יבחינו שגם לא היה מעקה למדרגות – דבר שלא אפשר שימוש בטוח עבור משפחה עם ילדים.
בשלב זה נבחנו שתי חלופות עיקריות:
האחת – להישאר עם התכנון הקיים, להוסיף מעקה, לחפות את העמוד, ולהתמודד עם מגבלות החלל.
השנייה – לבצע שינוי תכנוני עמוק יותר, שיטפל בשורש הבעיה ולא רק בסימפטומים שלה.
בשיתוף עם בעלי הדירה, ולאחר הצגת החלופה בצורה מפורטת, בחרנו באפשרות השנייה.
שירותי האורחים, שהיו ממוקמים בקצה המטבח ותפסו שטח משמעותי, הועברו אל מתחת לגרם המדרגות. מהלך זה אפשר להשיג מספר מטרות במקביל: הרחבת שטח המטבח ושיפור זרימת התנועה בחלל כולו, שילוב העמוד כחלק אינטגרלי מהקיר במקום כאלמנט מפריע, תכנון נכון של תעלות המיזוג במטבח ובסלון, ובנוסף יצירת חציצה בטיחותית בין המדרגות לחלל הציבורי, במקום הוספת מעקה גלוי.
זהו פתרון שממחיש כיצד אילוץ תכנוני יכול להפוך להזדמנות, כאשר בוחנים מחדש את חלוקת הפונקציות בבית ולא רק את העיצוב החיצוני שלהן.
טיפ למי שמתמודד עם מצב דומה:
כאשר קיימים עמודים, מדרגות או אלמנטים שאינם ניתנים להזזה – מומלץ לבדוק האם ניתן “לבלוע” אותם בתוך פונקציה שימושית (כגון שירותים, אחסון או נגרות), במקום לנסות להסתירם באמצעים דקורטיביים בלבד.
בסופו של דבר, הפרויקט מדגים כיצד שילוב של הקשבה לצרכי הדיירים יחד עם פתרונות תכנוניים מדויקים יכול לייצר חלל שהוא גם נעים למראה וגם נכון לשימוש יומיומי. פשטות עיצובית אינה ויתור – אלא בחירה מודעת. וכאשר היא מותאמת לאנשים שגרים בבית, היא לעיתים הפתרון המדויק ביותר.
מקווה שהחכמתם!
צילום באליפות: שושי שוימר.













Reactions: פריידי, גגגגגג, בת-7 ועוד 54 משתמשים57 //