קבוצת אדריכלות ועיצוב פנים

פורום הבית של קבוצת עיצוב פנים של פרוג המאגד אנשי המקצוע מתחום האדריכלות, עיצוב הפנים, תכנון ובניה והום סטילינג.
מנהלות הקבוצה: רותי וינברג, חדוי פלבני, לינוי אלקין
להצטרפות לקהילת אדריכלות ועיצוב פנים, לחצו כאן ←

אדריכלות ועיצוב פנים >> תוכן מקצועי

תיקי עבודות של הדמיות אדריכליות >> העבודות האחרונות, תהנו!

וילה ניו-יורקית
חדר שינה Master | שילוב חומרים וטקסטורות
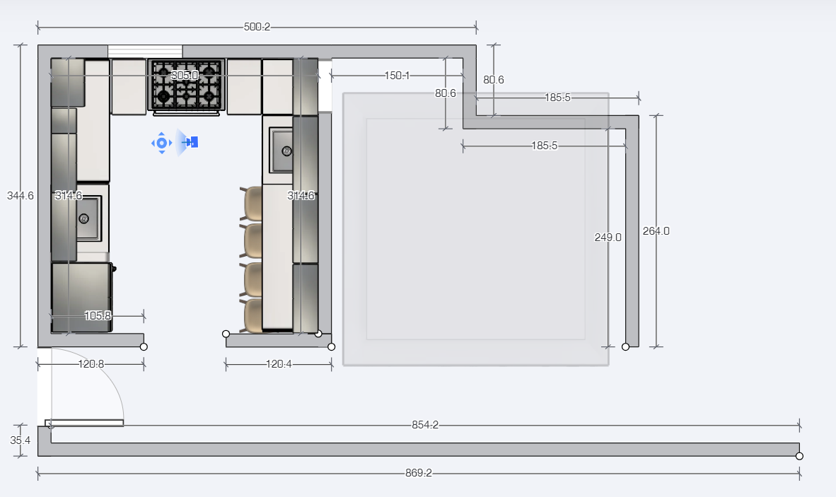
אנחנו צריכים להזמין מטבח, ניסיתי לתכנן את המטבח לבד
עשיתי שירטוט בתוכנה של אופיס, ואמרו לי שלא ניתן ככה לקבל חוו"ד
אז הלכתי לאתר של שירטוט מטבחים וזה מה שיצא
בעיני מושלם, בעיניכם בטח חובבני :)

  • הקיר שממול הפתח השארתי ריק מארונות קיר, בשביל תחושת האוורור
  • הדלפק עם 4 מקומות ישיבה הכרחי
  • מימין ומשמאל לתנור הולך להיות 4 מגירות בכל צד (2 קטנות ו2 גדולות), באתר לא מצאתי ארון כזה
  • מתחת לכיורים הולך להיות 2 מגירות לאחסון, שפשוט יגיעו רק עד הסיפון (בעומק), החלק העליון יראה כמגירה אבל לא יפתח
  • בארון השמאלי השני יהיו 3 מגירות בעומק ואורך מלאים

השאלות 🤔
  • היכן אשים את הטוסטר אובן? (38 עומק 50 רוחב) והמיקרוגל? הכי טוב בארון הקדמי משמאל, (כי הם לשימוש בשרי, ושמאל = בשרי) אבל העומק של כל הארונות העליונים הוא 30, זה מתאים שארון אחד יחרוג ויהיה 37?חשבתי לשנות את כל הארונות משמאל שיהיו 37 עומק, הבעיה היא שזה יפריע בעת שטיפת כלים.
  • מיקסר, חשבתי לשים בתריס שישיב על השיש במקום של הארון הקדמי מימין, ומעליו קלאפה עד גובה שאר הארונות.
    הבעיה היא שזה תופס שטח מהשיש וחבל עליו.
    את החלות אשתי חושבת להכין על הדלפק מימין (ימין חלבי שמאל בשרי), אבל אין הכרח שהמיקסר יהיה על אותו משטח אלא אדרבה, על השיש הקדמי מימין הכי מתאים (מין שיש פרוה כזה)
  • וגם: כמה שטח שיש מינימלי חייבים "לבזבז" משמאל לכיורים (מימין למקרר ומימין לזווית הימנית של המטבח)
    מצד ניצול שטח שיש הייתי רוצה לשים את הכיורים בקו אפס עם המקרר ועם הזווית של השיש בהתאמה, אממה שכולם צווחים עליי בנידון דידן...

תודה תותחיםות!!

מצ"ב כמה תמונות
1716157526187.png

1716157570217.png
1716157827158.png
1716157917088.png

הצטרפות לניוזלטר

איזה כיף שהצטרפתם לניוזלטר שלנו!

מעכשיו, תהיו הראשונים לקבל את כל העדכונים, החדשות, ההפתעות בלעדיות, והתכנים הכי חמים שלנו בפרוג!

לוח מודעות

הפרק היומי

הפרק היומי! כל ערב פרק תהילים חדש. הצטרפו אלינו לקריאת תהילים משותפת!


תהילים פרק כה

אלְדָוִד אֵלֶיךָ יי נַפְשִׁי אֶשָּׂא:באֱלֹהַי בְּךָ בָטַחְתִּי אַל אֵבוֹשָׁה אַל יַעַלְצוּ אֹיְבַי לִי:גגַּם כָּל קוֶֹיךָ לֹא יֵבֹשׁוּ יֵבֹשׁוּ הַבּוֹגְדִים רֵיקָם:דדְּרָכֶיךָ יי הוֹדִיעֵנִי אֹרְחוֹתֶיךָ לַמְּדֵנִי:ההַדְרִיכֵנִי בַאֲמִתֶּךָ וְלַמְּדֵנִי כִּי אַתָּה אֱלֹהֵי יִשְׁעִי אוֹתְךָ קִוִּיתִי כָּל הַיּוֹם:וזְכֹר רַחֲמֶיךָ יי וַחֲסָדֶיךָ כִּי מֵעוֹלָם הֵמָּה:זחַטֹּאות נְעוּרַי וּפְשָׁעַי אַל תִּזְכֹּר כְּחַסְדְּךָ זְכָר לִי אַתָּה לְמַעַן טוּבְךָ יי:חטוֹב וְיָשָׁר יי עַל כֵּן יוֹרֶה חַטָּאִים בַּדָּרֶךְ:טיַדְרֵךְ עֲנָוִים בַּמִּשְׁפָּט וִילַמֵּד עֲנָוִים דַּרְכּוֹ:יכָּל אָרְחוֹת יי חֶסֶד וֶאֱמֶת לְנֹצְרֵי בְרִיתוֹ וְעֵדֹתָיו:יאלְמַעַן שִׁמְךָ יי וְסָלַחְתָּ לַעֲוֹנִי כִּי רַב הוּא:יבמִי זֶה הָאִישׁ יְרֵא יי יוֹרֶנּוּ בְּדֶרֶךְ יִבְחָר:יגנַפְשׁוֹ בְּטוֹב תָּלִין וְזַרְעוֹ יִירַשׁ אָרֶץ:ידסוֹד יי לִירֵאָיו וּבְרִיתוֹ לְהוֹדִיעָם:טועֵינַי תָּמִיד אֶל יי כִּי הוּא יוֹצִיא מֵרֶשֶׁת רַגְלָי:טזפְּנֵה אֵלַי וְחָנֵּנִי כִּי יָחִיד וְעָנִי אָנִי:יזצָרוֹת לְבָבִי הִרְחִיבוּ מִמְּצוּקוֹתַי הוֹצִיאֵנִי:יחרְאֵה עָנְיִי וַעֲמָלִי וְשָׂא לְכָל חַטֹּאותָי:יטרְאֵה אוֹיְבַי כִּי רָבּוּ וְשִׂנְאַת חָמָס שְׂנֵאוּנִי:כשָׁמְרָה נַפְשִׁי וְהַצִּילֵנִי אַל אֵבוֹשׁ כִּי חָסִיתִי בָךְ:כאתֹּם וָיֹשֶׁר יִצְּרוּנִי כִּי קִוִּיתִיךָ:כבפְּדֵה אֱלֹהִים אֶת יִשְׂרָאֵל מִכֹּל צָרוֹתָיו:
נקרא  2  פעמים
למעלה