קבוצת אדריכלות ועיצוב פנים

פורום הבית של קבוצת עיצוב פנים של פרוג המאגד אנשי המקצוע מתחום האדריכלות, עיצוב הפנים, תכנון ובניה והום סטילינג.
מנהלות הקבוצה: רותי וינברג, חדוי פלבני, לינוי אלקין
להצטרפות לקהילת אדריכלות ועיצוב פנים, לחצו כאן ←

אדריכלות ועיצוב פנים >> תוכן מקצועי

תיקי עבודות של הדמיות אדריכליות >> העבודות האחרונות, תהנו!

וילה ניו-יורקית
חדר שינה Master | שילוב חומרים וטקסטורות
מפרט שקיבלנו מקבלן
נשמח לשמוע דעת המומחים מה נחשב סטנדרטי או מה לא?
וכן אם יש עוד דברים חשובים שצריך לסכם לפני?
ריצוף וחיפוי:

עד 85 ₪ למטר.

רובה של חברת טמבור.

חיפוי מטבח בין הארונות ומאורי התנור.

דלתות פנים:

צירים, חברת דרור מגנט [בשירותים צוהר אור ומנעול קבוע] עד רוחב 90

בהשתדלות שיבוצע ע"י המתקין זושא לוריא

דלתות כניסה:

-חברת רב בריח או חוסם ,טפט 3 גוונים לבחירה.

חלונות ותריסים:

-בגוונים לבחירה: לבן, שמנת, אפור בהיר [או צבע נוסף שדומה לירוק/אפור אם יתאפשר]

סורגים:

-לא כלול.

כלים סניטרים:

-ניאגרה תלויה גרואה ואסלה תלויה.

-כיורים חרסה או מקביל.

-ארון אמבטיה לא כלול.

-ברזים מדגל ברבור.

-אמבטיה MTI עד 1.60 אורך.

-ברז אמבטיה סוללה מדגל.

וונטה:

מפוח קווי 4 צול של וונטה או מקביל בשירותים אמבטיות ללא חלון.

חשמל:

-שקעי חשמל ומפסקים גוויס או ניסקו כמו גוויס.

-מונה ליחידות.

-שעון שבת לתאורה.

-הכנה לגנרטור אם נדרש [שרשור].

בוידם:

-3 מ"ר

צבע:

-שפכטל אמריקאי בקירות 2 ידיים.

-צבע משי משי.

-פוליסיד או סופרסיד בתקרות.



מטבחים
:

ארונות סנדביץ פורמייקה, פרזול רגיל.

שיש קיסר 3 דגמים לבחירה או חברת אנובה יותר דגמים לבחירה.

כיורים שלוסר או מקביל.

אורך:

לדירה 3 מטר אורך עליון+ 3 מטר תחתון .

ליחדה 2.3 מטר עליון + 2.3 מטר תחתון.

שונות:

תיקוני טיח אחרי חציבות של איש מזגנים וכד'. שמגיע לפני שלב הטיח.

כל החברות שנכתבו ,במידה ולא יתאפשר יובאו מוצרים מחברה באותו סטנדרט.



בהצלחה
בס"ד
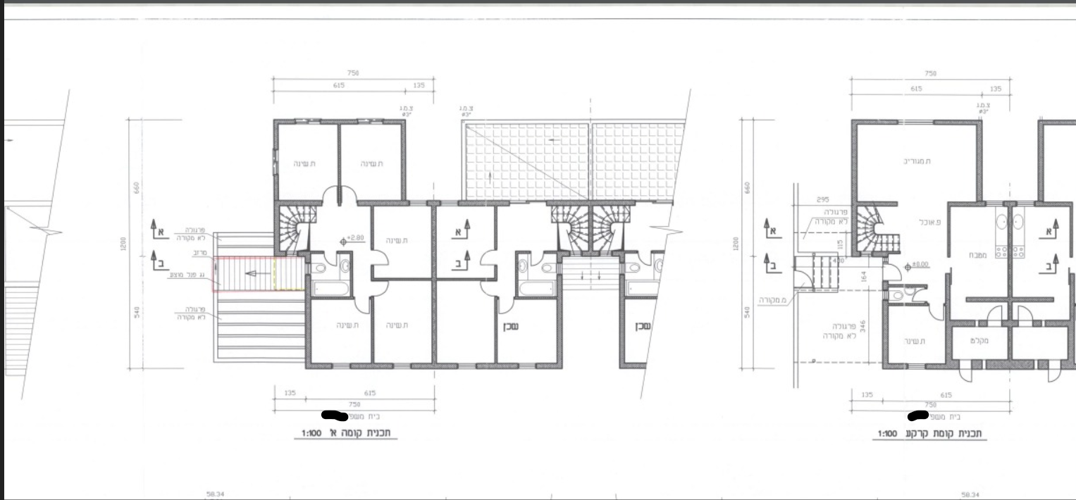
לחברי הפורום המומחים והמקצועיים שלום,
אודה למי שיוכל להעיף מבט (כמובן רק אם בקלות)
על התכנית הבאה של דירה שאנחנו שוקלים לרכוש.
לאחר התכנית מופיעות השאלות בהרחבה.
השטח הבנוי הוא כ160 מ' ב2 מפלסים.
1677403994102.png
זו התכנית של הדירה,
מדובר בבית פרטי - חצי מדו משפחתי
קומה ראשונה - סלון, מטבח, מקלט, ועוד חדר
קומה שניה - 5 חדרי שינה.
חצר היקפית גדולה ויפה.
מדרגות מסתובבות ומכוערות - וגם לדעתי מסתובבות יש קושי לעלות עם עגלה אבל לא ניסיתי.
אשמח לחוות דעת כללית תחילה.

הצרכים:
משפחה בשנת ה30 של ההורים, ילדים בגילאי הביניים.
אוהבים לארח, ורוצים לקנות את הבית לטווח הארוך בעז"ה.
הדרישות -
סלון גדול,
מטבח נח ופרקטי (לא פתוח לכניסה לבית, אפשר סגור בדרך כלשהי) ולא קטן כולל מקום אכילה במטבח.
(פינת אוכל יכולה להיות יחד עם הסלון)
שירותי אורחים כמובן.
תחושת רחבות.
עוד משהו, מקווה שאצליח להסביר את עצמי
בדירות הקבלן היום - מפריע לי מאד שכל החדרים יוצאים מאותה נקודה,
נניח שהבנות מביאות חברות עד השעות המאוחרות של הלילה, מארחים משפחות לשבתות וכו', והכניסה / יציאה מהחדרים היא באותה נקודה.
בקיצור אני אוהבת פרטיות. בעיקר להורים אבל לכולם.
האם רצף החדרים בקומה למעלה סותר פרטיות זו? האם הובנתי. האם יש מה לעשות לכך?

כל הגיג שיש לכם בנוגע לדירה יעזור לי מאד!
שוב תודה לכל מי שמגיב ותורם מזמנו!

הצטרפות לניוזלטר

איזה כיף שהצטרפתם לניוזלטר שלנו!

מעכשיו, תהיו הראשונים לקבל את כל העדכונים, החדשות, ההפתעות בלעדיות, והתכנים הכי חמים שלנו בפרוג!

לוח מודעות

הפרק היומי

הפרק היומי! כל ערב פרק תהילים חדש. הצטרפו אלינו לקריאת תהילים משותפת!


תהילים פרק כה

אלְדָוִד אֵלֶיךָ יי נַפְשִׁי אֶשָּׂא:באֱלֹהַי בְּךָ בָטַחְתִּי אַל אֵבוֹשָׁה אַל יַעַלְצוּ אֹיְבַי לִי:גגַּם כָּל קוֶֹיךָ לֹא יֵבֹשׁוּ יֵבֹשׁוּ הַבּוֹגְדִים רֵיקָם:דדְּרָכֶיךָ יי הוֹדִיעֵנִי אֹרְחוֹתֶיךָ לַמְּדֵנִי:ההַדְרִיכֵנִי בַאֲמִתֶּךָ וְלַמְּדֵנִי כִּי אַתָּה אֱלֹהֵי יִשְׁעִי אוֹתְךָ קִוִּיתִי כָּל הַיּוֹם:וזְכֹר רַחֲמֶיךָ יי וַחֲסָדֶיךָ כִּי מֵעוֹלָם הֵמָּה:זחַטֹּאות נְעוּרַי וּפְשָׁעַי אַל תִּזְכֹּר כְּחַסְדְּךָ זְכָר לִי אַתָּה לְמַעַן טוּבְךָ יי:חטוֹב וְיָשָׁר יי עַל כֵּן יוֹרֶה חַטָּאִים בַּדָּרֶךְ:טיַדְרֵךְ עֲנָוִים בַּמִּשְׁפָּט וִילַמֵּד עֲנָוִים דַּרְכּוֹ:יכָּל אָרְחוֹת יי חֶסֶד וֶאֱמֶת לְנֹצְרֵי בְרִיתוֹ וְעֵדֹתָיו:יאלְמַעַן שִׁמְךָ יי וְסָלַחְתָּ לַעֲוֹנִי כִּי רַב הוּא:יבמִי זֶה הָאִישׁ יְרֵא יי יוֹרֶנּוּ בְּדֶרֶךְ יִבְחָר:יגנַפְשׁוֹ בְּטוֹב תָּלִין וְזַרְעוֹ יִירַשׁ אָרֶץ:ידסוֹד יי לִירֵאָיו וּבְרִיתוֹ לְהוֹדִיעָם:טועֵינַי תָּמִיד אֶל יי כִּי הוּא יוֹצִיא מֵרֶשֶׁת רַגְלָי:טזפְּנֵה אֵלַי וְחָנֵּנִי כִּי יָחִיד וְעָנִי אָנִי:יזצָרוֹת לְבָבִי הִרְחִיבוּ מִמְּצוּקוֹתַי הוֹצִיאֵנִי:יחרְאֵה עָנְיִי וַעֲמָלִי וְשָׂא לְכָל חַטֹּאותָי:יטרְאֵה אוֹיְבַי כִּי רָבּוּ וְשִׂנְאַת חָמָס שְׂנֵאוּנִי:כשָׁמְרָה נַפְשִׁי וְהַצִּילֵנִי אַל אֵבוֹשׁ כִּי חָסִיתִי בָךְ:כאתֹּם וָיֹשֶׁר יִצְּרוּנִי כִּי קִוִּיתִיךָ:כבפְּדֵה אֱלֹהִים אֶת יִשְׂרָאֵל מִכֹּל צָרוֹתָיו:
נקרא  2  פעמים
למעלה