קבוצת אדריכלות ועיצוב פנים

פורום הבית של קבוצת עיצוב פנים של פרוג המאגד אנשי המקצוע מתחום האדריכלות, עיצוב הפנים, תכנון ובניה והום סטילינג.
מנהלות הקבוצה: רותי וינברג, חדוי פלבני, לינוי אלקין
להצטרפות לקהילת אדריכלות ועיצוב פנים, לחצו כאן ←

אדריכלות ועיצוב פנים >> תוכן מקצועי

תיקי עבודות של הדמיות אדריכליות >> העבודות האחרונות, תהנו!

וילה ניו-יורקית
חדר שינה Master | שילוב חומרים וטקסטורות
שבוע טוב לכולן
אנחנו לקראת סיום של פרויקט תמ"א במהלכו נוספו לדירתנו 2 חדרים ומרפסת (כבר בנויים).
מראש ידענו שנהיה מוכרחים להעתיק את המטבח היות ונחסמו לו החלונות וגם נלקח ממנו נתח (שהתווסף בחלקים החדשים).
מלכתחילה, למרות שלפני כ-5 שנים שיפצנו את הדירה מהיסוד ושינינו חלוקה,
חשבנו כעת לשנות שוב את כל התוכנית של הבית כדי להגיע לתכנון מיטבי: חלוקה של אזורי מגורים ואזור מטבח-סלון, הכנסה של חדר כביסה וכו'.
יצרנו קשר עם מעצבת והגענו לתוכנית מיטבית בעיננו.
למעשה לאחר המון לבטים, הגענו למסקנה שההשקעה הזו היא בעיקר לטובת איכות חיים ולא תחזיר את עצמה בערך הדירה,
והיות ואנו מקווים לשפר דיור בעוד כמה שנים, נלך על תכנית המינימום שבה רק מעתיקים את המטבח (=מטבח חדש).
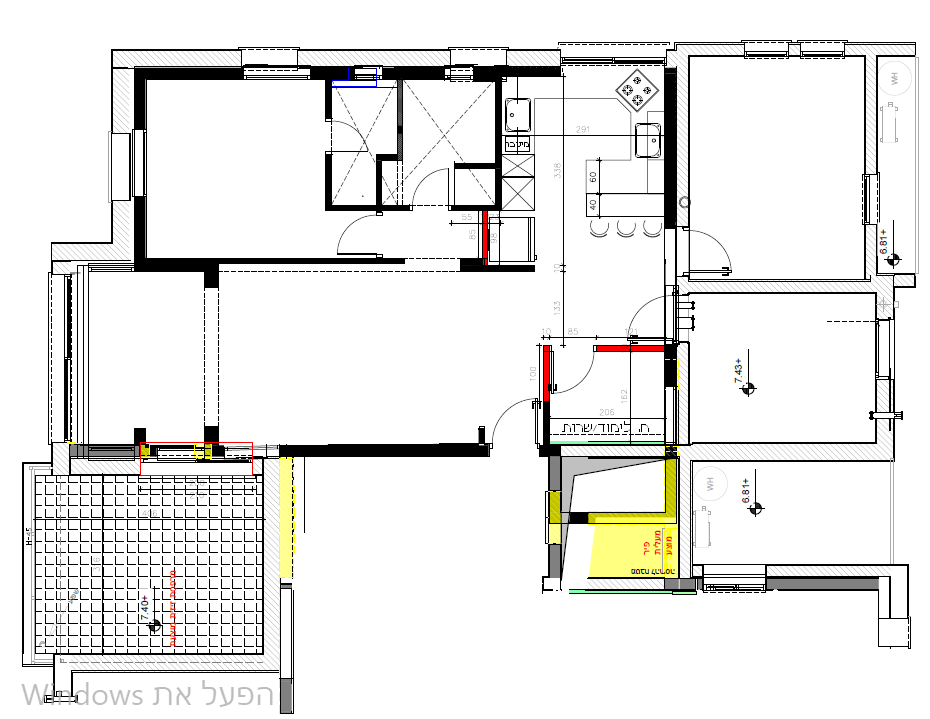
מצרפת את התוכניות:
1. תוכנית מצב קיים
1669493356885.png

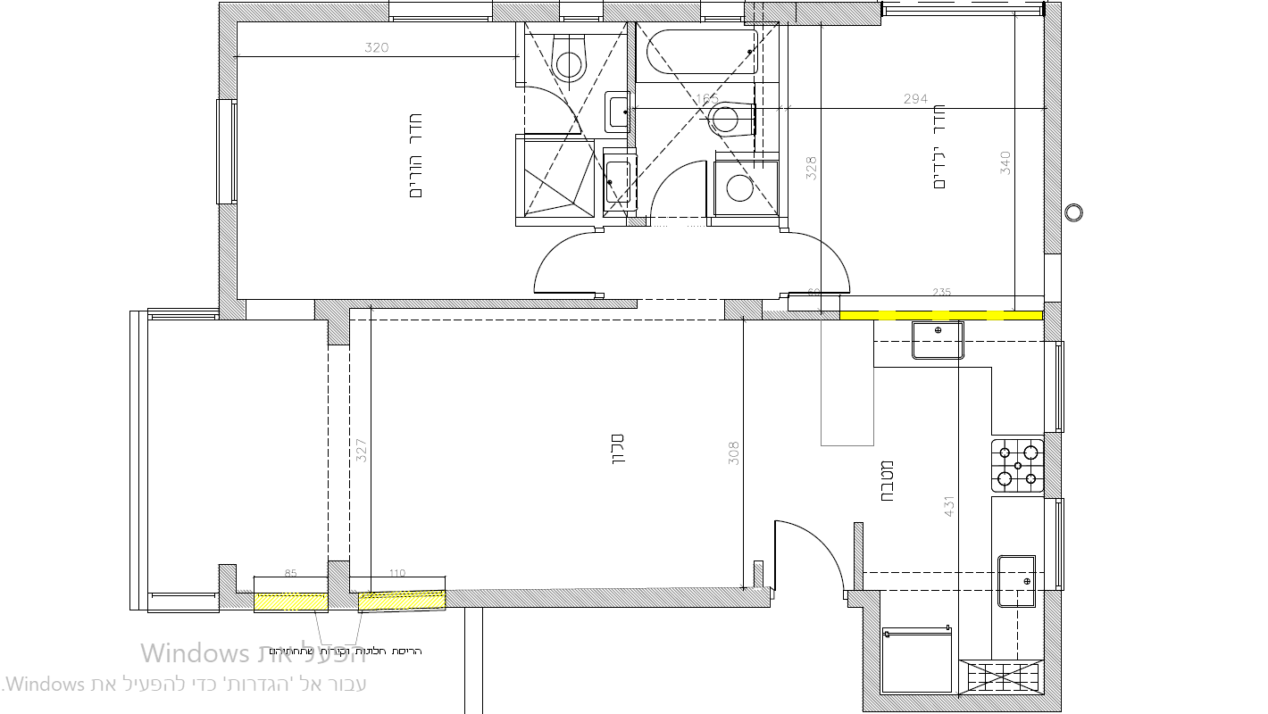
2. תוכנית מקסימום - התוכנית ב"דימוס"
1669493721388.png
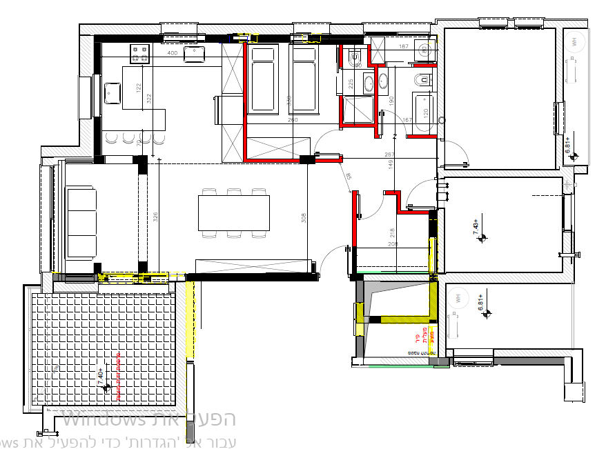
3. תכנית מינימום - התוכנית לביצוע
1669493814351.png

מצד אחד הייתי מאד שלמה עם הצעד היות ומדובר בחיסכון של כ-200 אש"ח שלא בטוח שווים את ההוצאה (בטח במבט של ערך הדירה).
מצד שני הקטע של החדר ילדים שכמעט יוצא מהמטבח לא נבלע לי בגרון (במיוחד שאחרי הכל עדיין יש כאן השקעה של כ-100 אש"ח על מטבח חדש, החלפה של חלק מהריצוף וספיחים נוספים).
אציין שנעשו ניסיונות מצד המעצבת ליצור הפרדה עם קיר אבל או שהפסדנו את החדר לימוד או שהרגשתי שהמרחב נעשה ממש חנוק.

אם שרדת עד פה אשמח מאד לחוות דעת לגבי תוכנית המינימום.
עד כמה היא תוכנית שעובדת? עד כמה היא היא בדיעבד?
מה את היית עושה?

תודה מראש!!
אני עומד לחתום עם קבלן על בניה (מדובר בקבלת דירה מוכנה במחיר X כשהכל כלול במחיר)
זה המפרט שהוא מבחינתו נותן, היות ואין לי באמת מושג במחירי שוק, אשמח לחוות דעת כמה זה הגיוני למפרט קלאסי-פשוט ביחס לשוק

104. כיור מטבח בשווי 450 שקל.
105. ארונות מטבח עליונים ותחתונים יהיו מסנדוויץ לפי התוכנית.
זיכוי כולל לכל המטבח: ארונות +שיש+כיורים הינו 15000 שקל.
106. שיש קיסר בשווי 700 שקל למטר עד 5 מטר.
107. ברזי חמת/שו"ע לחדרי רחצה בשווי 300 שקל לברז. סוללה לאמבטיה בשווי 400 שקל.
108. כיור בחדר רחצה בשווי 250 שקל.
109. כיור נט"י מים קרים בשווי 200 שקל.
110. דלתות למקלחון יש להוסיף שווי לפי מחיר הקבלן.
111. כל הדלתות יהיו עמידות בנזקי מים, מחיר לדלת רגילה 1200 שקל .
112. דלתות לחדרי רחצה מוגן מים בשווי 1300 שקל.
113. אמבטיה בשווי 1000 שקל.
114. שרותים ניאגרה סמויה ואסלה תלויה בשווי 900 שקל.
115. ריצוף אנטי סליפ כפי התקן בחדרי רחצה בשווי 80 שקל מטר.
116. קרמיקה באמבטיה, בשרותים ובמטבח בשווי 80 שקל למטר.
117. אלומיניום כולל התקנה בשווי 1000 שקל למטר מרובע.
118. דלת פלדלת כולל התקנה בשווי 2100 שקל.
119. מפוח בשווי 400 שקל.
120. סורגים- כל הסורגים יהיו מגלוון+צבע לפי בחירה .
121. במידה ויוסיף המזמין סורגים ינוע המחיר בין 600-800 שקל למטר תלוי בצורת הסורג כולל עבודה.
122. איסכורית למטר מרובע בשווי 600 שקל.
123. הגג מתחת לאיסכורית בשווי 1200 שקל למטר מרובע.
124. נקודת חשמל 250 שקל.
125. נקודת אינסטלציה 1500 שקל.

הצטרפות לניוזלטר

איזה כיף שהצטרפתם לניוזלטר שלנו!

מעכשיו, תהיו הראשונים לקבל את כל העדכונים, החדשות, ההפתעות בלעדיות, והתכנים הכי חמים שלנו בפרוג!

לוח מודעות

הפרק היומי

הפרק היומי! כל ערב פרק תהילים חדש. הצטרפו אלינו לקריאת תהילים משותפת!


תהילים פרק כה

אלְדָוִד אֵלֶיךָ יי נַפְשִׁי אֶשָּׂא:באֱלֹהַי בְּךָ בָטַחְתִּי אַל אֵבוֹשָׁה אַל יַעַלְצוּ אֹיְבַי לִי:גגַּם כָּל קוֶֹיךָ לֹא יֵבֹשׁוּ יֵבֹשׁוּ הַבּוֹגְדִים רֵיקָם:דדְּרָכֶיךָ יי הוֹדִיעֵנִי אֹרְחוֹתֶיךָ לַמְּדֵנִי:ההַדְרִיכֵנִי בַאֲמִתֶּךָ וְלַמְּדֵנִי כִּי אַתָּה אֱלֹהֵי יִשְׁעִי אוֹתְךָ קִוִּיתִי כָּל הַיּוֹם:וזְכֹר רַחֲמֶיךָ יי וַחֲסָדֶיךָ כִּי מֵעוֹלָם הֵמָּה:זחַטֹּאות נְעוּרַי וּפְשָׁעַי אַל תִּזְכֹּר כְּחַסְדְּךָ זְכָר לִי אַתָּה לְמַעַן טוּבְךָ יי:חטוֹב וְיָשָׁר יי עַל כֵּן יוֹרֶה חַטָּאִים בַּדָּרֶךְ:טיַדְרֵךְ עֲנָוִים בַּמִּשְׁפָּט וִילַמֵּד עֲנָוִים דַּרְכּוֹ:יכָּל אָרְחוֹת יי חֶסֶד וֶאֱמֶת לְנֹצְרֵי בְרִיתוֹ וְעֵדֹתָיו:יאלְמַעַן שִׁמְךָ יי וְסָלַחְתָּ לַעֲוֹנִי כִּי רַב הוּא:יבמִי זֶה הָאִישׁ יְרֵא יי יוֹרֶנּוּ בְּדֶרֶךְ יִבְחָר:יגנַפְשׁוֹ בְּטוֹב תָּלִין וְזַרְעוֹ יִירַשׁ אָרֶץ:ידסוֹד יי לִירֵאָיו וּבְרִיתוֹ לְהוֹדִיעָם:טועֵינַי תָּמִיד אֶל יי כִּי הוּא יוֹצִיא מֵרֶשֶׁת רַגְלָי:טזפְּנֵה אֵלַי וְחָנֵּנִי כִּי יָחִיד וְעָנִי אָנִי:יזצָרוֹת לְבָבִי הִרְחִיבוּ מִמְּצוּקוֹתַי הוֹצִיאֵנִי:יחרְאֵה עָנְיִי וַעֲמָלִי וְשָׂא לְכָל חַטֹּאותָי:יטרְאֵה אוֹיְבַי כִּי רָבּוּ וְשִׂנְאַת חָמָס שְׂנֵאוּנִי:כשָׁמְרָה נַפְשִׁי וְהַצִּילֵנִי אַל אֵבוֹשׁ כִּי חָסִיתִי בָךְ:כאתֹּם וָיֹשֶׁר יִצְּרוּנִי כִּי קִוִּיתִיךָ:כבפְּדֵה אֱלֹהִים אֶת יִשְׂרָאֵל מִכֹּל צָרוֹתָיו:
נקרא  2  פעמים
למעלה