שאלה דירה בגודל 86 מטר נטו

  • הוסף לסימניות
  • #1
דירה בגודל כ86 מטר נטו בפועל היא כמעט מלבנית יש לה שני כיווני אוויר הגודל הוא 7.9 על 12.7 ואמנם צריך להוריד מעל 10 מטר כי בסוף הבית יש לה מקום שהוא רוחב של 5.5 מטר ולכן זה פחות מתשעים מטר זה יוצא כ86 מטר
האם בקלות אפשר לעשות ארבע חדרים ואמורים להגדיל זאת בעוד 1.3 מטר דהיינו שהדירה תהיה 14 מטר על 7.9 וייתכן בעוד שני מטר 14.7 על 7.9 או בעוד שני מטר האם יכלו לעשות 5 חדרים או שהצורה שלה לא תיתן לעשות חמש חדרים בגלל חוסר בחלונות

תודה גדולה לכל העונים
@תודה לה' הטוב @רחל קוגלמן @tzivi @רותי וינברג @פרי ולס @מירי קוגלמן @א שיינפלד @אדריכל @אדריכלית בליגה אחרת @אדריכלות מזווית אחרת @אדריכלות מעל הקופסא @byy ֲ @ציפי טינקלרויט @תודה לה' הטוב @מירי קוגלמן @ציפופו 1
 
  • הוסף לסימניות
  • #2
דירה בגודל כ86 מטר נטו בפועל היא כמעט מלבנית יש לה שני כיווני אוויר הגודל הוא 7.9 על 12.7 ואמנם צריך להוריד מעל 10 מטר כי בסוף הבית יש לה מקום שהוא רוחב של 5.5 מטר ולכן זה פחות מתשעים מטר זה יוצא כ86 מטר
האם בקלות אפשר לעשות ארבע חדרים ואמורים להגדיל זאת בעוד 1.3 מטר דהיינו שהדירה תהיה 14 מטר על 7.9 וייתכן בעוד שני מטר 14.7 על 7.9 או בעוד שני מטר האם יכלו לעשות 5 חדרים או שהצורה שלה לא תיתן לעשות חמש חדרים בגלל חוסר בחלונות

תודה גדולה לכל העונים
@תודה לה' הטוב @רחל קוגלמן @tzivi @רותי וינברג @פרי ולס @מירי קוגלמן @א שיינפלד @אדריכל @אדריכלית בליגה אחרת @אדריכלות מזווית אחרת @אדריכלות מעל הקופסא @byy ֲ @ציפי טינקלרויט @תודה לה' הטוב @מירי קוגלמן @ציפופו 1
אני תכננתי עכשיו דירת רכבת (מהסגנון הזה) בהחלט היה מאתגר מבחינת חלוקת החדרים והחלונות.
תעלי שרטוט של החדר זה יהיה יותר ברור ויוכלו לעזור לך יותר.
זאת בניה חדשה שאת יכולה להגדיל איך שאת רוצה ? אין שם קו בניין?
 
  • הוסף לסימניות
  • #3
זה דירה שיש שם כרגע שלוש חדרים ממש גדולים כולל מרפסות על כל הדירה, דהיינו לאורך ולרוחב של הדירה
אנחנו חושבים לשטח את כל הבית ואין הרבה עמודים שם ולכן לא העליתי
הדירה בעצם בכניסה היא 2.4 על 8.57 ואחז הבית נכנס עוד ארבע מטר לעוד חדר ומשם יוצא שהדירה היא 12.7 על 5.5 מטר
ויוצא שחלק אחד בדירה הוא 12.7 על 5.5 וחלק שני הוא 2.4 על 8.57 סהכ 90 מטר [ואמנם בוף הדירה חסר כשלוש מטר]
וכפי שכתבתי לאחר ההגדלה חלק אחד בדירה יהיה 14 מטר על 5.5 מטר וחלק שני יהיה 9.87 על 2.4 מטר
האם יש סיבה להעלות אנחנו יכולים להשיג את התוכנית השאלה אם זה יוסיף אם אנחנו מימלא משטחים את הכול
 
  • הוסף לסימניות
  • #4
מאד מורכב להבין מהמלל והמספרים
תעלו תכנית של הדירה- כך המבנה יהיה ברור, התוספות, כיווני האוויר
2 כיווני האוויר הם ב-2 הצדדים הצרים? או שיש גם צד ארון עם פתחים?
 
  • הוסף לסימניות
  • #5
אשתדל להשיג
אבל בעיקרון זה מאוד פשוט, יש לי מקום לחלונות על כל אורך הבית וכל רוחב הבית דהיינו 7.9 על 12.7 וכשיגדילו יהיה לי 14 על 7.9 בכל הצדדים האלו אפשר לעשות חלונות כרגע יש שם מרפסת צרה על אורך ורוחב הבית
 
  • הוסף לסימניות
  • #6
בהודעה הפותחת כתבתם שיש חוסר בחלונות
אם החלונות הם לאורך הצד הארוך- על פניו לא אמור להיות חסר גם אם מרחיבים אותה עוד לאורכה
הבעיה היא בדירות צרות וארוכות כשכיווני האוויר הם בצדדים הצרים

מבחינת שטח-
דירת 5 חדרים יפה בד"כ היא בשטח של 110 מ"ר ברוטו ומעלה
כמובן שיש מקרים שדוחפים את זה גם בפחות, אבל זה ע"ח גודל החללים
גם אם מתפקד מצוין
(העליתי בעבר דירת כמעט 5 חדרים בפחות מ-100 מ"ר)
 
  • הוסף לסימניות
  • #7
הדירה שלי היא "דירת רכבת" של 89 מ"ר, עם 4.5 חדרים.
אם אין לך בעיה של מיקום חלונות מאמינה שגם תוכלי להגיע ל 4.5 חדרים
מציעה ,כמו שהציעו פה לפני, להעלות תוכנית ברורה ומדויקת ,עם מידות
 
  • הוסף לסימניות
  • #8
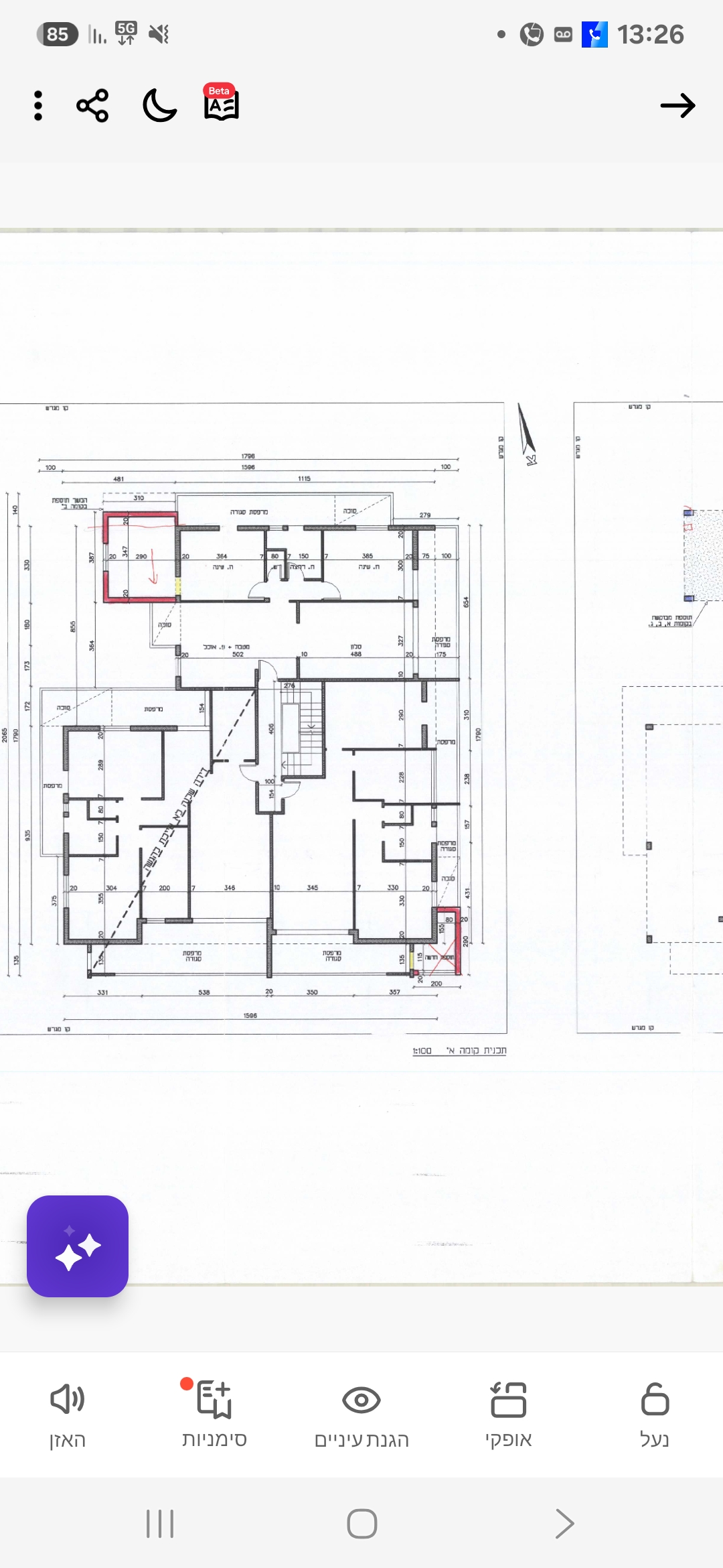
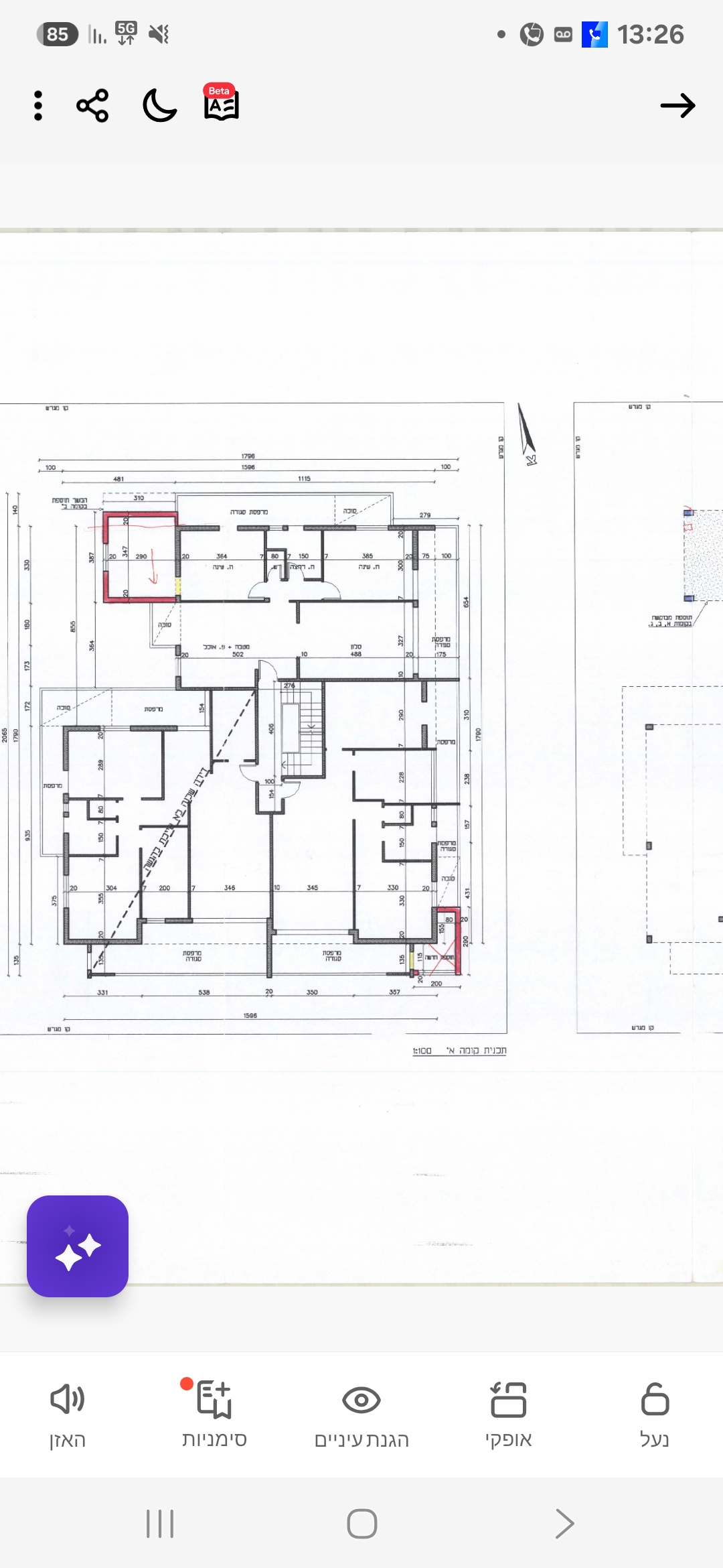
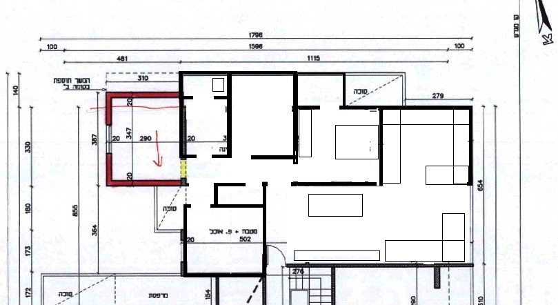
לכיוון החזית מוסיפים עוד 10 מטר ועוד 4 מטר מרפסת סוכה השאלה היא האם אפשר לעשות מזה אחרי ההרחבה 4 חדרים או חמש חדרים מרפסת תודה גדולה @רותי וינברג @ציפי טינקלרויט @תודה לה' הטוב @רחל קוגלמן @tzivi @רותי וינברג @פרי ולס @מירי קוגלמן @א שיינפלד @אדריכל @אדריכלית בליגה אחרת @אדריכלות מזווית אחרת @אדריכלות מעל הקופסא @byy ֲ @ציפי טינקלרויט @תודה לה' הטוב @מירי קוגלמן @ציפופו 1

1761216639873.jpeg
 
  • הוסף לסימניות
  • #9
מה הכוונה "לשטח את כל הבית"?האם המרפסות הסגורות יכולות להצטרף לדירה כחלק מהחדרים ?
 
  • הוסף לסימניות
  • #10

קבצים מצורפים

  • 1761216639873.jpeg
    1761216639873.jpeg
    KB 83.1 · צפיות: 57
  • הוסף לסימניות
  • #11
זה אפשרי בתכנון נכון ומדויק,
זה כמובן תלוי מה הצרכים שלכם -
מטבח פתוח או סגור / סלון פתוח או סגור/ מרפסת שירות או לא / מ.כביסה בתום האמבטיה או בחוץ/ חדרי ילדים קטנים או מרוחים וכו'
בקיצור,
זה מצריך תהליך עמוק ויסודי.
 
  • הוסף לסימניות
  • #12
מהתעסקותי גם בתחום ההיתרים בעיריית בני ברק, ומיסיון עבר בתכנון דירות מעין אלו.
נדמה לי שהדירה היא דירה בני ברקית קלאסית, האם אני צודקת?
כי אם התשובה חיובית חשוב לי להבהיר לך שברוב המקרים באזור האמבטיה והשירותים בפרט ולפעמים אף במקומות אחרים ימצא עמודים לא צפויים שאינם נרשמים בתוכניות המקוריות.
ככל הנראה זהו בניין לא חדש יתכן ומערכות הביוב והאינסטלציה ישנים ולא פשוט להעביר אותם.
לכן האפשרות לשטח את כל הדירה אומנם קיימת אך פחות מומלצת, אם כי יש פתרונות יצירתיים לתכנן את הדירה כמו שחלמתם.
לסיכום: הדירה בהחלט מוצלחת נוסף על מעלותיה בכיווני האוויר וכדו' , כולל התוספת היא אפשרית לחלוקה של ארבעה חדרי שינה מרווחים ונוחים מאוד.
ליעוץ וחלוקה פרטנית אשמח לעמוד לשירותכם a0548599224 שטרודל.....
 

פרוגבוט

תוכן שיווקי
פרסומת

אשכולות דומים

בס"ד

עסק על הכפית- עם דבורי כהן באזזז- שלב ב', והגרלה על 500 ₪ מזומן

מה זה עסק על הכפית?
טעימות מעולם העסק - לפי סדר הא"ב
מושגים, כלים ודימויים שעושים סדר בעסק - כפית אחת בכל פעם.
ביסים קטנים. תובנות גדולות.




כהמשך
לשלב א' באתגר העסקי של הקיץ

ברוכים הבאים לשלב ב'-

"עסק על הכפית" - מאגר טעימות שיווקיות-עסקיות, מוגשות בדיוק בגובה הלב והעיניים.
כאן תמצאו מושגים, דימויים, שאלות מעוררות חשיבה, וטיפים פרקטיים שמוגשים כפית אחת בכל פעם -
כדי לעשות סדר בעסק, בלי לבלוע את כל העולם.

חלק מהמושגים נולדו מתוך השפה והדרך שפיתחתי בעבודה עם מאות עסקים
וחלקם מושגים אוניברסליים שאני מנגישה מחדש.


הכל לפי סדר הא"ב כדי שתוכלו לדפדף כמו בתפריט,
לבחור את המושג שהכי מדבר אליכם עכשיו , ולתת לעסק שלכם טעימה מדויקת של באזזז.



🎁 ויש כמובן הגרלה:
כל מי שייכנס לאשכול, יציין מה המושג שהכי נגע בו כרגע ויכתוב בתגובה "טעמתי באזזז!"
עם משפט למה בחרתם דווקא את זה,
נכנס אוטומטית להגרלה על 500 ש"ח מתנה לחשבון הבנק שלכם.
ההגרלה תערך בע"ה בכ"ח בתמוז תשפ"ה.




אז קדימה -
🔍 עברו על הרשימה לפי סדר הא"ב
🥄 קחו כפית מהטעם שמתאים לעסק שלכם


📌 כתבו כאן בתגובה - "טעמתי באזזז" ושתפו איזה מושג הכי נגע בכם ולמה.

מחכה לשמוע מה דיבר אליכם,
דבורי כהן באזז






א'

אודות בגובה האוזניים
- איך להציג את מה שאני עושה בצורה שתגרום לאנשים לפתוח אוזניים?



בהרבה קורסים, קבוצות ותוכניות מבטיחים ללמד אותנו איך להכין לעסק את "נאום המעלית".
אבל גם אם היינו חרוצים/ות בקורס הזה, והכנו על הכתב טקסט מאד מרשים וייצוגי,
לאף אחד כולל לעצמנו, אין חשק לשמוע אותנו מדקלמים את הנאום השבלוני הזה ☹

מה עושים? במקום לשתוק תכינו לעצמכם "אודות בגובה האוזניים".

3 משפטים עסיסיים ומדויקים שעושים חשק למי שמולנו לשאול עוד.
מתאים במיוחד לעסקים מהסוג היותר מורכב, שצריך קצת להסביר מה בדיוק אתם עושים.

הנוסחה:

את יודעת ש… (את הבעיה?)

ובכן מה שאני עושה זה (פתרון)

למעשה, (הוכחה…)

עוד דוגמאות והרחבה- פה.

אחרי שתשתמשו בנוסחה- תתרגלו לקבל תגובות של "וואו, מעניין. מה זה אומר?"
וזה בדיוק ההבדל בין להלאות אנשים עם תוכן כבד, לבין לגרום להם לפתוח את הפה לביס הבא!





ב'

בייגלה שרוף


לפעמים יש לנו בעסק נתונים שלא נראים לנו אטרקטיביים.
שאנחנו רגילים להתנצל עליהם, לנסות להסביר, לעגל פינות.
“אין לי קליניקה”,
“אני לא מגיעה ללקוחות הביתה”,
“אני לא עובדת עם צוות גדול”…

אבל מה אם כל הדברים האלה הם לא בעיה שצריך להחביא, אלא יתרון שמחכה להתגלות?

תשמעו מה קרה לי עם העוגיות של עבאדי:
פתחנו חבילה, וכולן היו שחומות כהוגן - כמעט שרופות.
התגובה הראשונה? “וואי, נשרף להם…' צריך להגיש תלונה...”
ואז הבן שלי מצביע על האריזה:
“אמא, זה כתוב פה - שרוף במיוחד!”
וזה כל הקסם:

זו לא היתה תקלה. זה הקונספט. העוגיות מיועדות במיוחד למי שאוהב את זה ככה.

אז איך זה קשור לעסק שלך?

יכול להיות שגם אצלך יש "בייגלה שרוף" - נתון קיים, אולי לא סטנדרטי, שלא נוח לך איתו.
אבל עם זווית מבט חדשה - את יכולה להפוך אותו לייחודיות שלך.
מה שמפריע פתאום מדבר בול ללקוח הנכון.

את לא מגיעה הביתה ללקוחות? אז תדגישי שאת מאמנת לניהול בית בלי להיכנס הביתה, בדיוק כמו שהן רוצות.
אין אצלך חדר המתנה? - אז הלקוחות לא מחכות. את מתחילה בזמן.
את מקבלת לקוחות בסלון עם קטלוג? - זו חנות ביתית בלי עלויות מיותרות, וזה אומר מחירים נוחים.

בסוף - בייגלה שרוף זו לא בעיה.
זה קונספט אישי.
וזה תלוי רק בך - איך את בוחרת להציג את זה.

אז מה הבייגלה השרוף אצלך?
ומה יקרה כשבמקום להתנצל - תתני לו כבוד, תמתגי אותו ותתאימי אותו בדיוק למי שאוהב אותו ככה?






ביטחון עצמי עסקי

ביטחון עצמי עסקי זה לא תכונה מולדת.
זה לא “או שיש לי או שאין לי” - זה שריר. והוא נבנה.
לפעמים הוא צומח מתוך הבהירות:
כשברור לנו מה אנחנו מציעים, למי זה מתאים, ואיך זה עובד – אנחנו מרגישים בטוחים.



כמה דרכים לבנות ביטחון בעסק שלך:

  • להפסיק להסתמך רק על דיבור ולבנות חומרי שיווק מקדימים שעושים חצי עבודה עוד לפני השיחה.
  • להשקיע בנראות שמדברת בשבילכם. כשאתם נראים מקצועיים, זה מקרין החוצה, וגם פנימה.
  • ללטש את הצעת הערך- לדעת להסביר מה אתם עושים בלי לגמגם.
  • ולפעמים - פשוט ללמוד. יש קורס לזה. יש שיטה לזה. יש דרך לצבור ביטחון - גם בלי להיות טיפוס כריזמטי.
ואם אתם מרגישים שאת נמנעים משיווק או ממכירה בגלל חוסר ביטחון -
אולי הגיע הזמן לבדוק מה יעזור לכם להתחזק:
ייעוץ? קורס ממוקד? חומרי שיווק שיחסכו דיבורים?

📌 כל הפרטים כאן:
קורס ביטחון עצמי במכירות






ג'



גשר

שיווק הוא גשר בינך לבין הלקוחות.


אנחנו עומדים בצד אחד עם שליחות, רעיון, שירות, מוצר.
והלקוחות בצד השני - עם הצרכים שלהם, הכאבים והספקות.
ובשביל שיקרה מפגש בין שני הצדדים- צריך לבנות גשר.

גשר טוב הוא כזה שמוריד התנגדויות, פותח את הלב, ומאפשר להם להגיע אלייך.

זה יכול להיות:

  • דף נחיתה שמתחיל מהכאב של הלקוח - לא מההישגים שלך.
  • סרטון שמראה / מספר על תהליך, לא רק על תוצאה סופית ומרשימה.
  • פוסט/מייל שמספר סיפור שהיא יכולה להזדהות איתו, במקום לדבר על עצמך.
והכי חשוב - גשר נבנה על הבנה.
כשאנחנו יודעים באמת מה עובר על הלקוחות , נוכל לנסח את זה טוב יותר מהם...
וברגע שהם מרגישים שאנחנו מבינים אותם -הם כבר בדרך.





גרעין עסקי נכון


לפני שמתחילים לשווק, לבנות דף נחיתה או לחשוב על סלוגן - צריך להבין מהו הגרעין של העסק.

גרעין עסקי נכון הוא שילוב בין שלושה דברים:

  1. כישורים ונטיות אישיות - מה בא לכם טבעי? במה אתם טובים בלי מאמץ?
  2. ניסיון מקצועי או ניסיון חיים - איפה צברתם עומק? במה באמת התנסיתם?
  3. מוטיבציה פנימית - הרצון האמיתי שלכם ליצור, לעזור, לתקן, להזיז דברים.
בלי שלושת החלקים האלה - העסק יהיה חלש בבסיס שלו. גם אם תבנו אתר נוצץ ותשקיעו הרבה בפרסום.

גרעין עסקי נכון אומר שיש התאמה בין המוצר שאתם מציעים, הצרכים של הלקוחות, והאדם שאתם.



טיפים ליישום:


  • תשאלו את עצמכם: מה אני באמת רוצה לעשות ולא רק "יודע/ת" לעשות?
  • תזהו: מה הערך הייחודי שלכם שמביא תועלת ברורה ללקוחות?
  • תבדקו: האם המוצר שלכם עונה לצורך ממשי שקיים בשטח, והוא לא רק "רעיון נחמד"?


זה השלב שבו נולדת בהירות.
וברגע שיש בהירות - מגיע גם ביטחון.
ומשם- הדרך בע"ה סלולה.





גיל מנטלי לעסק

גיל עסקי זה לא כמה זמן אתם בעסק, אלא באיזו מהירות אתם מתבשלים.

יש עסק שקיים כבר 8 שנים אבל עוד מדשדש כמו בתחילת הדרך, (8 שנים ניסיון של שנה ראשונה)
ויש מישהו שרק פתח וכבר מתקדם בבשלות, במיקוד, ועם אש בעיניים.

גיל עסקי הוא לא כמה זמן העסק קיים, אלא באיזו רמה אתם נמצאים בתוכו:
כמה אתם ברורים לעצמכם,
כמה אתם מוכנה לקחת החלטות אמיצות,
כמה אתם באמת רואים בעסק שלכם עסק, לא תחביב ולא ניסוי.

ולא, אין כללים קשיחים מתי "נכון" להשקיע במיתוג, מתי לפנות לייעוץ, ומתי לבנות מוצר דיגיטלי.
יש מי שעושה את זה אחרי חודשיים – ויש מי שאחרי עשר שנים.
יש מי שבשבילו "השקעה" זה 300 שקלים ואצל אחר זו קפיצה של עשרות אלפים.

אבל מה שמשנה באמת - זו ההחלטה.
האם אתם רואים את עצמכם מתקדמים?
האם אתם מוכנים להפסיק להתלבט ולהתחיל לזוז?

עוד בנושא הזה אפשר למצוא פה >>







ד'

דילמת הביצה והתרנגולת - איך תתחילי אם אין לך ממה?


זו אחת השאלות הכי נפוצות אצל בעלי ובעלות עסקים בתחילת הדרך (ולא רק):
איך תשווקי אם אין לך עדיין לקוחות?
ואיך יגיעו הלקוחות - אם את לא מפרסמת?
ואם אין לך תקציב, איך בכלל תעשי פרסום ותוציאי כסף לפני שהכנסת?
אבל אם לא תפרסמי? מאיפה יבואו הלקוחות?

וחוזר חלילה....



זו הדילמה, אבל יש לה פתרון.

עסק לא מחכה לתקציב הוא מתחיל מתנועה.
והרבה פעמים דווקא העשייה הקטנה היא זו שפותחת את הצינור.



אז מה עושים בפועל?

*מפסיקים לחכות שהכל יהיה מוכן - ויוצאים עם מה שיש: התחלה דווקא מפנייה לקרובים/חברים/משפחה,
שכבר מכירים את הכישורים שלך וסומכים עליך גם בלי שיווק נוצץ, שירות בגרסה מצומצמת,
מייל ראשוני, או הצעה פשוטה לקבוצת פיילוט.

* משווקים בצורה חכמה גם בלי תקציב – פניה במייל/בוואצאפ,
פרסום אורגני בפורומים וקבוצות מייל חינמיות או נטוורקינג. זה שיווק לכל דבר.

* בונים קהל בהדרגה - פוסט ועוד פוסט, תגובה ועוד שיתוף - ככה מתחיל גשר.
הקהל לא נבנה ביום, אבל הוא מתחיל ממשהו. וגם רשימה של אלפים התחילה מבודדים...

* משקיעים זמן במקום כסף - בשלב הזה, הזמן שלך הוא הנכס. תנצלו אותו לחידוד, שיח עם קהל, בניית אמון.

*בודקים אם שווה לקחת סיכון מחושב - לפעמים גם 50 ש"ח על מודעה בפלטפורמה ממוקדת
יכולים להביא את הלקוח הראשון - שיכסה את זה פי כמה.





דף נחיתה או דף מכירה - מה ההבדל ולמה זה משנה?

הרבה עסקים מתבלבלים בין השניים - ובצדק.
כי שניהם דף אינטרנט ושניהם "דפי נחיתה", אבל התפקיד שלהם שונה לגמרי.

*דף נחיתה - בא להזמין.
הוא קצר, מזמין, פשוט. נועד לגרום ללקוחות לומר “אני בעניין”, ולהשאיר פרטים.
למשל: להצטרף לוובינר, לקבל מדריך חינמי, או לבקש שיחת ייעוץ.

*דף מכירה - בא למכור.
הוא ארוך יותר, עם הסברים, פירוט, תועלות, שאלות ותשובות.
מוביל לרכישה עצמאית, לפעמים גם בלי תיווך של שיחה או יועצת. (תלוי במוצר/במחיר/באופי העסק)



דוגמא מהלקוחה יהודית נדף- מעצבת הום סטיילינג לחדרי ילדים ועסקים מעולם הילדים:

  • דף נחיתה שמזמין לקבל מדריך שווה ללא עלות
  • דף מכירה לפגישת ייעוץ הום סטיילינג אצלכם בבית
    זה דף ארוךיותר עם פתיח שמחבר לרגש, הסבר מה נלמד, למי זה מתאים, כמה זה עולה, למה עכשיו - ובסוף: כפתור לקביעת פגישה.


טיפ קטן:

לפני שאתם כותבים דף או פונים לאיש מקצוע לבקש הצעה- תשאלו את עצמכם:
אני רוצה שהלקוחות ישאירו פרטים או שירכשו מוצר?

וזה ייתן לכם את התשובה איזה דף אתם צריכים.







דבורי כהן באזזז :)

מכירים את זה שעסקים מסיימים ייעוץ עסקי ואז שואלים את עצמם- נקסט. אז מה עושים עכשיו?
אז זה בדיוק מה שאני מציעה. תהליך הפקת מערכת שיווקית מדויקת, לעסקים שיש להם מוצר טוב להביא לעולם
ונמאס להם רק מייעוצים.
הנה תראו מה מספרת גב' דרורית ברון- יועצת חינוכית שהגיעה עם 30 שנות ניסיון, שילמה לייעוצים ולקורסים אבל חיפשה מאיפה מתחילים...
היא נכנסה אלינו לתהליך עם יומן פנוי, וב"ה סיימה עם הכנסת מזכירה שתעזור לה להשתלט עם עומס הפניות...
(זזזה דוגמא לאודות בגובה האוזניים:)


ולמי שמחפש כן את הכתיבה היותר מסורתית עם הטייטלים והכל...
יועצת שיווקית, אסטרטגית, פרסומאית ומרצה, כבר מעל ל-15 שנים בתחום השיווק, תקשורת ופיתוח עסקי,
עם ניסיון עשיר בליווי עסקים ויזמיות בדרך להצלחה.
לאורך השנים ליוויתי מאות לקוחות בתהליכי הפקה מלאים -
מהרעיון הראשוני ועד למכירה ממשית, בס"ד עם תוצאות בשטח שמדברות בעד עצמן.

יש לי צוות מקצועי ומשרד שמפיקים הפקות ללקוחות, וכך אנחנו יוצרים תהליך רחב ומקיף שמאפשר לעסקים להתפתח עם לב רגוע וראש שקט, כי הכל מטופל בצורה מסודרת, יצירתית ויעילה.

מוצר הדגל שלי הוא תהליך הפקה מלא ומסודר, שמכין ללקוחות את כל המערכת השיווקית בצורה מקיפה ומדויקת. אבל אני גם מציעה תוכניות ליווי ל"פיתוח קול עסקי", את תוכנית "יוצרות באזזז" לפרסומאיות ומעצבות שרוצות להוביל, וכן קורסים דיגיטליים עם כלים פרקטיים לפיתוח עסקי, שיווק ומכירות.

בנוסף, אני מרצה במרכזי הכוון, עיריות, מתנ"סים ומרכזי השתלמויות ברחבי הארץ - עם הרצאות וסדנאות בגובה העיניים, מלאות הומור ודוגמאות מהשטח, כדי לסייע לעסקים ויזמיות לפתח אסטרטגיה ברורה ולקדם את עצמם בצורה אפקטיבית.

אפשר לבקש גם פגישת באלאנס - מפגש התייעצות מקצועי שמטרתו להעניק לך כיוון ברור וממוקד לעסק שלך, ולסייע לך לקחת את הצעד הבא בביטחון.

בכל מקרה, בכל מה שאעשה בע"ה יהיה הרבה באזזז, לב, מקצועיות ואכפתיות.







ה'

הצעת מחיר- מה האורך האידיאלי?



מה האורך האידיאלי להצעת מחיר? עמוד אחד? שלושה? כמה שפחות?

גם אם שמעתם סביבכם צקצוקים בסגנון: "אויש, מי יקרא את כל זה... תנסו לצמצם ולהכניס הכל בעמוד מקסימום שניים..."

חשוב לדעת: האורך של הצעת המחיר לא קובע את האפקטיביות שלה.

מה שחשוב זה שהתוכן יהיה שיווקי, ברור ומדויק , ויכלול את כל החלקים הקריטיים
שעוזרים ללקוחות לעכל את המחיר- לצד נתונים חשובים נוספים.

תשימו לב שיש סוגים שונים של לקוחות (איזה סוג אתם?...)

  • יש מי שקורא כל מילה ומנתח כל פרט (ויכול מתוך שינה לצטט לכם משפט מההסכם עבודה😊)
  • ויש מי שרק מרפרף במהירות על המסמך.
אז התפקיד שלנו הוא לייצר הצעת מחיר שתגשר על שתי הגישות האלה:
היא תכיל את כל הפרטים בצורה בהירה, תעזור ללקוח להבין בדיוק מה הוא רוכש, למה זה שווה לו , ותמנע ככל האפשר הפתעות לא צפויות, כי אף אחד לא אוהב "חתול בשק".

זה רלוונטי מאוד במיוחד בתחומים של מתן שירותים כמו:

  • בניית אתרים
  • עיצוב גרפי
  • מיתוג
  • אדריכלות ועיצוב פנים
  • אוטומציות לעסק
  • ושירותים נוספים שבהם חשוב להציג את התוצר והשירות בצורה שקופה ומכבדת את הלקוח.






הוכחה חברתית
- ולמה היא שווה זהב?



הוכחה חברתית זה פשוט המלצות אמיתיות של אנשים, כתובות, מצולמות או מוסרטות,
שמספרות ללקוחות החדשים שמה שאתם מציעים זה עובד ויעיל.

כי, בינינו, כשאנחנו מדברים על עצמנו זה קצת נשמע שיווקי...
אבל כשלקוחות מדברים? זה כבר שובר את המחסומים ופותח את הארנק.

אז תדאגו שיהיה לכם קובץ מסודר עם המלצות, במקום אחד, שקל לשלוף ולשתף בפגישה,
בדף מכירה, בחתימת המייל שלך, בכל מקום.

למה זה עושה קסמים?

  • מוריד חששות
  • מעלה אמון
  • גורם לאנשים לרצות להצטרף.

כמה טיפים:
  1. בקשו המלצה כשהלקוחות חמים ומודים מעצמם- זה הזמן הטוב ביותר.
  2. תגוונו בפורמט בהתאם לסגנון הלקוח ולפי מה שמתאים לו: סרטון, הקלטה, טקסט כתוב, צילומסך...
  3. תארגנו הכל במקום אחד, כדי שלא תאבדו כלום.
  4. תעדכנו את הקובץ מדי פעם, הלקוחות הם השגרירים הכי טובים שלכם!




ו'

ותיקה או מתחילה? מי באמת מרוויחה יותר?


הוותיקות מביאות איתן ניסיון, מקצועיות ודרך. הן עברו כבר הרבה וברור שיש להן מה למכור,
אבל לפעמים הן מרגישות קצת מאחורה מול כל הנצנצים והפרסומים המרהיבים של המתחילות..
מזדהה?

חשוב שתזכרי שדווקא את, הוותיקה, יש לך יתרון אמיתי כשאת לומדת איך לשלב בין הידע שלך לבין שיווק נכון,
את יכולה לבלוט בדיוק כמו המתחילות, ואפילו יותר.

כי שיווק זה לא רק רעש וצעקות, אלא הבנה איך להעביר את המסר האותנטי שלך,
איך למשוך את הלקוחות שמתאימים לך באמת, ואיך להראות את הערך הייחודי שיש רק לך.

גם אם עכשיו נראה שהמתחילות מושכות תשומת לב רבה,
עושות הרבה רעש וצלצולים ואת- נשארת קצת בצל, ומה שהרגשת שעבד בשבילך עד היום כבר עובד פחות
בגלל שיש היום תחרות גדולה, והרבה אלטרנטיבות,
ובגלל שאנשים מסתכלים על הקנקן החיצוני-
רק רציתי לומר לך שזה לא סוף פסוק ויש לך איך לצאת מזה.


כמה טיפים ראשוניים שיעזרו לך להתקדם:

  1. תעדכני את המסר שלך: תבדקי שהשפה והשיווק שלך מדברים אל הלקוחות שאת רוצה למשוך, בצורה פשוטה וברורה.
  2. תשתמשי בכלים דיגיטליים מותאמים: אפילו צעדים קטנים, כמו דף נחיתה מעוצב או פוסט ממוקד, יכולים להרים את החשיפה שלך.
  3. תבני לעצמך תיק הוכחות חברתיות: המלצות של לקוחות מרוצים זה המפתח לאמון ולהצלחה.
  4. תגדירי לעצמך יעדים קטנים וברורים: לא צריך למהר - צעד אחרי צעד זה הסוד לשיווק נכון ובטוח.
  5. תזכרי שאולי העטיפה שלך לא נוצצת כמו של המתחילות, אבל זה לגמרי בר שינוי,
    והכי חשוב- שאפשר לתקן את זה.

    יותר קל להוסיף נראות, עטיפה ושיווק לעסק עם תוכן אמיתי וערכי,
    מאשר לשפר תוכן ורמה של עסק שיש לו רוח וצלצולים אבל הוא מלא אוויר מבפנים...




ז'

זירת מכירה

זירת המכירה
היא המקום שבו מתבצעת המכירה בפועל. המקום שבו אתם “נלחמים” על הלקוח, על המחיר ועל ההצלחה שלכם.

הדבר החשוב הוא למכור במקום שבו זה הכי נכון ומתאים ולא לנסות לדחוף הכל באותו ערוץ.

יש מוצרים שקל למכור דרך:

  • דף מכירה או קטלוג עם מחירים,
  • אתר אינטרנט עם סליקה אוטומטית.
אבל יש מוצרים שדורשים התאמה אישית, שיחה והסבר - ולכן שם המכירה צריכה להיות:

  • בשיחת טלפון
  • שיחת זום
  • או פגישה פרונטלית.
איך יודעים איפה הזירה הנכונה?
הכי פשוט לבחון בשטח:
  • ערכו 10 שיחות טלפון ו-10 שיחות פנים אל פנים על אותו מוצר,
  • תשוו איפה הצלחתם למכור יותר ובמחיר טוב יותר.
אם גיליתם שהזירה שלכם היא בפגישה, השיחה הטלפונית היא לא כדי למכור את המוצר,
אלא למכור את הפגישה להסביר למה כדאי להיפגש ומה התועלת.

לעומת זאת, אם המוצר פשוט וברור, אפשר למכור כבר בדף המכירה או בטלפון בלי פגישה.





ח'

חלון פתוח

מכירים את זה?
"יש לי תחושה שחלק מהאנשים נרשמים רק בגלל המתנה שהצעתי בחינם,
וכבר אחרי זה הם נוטשים ומסירים את עצמם... בשביל לקקני חינם כאלו עשיתי את כל ההשקעה?..."


הרבה עסקים חווים את התחושה הזו כשהם נותנים תוכן חינמי.
לפעמים באמת יש כאלה שרק רוצים את המתנה ויורדים מהרשימה. אבל זה בסדר גמור.
זה כמו לפתוח חלון: נכנס אוויר צח, אבל לפעמים גם קצת זבובים...

העיקר לזכור שלפתוח את החלון זה לטובה, כי היום- ידע אפשר למצוא בכל מקום.
הלקוחות לא מחפשים רק ידע, אלא לווי, מיקוד, הכוונה והתאמה אישית.

כשאתם נותנים תוכן מעולה כבר מההתחלה, אנשים רואים שאתם מקצוענים ויכולים להתרשם מהערך שלכם.
אז הם יחשבו:
"אם את זה הוא נותן לי ככה בחינם- כמה שווה יהיה לשלם ולקבל את השירות המלא?"

הסינון האמיתי קורה לאורך הדרך: מי שרק רוצה מתנה יילך,
או בפעם הבאה כשתעשו קמפיין במייל- הוא יסיר את עצמו,
ומי שמעניין אותו באמת מה שאתם מציעים, ויש פוטנציאל שיום אחד הוא יפנה ויבקש מכם משהו-
ימשיך לעקוב ויישאר אתכם לאורך זמן.





ט'

טיפוסי אישיות-
אנשים לא נולדו עם שטאנץ אחיד.

יש מי שקונה מהר, ויש מי שחייב לבדוק כל פסיק.
יש מי שרוצה תוצאות, ויש מי שצריכה רגש.
ולכן - אם ניגש לכולם באותו סגנון, נפספס לקוחות טובים.

מודל דיסק (DISC) הוא כלי פסיכולוגי פשוט ויעיל שעוזר לנו להבין את עצמנו ואת מי שמולנו -
ולהתאים את השיחה אליו במקום לדבר רק בשפה שנוחה לנו.



ארבעת הסגנונות בקצרה:

D - דומיננטי

רוצה לדעת "מה יוצא לי מזה?", מדבר קצר ולעניין, מקבל החלטות מהר.
מה להגיד לו? "זה יחסוך לך זמן ויביא תוצאות."
לא לחפור, לא להציע יותר מדי אופציות - תני לו להרגיש בשליטה.



I - משפיע
חברותי, רגשן, מדבר הרבה, מחפש חוויה.
מה להגיד לו? "זה מרגש, מיוחד, רוב האנשים בחרו את זה!"
תזרמו איתו אבל תכוונו- אחרת זה ייגמר ב”וואו” בלי עסקה.



S - יציב
רגוע, שקט, לא ממהר, מחפש ביטחון.
מה להגיד לו? "יש פה שקט נפשי, ליווי מסודר, משהו יציב לאורך זמן."
לא ללחוץ. לתת לו זמן לחשוב, אבל עם גבול.


C - זהיר
חוקר, שיטתי, שואל שאלות בלי סוף.
מה להגיד לו? "זה כולל 3 שנות אחריות, נבדק במעבדה, הנה הנתונים."
תביאו פרטים, טבלאות, הוכחות. זה קריטי בשבילו.



ולמה זה חשוב?

כי שיחת מכירה טובה זו לא הצגה ולא דקלום של תסריט כתוב מראש, אלא דיאלוג מותאם.
כשאתם יודעים מי עומד מולכם אתם יכולים להוביל את השיחה בצורה מדויקת יותר,
לגרום לו להרגיש בנוח,
ולהפוך שיחה ש”כמעט נסגרה” - לעסקה שבאמת נסגרה.

אגב, אם מעניין אתכם להעמיק בנושא-
יש לי קורס מכירות שחלק ב' שלו מבוסס כולו על התאמת השיחה לטיפוסי אישיות. אפשר בשמחה לפנות ולקבל פרטים.





י'

יש מיש
- לפני שמתחילים עוד מהלך שיווקי, תמיד חשוב לבדוק מה כבר קיים ואפשר למקסם.

מה המשאבים/דאטה/נתונים/פעולות שכבר יצרנו/בנינו/השקענו/אספנו,
ואיך אפשר להרוויח מהקיים עוד לפני שעושים פעולות חדשות מאפס.

זה רלוונטי בכל המישורים:

*פרסום- לפעמים רק צריך לדייק משהו בתוכן הפרסום, לפני שרצים להכין מודעה חדשה.
*אנשי קשר- להמשיך לתחזק ולתפעל רשימת תפוצה קיימת ולא רק לחפש דרכים להביא עוד אנשים.
*לידים- לחזור למי שכבר דיברתם איתו, ועשיתן 70% מהדרך, לפני שרצים להביא לידים חדשים ומתחילים לעשות שיחות מאפס.
*ייעוץ- למקסם את כל מה שאמרו/יעצו לכם לפני שמתחילים מהלך או ייעוץ חדש.
*קורסים- לפני שסיימתם ללמוד ולהטמיע קורס שלקחתם- חבל לרוץ לקורס הבא.





יוצרות באזזז-
הדרך להפוך מ"עוד גרפיקאית" או כותבת שיווקית לפרסומאית חזקה שיודעת להוביל לקוחות, לנהל תהליכים הרבה יותר רציניים ולקבל יותר כסף. בלי להפנות את הלקוח לאסטרטגית דגולה... איך לבנות מוצר רווחי, לנהל את הדרך, לכוון את הלקוח, ואיך להביא עוד לקוחות לשווק ולפרסם בצורה שמתאימה לעסק שלך- תוכנית הדגל למעצבות/פרסומאיות/קופירייטריות שרוצות להרוויח יותר.





כ'

כתיבה שיווקית


כתיבה שמזיזה לפעולה וגורמת לאנשים לזוז ולעשות מה שרצית שהם יעשו.

כמה טיפים בהקשר לזה:

*לא צריך להיות "ספרותיים" או עם כישרון כתיבה מיוחד, כתיבה שיווקית נשענת על עקרונות פסיכולוגיים ועל הבנה של מה הלקוחות צריכים ורוצים ומה יש לך להציע להם ולמה שיפנו דווקא אליך ולמה עכשיו.

*כתבתם ואתם מרגישים שדיברתם לקירות? שווה ללמוד את העקרונות לכתיבה שיווקית כי זה יכול לגרום ללקוחות להבין מה רצית מהם, ולהוריד ממך הרבה תסכול.

*בדור שלנו בעל/ת עסק לגמרי יכול לנהל לעצמו את התוכן השיווקי, בפרט שיש כ"כ הרבה כלי AI לעזר. אבל צריך להבין את הבסיס והעקרונות, כדי לכוון את הבינה ולא לפרסם שטויות או תבניות גנריות כמו מיליון עסקים אחרים.





ל
'

לידים - לא מספרים. נשמות.

לידים הם לקוחות פוטנציאליים.
בעולם השיווק אנחנו מדברים על חימום לידים , טיגון, בישול, ליד קר, חם או אפילו ליד שרוף.
אלה מונחים מקצועיים לגמרי - אבל חשוב שלא נשכח: מאחורי כל ליד יש בן אדם.

זה לא רק מספר בטבלה או אובייקט שצריך "להמיר", אלא מישהי עם רגשות, עם קצב, עם שיקולים.
כשזוכרים את זה - גם השיווק נראה אחרת.
פחות 'קניבליות שיווקית', ויותר תקשורת אמיתית שמכבדת את האדם שנמצא מולך.





לחץ בשיווק

אנחנו רוצים לקוחות. לא צריכים לקוחות.


גישה שחשוב לאמץ.

לקוחות שמגיעות אלי עם "צריכה דחוף כסף!" צריכה דחוף לקוחות"

אני ממליצה לה להשתלב באיזו עבודה קבועה כשכירה/פרילנסרית כדי לא להתחיל לשווק מתוך לחץ. שיווק מתוך לחץ הוא מתכון לכישלון, אכזבות ותסכולים על עצמנו ועל הלקוחות שברוב חוצפתם לא קנו.

"אבל אני באמת צריכה כסף!! המשכנתא רק עלתה, ויש לי תשלומי עתק על המעונות ועל..."

נכון. אבל אם פועלים ממקום של צורך, של נואשות ושל לחץ- הפעולות שנעשה, גם אם תהיינה מדויקות- לא יעבדו. לאנרגיות ולתחושות שלנו יש השפעה מאגית!

תשחררו. תנשמו. ותעבדו נכון. אנחנו אחראים על הפעולות, התוצאות כבר יגיעו בע"ה. רק צריך לתת להן את הזמן.

ולכן- תשננו לעצמכם- אני רוצה לקוחות- לעזור להם, להשפיע עליהם, לתת להם מהכישרון/היכולת/השירות שלי. אבל אני לא צריכ/ה אותם! לא תלוי/ה בהם. גם בלעדיהם אנחנו בע"ה נסתדר, נמצא פתרון, ויהיה לנו לחם פרוס ושוקו למחר בבוקר.

האמירה הזו יכולה לעשות לכם את ההבדל בין חיים של מרדף אחרי העסק-לקוחות-כסף, לבין שלווה פנימית ועשייה ממוקדת מטרה.









מ'

מודל רווחי לעסק


לפעמים העסק שלנו דומה לחנות אופניים שוקקת חיים, שבה מוכרים כל הזמן פריטים קטנים - פנסים, גלגלים, קסדות - ללקוחות שונים. זה תזרים שוטף, אבל לא בהכרח רווחי או יעיל בטווח הארוך.

הבעיה מתחילה כשעסק מוכר רק "חלקי חילוף" קטנים, בלי להציע את מוצר הדגל שלו - המוצר או השירות השלם שמביא ערך משמעותי ללקוח, ודרכו העסק באמת "נוסע".

חשוב להגדיר מוצר דגל מרכזי שייתן פתרון שלם, עם התחלה, אמצע וסוף, ושכבר הוכיח את עצמו כמוצלח ויעיל לאורך זמן.

את העסק שלך צריך להפעיל כמו אופניים עם שני גלגלים: מצד אחד - אפשרויות "דאון סייל" (מוצרים קטנים יותר או חלקיים, כדי להציל עסקאות), ומצד שני - "אפ סייל" (הרחבת המכירה למוצרים או שירותים נוספים שגדלים על בסיס מוצר הדגל).

כשאתם מוכרים את המוצר השלם שלכם, אתם לא רק מספקים ללקוחות פתרון אמיתי ועמוק, אלא גם מייצרים לעצמכם עסק יציב, רווחי ומלא סיפוק.





נ'


'נשמות טובות'


כשאתם מנהלים עסק, תמיד יהיו נשמות טובות מסביב שירצו לתת דעות, עצות, ביקורת - על איך שאתם משווקים, איך שאתם מציגים את עצמכם, איך אתם מפרסמים, או איך שאתם בוחרים לפעול. רובם לא מקצוענים בתחום שלכם, לא באמת מבינים את הסיפור המלא, רק רואים שטחית מבחוץ ומרגישים צורך "לתקן".

הם באים ממקום שונה, אולי בכנות, אולי כי פשוט זה מה שהם יודעים לעשות. הם לא בהכרח רוצים לפגוע, אבל לפעמים העצות שלהם מקלקלות את כל הביטחון והמצב רוח....

וזה בסדר - אנחנו לא חייבים לשמוע לכל מילה. כשאנחנו בטוחים במה שאנחנו עושים, כשאנחנו עומדים מאחורי ההחלטות שלנו, ביקורות כאלה לא צריכות לגרום לנו להתבלבל.

אם נתחיל לשנות את כל דבר על פי כל דעה שעוברת, נסתבך, נתעייף ונאבד את הכיוון שלנו.

אזז תנו מקום למה שמבין, למה שמחזק, ותדעו שאפשר להקשיב גם בלי לוותר על עצמכם. כשאתם עומדים איתנים, לפעמים עם "אטמי אוזניים" - העסק שלכם יוכל לשמור על יציבות.

כי בסוף, זה לא הקולות שמפריעים שיקבעו את ההצלחה שלכם, אלא היציבות והאמונה שלכם בעצמכם ובדרך שבחרתם ללכת בה.






נקניקיה קפואה


נקניקיה קפואה זו מטאפורה שאני אוהבת להשתמש בה, כדי לתאר לקוח שמגיע אלייך "רוחש התלהבות" בעקבות המלצה או לינק כלשהו אבל בפועל לא עבר תהליך חימום שיווקי נכון. כלומר, הוא לא באמת מכיר את השירות או המוצר שלך, לא התרשם, לא קרא חומרים או המלצות, ולכן עדיין "קר" מבפנים.

כמו נקניקיה רותחת מבחוץ וקפואה מבפנים, הלקוח נראה מוכן ו"רותח", אבל בפועל לא מוכן לקבל החלטה, כי לא התבשל מספיק טוב לאורך התהליך.

הפתרון הוא "לבשל" את הלקוח - להמשיך להעניק לו מידע, חומרי שיווק, עדויות, ולהוביל אותו בהדרגה להיכרות אמיתית עם הערך שלך, כדי שיהפוך ללקוח חם ורלוונטי שאולי בהמשך יהיה מוכן לרכוש.







ס
'

סיסטם לעסק


סיסטם הוא בעצם הדרך המסודרת והקבועה שבה העסק מתנהל - איך אתם מגיבים לפניות, מה השלב הבא, איך אתם מציעים את השירות, איך אתם מנהלים את המכירות והפרסום. כשיש סיסטם ברור, העסק נע בצורה חלקה ויציבה, בלי להתבלבל או "לגרור רגליים".

לעומת זאת, בלי סיסטם אתם עלולים למצוא את עצמכם מזגזגים, מנסים הרבה דברים בלי תוצאה יציבה, מתישים את עצמכם מחדש כל פעם, ולא מגיעים ללקוחות שוטפים באופן קבוע.

אפשר לזהות אם יש לך סיסטם אפשר על ידי כמה שאלות פשוטות:

  • איך אתם מגיבה לפניה ראשונה?
  • האם יש שיחת טלפון או שלב תקשורתי?
  • מתי וכיצד אתם שולחים הצעת מחיר?
  • מתי אתם עוקבים אחרי הלקוח/ה (פולואפ)?
  • מה קורה אחרי שנסגרת העסקה?
  • איך אתם מנהלים את התהליך באופן כללי?
כשאתם כותבים את כל התשובות האלה ומייצרים זרימה ברורה, אתם בעצם בונים סיסטם שגורם לעסק שלכם "לרוץ" בלי תקלות ועם שקט נפשי.

אגב, אצלנו בתהליך ההפקה אנחנו מכינים לעסק סיסטם מלא - לא רק של החומרים אלא גם של הנהלים, צורת העבודה, הפרסום, המכירות והניהול, כדי שהשיווק והמכירות יפגשו עסק מתפקד נכון ושתהיה לברכה על מה לחול.





סלוגן


סלוגן הוא הרבה יותר מסתם משפט שיווקי ש"נשמע טוב". זו האמירה המרכזית שלכם,
האג'נדה שמייצגת את מי שאתם ומה העסק שלכם.

אבלללל- חשוב להבין שסלוגן לבדו לא יגרום ללקוחות להגיע. כדי להצליח בשיווק צריך לדייק, להשקיע ולהטמיע את המסר נכון - אבל גם להיזהר מלהיתקע חודשים ארוכים בלחפש את הסלוגן "המדויק" במקום להתחיל לפעול ולהגיע ללקוחות.

הדרך הכי טובה היא לשלב בין אמירה ברורה ומדויקת לבין מהירות וקבלת החלטות נכונות בשיווק, כי בסוף - פעולה היא שמביאה תוצאות.

אם מעניין אתכם לראות דוגמאות לסלוגנים ומיתוגים שיצרנו, מוזמנים להכנס לכאן









ע'



עיקרון החתול


מה זה עיקרון החתול?
בלילה אחד, חתול שחור עקשן התיישב על החלון שלנו בחדר המדרגות, ממש ליד הדלת, וגרם לי להילחץ בטירוף. כל מה שניסיתי - קריאות, הקשות בדלת - לא עזר. עד שהתקשרתי לעירייה, ובזכות הדאגה לשלום החתול הם הגיעו בשעת לילה וטיפלו בו במהירות 😊

הסיפור הזה מלמד אותנו משהו חשוב בשיווק: כשאנחנו רוצים שהלקוחות יקשיבו לנו, לא יעזור לדבר על עצמנו, על מה שאנחנו אוהבים או על המוצר שלנו. הלקוחות רוצים לשמוע על מה שחשוב להם - על ה"חתול" שלהם וכשזה הנושא- האוזניים שלהם יתחדדו והם יעשו פעולות מרצונם החופשי.

רוצים ללמוד איך לדבר "חתולית" ולהצליח למשוך תשומת לב בלי לדבר על עצמכם/על מה שמעניין אתכם- יש פה דוגמאות שוות.





עליית מחירים- איך לעשות את זה נכון



זו שאלה שמעסיקה לא מעט עסקים, במיוחד כשמדובר בלקוחות חוזרים או כאלה שנהנים משירות קבוע שלך - כמו קוסמטיקאיות עם לקוחות נאמנות, מאמני כושר עם מנויים, מאפרות עם לקוחות שמגיעים שוב ושוב, או אפילו רואי חשבון, יועצים ונותני שירות מקצועי אחר.

מצד אחד, אתם יודעים שהמחירים חייבים לעלות - כי פשוט הכל מתייקר, מהחומרים ועד ההוצאות השונות.
מצד שני, אתם חוששים מהתגובה של הלקוחות - איך להגיד את זה נכון, איך לא לאבד אותם, איך לשמור על הקשר הטוב.

אז הנה כמה טיפים פשוטים שעובדים, כדי לעשות את זה בלי דרמות ולשמור על הלקוחות שלכם:

  1. הודעה מוקדמת - תנו זמן להסתגל
    אל תפתיעו אותם ביום אחד. תודיעו לפחות חודש-חודשיים מראש, כדי שירגישו בנוח ויוכלו להתארגן.

  2. הטבה ללקוחות קיימים – תשאירו להם את המחיר הישן לתקופת מעבר.
    לקוחות ותיקים יעריכו אם תאפשרו להם להישאר במחיר הקודם לחודש-שלושה לפני שהמחיר החדש נכנס לתוקף. זו דרך נהדרת לשמור על נאמנות.

  3. הסבר פשוט ושקוף
    אל תכבירו מילים, תסבירו בקצרה שהמחיר עולה כי הכל מתייקר ותציינו מה עוד הוספתם - זו עובדה שהלקוחות מבינים. אין צורך להצטדק יותר מדי.

  4. תזכירו את הערך שאתם נותנים
    המחיר עולה, אבל השירות והערך שאתם מביאים - הם זהים או אפילו משתפרים. חשוב להדגיש את זה.




פ'

פיתוח קול עסקי


אם אתם עוסקים בתחום שמצריך את הקול שלכם, בטח אתם מרגישים כמה "אין כוחכם אלא בפיכם" אתם תלויים בקול. יש לכם קול? תצליחו לתפקד. אין לכם קול? תנסו לתקשר בכתב, לרמוז בשפת הסימנים ולצפות שאנשים יבינו אתכם, או לחילופין תצרחו בקול צרוד ובלתי נשמע, לאחר ששתיתם גוגל מוגל / תה עם לימון בכמויות ענק.

בעסק צריך לעשות פיתוח קול. להבין איך אומרים, מה אומרים, מתי ולמי.
באיזה טון, באיזה סגנון. ואיך קוראים ללקוחות מבלי לצרוח, להתאמץ ולהצטרד
ומצד שני -בלי לשתוק ולהרגיש שקופים.

יש עקרונות חשובים שאם תלמדו אותם- יהיה לכם יותר קל, להפוך את העיסוק לעסק, להרגיש לא מנוצלים, להגיע ליותר לקוחות, לדייק את הרווחיות ואת צורת העבודה שלכם, לפרסם, לדבר עם לקוחות ולמכור להם, ולהתנהל גם עם הלקוחות הקיימים. השאלה אם להיות צרודים או לצרוח תהפוך למיותרת. כי הקול שלכם יהיה ברור, צלול ונעים.




פולואפ- תעודת בגרות לעסק שלך


פולואפ (מעקב אחרי לקוחות שפנו אליך) זה נושא שמעלה הרבה שאלות ורגשות: "אולי אני נודניק? אולי אני מלחיצה? מה אם הלקוח יחשוב שאני רודף אחריו?" זו תחושה טבעית שכולנו מכירים. האגו מתעורר בדיוק ברגעים האלו, ורוצה לעזור לנו לשמור על עצמנו מלהיות "נודניקים" או "דוחפים".

אבל בפועל, פולואפ הוא חלק חשוב ואחראי מהתהליך העסקי. זה לא חוצפה ולא חפרנות או הלחצה. אלא פשוט מקצוענות ודרך להראות שאתם מתייחסים ברצינות ללקוחות שלכם ולזמן שלכם. פולואפ נעשה מתוך אכפתיות וכבוד, לא מתוך דחיפות או דרישה.

לעיתים הלקוח לא עונה פשוט כי היא עסוק, לא כי הוא לא מעוניין. לכן חשוב להמשיך ולהיות עקביים, להציע מענה ולהיות זמינים. פולואפ הוא הדרך הטובה ביותר לשמור על קשר, להסביר, ולהעניק ביטחון. כמובן- להתקשר ללקוח/ה שאמר/ה לא חד משמעי בשיחה הקודמת- זה לא פולואפ אלא שטות😊!

אז אל תתנו לפחד או לאגו לעצור אתכם. עשיית פולואפ בגישה נכונה, רגועה ומכבדת היא חלק טבעי וחשוב בניהול עסק בריא ומתפקד.





פרסום ומה ההבדל בינו לבין שיווק

פרסום- זה לגרום לאנשים לדעת עליך.

שיווק- זה לעשות את זה כל כך מעניין מגרה ומושך- שהם ירצו לפנות וליצור קשר.

כדי שיראו אתכם אתם צריכים לפרסם, אבל לא מספיק פרסום בלי שיש טריגר שיווקי שיגרום לאנשים המשך תקשורת איתכם!

לכן אף פעם אל תסתפקו במודעת פרסום יפה ותמיד תוודאו שיש המשך- מה אתם רוצים שיקרה בעקבות זאת ואיך השיווק שלכם יגרום ללקוחות לרצות להכיר יותר.








צ'

צומת בעסק


הרבה פעמים אני פוגשת בעלות עסקים בצומת.
לא צומת דרכים רגילה, אלא יותר פנימית ועמוקה.
יש תנועה, יש עשייה, לפעמים אפילו עומס
אבל בלי באמת להתקדם.

זה מזכיר כיכר תנועה: כל הזמן זזים, מסתובבים, חוזרים על אותו מסלול
אבל עוד לא בחרנו כיוון חזק שאליו כל האנרגיות מופנות.


ויש הבדל גדול בין תנועה לבין התקדמות.

אז רגע לפני עוד סיבוב, תשאלו את עצמכם:

  • איפה אני רק נע/ה - ואיפה אני באמת מתקדמ/ת?
  • מה כבר ברור לי מזמן - אבל אני דוחה את ההחלטה?
  • האם יש החלטה שצריך פשוט לקבל - ולהמשיך?
לפעמים מספיקה פגישה ממוקדת וטובה, כדי לראות פתאום את הכיוון ומשם פשוט לפנות אליו ולהתקדם באמת.





ק'

קשרים עסקיים ושיתופי פעולה


יש לכם דרך להביא לקוחות חמים ומדויקים גם בלי פרסום?
אפשר לעשות את זה נטו דרך יצירת רשת קשרים חזקה, של דמויות מפתח ואנשים מצד ג' שיכולים להפנות אליכם את הלקוחות שמתאימים לכם.

לפני שניגשים לייצר שיתופי פעולה חשוב לדעת כמה עקרונות:
(אחרת גם אתם תצקצקו בלשונכם ותאמרו שניסיתם וזה ממש לא עבד:)



עיקרון 1: עם מי משתפים פעולה?
קודם כל צריך לזהות איפה הלקוחות האידיאליים שלכם מסתובבים, באילו תחנות הם נמצאים לפני שמגיעים אליכם,
או אחרי, או תוך כדי.
גם כשזיהיתם- חשוב למפות: יש הבדל עצום בין "כרישים" ל"סרדינים", תמיד נרצה להתחיל עם כרישים שיש להם הרבה יותר תנועה
ויכולת להפנות לקוחות במסות, ולא טפטופים דלילים.



עיקרון 2: מסות
כדי לראות תוצאות בשטח, ולהפוך קשרים רגילים להפניות אמיתיות שמביאות לקוחות לעסק-
צריך לעבוד במסות. ולפנות לפחות ל-100 משתפי פעולה פוטנציאליים.

נשמע מוגזם? לפי סטטיסטיקות, 1 מתוך 10-12 שיאמרו לך כן, באמת ישלחו לקוחות. ולכן אם רוצים להתבסס על שיתופי פעולה ככלי שיווקי חזק- צריך לעבוד בגדול.
כשתבנו תוכנית עבודה ותחלקו את המספרים האלו על טווח זמן רחב- תגלו שזה בהחלט אפשרי.



עיקרון 3: להיות אטרקטיבי
למצוא את הדרך לגרום למשתפי הפעולה הכי עסוקים לפזול לכיוון שלך, להציע להם משהו שונה, ומדויק למה שהם רוצים/מבקשים, כדי שירצו לעבוד דווקא איתך.



עיקרון 4: לפנות בצורה נכונה שתגרום לצד השני לרצות להקשיב ולהמשיך את התקשורת, ולא לסנן או לחשוב "עוד איזה נודניק שמחפש לקבל לקוחות על הגב שלי"



עיקרון 5: מקידום לסגירה
שתפ זה תהליך מכירה לכל דבר. נפגשתם? דיברתם? עכשיו צריך להמשיך לקדם ולנהל את זה נכון כדי שתצאו עם הסכם ברור ואפקטיבי וזה לא יישאר עוד ניסיון תפל.



עיקרון 6: לשמר את ההצלחה
יש שת"פים מוצלחים? מעולה! קריטי לשמר ולתחזק אותם לטווח הארוך, כדי שהלקוחות ימשיכו להגיע גם בעוד שנה ורשת הקשרים שיצרנו תמשיך להניב בע"ה.

(בקורס שיתופי פעולה מניבים יש את כל השיטה, ההכוונה ואיך לעשות תכלס שתפים יעילים שיכולים למנף את העסק מאד)








ר'



רשימת תפוצה-

כלי אפקטיבי שעם כל ההצפה גם בשנת 2025, עדיין עובד ויעיל, ומביא הרבה מאד כסף כשעובדים איתו נכון.
רשימת תפוצה היא כמו כספומט, צריך גם להפקיד ערך, תוכן שווה, וגם למשוך- לעשות מכירות.


3 בורות שעלולים ליפול בהם בעלי רשימות תפוצה:

  • 'ללטף' את הרשימה עם טיפים, תוכן והמון השקעה בכתיבה, ולהימנע מלמכור, כדי שלא יסירו אתכם.
  • לשלוח רק הצעות מכירה בלי שום תוכן מועיל. לקוח שמפציצים אותו במיילים מכירתיים נוטש ובמקרה הרע- ישליך אתכם לספאם.
  • לתת לגיפטי לכתוב לכם את התוכן ולסמוך עליו ב100%. רובנו פיתחנו חוש ריח לתוכן שנכתב ע"י בינה לא אנושית. אפשר להעזר בו לסיעור מוחות, לעיבוד חומרים, לתמצות או להרחבה, אבל לתת לו יד חופשית זה מתכון למיילים שגורמים לבחילות ולחוסר חיבור של הקהל.






ש'

שליחות וכסף- הולכים ביחד?



הרבה בעלות עסקים מרגישות אי נוחות סביב כסף.
הן רוצות להרוויח, אבל לא רוצות להיתפס כאילו הן "מגעילות" ועובדות בשביל כסף.
שואפות לגדול, אבל מרגישות לפעמים שכסף מתנגש עם השליחות.

ובכן - זה פשוט לא נכון.
כסף לא סותר שליחות. הוא דווקא זה שמאפשר לה להתרחב.

כסף זו אנרגיה. תנועה.
הוא מגיע כשאתם מזיזים משהו בעולם - כשאתם נותנים ערך, נוגעים, משפיעים.
ברגע שאתם נותנים - יש מקום שהעולם יחזיר. בצורת תודה. בצורת תוצאה. ובצורת תשלום.



בעלת עסק אחת אמרה לי פעם "אני לוקחת על זה XXX ₪"

ואמרתי לה:
"את לא לוקחת. את מקבלת.
את לא שולחת יד לארנק של הלקוחה - את נותנת לה שירות, שינוי, ערך.
והיא בוחרת להחזיר לך בחזרה."

ברגע שהיא שחררה את המילה "לוקחת",
הרגישה שהכול השתנה לה בראש.
הבינה שכסף זה לא גזל - זה זרימה. זה יחסי תן וקח מכבדים.



אז למה אנחנו נלחצים מתמחור?

כי בתוך תוכנו, לפעמים נדמה לנו שכסף הוא תובעני.
או שאם נדרוש יותר - אנשים יחשבו שאנחנו רק רוצים כסף.

אבל זו טעות.
אנשים לא מפחדים לשלם - הם רק רוצים להבין על מה.
כשהערך ברור, התועלת בולטת, ויש חיבור אישי - המחיר לא מה שמונע את הרכישה.

ולפעמים, כשאנחנו גובים מחיר נמוך מדי –
זה לא גורם ללקוח להרגיש שהוא "הרוויח", אלא לפעמים להפך - שזה לא שווה.



כלים פרקטיים לשינוי תודעה מול כסף:

  1. שנו את השפה - אל תגידו "אני לוקח/ת" אלא "אני מציע/ה", "אני מקבל/ת", "זו ההשקעה בתהליך".
    שפה יוצרת מציאות.
  2. כתבו רשימה של השפעות טובות שעשיתם - אנשים שזזו בזכותכם, קיבלו בהירות, קיבלו אומץ, יצרו תוצאה.
    זה שווה זהב – ולפעמים צריך להיזכר בזה...
  3. בכל פעם שאתם גובים תשלום, תאמרו לעצמכם בלב:
    "אני מאפשר/ת כאן שינוי. תודה לה' על הזכות"
  4. תזכרו - אתם לא מתמחרים את הזמן שלכם, אלא את הערך שאתם מביאים.
    זה הבדל ענק.










הגענו ל----- ת
'



תבטיחו לי!



אם יש משהו שבעלי עסקים פוגשים שוב ושוב - זו השאלה הזו:
"את/ה מתחייב/ת לתוצאה?"
"אם אני מצטרף/ת – את/ה מבטיח/ה שזה יעבוד?"

וזה מובן.
לקוחות רוצים ביטחון.
הם רוצים לדעת שלא זורקים כסף לפח, שלא מבזבזים זמן סתם.

אבל כאן צריך לעצור ולדייק:
אי אפשר להתחייב על תוצאה כשחלק גדול ממנה תלוי בצד השני.

וזה נכון לא רק במיתוג, שיווק או ליווי עסקי.
זה נכון גם אם אתם יועצים, מנחת הורים, קוסמטיקאית, מאמנ/ת או בונה אתרים.
גם אם אתם מעבירים קורסים, סדנאות או נותנים שירותי כתיבה או פרסום.
בסוף, הלקוח או הלקוחה צריכים לעשות את החלק שלהם.

אז מה עושים כשמבקשים ממך התחייבות?

מדברים על התחייבות הדדית.
מסבירים מה בתחום האחריות שלך
ואיזה חלק תלוי בלקוח.

אתם יכולים להתחייב:
  • לתת את כל מה שאתם יודעים
  • לעמוד בזמנים
  • להיות שם גם כשיש שאלות או אתגרים
  • לתת שירות מקצועי, מדויק ומושקע

אבל הלקוח?
הוא צריך להתחייב לעבוד עם זה.
להגיע מוכן.
ליישם.
לא לחפש קסמים וקיצורי דרך.
להיות בפנים, באמת.

ורק כשההתחייבות הזו קיימת משני הצדדים -
אפשר להתחיל תהליך שמוליד תוצאות.

אז בפעם הבאה שלקוח יבקש הבטחה,
במקום להילחץ - תציעו לו את מה שבאמת יש לכם לתת:
התחייבות עמוקה למה שבתוך התחום שלך.
ותזמינו אותו להתחייב מהצד שלו.

ככה מתחילים תהליך מבורך.





תסמונת הקלסר המלא

כבר היו לי לקוחות, לא אחת ולא שתיים, שהביאו לי ניילוניות וקלסרים מלאים בחומרים.
פרסונות, אוואטר, ניתוח שוק וסיכומים מילה במילה מהקורס שלמדו או מהייעוץ העסקי שעברו.

הן באו עם השאלה: אוקיי, הכל טוב ויפה, למדתי, השתלמתי, אני יודעת הכל.
תכלס- מאיפה מביאים לקוחות? מה עושים מחר בבוקר? מה אני שולחת? מה כותבת? מאיפה מתחילה?...


תסמונת הקלסר המלא זה תיאור למצב שבו יש כל כך הרבה ידע ודיבורים, אבל העיקר- שאלו הפעולות המעשיות, חסר מן הספר.

תבדקו את עצמכם אם אתם בשלב הזה, ואם מתוך חוסר ביטחון נרשמתם שוב לעוד קורס או ייעוץ.

מה שאתם צריכים לעשות זה להתחיל להשתמש בחומרים ולהוציא מהכוח אל הפועל.
אם אתם יודעים לעשות את זה בעצמכם- מעולה! לכו על זה.

ואם אתם לא יודעים או לא יכולים לעשות את זה בעצמכם (וזה לגיטימי לגמרי)
יש אנשי מקצוע שיכולים לעזור לכם. רק אל תישארו עם הקלסר המלא והלב המתוסכל.


(אגב, בדיוק בשביל זה תהליך ההפקה שלנו כולל גם את ההכוונה והייעוץ אבל גם את ההפקה בפועל- אתם לא מקבלים רק ייעוץ והמלצות ליישום- אלא אנחנו מכינים עבורכם את כל המערכת השיווקית המדויקת לעסק שלך- כולל אסטרטגיה, מחקר, כתיבה, מיתוג, עיצוב, בניית דפי נחיתה/אתר, רשימת תפוצה ותוכנית פעולה מתי ואיך אתם משתמשים בכל זה ואיך להביא יותר לקוחות ולמכור להם.)






סיימנו!


כל הטעימות מוגשות לכם ועכשיו זה הזמן שלכם:



1. בחרו כפית אחת, מתוך הטעימות והמושגים שלפניכם
2. ציינו מה בחרתם ולמה זה תפס אתכם

3. נכנסתם להגרלה על 500 ₪ מזומן לחשבון.


ההגרלה תערך בע"ה בכ"ח בתמוז ופרטי הזוכה יפורסמו בפרוג.

הצטרפות לניוזלטר

איזה כיף שהצטרפתם לניוזלטר שלנו!

מעכשיו, תהיו הראשונים לקבל את כל העדכונים, החדשות, ההפתעות בלעדיות, והתכנים הכי חמים שלנו בפרוג!

לוח מודעות

הפרק היומי

הפרק היומי! כל ערב פרק תהילים חדש. הצטרפו אלינו לקריאת תהילים משותפת!


תהילים פרק כה

אלְדָוִד אֵלֶיךָ יי נַפְשִׁי אֶשָּׂא:באֱלֹהַי בְּךָ בָטַחְתִּי אַל אֵבוֹשָׁה אַל יַעַלְצוּ אֹיְבַי לִי:גגַּם כָּל קוֶֹיךָ לֹא יֵבֹשׁוּ יֵבֹשׁוּ הַבּוֹגְדִים רֵיקָם:דדְּרָכֶיךָ יי הוֹדִיעֵנִי אֹרְחוֹתֶיךָ לַמְּדֵנִי:ההַדְרִיכֵנִי בַאֲמִתֶּךָ וְלַמְּדֵנִי כִּי אַתָּה אֱלֹהֵי יִשְׁעִי אוֹתְךָ קִוִּיתִי כָּל הַיּוֹם:וזְכֹר רַחֲמֶיךָ יי וַחֲסָדֶיךָ כִּי מֵעוֹלָם הֵמָּה:זחַטֹּאות נְעוּרַי וּפְשָׁעַי אַל תִּזְכֹּר כְּחַסְדְּךָ זְכָר לִי אַתָּה לְמַעַן טוּבְךָ יי:חטוֹב וְיָשָׁר יי עַל כֵּן יוֹרֶה חַטָּאִים בַּדָּרֶךְ:טיַדְרֵךְ עֲנָוִים בַּמִּשְׁפָּט וִילַמֵּד עֲנָוִים דַּרְכּוֹ:יכָּל אָרְחוֹת יי חֶסֶד וֶאֱמֶת לְנֹצְרֵי בְרִיתוֹ וְעֵדֹתָיו:יאלְמַעַן שִׁמְךָ יי וְסָלַחְתָּ לַעֲוֹנִי כִּי רַב הוּא:יבמִי זֶה הָאִישׁ יְרֵא יי יוֹרֶנּוּ בְּדֶרֶךְ יִבְחָר:יגנַפְשׁוֹ בְּטוֹב תָּלִין וְזַרְעוֹ יִירַשׁ אָרֶץ:ידסוֹד יי לִירֵאָיו וּבְרִיתוֹ לְהוֹדִיעָם:טועֵינַי תָּמִיד אֶל יי כִּי הוּא יוֹצִיא מֵרֶשֶׁת רַגְלָי:טזפְּנֵה אֵלַי וְחָנֵּנִי כִּי יָחִיד וְעָנִי אָנִי:יזצָרוֹת לְבָבִי הִרְחִיבוּ מִמְּצוּקוֹתַי הוֹצִיאֵנִי:יחרְאֵה עָנְיִי וַעֲמָלִי וְשָׂא לְכָל חַטֹּאותָי:יטרְאֵה אוֹיְבַי כִּי רָבּוּ וְשִׂנְאַת חָמָס שְׂנֵאוּנִי:כשָׁמְרָה נַפְשִׁי וְהַצִּילֵנִי אַל אֵבוֹשׁ כִּי חָסִיתִי בָךְ:כאתֹּם וָיֹשֶׁר יִצְּרוּנִי כִּי קִוִּיתִיךָ:כבפְּדֵה אֱלֹהִים אֶת יִשְׂרָאֵל מִכֹּל צָרוֹתָיו:
נקרא  2  פעמים
למעלה