- הוסף לסימניות
- #1
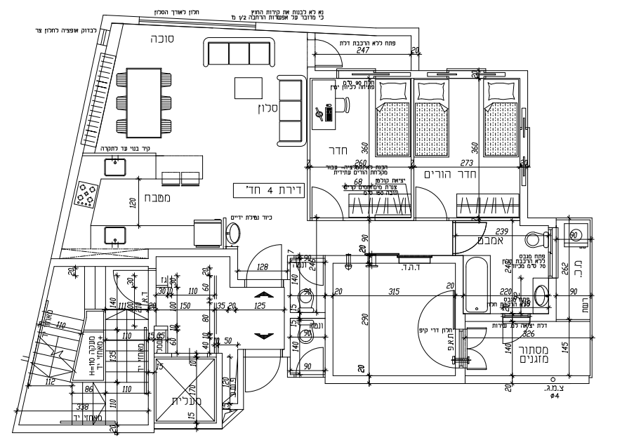
שלום וברכה,
עבדנו עם אדריכלית לדירה מקבלן ולפני שאנחנו שולחים לביצוע אשמח לשמוע דעות נוספות - הן לקירות הפנים במיוחד מקלחת וכן בין המטבח לסלון (אני לא אוהבת אי נמוך) האם לעשות חצי קיר 1.2 או קיר מלא?
ובכלל האם יש מישהו שיודע להסביר לי איך לנצל את המטבח בצורה המקסימלית
יש קובץ מצורף
ממש תודה.
מחכה להצפה.
כל דעה עצה מתקבלת !!!
עבדנו עם אדריכלית לדירה מקבלן ולפני שאנחנו שולחים לביצוע אשמח לשמוע דעות נוספות - הן לקירות הפנים במיוחד מקלחת וכן בין המטבח לסלון (אני לא אוהבת אי נמוך) האם לעשות חצי קיר 1.2 או קיר מלא?
ובכלל האם יש מישהו שיודע להסביר לי איך לנצל את המטבח בצורה המקסימלית
יש קובץ מצורף
ממש תודה.
מחכה להצפה.
כל דעה עצה מתקבלת !!!
הנושאים החמים