שאלה חוות דעת על עיצוב דופלקס

  • הוסף לסימניות
  • #41
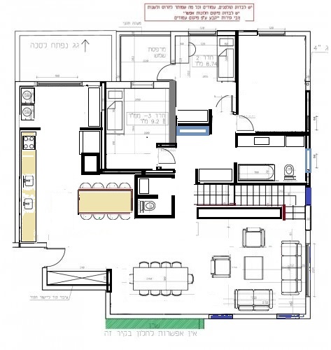
אז התקדמנו עוד שלב.
המטבח עדיין לא מתוכנן ממש, והפינת אוכל מרגישה לי גדולה מידיי

כיור נטילת ידיים מרגיש תקוע,
וגם כל השטח מהכניסה לבית עד הפרוזדור מרגיש ערום וריק
ועוד בעיה זה שהשירותי אורחים מול דלת הכניסה

1738060285213.png
 
  • הוסף לסימניות
  • #42
את יכולה לסובב את כיור נטילת הידים ולעשות מעין נישה עם קיר שגם יפתור לך את הבעיה ששירותי האורחים מרגישים לך חשופים מידי לכניסה.
1738060285213.png
 
  • הוסף לסימניות
  • #43
לגבי פינת האוכל - זה ענין של טעם - אפשר למקם אותה דוקא בעומק הסלון מה שיתן לה תיחום מסוים ואת איזור הספות להביא לחלק הקדמי. אפשר לבצע שם ספת ר' או ח' ולשלב אפילו קמין מעניין בספרייה.
לגבי המטבח - אם יש לכן שטח כזה גדול לא כדאי להצמיד כיור לגבוהים אלא להשאיר משטח ולעשות ארון מכשירים עם גישה ישירה לשיש
 
  • הוסף לסימניות
  • #44
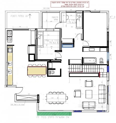
אז התקדמנו עוד שלב.-----
נראה שחזרתם אחורה
המטבח עדיין לא מתוכנן ממש, והפינת אוכל מרגישה לי גדולה מידיי

כיור נטילת ידיים מרגיש תקוע,
וגם כל השטח מהכניסה לבית עד הפרוזדור מרגיש ערום וריק
ועוד בעיה זה שהשירותי אורחים מול דלת הכניסה
נכון מאוד -- הרגשים אמיתיים

גם לא הבנתי --רוצים דירה אחת גדולה ------או יח"ד להשכרה ?
זה בכלל אותה דירה ?
 
  • הוסף לסימניות
  • #46
יש גם יחידות, בקומה התחתונה
וגם 2 קומות מגורים
 
  • הוסף לסימניות
  • #48
אני מתכוונת על פינת האוכל במטבח
ומה הבעיה לקצר אותה? או שאת לא מתכוונת למספר מקומות הישיבה אלא לחלל שיש אחריה מול המדרגות.
אפשר להעביר לשם את השירותים במקום מתחת המדרגות ולתחום מעט.
 
  • הוסף לסימניות
  • #50
אפשר לבנות קיר כך שלא יראו את השרותים מדלת הכניסה ולעשות פינת נט"י מפוארת על קיר הממ"ד
וגם לעשות מדרגה ראשונה בצורה מענינת יותר,כזו או אחרת.


דופלקס.PNG
 
  • הוסף לסימניות
  • #51
אז התקדמנו עוד שלב.
המטבח עדיין לא מתוכנן ממש, והפינת אוכל מרגישה לי גדולה מידיי
כיור נטילת ידיים מרגיש תקוע,
וגם כל השטח מהכניסה לבית עד הפרוזדור מרגיש ערום וריק
ועוד בעיה זה שהשירותי אורחים מול דלת הכניסה
יש כאן בעיה בעיה של פרופורציות ולכן שום דבר לא משש נראה מנוצל --הסלון ארוך מידי למטבח --והסלון ליד המדרגות קטן מידי והפ"א --מבוזבזת עם מלא חלל מיותר מסביבה
מציע משהו למבינים שלדעתי ליגה -שמכניס את הבית לפרופורציות נכונות --ובטוח שיהיה מה להגיד למה לא
אבל אם חשוב לכם לקבל משהו עם צורה צריך לפעמים גמישות במחשבה ולהתפשר על משהו
1864954-3fd593bea2790e89fb234c459aeb3018 - עותק.jpg
 
  • הוסף לסימניות
  • #52
יש כאן בעיה בעיה של פרופורציות ולכן שום דבר לא משש נראה מנוצל --הסלון ארוך מידי למטבח --והסלון ליד המדרגות קטן מידי והפ"א --מבוזבזת עם מלא חלל מיותר מסביבה
מציע משהו למבינים שלדעתי ליגה -שמכניס את הבית לפרופורציות נכונות --ובטוח שיהיה מה להגיד למה לא
אבל אם חשוב לכם לקבל משהו עם צורה צריך לפעמים גמישות במחשבה ולהתפשר על משהו
צפה בקובץ המצורף 1884369
תודה על ההשקעה.
מבחינת המדרגות, לא מעונינים לעשות גרם ארוך. פחות בטיחותי עם קטנטנים, וגם לא מתחברים למראה הזה.
חדר כביסה ביטלת וזה גם משהו שחשוב לי מאוד.

עדיין מנסה להגיע לתיכנון הכי מדוייק לנו ולא מוצאת
 
  • הוסף לסימניות
  • #53
לא עקבתי מדי אבל יש פה באמת הרבה שטח מבוזבז, תחשבי אולי לסגור קצת לאיזו מבואת כניסה יפה, (שנכנסים מיד לסלון זה לא היה תמיד ככה, ואם תצליחו לאו הפרדה של נגרות/משרביה/קיר לעשות מבואת כניסה יפה זה מהמם!
כי יש פה הרבה שטח
או לנסות להכניס חלל משפחה קטן- ובמטבח לי מפריע שהוא כל כך גדול ובצורה די בנאלית, אולי תעשי אותו יותר מקוצר ובשטח בסוף ליד החלון הייתי מוסיפה פינת אוכל עגולה יפה , במטבח עצמו היתיי שמה אי רק ל3 או 4 מקומות. לדעתי יתן פרופורציה למטבח וגם יתן אופציה לאכילה משפחתית יפה בסוף
אין לי איך כרגע לצייר כסקיצה. מקווה שהובנתי
 
  • הוסף לסימניות
  • #54
אפשר לייצר בשטח ה"מבוזבז" פינת קריאה. להעביר את הגבוהים במטבח לצד הנגדי, במיקום שכיום האי לעשות ארונות גבוהים שמצידם השני יש ספריה. על קיר הממ"ד לעשות מקומות ישיבה כמו ספת רביצה או פופים. ולתחום את זה ממול קיר הממ"ד באיזו משרבייה יפה כמו שהציעו פה.
1738060285213.png
 
  • הוסף לסימניות
  • #55
תודה על ההשקעה.
מבחינת המדרגות, לא מעונינים לעשות גרם ארוך. פחות בטיחותי עם קטנטנים, וגם לא מתחברים למראה הזה.
חדר כביסה ביטלת וזה גם משהו שחשוב לי מאוד.

עדיין מנסה להגיע לתיכנון הכי מדוייק לנו ולא מוצאת
מדרגות --זה לא שיקול " קטנטנים " ולא יודע למה לחשוב כך כי זה אותו דבר מבחינה בטיחותית
חדר כביסה לא ביטלתי --רק העברתי בהמשך המטבח --יש מרחב וחלון גדול ואפשר גם לתלות כביסה
וזה מכניס את המטבח לפרופורציות ופותר בעיה
תכנון מדויק --זו האופציה שהעלתי אם כל החסרונות שלה לשיטתכם -- ותמשיכי לנסות לא אופטימי שתמצאו
 
  • הוסף לסימניות
  • #56
חדר כביסה לא ביטלתי --רק העברתי בהמשך המטבח --יש מרחב וחלון גדול ואפשר גם לתלות כביסה
יותר נוח מהאמבטיה מאשר מהמטבח. לא? דוקא אהבתי את השטח הגדול של המטבח. נותן הרבה מרחב ואופצוות לעיצובים ברמה אחת מעל. אני בגודל כזה הייתי מוותרת על כל הארונות העליונים (אא"כ דחוף למייבשי כלים גם אם יש מדיחים).
אפשר לייצר בכל מקרה חדר שירות למטבח, אבל חבל כי יש חלון גדול דוקא בחלק האחרון של המטבח. אני אישית הייתי ממקמת דוקא ליד החלון את פינת הישיבה.
לגבי ספריה מצד אחד וארון מטבח מצד שני - ראיתי פעם מישהו שעיצב בתוך דבר כזה אקוריום ענק דו צדדי. זה מהמם למי שאוהב.
 
  • הוסף לסימניות
  • #57
חדר כביסה בשבילנו זה לא רק מכונה ומייבש אלא גם גיהוץ וקיפול, ושואב.
פחות מתאים שיהיה באיזור המטבח.
 
  • הוסף לסימניות
  • #58
חדר כביסה בשבילנו זה לא רק מכונה ומייבש אלא גם גיהוץ וקיפול, ושואב.
פחות מתאים שיהיה באיזור המטבח.
גם בסקיצה שלי אפשר להשאיר את חדר כביסה כמו התכנון המקורי
אבל אם מתפשרים על ח"כ בהמשך המטבח כמו רוב הדירות בישראל -- יש בזה כמה יתרונות
1- נותן משמעות למטבח הארוך --- וזה באותו גודל כמו בתכנון המקורי
2- מגדיל את החדרים די משמעותי
3- אין מסדרון מפותל אלא רחבה שימושית
4- יש אורור טבעי לשירותי ילדים לחלון חיצוני
5- יש חלון גדול שאפשר לתלות כביסה -- מה שאין בתכנון המקורי
הצעתי --לא חייבים לקבל
 
  • הוסף לסימניות
  • #59
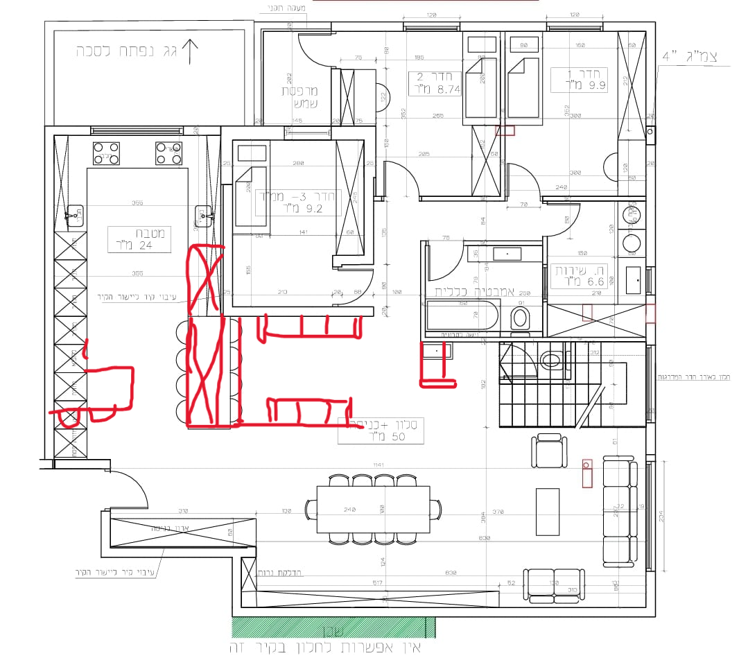
אז התקדמנו עוד שלב.
המטבח עדיין לא מתוכנן ממש, והפינת אוכל מרגישה לי גדולה מידיי

כיור נטילת ידיים מרגיש תקוע,
וגם כל השטח מהכניסה לבית עד הפרוזדור מרגיש ערום וריק
ועוד בעיה זה שהשירותי אורחים מול דלת הכניסה

צפה בקובץ המצורף 1883478
מה את אומרת על רעיון כזה במטבח?
מתכוונת להוריד את כל הקיר איפה שסימנתי באדום - שם לא יהיה כלום
להחליף גז אחד בכיור
להוסיף בחלק של הגבוהים יותר שטח שיש על חשבון גבוהים (נראה מוגזם וגם אפשר להעביר חלק מהארונות למקום אחר)
ולשים באמצע המטבח אי שיכיל גז, אחסון מתחת לאי ובהמשך פינת ישיבה
אי באמצע המטבח כשיש שטח שמאפשר את זה, נוח מאד!

איפה שסימנתי בצהוב נראה שטח קצת מבוזבז מידי
הייתי הולכת על חדר משחקים חצי פתוח, כמו שהציעו פה עם משרביה או כל דבר אחר, יש דברים מדהימים

דירה ממש יפה!

1738181880594.png
 
  • הוסף לסימניות
  • #60
גם בסקיצה שלי אפשר להשאיר את חדר כביסה כמו התכנון המקורי
אבל אם מתפשרים על ח"כ בהמשך המטבח כמו רוב הדירות בישראל -- יש בזה כמה יתרונות
1- נותן משמעות למטבח הארוך --- וזה באותו גודל כמו בתכנון המקורי
2- מגדיל את החדרים די משמעותי
3- אין מסדרון מפותל אלא רחבה שימושית
4- יש אורור טבעי לשירותי ילדים לחלון חיצוני
5- יש חלון גדול שאפשר לתלות כביסה -- מה שאין בתכנון המקורי
הצעתי --לא חייבים לקבל
לרוב אני ממש מתחברת לכל ההצעות שלך @ilan p אבל הפעם פחות... לטעמי עדיף בהרבה מרפסת שירות שיוצאת מאמבטיה מאשר ממטבח. אפשר לעשות סקר בפרוג מה אומרים האנשים, אבל איכשהוא אני ממש סולדת מהרעיון של העברת כביסה (מלוכלכת ונקיה) בתוך המטבח.
אם אין ברירה אין ברירה. אבל בדירה כזו גדולה זה חבל. לא מצליחה להבין איך מטבח וכביסה מתחברים ביחד.

לגבי המסדרון - ברור שההצעה שלך יותר כיפית, אבל הוא לא כ"כ ארוך ולא נורא בעיני. לגבי תליית כביסה - נראה שיש להם חלון במרפסת שירות ועם העמדת ריהוט שונה יוכלו לתלות גם שם.

ומטבח ענק הוא יתרון מהמם לשמחות ביתיות בלי מגבלת מקום. הם צריכים להשקיע עוד הרבה מחשבה במטבח. אבל בתכנון טוב הוא יכול להיות סופר שימושי, מלא מקום אחסון, מאורר ונעים לעין. לא?
 

פרוגבוט

תוכן שיווקי
פרסומת

פוסטים חדשים שאולי לא קראת....

הכותרת לא באה להתריס היא באה להדגיש מצב
ולא לא באתי לומר שאבא או אמא עם ילד או שניים זה לא אתגר
אבל שימו לב
בעוד אתם בונים על ההורים לרוב פסח ולכן מכשירים פיסת שיש קטן לפינת קפה. מדף במקרר. ובארון
כי מילא רוב החג נהייה אצל ההורים
ההורים והרווקים בבית קורעים את עצמם [תזכרו זה לא היה כזה מזמן]
כן אמא שלך לא נחה כבר 3 שבועות

להפוך בית שלם 100+ מטר של ארונות כיורים שולחנות מטבח סלון כיסאות מזווה מיטות
לכשר לפסח
לאפשרות שאתם וילדכם הסתובבו בחופשיות עם מצה ואפיקומן שסבא קנה
לא נכנסתי להוצאות המטורפות שקצת עוברות לידכם. למה שתקנו מצות יין או חסה או נייר כסף לציפוי המטבח
ושוב לא בהאשמה ולא בטרוניה אלא כנתון מציאותי
אז זו''צ יקר קצת שימת לב
לפרגן לבוא לעזור חצי יום
לפרגן ארוחה לעובדים בבית [הבית שלך חמץ המטבח שלהם במרפסת שרות]
לתת מילה טובה או שוקולד
והחשוב מכל
מעשרות להורים
הם חשובים יותר מכל כולל ארגון או קמחה דפסחא הם ההורים שלך

והם יממנו לך את ארוחות וסעודות החג
בס"ד

ההבדל בין נוכלות לבין כישלון



לפני כחודש נערך בבני ברק מיפגש מאוד מעניין של גוף הנקרא "הפורום להגנת הצרכן" והוא עסק בעיקר בדרכים למניעת נפילות נדל"ן בהם הציבור החרדי "מומחה" ליפול חזור ונפול.

הנוכחים, מומחים איש איש בתחומו, תיארו את הנוכלויות הרווחות היום ותיארו בצבעים קודרים ואמיתיים את המצב בכי רע, היו שם גדולי הדיינים שדיברו על הצורך להבטיח שהדור השני לא עושה שטויות עם הדירה שקיבלו מההורים וכן הלאה.

כאשר ר' איצ'ה דזיאלובסקי העניק לי את רשות המילה האחרונה (בגלל שאיחרתי – הרגל נעשה טבע) בקשתי מהנוכחים שלא יישפכו את התינוק אם המים, כלומר שלא יביאו אנשים למצב שבו הם חושדים בכל מה שלא זז שהוא נוכלות, הדבר הזה טענתי עלול להביא לשיתוק מוחלט של שוק השקעות הנדל"ן החרדי אשר היה והינו הקטליזטור הראשי של הציבור החרדי בדרכו לנישואי ילדים ברוגע ושלווה, המסר המרכזי של שתי דקות הנאום שלי זה מה שאתם הולכים לקרוא באלף מילים הבאות: לא כל עסקה כושלת היא אשמת המשווק!

צרות אחרונות משכחות את הראשונות וכך שכחתי מזה לגמרי, אלא שהשבוע פורסמה כתבה בעיתון 'דה-מרקר' (מי שלא מכיר לא הפסיד - מלא באהבת כסף ושנאת חרדים) כתבת תחקיר עומק אודות תופעת העוקצים בציבור החרדי הכרוכים במבצעי 10/90 הזכורים לשימצה.

מה שלא אהבתי זה ההתמקדות במתווך חרדי מסוים כאילו הוא שורש הרע בעולם כולו ואיך מלאו ליבו כביכול, ומעשה שהיה כך הווה בעשרות עותקים ברחבי הארץ שרובם מוכרים לי היטיב:

אברכים שחושבים שהם אנשי-עסקים פותו בידי אנשי-עסקים שחושבים שהם אברכים לקנות דירות פאר בערים שהם מכירים רק מחלונות האוטובוס בדרך למירון, נתניה ובת ים מככבות בכתבה אך זה לאורך כל הארץ בערים אשר אברך ממוצע מכיר את שמותיהם רק מהתרעות פיקוד העורף (או מהנפילות שאחריהן) ומעולם לא ביקר בהן.

אז איך משכנעים אברך כולל חסידי בן 22 שקיבל מההורים חצי מיליון ₪ לצורך יחידת 'סליחה' בביתר, לרכוש פנטהוז בהרצליה בארבע מיליון ₪ ?

מספרים לו שזה מבצע מיוחד שהתגלה רק למתווך בגילוי שמימי וכעת צריך רק לשלם עשרה אחוז שזה ארבע מאות אלף שקל ואת המאה הנותרים להביא למתווך על הגילוי הנפלא.

ואיך הדלפון שלנו יממן את מה שעשירי טבריה מתקשים?

כאן מגיע החלק השני של הגילוי אליהו – המתווך יודע לנבא כי בעוד שלוש שנים, כשיצטרכו להשלים את הרכישה הדירה תהיה שווה חמישה מיליון, ואז האברך דנן יתברר כסוחר מוצלח ביותר אשר ימשוך חזרה את הארבע מאות ועוד מיליון רווח נקי וכך לא יצטרך לגור בדירת הסליחה אלא בדירה גדולה המרחיבה דעתו של אדם ומרחיבה ארנקו של המשווק.

אז איפה הקצ'?

שעכשיו זה "אחרי שלוש שנים" ומתברר כי המחיר הכי גבוה שאפשר לקבל על הדירה הוא שלוש וחצי מיליון ואחרי ההוצאות מגיעים לשלוש מאתיים נטו ביד, מה שאומר שלפעמים עדיף לאותו אברך לעשות "ויברח" ולהותיר את הארבע מאות אצל החברה והמשווק ולחזור ליחידת הסליחה אבל וחפוי ראש, והפעם כשוכר...

זה פחות או יותר המסלול שאותו עוברות בחודשים אלו מאות משפחות מאנ"ש שכל מה שהם רצו זה לחתן את הילדים בכבוד וכעת הם מרוסקים לחלוטין וייקח להם שנים רבות אם בכלל כדי להתאושש מהתהום הכלכלית שהם הוכנסו אליה בידי משווק פלוני.

אך עשרת הקוראים כאן יודעים שעד כאן הייתה רק ההקדמה, כעת נתחיל עם הניתוח הכואב של הנתונים ואת הצד של לימוד זכות:

ובכן, קודם כל צריך לדעת שרבים מאוד הרוויחו בפריסיילים ותכניות דומות הרבה כסף, פגשתי ועודני פוגש כל יום אברכים צעירים ומבוגרים שהרוויחו סכומים אגדיים בשנים האחרונות כתוצאה מהפטנט הזה, לא ערכתי מחקר עומק אך מהתרשמותי המרוויחים רבים בהרבה על המפסידים וחבל שאת זה שומרים בסוד מאימת המצ'ינגים, הסיבה היחידה שמספרים לי על כך זה או כדי לשאול איך לעשות את הסיבוב הבא או כדי להתייעץ איך לצמצם את המסים העצומים (ברוך השם, כשיש מס סימן שיש שבח).

כל מי שקנה דירה בירושלים במחירי פריסייל של עשרים ומשהו אלף עשה את המיליון הזה, כך גם רבים שהשקיעו בחלק מהפרוייקטים בבן שמן וכך גם במקומות נוספים אשר המחירים עלו שם דרמטית ולקחו איתם את המשקיעים כלפי מעלה.

אז מה קרה בכל הפרוייקטים הכושלים?

שני דברים, הראשון שלא ידוע לי אם קרה זה הקפצת מחירים, מאוד ייתכן שמשווק מסוים יבוא לקבלן שיש לו כבר פריסייל ויגיד לו במקום למכור ב3.9 אביא לך קונים בארבע מיליון ואז מקבלים תרי זוזי: מאה אלף מהקבלן ועוד אחד מהלקוח, חד גדיא דזבין את אבא.

זה נורא לשמוע שיש דברים כאלו וטיפש מי שנופל לכך אך מי שיותר טיפש ממנו הוא מי שמאמין שאפשר למנוע דבר כזה באמצעות בירור אם המתווך אמין: גם המתווך האמין ביותר לא יעמוד בפני ניסיון של מאתיים אלף ₪ רק מלאך יוותר על זה ולא ניתנה תורת העסקים למלאכי השרת.

אך הדבר הזה לא מתקיים בדרך כלל משום שרוב הקונים יודעים לבדוק בערך את המחיר בסביבה ולא נופלים לבורות עמוקים, מה שכן קורה זה הדבר השני ועליו ברצוננו לדבר:

המחיר פשוט לא עלה, ולפעמים אפילו ירד.

כן רבייסיי, מחירי דירות לא רק עולים, לפעמים הם גם יורדים, כגון למשל בתקופת מלחמה.

עד מלחמת שמחת-נורא המחירים בנתניה למשל אכן השתוללו כי הצרפתים קנו שם בהמוניהם והוא הדין בצפת שהאמריקאים עטו עליה כי אצלם אין הבדל בין ירושלים לצפת, באמריקה זה מרחק סביר לנסיעה יומיומית לעבודה, אז מישהו משווק להם את זה כירושלים לעניים והם קנו וקנו והמחירים עלו ועלו והייתה היתכנות מסויימת לעלייה צפוייה.

ואז הגיע המלחמה ואין חוצניקים, ועוד מלחמה ועוד מבצע ושום דבר לא חזר לעצמו ואפשר לקלל את איראן (מגיע להם) ואת החמאס (עוד יותר מגיע) אך זה לא יעזור לעובדה הפשוטה שמחירי המגדלים שיועדו בעיקר לאוכלוסיות אלו צולל.

לא בהרבה, אך מספיקה ירידה של 8% כדי שכל העסק יהפוך להפסד.

זה נכון שמעצבן שהמשווק ניבא שהמחירים יעלו והם לא, אמנם אמרו חז"ל שנבואה ניתנה לשוטים אך האמונה כי יש למישהו נבואה ניתנה לשוטים גדולים עוד יותר... כל בר דעת העושה עסקים יודע שבכל הקשור לניבוי עתידות - המשווק ועטיפת המסטיק יודעים לנבא באותה מידה ומי שמסתמך על הבטחות אודות העתיד (כולל אלפי אברכים שנופלים היום בפריסייל של המחר שנקרא פינוי בינוי המבוסס על אותה נבואה כמעט) אין לו לבוא בטענות אלא על עצמו, לא המשווק נשך לשונרא.

מקווה שהצלחתי להסביר: לא כל עסקה כושלת היא נוכלות ולא כל ירידת מחירים היא עקיצה, בכל עסק ייתכן מאוד הפסד ומי שלא מוכן לכך שלא ייכנס לעולם ההשקעות.

אז להפסיק להשקיע בנדל"ן?

חלילה, כמה שיותר להשקיע בנדל"ן וכל המרבה הרי זה משובח – ואם ירצה השם ויהיה זמן נרחיב אולי בטור הבא על "מה כן" – אך רק עסקאות נטולות הימור על כל הקופה, כך שגם אם נגזר עליך להפסיד זה יהיה רק קצת ורק זמני.

ברור לי שכל הדברים האמורים כאן ברורים לכל אחד מעשרת הקוראים וסליחה שבזבזתי את זמנכם אך אם זה ירגיע אבא סוער אחד -שכועס בכל ליבו על המתווך שכאילו הפיל את החתן שלו - והיה זה שכרי.



גילוי נאות: לכותב אין ולא היה שום אינטרס כלכלי בשום פרוייקט של פריסל והוא אינו קשור היום לשום שיווק לא במישרין ולא בעקיפין, המידע מובא ללא כל אינטרס כלכלי אלא כצדקה ושירות לציבור, לשאלות ספציפיות ניתן לפנות למייל והתשובות שם חינם וללא אחריות.
סיכום אירועים: איראן בלהבות - מהמחאות ועד לסף עימות עולמי

הרקע וההתפרצות (סוף דצמבר 2025):

המחאות החלו ב-28 בדצמבר 2025 בטהראן, על רקע משבר כלכלי חריף וצניחה חדה בערך הריאל. מה שהחל כזעקת סוחרים ואזרחים על יוקר המחיה, הפך במהירות לגל הפגנות חסר תקדים ב-187 ערים הקורא להפלת המשטר.


הטבח והחשכת המידע (ינואר 2026):
  • דיכוי אלים: המשטר האיראני הגיב באכזריות יוצאת דופן. לפי נתוני ארגון זכויות האדם HRANA, נכון ל-23 בינואר, מספר ההרוגים המאומת עומד על למעלה מ-5,000 בני אדם, בהם 4,716 מפגינים ועשרות ילדים.
    יש דיווחים לא מאומתים מצד האופוזיציה האיראנית על מעל 60,000 הרוגים!

  • מעצרים המוניים: למעלה מ-26,500 בני אדם נעצרו, וקיים חשש כבד להוצאות להורג המוניות בבתי הכלא.

  • חסימת אינטרנט: החל מה-8 בינואר הוטל מצור דיגיטלי כמעט מוחלט על המדינה כדי למנוע זליגת תיעודים מהטבח.

המעורבות האמריקנית - "הארמדה של טראמפ":
הנשיא טראמפ, שחזר והזהיר את טהראן מפני המשך הטבח, הכריז ב-22 בינואר כי "ארמדה" אמריקנית (צי ספינות מלחמה, כולל נושאת המטוסים אברהם לינקולן) עושה את דרכה למפרץ הפרסי. טראמפ הבהיר כי ארה"ב בוחנת אפשרויות תקיפה ישירות נגד מטרות שלטוניות אם לא ייפסק הדיכוי. ולאחר הדלפות על ממדי הטבח, הכריז "העזרה בדרך".


הזווית הישראלית והאזורית:
  • כוננות שיא: ישראל נמצאת בדריכות עליונה מחשש שהסלמה אמריקנית תוביל לתגובה איראנית ישירה או באמצעות שלוחיה (פרוקסי).

  • איומי נתניהו: ראש הממשלה נתניהו הזהיר כי אם איראן תבצע "טעות" ותתקוף את ישראל, היא תפגוש עוצמה שטרם הכירה.

  • איומי טהראן: המשטר האיראני הודיע כי במקרה של תקיפה, בסיסים אמריקניים ויעדים בישראל יהיו "מטרות לגיטימיות".

באשכול זה נמשיך לעדכן סביב השעון בכל התפתחות, דיווחים מהשטח ופרשנויות ביטחוניות.
עודכן אדר תשפ"ד
ראשית, גופי הכשרות
ברוב אשכולות בנושא 'השקעות בשוק ההון' בפרוג, משתרבב עניין הכשרות.
למען הסדר באשכול זה נעלה עדכונים בנושא כשרות.
אני אשתדל לסכם ולתמצת ככל האפשר.

יש 4 גופי כשרות
  • בד"ץ העדה החרדית - על פי פסקי הרב יעקב בלוי זצ"ל שהיה בקיא גדול בתחום שוק ההון והוא שהביא את פסקיו ועל פי פסקים אלו נוהגים עד היום בגוף כשרות זה. היום הכשרות בראשות הרב שלמה זאב קרליבך.
  • גלאט הון - על פי פסקי רבי ניסים קרליץ והרב שמואל ואזנר. שסמכו ידיהם על הרב יעקב לנדו שמכיר את שוק ההון לעומקו. הרב משה שטרנבוך ראב"ד העדה החרדית הוא מרבני 'גלאט הון'.
  • תשואה כהלכה – הרב שמואל דוד גרוס, רב חסידי גור אשדוד ועוד רבנים מוכרים וידועים בכל שכבות הציבור החרדי.
  • כלכלה על פי ההלכה- הרב אריה דביר, על פי פסקי הרב יוסף שלום אלישיב.

היום בכל החברות יש מסלולים כשרים, שמאושרים לפחות ע"י אחת מהכשרויות.
בין החברות שנמצאת ברשותם תעודת כשרות אפשר למצוא את:
אלטשולר שחם, אינפיניטי, הפניקס, הראל, כלל, מגדל, מור, מיטב דש, מנורה.

רשימות קרנות כשרות:

הצטרפות לניוזלטר

איזה כיף שהצטרפתם לניוזלטר שלנו!

מעכשיו, תהיו הראשונים לקבל את כל העדכונים, החדשות, ההפתעות בלעדיות, והתכנים הכי חמים שלנו בפרוג!

לוח מודעות

הפרק היומי

הפרק היומי! כל ערב פרק תהילים חדש. הצטרפו אלינו לקריאת תהילים משותפת!


תהילים פרק כה

אלְדָוִד אֵלֶיךָ יי נַפְשִׁי אֶשָּׂא:באֱלֹהַי בְּךָ בָטַחְתִּי אַל אֵבוֹשָׁה אַל יַעַלְצוּ אֹיְבַי לִי:גגַּם כָּל קוֶֹיךָ לֹא יֵבֹשׁוּ יֵבֹשׁוּ הַבּוֹגְדִים רֵיקָם:דדְּרָכֶיךָ יי הוֹדִיעֵנִי אֹרְחוֹתֶיךָ לַמְּדֵנִי:ההַדְרִיכֵנִי בַאֲמִתֶּךָ וְלַמְּדֵנִי כִּי אַתָּה אֱלֹהֵי יִשְׁעִי אוֹתְךָ קִוִּיתִי כָּל הַיּוֹם:וזְכֹר רַחֲמֶיךָ יי וַחֲסָדֶיךָ כִּי מֵעוֹלָם הֵמָּה:זחַטֹּאות נְעוּרַי וּפְשָׁעַי אַל תִּזְכֹּר כְּחַסְדְּךָ זְכָר לִי אַתָּה לְמַעַן טוּבְךָ יי:חטוֹב וְיָשָׁר יי עַל כֵּן יוֹרֶה חַטָּאִים בַּדָּרֶךְ:טיַדְרֵךְ עֲנָוִים בַּמִּשְׁפָּט וִילַמֵּד עֲנָוִים דַּרְכּוֹ:יכָּל אָרְחוֹת יי חֶסֶד וֶאֱמֶת לְנֹצְרֵי בְרִיתוֹ וְעֵדֹתָיו:יאלְמַעַן שִׁמְךָ יי וְסָלַחְתָּ לַעֲוֹנִי כִּי רַב הוּא:יבמִי זֶה הָאִישׁ יְרֵא יי יוֹרֶנּוּ בְּדֶרֶךְ יִבְחָר:יגנַפְשׁוֹ בְּטוֹב תָּלִין וְזַרְעוֹ יִירַשׁ אָרֶץ:ידסוֹד יי לִירֵאָיו וּבְרִיתוֹ לְהוֹדִיעָם:טועֵינַי תָּמִיד אֶל יי כִּי הוּא יוֹצִיא מֵרֶשֶׁת רַגְלָי:טזפְּנֵה אֵלַי וְחָנֵּנִי כִּי יָחִיד וְעָנִי אָנִי:יזצָרוֹת לְבָבִי הִרְחִיבוּ מִמְּצוּקוֹתַי הוֹצִיאֵנִי:יחרְאֵה עָנְיִי וַעֲמָלִי וְשָׂא לְכָל חַטֹּאותָי:יטרְאֵה אוֹיְבַי כִּי רָבּוּ וְשִׂנְאַת חָמָס שְׂנֵאוּנִי:כשָׁמְרָה נַפְשִׁי וְהַצִּילֵנִי אַל אֵבוֹשׁ כִּי חָסִיתִי בָךְ:כאתֹּם וָיֹשֶׁר יִצְּרוּנִי כִּי קִוִּיתִיךָ:כבפְּדֵה אֱלֹהִים אֶת יִשְׂרָאֵל מִכֹּל צָרוֹתָיו:
נקרא  2  פעמים
למעלה