עזרה בתכנון הדירה

  • הוסף לסימניות
  • #1
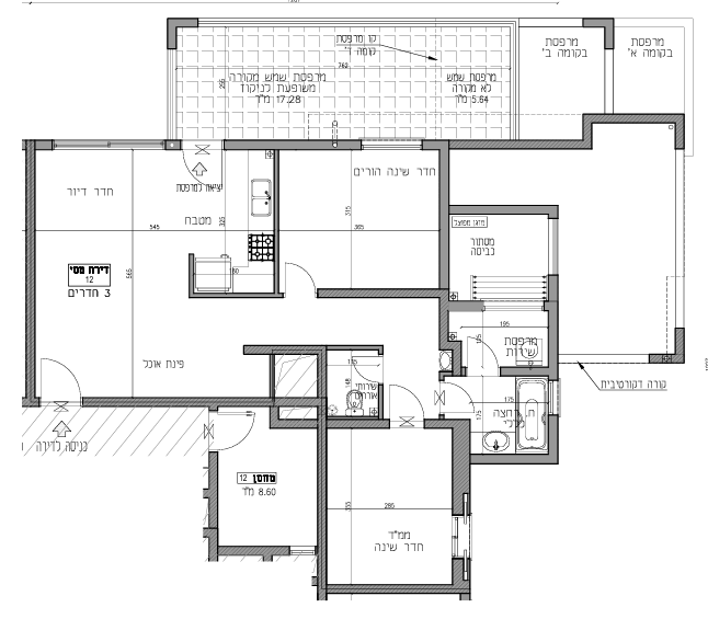
שלום וברכה אשמח לעזרה בתכנון הדירה איפה באמת כדאי פינת אוכל, איפה סלון , האם כדאי להשאיר כמחסן ולפתוח כחדר וסידור החדר הורים תודה רבה מראש
 

קבצים מצורפים

  • צילום דירה נתיבות.png
    צילום דירה נתיבות.png
    KB 66.8 · צפיות: 92
  • הוסף לסימניות
  • #3

קבצים מצורפים

  • צילום דירה נתיבות.png
    צילום דירה נתיבות.png
    KB 55.5 · צפיות: 67
  • הוסף לסימניות
  • #4
וואו קודם כל ממש תודה רבה, לא מובן מאיליו, באמת עשית עבודה נהדרת ויפה
איזה נתונים אתה צריך לדעת עוד?
 
  • הוסף לסימניות
  • #5
וואו קודם כל ממש תודה רבה, לא מובן מאיליו, באמת עשית עבודה נהדרת ויפה
איזה נתונים אתה צריך לדעת עוד?
אם מדובר בדירה חדשה אז צריך לדעת
1- האם אפשר לספח את המחסן לדירה
2- האם אפשר לעשות דלת למחסן מבפנים --- כי זה נראה קיר בטון
3- האם אפשר לספח את המסתור כביסה לדירה --ולהוסיף שם יח הורים
4- האם ניתן להגדיל מטבח --הגדלתי ב30 ס"מ בערך
5- האם אפשר לשנות מיקום חלונות
צריך לברר את זה עם הקבלן ---ומה שתצליחו להשיג --תרויחו
זה לא מובן מאיליו שילכו לקראתכם בכל הבקשות
 
  • הוסף לסימניות
  • #6
האמת שעדיין לא הגענו לשלב של שינויי דיירים אז אני לא כל כך יודע מה אפשר ומה לא, מה לדעתך בדרך כלל אפשרי?
 
  • הוסף לסימניות
  • #7
האמת שעדיין לא הגענו לשלב של שינויי דיירים אז אני לא כל כך יודע מה אפשר ומה לא, מה לדעתך בדרך כלל אפשרי?
כעיקרון נראה לי שכל השינויים שהצעתי ניתן לבצע בפועל אבל זה מאוד משתנה ותלוי מאוד בקבלן --
- והקבלן יגיד לכם לבצע רק אחרי טופס 4 לבניין --וקשה להרחיב בעניין
בכל מקרה תראו לקבלן את הסקיצה הנ"ל לבדוק עד כמה הוא גמיש בעניין
 

פרוגבוט

תוכן שיווקי
פרסומת

אשכולות דומים

הצטרפות לניוזלטר

איזה כיף שהצטרפתם לניוזלטר שלנו!

מעכשיו, תהיו הראשונים לקבל את כל העדכונים, החדשות, ההפתעות בלעדיות, והתכנים הכי חמים שלנו בפרוג!

לוח מודעות

הפרק היומי

הפרק היומי! כל ערב פרק תהילים חדש. הצטרפו אלינו לקריאת תהילים משותפת!


תהילים פרק כה

אלְדָוִד אֵלֶיךָ יי נַפְשִׁי אֶשָּׂא:באֱלֹהַי בְּךָ בָטַחְתִּי אַל אֵבוֹשָׁה אַל יַעַלְצוּ אֹיְבַי לִי:גגַּם כָּל קוֶֹיךָ לֹא יֵבֹשׁוּ יֵבֹשׁוּ הַבּוֹגְדִים רֵיקָם:דדְּרָכֶיךָ יי הוֹדִיעֵנִי אֹרְחוֹתֶיךָ לַמְּדֵנִי:ההַדְרִיכֵנִי בַאֲמִתֶּךָ וְלַמְּדֵנִי כִּי אַתָּה אֱלֹהֵי יִשְׁעִי אוֹתְךָ קִוִּיתִי כָּל הַיּוֹם:וזְכֹר רַחֲמֶיךָ יי וַחֲסָדֶיךָ כִּי מֵעוֹלָם הֵמָּה:זחַטֹּאות נְעוּרַי וּפְשָׁעַי אַל תִּזְכֹּר כְּחַסְדְּךָ זְכָר לִי אַתָּה לְמַעַן טוּבְךָ יי:חטוֹב וְיָשָׁר יי עַל כֵּן יוֹרֶה חַטָּאִים בַּדָּרֶךְ:טיַדְרֵךְ עֲנָוִים בַּמִּשְׁפָּט וִילַמֵּד עֲנָוִים דַּרְכּוֹ:יכָּל אָרְחוֹת יי חֶסֶד וֶאֱמֶת לְנֹצְרֵי בְרִיתוֹ וְעֵדֹתָיו:יאלְמַעַן שִׁמְךָ יי וְסָלַחְתָּ לַעֲוֹנִי כִּי רַב הוּא:יבמִי זֶה הָאִישׁ יְרֵא יי יוֹרֶנּוּ בְּדֶרֶךְ יִבְחָר:יגנַפְשׁוֹ בְּטוֹב תָּלִין וְזַרְעוֹ יִירַשׁ אָרֶץ:ידסוֹד יי לִירֵאָיו וּבְרִיתוֹ לְהוֹדִיעָם:טועֵינַי תָּמִיד אֶל יי כִּי הוּא יוֹצִיא מֵרֶשֶׁת רַגְלָי:טזפְּנֵה אֵלַי וְחָנֵּנִי כִּי יָחִיד וְעָנִי אָנִי:יזצָרוֹת לְבָבִי הִרְחִיבוּ מִמְּצוּקוֹתַי הוֹצִיאֵנִי:יחרְאֵה עָנְיִי וַעֲמָלִי וְשָׂא לְכָל חַטֹּאותָי:יטרְאֵה אוֹיְבַי כִּי רָבּוּ וְשִׂנְאַת חָמָס שְׂנֵאוּנִי:כשָׁמְרָה נַפְשִׁי וְהַצִּילֵנִי אַל אֵבוֹשׁ כִּי חָסִיתִי בָךְ:כאתֹּם וָיֹשֶׁר יִצְּרוּנִי כִּי קִוִּיתִיךָ:כבפְּדֵה אֱלֹהִים אֶת יִשְׂרָאֵל מִכֹּל צָרוֹתָיו:
נקרא  2  פעמים
למעלה