אדריכלות עזרה בתכנון יחידת הורים

  • הוסף לסימניות
  • #1
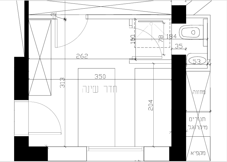
אני באמצע שיפוצים ואשמח לקבל עזרה בתכנון יחידת הורים , במקום מקלחון אני רוצה לשים אמבטיה 1.40, איפה נכון לשים את הכיור ?
יש לי אפשרות לשנות את הכיוון של הדלת רוחב 60 ס"מ
 

קבצים מצורפים

  • יחידת הורים.png
    יחידת הורים.png
    KB 39.5 · צפיות: 134
  • הוסף לסימניות
  • #2
1770857706304.png

יהיה נכון יותר להחליף לאמבטיה קטנה באורך 120 ,עם אמבטיה של 140 לא יהיה מקום לכיור
 
  • הוסף לסימניות
  • #4
תחשבי על זה שוב
מקלחון הרבה הרבה יותר נח
במיוחד במצבים מיוחדים, ומשתבגרים
אם יש אמבטיה נוספת בבית ממליצה רק על מקלחון ביחידת הורים
 
  • הוסף לסימניות
  • #7
מטעמים שונים...
חובה אמבטיה ביחידת הורים
את אומרת את זה בתור הלקוחה או בתור המעצבת?
כי בכל מקרה אי אפשר לומר על אמבטיה ביח"ה שהיא פריט חובה
נתון לשיקול דעתם של הלקוחות
 
  • הוסף לסימניות
  • #8
אני באמצע שיפוצים ואשמח לקבל עזרה בתכנון יחידת הורים , במקום מקלחון אני רוצה לשים אמבטיה 1.40, איפה נכון לשים את הכיור ?
יש לי אפשרות לשנות את הכיוון של הדלת רוחב 60 ס"מ
אם זה דלת במקום שאין בו מעבר הייתי שוקלת אפשרות להפוך את הדלת שתיפתח החוצה
 
  • הוסף לסימניות
  • #9
אולי יש לכם אפשרות לכיור בחדר השינה במקום בתוך חדר הרחצה?
 
  • הוסף לסימניות
  • #10
אני באמצע שיפוצים ואשמח לקבל עזרה בתכנון יחידת הורים , במקום מקלחון אני רוצה לשים אמבטיה 1.40, איפה נכון לשים את הכיור ?
יש לי אפשרות לשנות את הכיוון של הדלת רוחב 60 ס"מ
אין כל כך הרבה אפשרויות --ובטח מבחינת הסידור בהתחשב בגודל היח --
זה להשאר עם התכנון הנוכחי ועם מקלחון
ואם חייבים אמבטיה אז הפיתרון הכי הגיוני זה כמו אחת מהאופציות
שראיתי שהציע @סתיו אביב --מצוב
אמבטיה 120 -- ואפשר להגדיל את הדלת ל 70 --או --80 הזזה
 

קבצים מצורפים

  • 1770857706304.png
    1770857706304.png
    KB 5.6 · צפיות: 37
  • תודה
Reactions: GRN
  • הוסף לסימניות
  • #11
אין כל כך הרבה אפשרויות --ובטח מבחינת הסידור בהתחשב בגודל היח --
זה להשאר עם התכנון הנוכחי ועם מקלחון
ואם חייבים אמבטיה אז הפיתרון הכי הגיוני זה כמו אחת מהאופציות
שראיתי שהציע @סתיו אביב --מצוב
אמבטיה 120 -- ואפשר להגדיל את הדלת ל 70 --או --80 הזזה
תודה רבה לכולם על המשוב, עוזר לי מאד!
אני מעדיף אמבטיה כמה שיותר גדול , מבין ש140 פחות רלוונטי
מה אומרים על 130 ? ובאיזה תכנון הכי נכון?
 
  • הוסף לסימניות
  • #12
תודה רבה לכולם על המשוב, עוזר לי מאד!
אני מעדיף אמבטיה כמה שיותר גדול , מבין ש140 פחות רלוונטי
מה אומרים על 130 ? ובאיזה תכנון הכי נכון?
 
  • הוסף לסימניות
  • #13
יחידה עם אמבטיה גדולה.JPG
 
  • הוסף לסימניות
  • #14
1770906656890.png

שימו לב למידה האמיתית 178 ובהורדה של חיפוי קיר לא נשאר מספיק מקום
 
  • הוסף לסימניות
  • #15
  • הוסף לסימניות
  • #16
מה דעתכם על דלת הזזה או דלת פתיחה הפוכה, יעזור?
 
  • הוסף לסימניות
  • #17
מה דעתכם על דלת הזזה או דלת פתיחה הפוכה, יעזור?
הזזה עדיף פתיחה הפוכה זה עניין בטיחותי
שמישהו בטעות --לא יקבל מכה בראש שיפתחו את הדלת מבפנים
 
  • הוסף לסימניות
  • #18
הזזה עדיף פתיחה הפוכה זה עניין בטיחותי
שמישהו בטעות --לא יקבל מכה בראש שיפתחו את הדלת מבפנים
פתיחה הפוכה- כוונתי היתה שהדלת תפתח לכיוון שמאל ולא לכיוון ימין בתוך החדר .
 

פרוגבוט

תוכן שיווקי
פרסומת

אשכולות דומים

אנחנו עומדים לפני שיפוץ ויש לנו בגדול את התוכנית הרצויה היינו שם עם הקבלן שיפוצים וגם איש מטבחים.
יש לנו ספק קטן לגבי יצירת חדר שירות. ותוספת שירותים בקומה הראשונה.
אני מצרף את התוכנית של שתי הקומות ואשמח לקבל הצעת מחיר.
מדובר על דירה מספר 4.
קומה 1
בקומה הראשונה משנים את המטבח ממש לכניסה לבית.
המטבח שנמצא היום מבוטל כי אנחנו פותחים שם קיר (ויטרינה גדולה ליציאה לגינה) הקיר הימני של חדר שינה מספר 3 נכנס עד לקו אפס עם החלון (חדר עבודה).
חדר שינה מספר 2 הופך ליחידת הורים מה שאומר שלא יהיו לנו שירותי אורחים הספק שלנו האם לבנות בצמוד לחדר העבודה שירותי אורחים. לא לכיוון הסלון אלא צמוד לדלת של חדר העבודה.

קומה 2
בקומה השנייה אנחנו רוצים לבטל את יחידת ההורים ולעשות את המקלחת שלה למקלחת קומתית ואת המקלחת הקיימת להפוך לחדר שירות גדול שיכלול מכונת כביסה מייבש תלייה לחולצות קרש גיהוץ וכו'.
כנראה שנצטרך להגדיל את החדר על חשבון החדר הסמוך. זו בגדול התוכנית נשמח לקבל עצות מחכימות

הצטרפות לניוזלטר

איזה כיף שהצטרפתם לניוזלטר שלנו!

מעכשיו, תהיו הראשונים לקבל את כל העדכונים, החדשות, ההפתעות בלעדיות, והתכנים הכי חמים שלנו בפרוג!

לוח מודעות

הפרק היומי

הפרק היומי! כל ערב פרק תהילים חדש. הצטרפו אלינו לקריאת תהילים משותפת!


תהילים פרק כה

אלְדָוִד אֵלֶיךָ יי נַפְשִׁי אֶשָּׂא:באֱלֹהַי בְּךָ בָטַחְתִּי אַל אֵבוֹשָׁה אַל יַעַלְצוּ אֹיְבַי לִי:גגַּם כָּל קוֶֹיךָ לֹא יֵבֹשׁוּ יֵבֹשׁוּ הַבּוֹגְדִים רֵיקָם:דדְּרָכֶיךָ יי הוֹדִיעֵנִי אֹרְחוֹתֶיךָ לַמְּדֵנִי:ההַדְרִיכֵנִי בַאֲמִתֶּךָ וְלַמְּדֵנִי כִּי אַתָּה אֱלֹהֵי יִשְׁעִי אוֹתְךָ קִוִּיתִי כָּל הַיּוֹם:וזְכֹר רַחֲמֶיךָ יי וַחֲסָדֶיךָ כִּי מֵעוֹלָם הֵמָּה:זחַטֹּאות נְעוּרַי וּפְשָׁעַי אַל תִּזְכֹּר כְּחַסְדְּךָ זְכָר לִי אַתָּה לְמַעַן טוּבְךָ יי:חטוֹב וְיָשָׁר יי עַל כֵּן יוֹרֶה חַטָּאִים בַּדָּרֶךְ:טיַדְרֵךְ עֲנָוִים בַּמִּשְׁפָּט וִילַמֵּד עֲנָוִים דַּרְכּוֹ:יכָּל אָרְחוֹת יי חֶסֶד וֶאֱמֶת לְנֹצְרֵי בְרִיתוֹ וְעֵדֹתָיו:יאלְמַעַן שִׁמְךָ יי וְסָלַחְתָּ לַעֲוֹנִי כִּי רַב הוּא:יבמִי זֶה הָאִישׁ יְרֵא יי יוֹרֶנּוּ בְּדֶרֶךְ יִבְחָר:יגנַפְשׁוֹ בְּטוֹב תָּלִין וְזַרְעוֹ יִירַשׁ אָרֶץ:ידסוֹד יי לִירֵאָיו וּבְרִיתוֹ לְהוֹדִיעָם:טועֵינַי תָּמִיד אֶל יי כִּי הוּא יוֹצִיא מֵרֶשֶׁת רַגְלָי:טזפְּנֵה אֵלַי וְחָנֵּנִי כִּי יָחִיד וְעָנִי אָנִי:יזצָרוֹת לְבָבִי הִרְחִיבוּ מִמְּצוּקוֹתַי הוֹצִיאֵנִי:יחרְאֵה עָנְיִי וַעֲמָלִי וְשָׂא לְכָל חַטֹּאותָי:יטרְאֵה אוֹיְבַי כִּי רָבּוּ וְשִׂנְאַת חָמָס שְׂנֵאוּנִי:כשָׁמְרָה נַפְשִׁי וְהַצִּילֵנִי אַל אֵבוֹשׁ כִּי חָסִיתִי בָךְ:כאתֹּם וָיֹשֶׁר יִצְּרוּנִי כִּי קִוִּיתִיךָ:כבפְּדֵה אֱלֹהִים אֶת יִשְׂרָאֵל מִכֹּל צָרוֹתָיו:
נקרא  2  פעמים
למעלה