עזרה בתכנון - 50 מ"ר ל2 יחידות דיור - האם החלוקה הזו ריאלית ??

  • הוסף לסימניות
  • #1
שלום וברכה
אשמח לעזרתכם
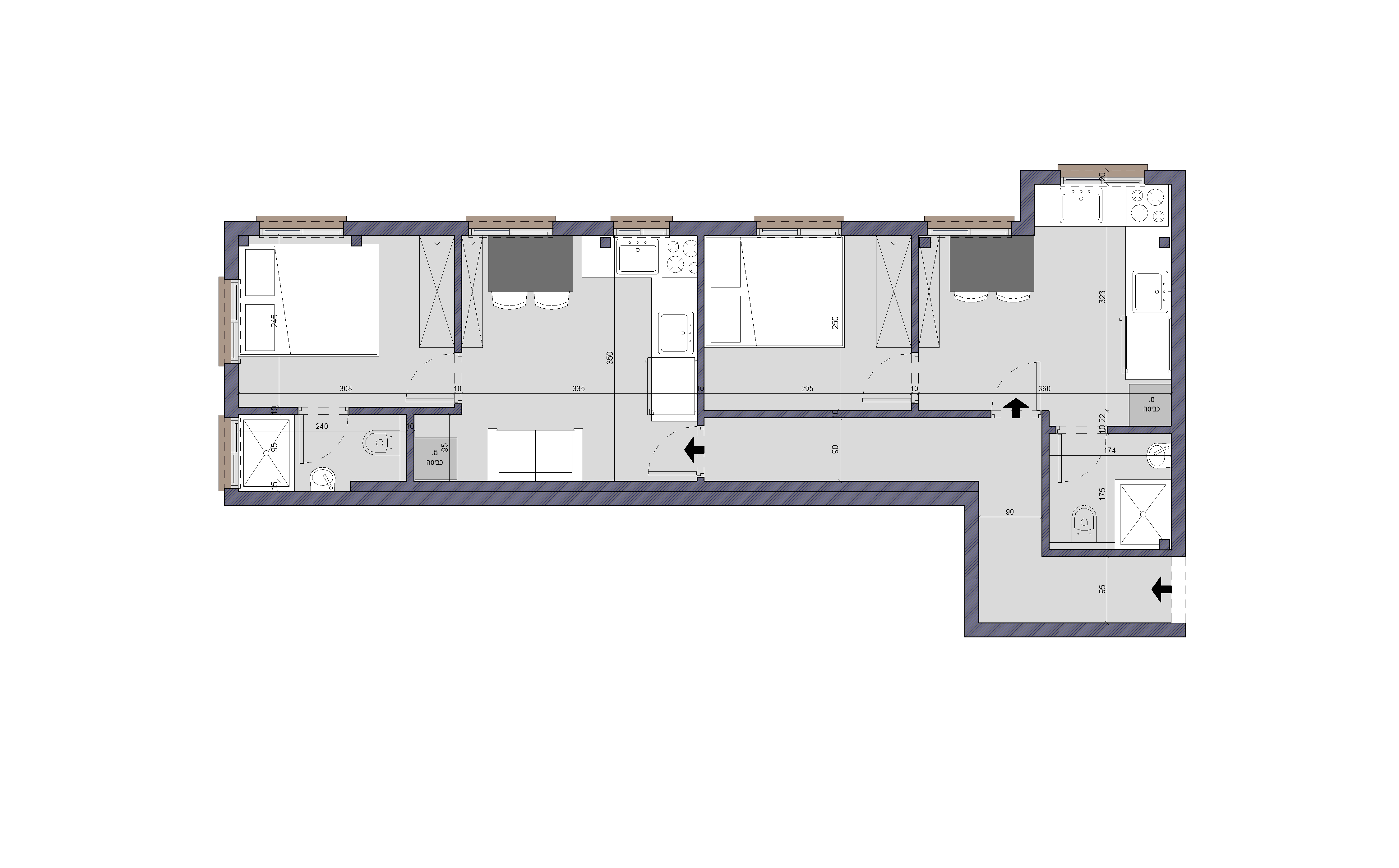
קיבלתי שטח קטן (כ50 מ"ר) צר וארוך כ1300*370 לתכנון יח"ד
בעל השטח מתעקש לקבל חלוקה ל2 יח"ד
החלוקה הזו הגיונית ?
האם הפרוזדור לא צר מידי (הובלת רהיטים וכו') ?
יחידת הדיור הזו יכולה להכיל באמת זוג לשימוש יומיומי ?

אם יש למישהו הצעות לחלוקה שונה או הצעות יעול אשמח לשמוע
אציין שאין מקום אחר למקם את דלת הכניסה
(השטח ממוקם בפינה על רבע משטח הבניין)

תודה רבה לכל העונים
2 יח''ד.jpg
 
  • תודה
Reactions: GRN
  • הוסף לסימניות
  • #2
שלום וברכה
אשמח לעזרתכם
קיבלתי שטח קטן (כ50 מ"ר) צר וארוך כ1300*370 לתכנון יח"ד
בעל השטח מתעקש לקבל חלוקה ל2 יח"ד
החלוקה הזו הגיונית ?
האם הפרוזדור לא צר מידי (הובלת רהיטים וכו') ?
יחידת הדיור הזו יכולה להכיל באמת זוג לשימוש יומיומי ?

אם יש למישהו הצעות לחלוקה שונה או הצעות יעול אשמח לשמוע
אציין שאין מקום אחר למקם את דלת הכניסה
(השטח ממוקם בפינה על רבע משטח הבניין)

תודה רבה לכל העונים
צפה בקובץ המצורף 2108973
פיצי אבל נחמד!
אם אפשר להחליף לאמבטיה אפילו קטנה משמעותי מאד!!!
 
  • הוסף לסימניות
  • #3
שלום וברכה
אשמח לעזרתכם
קיבלתי שטח קטן (כ50 מ"ר) צר וארוך כ1300*370 לתכנון יח"ד
בעל השטח מתעקש לקבל חלוקה ל2 יח"ד
החלוקה הזו הגיונית ?
האם הפרוזדור לא צר מידי (הובלת רהיטים וכו') ?
יחידת הדיור הזו יכולה להכיל באמת זוג לשימוש יומיומי ?

אם יש למישהו הצעות לחלוקה שונה או הצעות יעול אשמח לשמוע
אציין שאין מקום אחר למקם את דלת הכניסה
(השטח ממוקם בפינה על רבע משטח הבניין)

תודה רבה לכל העונים
צפה בקובץ המצורף 2108973
תכנון יפה
בכללי הגודל של היחידות האלו - התעללות בחסרי ישע ;)
 
  • הוסף לסימניות
  • #5
הייתי עושה יחידה אחת מרווחת יותר לזוג. ואת השניה דירת סטודיו - חדר, מייעדת מלכתחילה לאחד /ת.
25 מ"ר זה קטן לזוג, ואם יש באזור יחידות גדולות, יהיה קשה להשכיר.
ככל שיחידה מרווחת יותר, היא מתומחרת במחיר גבוה יותר, כך שאין הפסד כספי ..
 
  • הוסף לסימניות
  • #6
הייתי עושה יחידה אחת מרווחת יותר לזוג. ואת השניה דירת סטודיו - חדר, מייעדת מלכתחילה לאחד /ת.
25 מ"ר זה קטן לזוג, ואם יש באזור יחידות גדולות, יהיה קשה להשכיר.
ככל שיחידה מרווחת יותר, היא מתומחרת במחיר גבוה יותר, כך שאין הפסד כספי ..
מצטרפת לרעיון!
כי קשה ממש לחשוב על היחידות הפיציות האלה
(זה מנסיון כי גרתי באחת כזו)
 
  • הוסף לסימניות
  • #7
יש סוכה ?
יחידה חייבת סיבה לקיומה כדי שהיא תיחטף... אם גם אין סוכה וגם היחידה זערורית, זו סיבה טובה כדי שהיא תעמוד ריקה תקופות ארוכות, ומצד שני היחידות כן מאווררות היטב, שזו מעלה גדולה.
אם בכל זאת הולכים על זה, יש לשים לב לעיצוב ותאורה, כדי לחפות על החסרונות.
רק תשימו לב שחדר 250 ס"מ יהיה קטן לחלק מהחסידים (270) אם זה גם משמעותי לכם
 
  • הוסף לסימניות
  • #8
הייתי עושה יחידה אחת מרווחת יותר לזוג. ואת השניה דירת סטודיו - חדר, מייעדת מלכתחילה לאחד /ת.
25 מ"ר זה קטן לזוג, ואם יש באזור יחידות גדולות, יהיה קשה להשכיר.
ככל שיחידה מרווחת יותר, היא מתומחרת במחיר גבוה יותר, כך שאין הפסד כספי ..
אוקיי
תודה על התגובה
אוסיף שמדובר בקומות 2ו3.
- יש בעצם את אותו השטח בדיוק ב2 הקומות האלו
השאלה האם דירת סטודיו מושכרת מהר
או שבאמת עדיף יחידה גדולה יותר על כל הקומה
 
  • הוסף לסימניות
  • #9
יתכן שלמשכיר יהיה שווה כספית להשכיר יחידה אחת גדולה על כל השטח מאשר 2 יחידות קטנטנות שיכולות לעמוד ריקות תקופה ארוכה, בנוסף לתחלופת שוכרים גבוהה.
(אלא אם כן זה אזור מבוקש במיוחד שגם יחידות בכזה גודל נחטפות)
 
  • הוסף לסימניות
  • #10
השאלה האם דירת סטודיו מושכרת מהר
או שבאמת עדיף יחידה גדולה יותר על כל הקומה
מאוד תלוי באיזור, צריכים לבדוק בהתאם לשוק אצלם. יח"ד קטנה בבנין שגרתי בו בעבר עמדה ריקה חצי שנה. ומדובר בבני ברק באיזור עם ביקוש יפה. כיום פחות ופחות זוגות מוכנים לגור ביחידות "סלח לי" ומחפשים מרחב אנושי יותר. נכון שברשמי שתי יחידות מכניסות יותר מדירה, אבל:
א. אפשר לשקול לחלק ליחידת שלושה חדרים ולסטודיו/משרד. אם באיזור יש ביקוש למשרדים זה יכול להכניס לא פחות.
ב. לפעמים היותר מתברר כפחות. יחידות קטנות מטבע הדברים מושכרות לטווח של שנה, לרוב הזוג לא ימשיך בהם, ואי אפשר להכניס שם גם תינוק. ולכן יש יותר סיכון של חודשים ריקים בין לבין. וכשמדובר ב2 יח"ד כאלו הסיכון פי 2. לעומת זאת אם ייצרו שם דירה אנושית, יש סיכוי גבוה שהדירה תחטף מהר יותר (תלוי במיקום כמובן) או ע"י זוגות עם אפשרויות יחסית יפות שההורים רוצים לתת להם מרחב כבר בהתחלה, אבל גם משפחות קטנות יוכלו לגור שם לאורך זמן.
 
  • הוסף לסימניות
  • #11
אוקיי
תודה על התגובה
אוסיף שמדובר בקומות 2ו3.
- יש בעצם את אותו השטח בדיוק ב2 הקומות האלו
השאלה האם דירת סטודיו מושכרת מהר
או שבאמת עדיף יחידה גדולה יותר על כל הקומה
יש ביקוש גם ליחידות לבודדים, תלוי אזור.
בדכ זה אנשים שמחפשים את האטרקטיביות במחיר.
אבל בטוח ש 2 יחידות כאלו קטנות יהיה קשה להשכיר, ומה שיהיה מושכר, תהיה לו תחלופה גדולה.
נחמד שיחידה מושכרת לטווח ארוך. גם חוסך בהוצאות.
 
נערך לאחרונה ב:
  • הוסף לסימניות
  • #12
יש בתכניות דברים לא אפשריים לדוג' -
חדר באורך 295 - מיטה 200 ארון 60 נשאר 35
כיריים בפינה - איך אפשר לבשל בפינה ?
ועוד
 
  • הוסף לסימניות
  • #13
למה הוא מתעקש על 2 יחידות? הוא חושב שירוויח יותר?
 
  • הוסף לסימניות
  • #14
תכנון חמוד, את המיטות תפרידו ותעשו 2 מיטות רוחב 90 עם 60 ס"מ ביניהם כדי לבדוק שמסתדר בתכנון החדר עם הדלת והארון.
ביחידה השמאלית נראה לי כדאי להעביר את הכניסה לחדר הרחצה מהסלון- מטבח.
בגדול זה עובד... וגם מושכר...
הכל תלוי איפה זה
 
  • הוסף לסימניות
  • #18
תכנון נחמד בסה"כ
יש יחידות צפופות בהרבה שמושכרות תדיר...
ולכן חשוב מאוד לדעת מה האיזור ומה הביקוש בו
יש אזורים שכל יחידה- לא משנה איזו- תיתפס כי יש חסר ביחידות
ויש איזורים שלא
וזה תפקיד של הבעלים (לא שלך, את רק צריכה לעדכן אותו)
לבדוק טוב את השוק לפני שנותן לך הוראות מה לתכנן
 
  • הוסף לסימניות
  • #19
שלום וברכה
אשמח לעזרתכם
קיבלתי שטח קטן (כ50 מ"ר) צר וארוך כ1300*370 לתכנון יח"ד
בעל השטח מתעקש לקבל חלוקה ל2 יח"ד
החלוקה הזו הגיונית ?
האם הפרוזדור לא צר מידי (הובלת רהיטים וכו') ?
יחידת הדיור הזו יכולה להכיל באמת זוג לשימוש יומיומי ?

אם יש למישהו הצעות לחלוקה שונה או הצעות יעול אשמח לשמוע
אציין שאין מקום אחר למקם את דלת הכניסה
(השטח ממוקם בפינה על רבע משטח הבניין)

תודה רבה לכל העונים
צפה בקובץ המצורף 2108973
מבחינה אקוסטית החלוקה לא הגיונית.
את מבינה שהקיר של חדר השינה גובל עם מטבח, שרעשי הצנרת ופתיחת המים, ושטיפת כלים מעבר לכרית שלהם...
 
  • הוסף לסימניות
  • #20

פרוגבוט

תוכן שיווקי
פרסומת

הצטרפות לניוזלטר

איזה כיף שהצטרפתם לניוזלטר שלנו!

מעכשיו, תהיו הראשונים לקבל את כל העדכונים, החדשות, ההפתעות בלעדיות, והתכנים הכי חמים שלנו בפרוג!

לוח מודעות

הפרק היומי

הפרק היומי! כל ערב פרק תהילים חדש. הצטרפו אלינו לקריאת תהילים משותפת!


תהילים פרק כה

אלְדָוִד אֵלֶיךָ יי נַפְשִׁי אֶשָּׂא:באֱלֹהַי בְּךָ בָטַחְתִּי אַל אֵבוֹשָׁה אַל יַעַלְצוּ אֹיְבַי לִי:גגַּם כָּל קוֶֹיךָ לֹא יֵבֹשׁוּ יֵבֹשׁוּ הַבּוֹגְדִים רֵיקָם:דדְּרָכֶיךָ יי הוֹדִיעֵנִי אֹרְחוֹתֶיךָ לַמְּדֵנִי:ההַדְרִיכֵנִי בַאֲמִתֶּךָ וְלַמְּדֵנִי כִּי אַתָּה אֱלֹהֵי יִשְׁעִי אוֹתְךָ קִוִּיתִי כָּל הַיּוֹם:וזְכֹר רַחֲמֶיךָ יי וַחֲסָדֶיךָ כִּי מֵעוֹלָם הֵמָּה:זחַטֹּאות נְעוּרַי וּפְשָׁעַי אַל תִּזְכֹּר כְּחַסְדְּךָ זְכָר לִי אַתָּה לְמַעַן טוּבְךָ יי:חטוֹב וְיָשָׁר יי עַל כֵּן יוֹרֶה חַטָּאִים בַּדָּרֶךְ:טיַדְרֵךְ עֲנָוִים בַּמִּשְׁפָּט וִילַמֵּד עֲנָוִים דַּרְכּוֹ:יכָּל אָרְחוֹת יי חֶסֶד וֶאֱמֶת לְנֹצְרֵי בְרִיתוֹ וְעֵדֹתָיו:יאלְמַעַן שִׁמְךָ יי וְסָלַחְתָּ לַעֲוֹנִי כִּי רַב הוּא:יבמִי זֶה הָאִישׁ יְרֵא יי יוֹרֶנּוּ בְּדֶרֶךְ יִבְחָר:יגנַפְשׁוֹ בְּטוֹב תָּלִין וְזַרְעוֹ יִירַשׁ אָרֶץ:ידסוֹד יי לִירֵאָיו וּבְרִיתוֹ לְהוֹדִיעָם:טועֵינַי תָּמִיד אֶל יי כִּי הוּא יוֹצִיא מֵרֶשֶׁת רַגְלָי:טזפְּנֵה אֵלַי וְחָנֵּנִי כִּי יָחִיד וְעָנִי אָנִי:יזצָרוֹת לְבָבִי הִרְחִיבוּ מִמְּצוּקוֹתַי הוֹצִיאֵנִי:יחרְאֵה עָנְיִי וַעֲמָלִי וְשָׂא לְכָל חַטֹּאותָי:יטרְאֵה אוֹיְבַי כִּי רָבּוּ וְשִׂנְאַת חָמָס שְׂנֵאוּנִי:כשָׁמְרָה נַפְשִׁי וְהַצִּילֵנִי אַל אֵבוֹשׁ כִּי חָסִיתִי בָךְ:כאתֹּם וָיֹשֶׁר יִצְּרוּנִי כִּי קִוִּיתִיךָ:כבפְּדֵה אֱלֹהִים אֶת יִשְׂרָאֵל מִכֹּל צָרוֹתָיו:
נקרא  2  פעמים
למעלה