תכנון שטח של דירה

  • הוסף לסימניות
  • #1
אודה מאוד לעזרת המקצוענים\ות ובעלי המעוף
אנחנו לפני שיפוץ והרחבת הדירה בעז"ה
מנסים לחשוב איך אפשר למקסם את החלל של הדירה (בעייני יש פה שטחים לא מנוצלים)

א. האם יש אפשרות להעביר את המטבח כך שיהיה צמוד לסלון ובמקום המטבח להכניס חדר + ? מאוד מתחברת לסלון- מטבח מחוברים. רק בגודל העכשוי של החדר שצמוד לסלון- זה לא מספק אותי.
ב. חייבת להכניס אופציה של יחידה לחדר שינה
ג. חשוב לי מטבח גודל יפה - לא ענק אבל כן מכובד
ד. הנחת יסוד - שהתוצאה תהיה דירת חמישה עם סלון גדול

אשמח לכל רעיון\ כיוון חשיבה וכו

כמובן שנלך לאדריכלית מקצועית וכו אבל חשוב לנו לשמוע כיווני חשיבה.
תודה מראש....
 

קבצים מצורפים

  • 1721260944256.png
    1721260944256.png
    KB 54.3 · צפיות: 89
  • הוסף לסימניות
  • #2
סה"כ עושה רושם של דירה מתוכננת ומנוצלת מצויין
(לדעתי)
להעביר מטבח לחדר אפשרי
רק סיפור ממש יקר (להעביר צנרות וכד')
זה דירה חדשה?
איך המצב שלה?
בכל מקרה אתם משפצים?
כי זה מאוד משמעותי

אם אתם מגדילים את המטבח לאיפה שמוצא
אפשר לפתוח את האזורים שיש שם קיר/ דלת וכד'
ואז יחסית המטבח פתוח לסלון
אבל לא בסגנון של שולחן בר מפריד וכד'
לדעתי מוצלח הסגנון שקרוב מאוד, אבל לא פתוח...

יח' הורים, אפשר אולי ע"ח השירותים יחיד
כי אי אפשר לתקוע איפה שרוצים שירותים...
(אלא אם כן בונים מראש)


1721280779240.png
 
  • הוסף לסימניות
  • #3
התכנון לשפץ את כל הדירה
מבחינתנו - אם זה ממקסם את הדירה ומצדיק את השינוי - כן לעשות שינויים ולהעביר צנרת וכו.
 
  • הוסף לסימניות
  • #4
הדירה חייבת לעבור שינוי לאחר ההרחבה.
אין היגיון לשרותי אורחים בסוף הבית. ויש הרבה בזבוז מקום עם כל הפרוזדור הענק.
סלון ומטבח יחד בחלל אחד גדול, יתנו לבית מראה מרווח לעומת המראה כרגע שהוא קצת חנוק.
תנו למעצבת פנים לעשות את העבודה.
 
  • הוסף לסימניות
  • #5
הדירה חייבת לעבור שינוי לאחר ההרחבה.
אין היגיון לשרותי אורחים בסוף הבית. ויש הרבה בזבוז מקום עם כל הפרוזדור הענק.
סלון ומטבח יחד בחלל אחד גדול, יתנו לבית מראה מרווח לעומת המראה כרגע שהוא קצת חנוק.
תנו למעצבת פנים לעשות את העבודה.
כיום בכלל השירותים בסוף המסדרון
אמורים להוריד אותו ואז להוסיף מסדרון + שירותים ושני חדרים

ישבנו עם שתי מעצבות (פגישות ח"פ) שלא מידי המליצו לי על החיבור של הסלון ומטבח בעיקר כי יצא לי מטבח קטן.
 
  • הוסף לסימניות
  • #6
א. האם יש אפשרות להעביר את המטבח כך שיהיה צמוד לסלון ובמקום המטבח להכניס חדר + ? מאוד מתחברת לסלון- מטבח מחוברים. רק בגודל העכשוי של החדר שצמוד לסלון- זה לא מספק אותי.
למה לא להחליף בין החדר שצמוד לסלון לבין המטבח? הוא אפילו טיפה יותר גדול.
אפשר לשבור את הקיר בינו לבין הסלון ולקבל סלון-מטבח מחוברים
 
  • הוסף לסימניות
  • #7
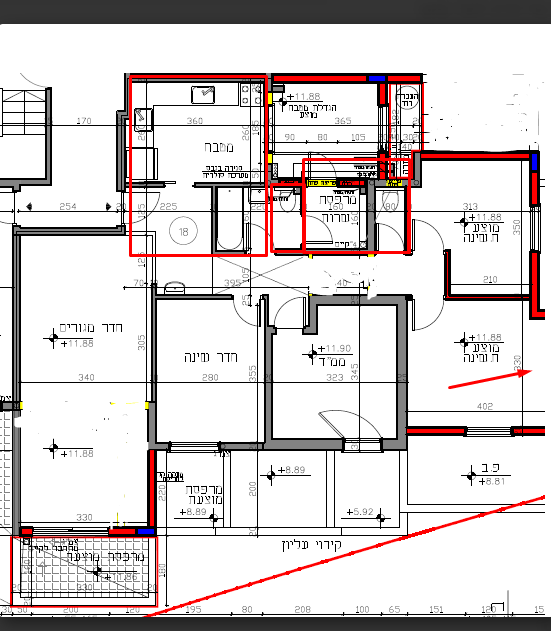
המטבח במקום העכשווי אמנם צר אבל ארוךךךךךךך (בעייני יותר מידיי)
אם נעביר אותו צמוד לסלון הוא יהיה יחסית ממש קטן
3.5*2.8
 
  • הוסף לסימניות
  • #8
1721285931490.png

מקווה שזה מספיק ברור...
1. להגדיל את המטבח ע"ח המסדרון.
2. חדר הורים במקום המטבח. לצידו יחידת הורים.
3. שירותי אורחים בכניסה לבית, דלת הכניסה חייבת להיות מהמסדרון, ולא מול הכניסה לבית.....
4. "לדחוף" את כל חדר הרחצה לסוף, יציאה לחדר הכביסה מחדר הרחצה.
החיסרון העיקרי: מסדרון מפותל....
כמובן שהכל מקושקש בערך. צריך לבדוק שזה עובד בקנה מידה נכון
בהצלחה!
 
  • הוסף לסימניות
  • #10
צפה בקובץ המצורף 1711771
מקווה שזה מספיק ברור...
1. להגדיל את המטבח ע"ח המסדרון.
2. חדר הורים במקום המטבח. לצידו יחידת הורים.
3. שירותי אורחים בכניסה לבית, דלת הכניסה חייבת להיות מהמסדרון, ולא מול הכניסה לבית.....
4. "לדחוף" את כל חדר הרחצה לסוף, יציאה לחדר הכביסה מחדר הרחצה.
החיסרון העיקרי: מסדרון מפותל....
כמובן שהכל מקושקש בערך. צריך לבדוק שזה עובד בקנה מידה נכון
בהצלחה!
חדר שינה בלי חלון 😑 ובדלת של הכניסה 😮
 
  • הוסף לסימניות
  • #12
אודה מאוד לעזרת המקצוענים\ות ובעלי המעוף
אנחנו לפני שיפוץ והרחבת הדירה בעז"ה
יש לכם אפשרות לשנות מיקום דלת כניסה ראשית ?
שיכנסו ישר לחלל המרכזי --כי זה יכול לפתוח אופציות מעניינות
 
  • הוסף לסימניות
  • #13
יש לכם אפשרות לשנות מיקום דלת כניסה ראשית ?
שיכנסו ישר לחלל המרכזי --כי זה יכול לפתוח אופציות מעניינות
לא חשבנו על זה ....
ולא יודעת אם זה אפשרי (תלוי בשכנים וכו)
מה זה יכול לתרום?
 
  • הוסף לסימניות
  • #14

קבצים מצורפים

  • 1721280779240.png
    1721280779240.png
    KB 85.4 · צפיות: 75
  • הוסף לסימניות
  • #15
יכול לתרום תכנון ליגה -- משהו ברמה אחרת -- מצוב
הברקה !!!!!
חייבת לבדוק את זה
האמת שאני ממש מופתעת
ניסינו ממש הרבה אופציות ופעם ראשונה שאני רואה תכנית קצת עם חשיבה מחוץ לקופסא...

ממש ממש תודה
 
  • הוסף לסימניות
  • #16
הברקה !!!!!
חייבת לבדוק את זה
האמת שאני ממש מופתעת
ניסינו ממש הרבה אופציות ופעם ראשונה שאני רואה תכנית קצת עם חשיבה מחוץ לקופסא...

ממש ממש תודה
יכול לתרום תכנון ליגה -- משהו ברמה אחרת -- מצוב
התוכנית של ilan p באמת יפה. תבדקי בעיקר את נושא הקולטנים. לא יודעת איזו קומה אתם. אבל בד"כ לא ניתן להזיזם ממקומם.
 
  • הוסף לסימניות
  • #18
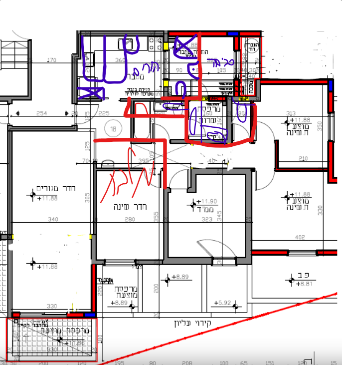
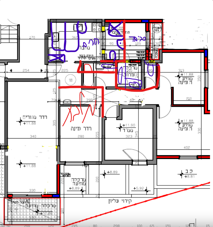
עלה לי הרעיון של להזיז את הדלת,
אממה, יש מצב שיש שם ארונות חשמל וכו', תבדקי,
אממה שני, לא יודעת אם שווה שכל הסלון פרוש וגלוי....
תבדקו רווח מול הפסד.

ללקוח כזה הייתי מראה לפחות 4-5-6 אופציות,
אין לי זמן להעלות לפה כמובן....
לא הייתי משנה את מיקום מטבח / חדר כי ככל הנראה הנוף מהחדר שרות (החדש) הוא פחות....
הכיוון הוא להקדים שרותי אורחים,
להגדיל מטבח
מה יש בחדר הימני התחתון בצד שמאל? השרטוט חתוך.
עם יחידת הורים מפנקת.
משהו בשלוף-
כנושן שיש המון המון דיוקים שצריך בשביל זה לרדת לפרטים.....
בהצלחה!
1721337154805.png
 
  • הוסף לסימניות
  • #19
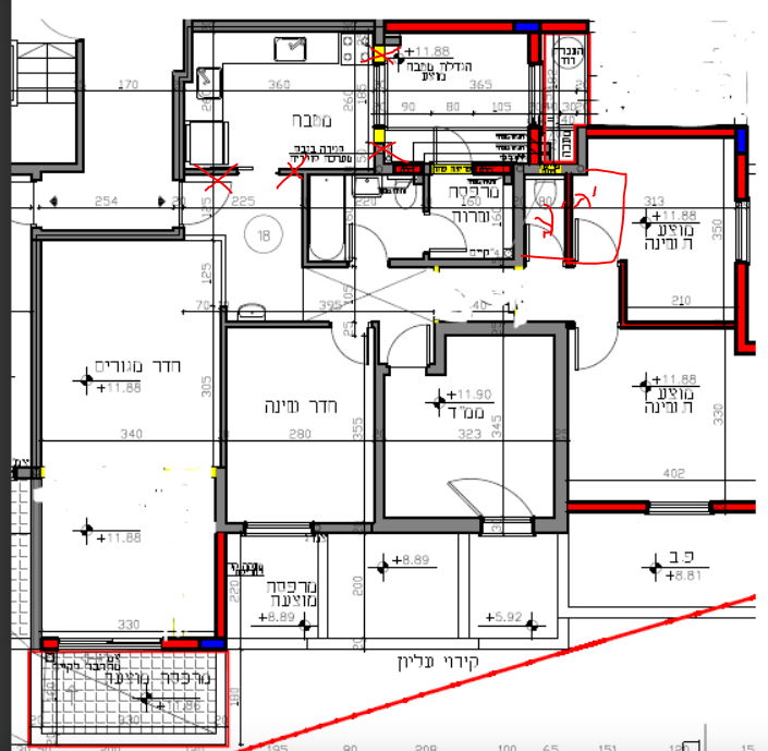
עלה לי הרעיון של להזיז את הדלת,
אממה, יש מצב שיש שם ארונות חשמל וכו', תבדקי,
אממה שני, לא יודעת אם שווה שכל הסלון פרוש וגלוי....
תבדקו רווח מול הפסד.
לשיטתך -- בהתיחס לסקיצה נ"ל --מאיפה נכנסים לבית ? -- ישר למטבח ?
 
  • הוסף לסימניות
  • #20

פרוגבוט

תוכן שיווקי
פרסומת

הצטרפות לניוזלטר

איזה כיף שהצטרפתם לניוזלטר שלנו!

מעכשיו, תהיו הראשונים לקבל את כל העדכונים, החדשות, ההפתעות בלעדיות, והתכנים הכי חמים שלנו בפרוג!

לוח מודעות

הפרק היומי

הפרק היומי! כל ערב פרק תהילים חדש. הצטרפו אלינו לקריאת תהילים משותפת!


תהילים פרק כה

אלְדָוִד אֵלֶיךָ יי נַפְשִׁי אֶשָּׂא:באֱלֹהַי בְּךָ בָטַחְתִּי אַל אֵבוֹשָׁה אַל יַעַלְצוּ אֹיְבַי לִי:גגַּם כָּל קוֶֹיךָ לֹא יֵבֹשׁוּ יֵבֹשׁוּ הַבּוֹגְדִים רֵיקָם:דדְּרָכֶיךָ יי הוֹדִיעֵנִי אֹרְחוֹתֶיךָ לַמְּדֵנִי:ההַדְרִיכֵנִי בַאֲמִתֶּךָ וְלַמְּדֵנִי כִּי אַתָּה אֱלֹהֵי יִשְׁעִי אוֹתְךָ קִוִּיתִי כָּל הַיּוֹם:וזְכֹר רַחֲמֶיךָ יי וַחֲסָדֶיךָ כִּי מֵעוֹלָם הֵמָּה:זחַטֹּאות נְעוּרַי וּפְשָׁעַי אַל תִּזְכֹּר כְּחַסְדְּךָ זְכָר לִי אַתָּה לְמַעַן טוּבְךָ יי:חטוֹב וְיָשָׁר יי עַל כֵּן יוֹרֶה חַטָּאִים בַּדָּרֶךְ:טיַדְרֵךְ עֲנָוִים בַּמִּשְׁפָּט וִילַמֵּד עֲנָוִים דַּרְכּוֹ:יכָּל אָרְחוֹת יי חֶסֶד וֶאֱמֶת לְנֹצְרֵי בְרִיתוֹ וְעֵדֹתָיו:יאלְמַעַן שִׁמְךָ יי וְסָלַחְתָּ לַעֲוֹנִי כִּי רַב הוּא:יבמִי זֶה הָאִישׁ יְרֵא יי יוֹרֶנּוּ בְּדֶרֶךְ יִבְחָר:יגנַפְשׁוֹ בְּטוֹב תָּלִין וְזַרְעוֹ יִירַשׁ אָרֶץ:ידסוֹד יי לִירֵאָיו וּבְרִיתוֹ לְהוֹדִיעָם:טועֵינַי תָּמִיד אֶל יי כִּי הוּא יוֹצִיא מֵרֶשֶׁת רַגְלָי:טזפְּנֵה אֵלַי וְחָנֵּנִי כִּי יָחִיד וְעָנִי אָנִי:יזצָרוֹת לְבָבִי הִרְחִיבוּ מִמְּצוּקוֹתַי הוֹצִיאֵנִי:יחרְאֵה עָנְיִי וַעֲמָלִי וְשָׂא לְכָל חַטֹּאותָי:יטרְאֵה אוֹיְבַי כִּי רָבּוּ וְשִׂנְאַת חָמָס שְׂנֵאוּנִי:כשָׁמְרָה נַפְשִׁי וְהַצִּילֵנִי אַל אֵבוֹשׁ כִּי חָסִיתִי בָךְ:כאתֹּם וָיֹשֶׁר יִצְּרוּנִי כִּי קִוִּיתִיךָ:כבפְּדֵה אֱלֹהִים אֶת יִשְׂרָאֵל מִכֹּל צָרוֹתָיו:
נקרא  2  פעמים
למעלה