תכנון שטח של דירה

  • הוסף לסימניות
  • #21
עלה לי הרעיון של להזיז את הדלת,
אממה, יש מצב שיש שם ארונות חשמל וכו', תבדקי,
אממה שני, לא יודעת אם שווה שכל הסלון פרוש וגלוי....
תבדקו רווח מול הפסד.

ללקוח כזה הייתי מראה לפחות 4-5-6 אופציות,
אין לי זמן להעלות לפה כמובן....
לא הייתי משנה את מיקום מטבח / חדר כי ככל הנראה הנוף מהחדר שרות (החדש) הוא פחות....
הכיוון הוא להקדים שרותי אורחים,
להגדיל מטבח
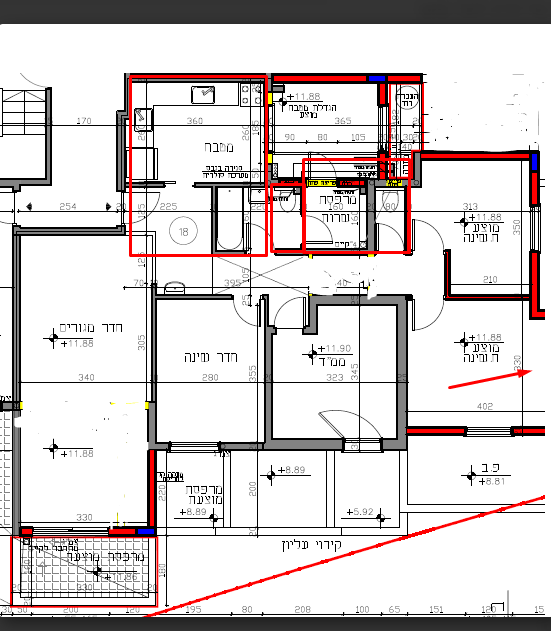
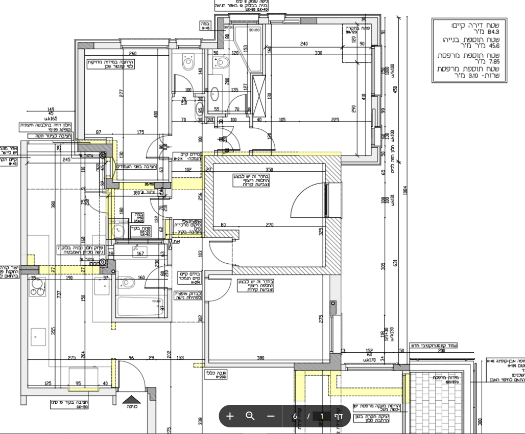
מה יש בחדר הימני התחתון בצד שמאל? השרטוט חתוך.
עם יחידת הורים מפנקת.
משהו בשלוף-
כנושן שיש המון המון דיוקים שצריך בשביל זה לרדת לפרטים.....
בהצלחה!
צפה בקובץ המצורף 1712479
@אדריכלות מזווית אחרת
הקפצה 🤨
היה חשוב לי שהמטבח יהיה עם חלון....
 
  • הוסף לסימניות
  • #23
זה תכנית שקיבלתי - לא מחוברת אליה משום כוון. השירותים בסוף הבית ..
1739268302302.png


כרגע ממשיכים עם התכנית הזו
חדר שינה לא מעונינת ליגוע - מתאים לנו החלוקה וכו (יש חלון גדול שמשקיף לנוף)
מעונינת שלמטבח יהיה חלון , השרטוט של המטבח - לא להתיחס אליו. בעקרון מייד בכניסה מצד שמאל הגבוהים, ואז שיש שלקראת הסוף מסתובב לשולחן בר.
לא שלימה עם החלוקה של האמבטיה\ חדר שירות - מחפשת שם עוד מקומות אחסון. אין לי מחסן וזה קריטי לי !!!!!
1739268602493.png
 
  • הוסף לסימניות
  • #24
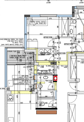
האם שיך להעביר את כל חדרי השירות באופן אופקי?
להרויח פרוזדור ישר?
1739269290846.png
 
  • הוסף לסימניות
  • #26
האמת מה שהכיייי מפריע לי
אני רוצה דלתת מהחדר שירות לקראת סוף המטבח להרויח שם אויר - ויש הרבה
ומהאמבטיה ארון תחתון לכביסה לא ממוינת - שאוכל לשלוף ולחלק לכביסל
בחדר שירות מכונה , ליד מייבש - עם משטח קיפול מעל , ואז מדפים , וליד כביסל
ועוד מקומות אחסון שחייבת .
 
  • הוסף לסימניות
  • #27
האמת מה שהכיייי מפריע לי
אני רוצה דלתת מהחדר שירות לקראת סוף המטבח להרויח שם אויר - ויש הרבה
ומהאמבטיה ארון תחתון לכביסה לא ממוינת - שאוכל לשלוף ולחלק לכביסל
בחדר שירות מכונה , ליד מייבש - עם משטח קיפול מעל , ואז מדפים , וליד כביסל
ועוד מקומות אחסון שחייבת .
אבל זה נראה שיש בחדר שירות מקום לכל הנ"ל
אאההמממ
איך נכנסים לחדרים?🙄
אם באמת בא לך אז זה אפשרי,
אבל אפ זה באמת יעזור לך
 
  • הוסף לסימניות
  • #29
האמת מה שהכיייי מפריע לי
אני רוצה דלתת מהחדר שירות לקראת סוף המטבח להרויח שם אויר - ויש הרבה
ועוד מקומות אחסון שחייבת .
לדעתי צריך לשלב את הכביסה בהמשך המטבח-- וזה פותר כמה בעיות בבת אחת
מקומות אחסון --לדעתי תעשו בוידם במסדרון -- זה שימושי ביותר
וחבל לשלא ניסיתם להתמודד באופן רציני עם שינוי בדלת כניסה --היה חוסך מלא מקום מבוזבז מול הכניסה לטובת המטבח
 

קבצים מצורפים

  • 1721280779240.png
    1721280779240.png
    KB 87.2 · צפיות: 20
  • הוסף לסימניות
  • #30
לדעתי צריך לשלב את הכביסה בהמשך המטבח-- וזה פותר כמה בעיות בבת אחת
מקומות אחסון --לדעתי תעשו בוידם במסדרון -- זה שימושי ביותר
וחבל לשלא ניסיתם להתמודד באופן רציני עם שינוי בדלת כניסה --היה חוסך מלא מקום מבוזבז מול הכניסה לטובת המטבח
האמת לקחנו את ההצעה שלך מאוד ברצינות,
ישבנו על זה עם האדריכלית הרבה זמן (הופתעה מהרעיון !)
קיבלנו הסכמה מהשכנים
שורה תחתונה ירדנו מזה - מאלף ואחת סיבות.
בעיקר כי אנחנו רוצים סלון עם פרטיות , עם פינת ישיבה מרווחת ושולחן מרווח.

עוקבת לעיתים על רעיונות שאתה מציע - ונהנית מהפתרונות ההחכמים.
תודה על הרצון...

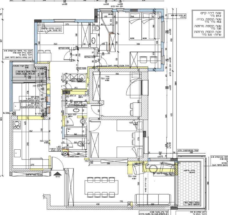
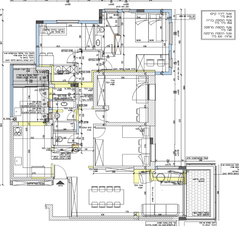
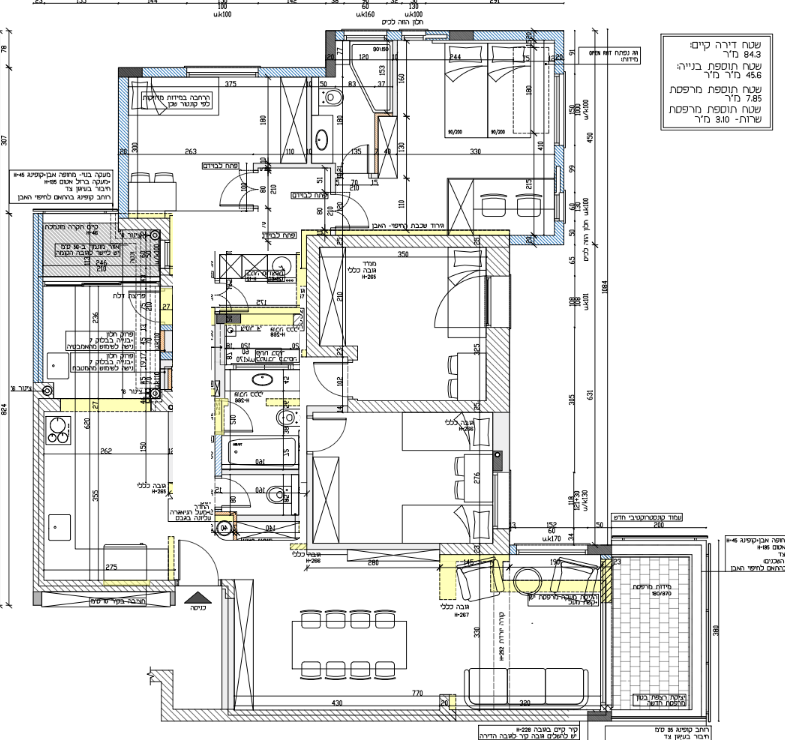
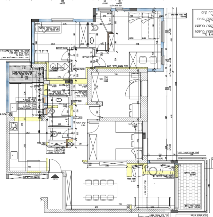
תכלס זה בגדול התכנית, רק לא ברור איפה נכון להניח את הפינת נטילה (לא אוהבת שזה מול הפתח של הבית)
1739399660477.png
 
  • הוסף לסימניות
  • #31
האמת לקחנו את ההצעה שלך מאוד ברצינות,
ישבנו על זה עם האדריכלית הרבה זמן (הופתעה מהרעיון !)
מאוד שמח שהגעתם להחלטה מה טוב לכם --- לפעמים בתכנונים האלה צריכים להיות חכמים שלא לנצח בקרב אבל להפסיד את המלחמה --כלומר להרויח איזה דרישה של נוחות מסוימת אבל להפסיד את כל הצורה של הדירה
1- נטילת ידיים --מצוב אופציה לשינוי מיקום לשיקולכם
2-בתוצאה הסופית עדיין לי ברור שמה שהצעתי לכם בעבר -- זה משהו ברמה אחרת למבינים -גם הסלון גם המטבח וגם חדר הורים -- אבל מותר לכם לחשוב אחרת
3- בהצלחה
 

קבצים מצורפים

  • 1739399660477.png
    1739399660477.png
    KB 111 · צפיות: 20
  • 1737414189884 - עותק.png
    1737414189884 - עותק.png
    KB 128.2 · צפיות: 18
  • הוסף לסימניות
  • #32
מאוד שמח שהגעתם להחלטה מה טוב לכם --- לפעמים בתכנונים האלה צריכים להיות חכמים שלא לנצח בקרב אבל להפסיד את המלחמה --כלומר להרויח איזה דרישה של נוחות מסוימת אבל להפסיד את כל הצורה של הדירה
1- נטילת ידיים --מצוב אופציה לשינוי מיקום לשיקולכם
2-בתוצאה הסופית עדיין לי ברור שמה שהצעתי לכם בעבר -- זה משהו ברמה אחרת למבינים -גם הסלון גם המטבח וגם חדר הורים -- אבל מותר לכם לחשוב אחרת
3- בהצלחה
1. השאיפה שפינת נטילה תהיה צמודה לסלון...
2. לגבי חדר הורים - גנבת מהחדר שליד שטח, וכן במיקום של היחידת הורים שציינת מתוכנן גג נשלף לסוכה...
בכל מקרה הפינת עבודה סתם נראית פה כ"כ בומבסטית. בפועל היא תהיה מינימליסטית ותיתן מרווח .
המינוס היחיד- ארון (האדריכלית אומרת שזה שטויות ולא יהיה בעיה - היא טועה?)
3. לא רוצים כניסה לבית ישר לסלון. מנסיון של שנים לא מעטות.

וכמובן 4. תודה :)

1739476287313.png
 
  • הוסף לסימניות
  • #33
1. השאיפה שפינת נטילה תהיה צמודה לסלון...
2. לגבי חדר הורים - גנבת מהחדר שליד שטח, וכן במיקום של היחידת הורים שציינת מתוכנן גג נשלף לסוכה...
בכל מקרה הפינת עבודה סתם נראית פה כ"כ בומבסטית. בפועל היא תהיה מינימליסטית ותיתן מרווח .
המינוס היחיד- ארון (האדריכלית אומרת שזה שטויות ולא יהיה בעיה - היא טועה?)
3. לא רוצים כניסה לבית ישר לסלון. מנסיון של שנים לא מעטות.

וכמובן 4. תודה :)

צפה בקובץ המצורף 1897835
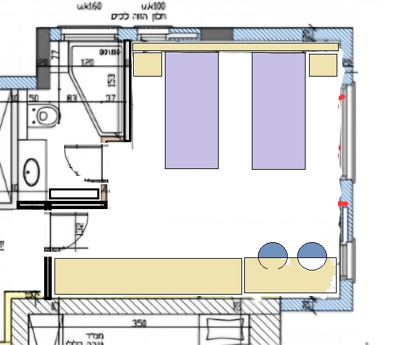
ארון בחדר שינה הוא משהו שמאוד חשוב לתת עליו את הדעת. למה לא לעשות ארון על הקיר מול המיטות ולשלב בסופו פינת עבודה?!
כיור נט"י לא מפריע בכניסה לבית, אם עושים אותו יפה ומרשים הוא רק מוסיף.
ואני לגמרי בעד שדלת הכניסה לא תחשוף יותר מדי למי שעומד בפתח.
בגדול התכנית מצויינת, מנצלת את השטח במקסימום ומתאימה מאוד להתנהלות היומיומית של משפחה עם ילדים.
בהצלחה

מצרפת הצעה להעמדת ריהוט בחדר שינה. הרווח העיקרי הוא ארון גדול שחלקו עומק 40 ס"מ למדפים וחלקו עומק שמתאים לתליה
Screenshot_20250214_053733_Chrome.jpg
 
נערך לאחרונה ב:
  • הוסף לסימניות
  • #34
ואופציה נוספת לחדר שינה (צריך כמובן לבדוק אם זה אכן אפשרי מבחינת הזזת צנרת ומידות):
Screenshot_20250214_054947_Chrome.jpg
 
  • הוסף לסימניות
  • #35
ארון בחדר שינה הוא משהו שמאוד חשוב לתת עליו את הדעת.
נכון מאוד --ארון מאוד חשוב וזה אולי הפונקציה שהכי חשוב לחשוב עליה מראש --אפשר גם העמדה כזאת
 

קבצים מצורפים

  • 1897925-5b31dd10a87c24d7174160aeefdf8e2d.jpg
    1897925-5b31dd10a87c24d7174160aeefdf8e2d.jpg
    KB 62.4 · צפיות: 15
  • הוסף לסימניות
  • #36
הקפצה חוזרת לסופש...
זה כרגע בכל אופן מה שהוחלט לטובת הצדדים.
1. החדר שירות - מה אומרים - איפה הכי נכון למקם אחסון (אין לנו מחסן - ואנחנו רוצים שיהיה שם אחסון...)
2.העמדת סלון - מה העדיפות לספה? פינתית בקיר בהתחלה או בסוף הסלון?
3. האמבטיה - לי מפריע שהשירותים מול הדלת. האדריכלית אומרת שזה לא נורא כי פותחים את הדלת ורואים את הכיור..
4. מטבח - מצרפת עוד סקיצה חוץ ממה שבתכנית. מה נראה לכם עדיף?

ואין מילים על הרעיונות והעזרה !!!

1740082177302.png


1740082205411.png
 
  • הוסף לסימניות
  • #37
1.הייתי ממקמת את המכונת כביסה ומייבש בקיר מאחורי החדר רחצה ועושה ארון דו צדדי לכביסה וממול ארון ארוך לאחסון!
2.אני אוהבת את העמדה בתוכנית!
3.אני גם חושבת שזה לא נורא! עם תעבירי את זה לקיר של הכיור אז לא יהיה מקום לכיור וארון ארוך!
4.בתוכנית הראשונה אין שום ענין לכירה החלבית תצטרכי להסחב עם האוכל והסירים עד לשם לא נוח!
בתוכנית השניה משטחי העבודה ממש קטנים! תנסי לשנות כמו בסקיצה שמצרפת!
בהצלחה
1740082205411.png
 
  • הוסף לסימניות
  • #38
1.הייתי ממקמת את המכונת כביסה ומייבש בקיר מאחורי החדר רחצה ועושה ארון דו צדדי לכביסה וממול ארון ארוך לאחסון!
2.אני אוהבת את העמדה בתוכנית!
3.אני גם חושבת שזה לא נורא! עם תעבירי את זה לקיר של הכיור אז לא יהיה מקום לכיור וארון ארוך!
4.בתוכנית הראשונה אין שום ענין לכירה החלבית תצטרכי להסחב עם האוכל והסירים עד לשם לא נוח!
בתוכנית השניה משטחי העבודה ממש קטנים! תנסי לשנות כמו בסקיצה שמצרפת!
בהצלחהצפה בקובץ המצורף 1904335
אהבתי !!! :)
גם לדעתי השטחים לא היו מספיקים!
מה את אומרת על השולחן? שיהיה המשך לשיש - לעוד שטחי עבודה - ומסביב שולחן נמוך ? זה נוח?
 
  • הוסף לסימניות
  • #39
1.הייתי ממקמת את המכונת כביסה ומייבש בקיר מאחורי החדר רחצה ועושה ארון דו צדדי לכביסה וממול ארון ארוך לאחסון!
2.אני אוהבת את העמדה בתוכנית!
3.אני גם חושבת שזה לא נורא! עם תעבירי את זה לקיר של הכיור אז לא יהיה מקום לכיור וארון ארוך!
4.בתוכנית הראשונה אין שום ענין לכירה החלבית תצטרכי להסחב עם האוכל והסירים עד לשם לא נוח!
בתוכנית השניה משטחי העבודה ממש קטנים! תנסי לשנות כמו בסקיצה שמצרפת!
בהצלחהצפה בקובץ המצורף 1904335
שלחתי את זה לאדריכלית היא ממש התלהבה. תודה רבה !!!!
אגב מה את אומרת - היא מנסה לשכנע אותי לעשות שולחן בר ולא לחלק לשולחן גבוה ונמוך....
 
  • הוסף לסימניות
  • #40
שולחן בר זה מודרני היום!
את צריכה לחשוב עם זה מתאים לך שיהיה רק כסאות גבוהים גם לילדים!
בהצלחה
 

פרוגבוט

תוכן שיווקי
פרסומת

פוסטים חדשים שאולי לא קראת....

הכותרת לא באה להתריס היא באה להדגיש מצב
ולא לא באתי לומר שאבא או אמא עם ילד או שניים זה לא אתגר
אבל שימו לב
בעוד אתם בונים על ההורים לרוב פסח ולכן מכשירים פיסת שיש קטן לפינת קפה. מדף במקרר. ובארון
כי מילא רוב החג נהייה אצל ההורים
ההורים והרווקים בבית קורעים את עצמם [תזכרו זה לא היה כזה מזמן]
כן אמא שלך לא נחה כבר 3 שבועות

להפוך בית שלם 100+ מטר של ארונות כיורים שולחנות מטבח סלון כיסאות מזווה מיטות
לכשר לפסח
לאפשרות שאתם וילדכם הסתובבו בחופשיות עם מצה ואפיקומן שסבא קנה
לא נכנסתי להוצאות המטורפות שקצת עוברות לידכם. למה שתקנו מצות יין או חסה או נייר כסף לציפוי המטבח
ושוב לא בהאשמה ולא בטרוניה אלא כנתון מציאותי
אז זו''צ יקר קצת שימת לב
לפרגן לבוא לעזור חצי יום
לפרגן ארוחה לעובדים בבית [הבית שלך חמץ המטבח שלהם במרפסת שרות]
לתת מילה טובה או שוקולד
והחשוב מכל
מעשרות להורים
הם חשובים יותר מכל כולל ארגון או קמחה דפסחא הם ההורים שלך

והם יממנו לך את ארוחות וסעודות החג
בס"ד

ההבדל בין נוכלות לבין כישלון



לפני כחודש נערך בבני ברק מיפגש מאוד מעניין של גוף הנקרא "הפורום להגנת הצרכן" והוא עסק בעיקר בדרכים למניעת נפילות נדל"ן בהם הציבור החרדי "מומחה" ליפול חזור ונפול.

הנוכחים, מומחים איש איש בתחומו, תיארו את הנוכלויות הרווחות היום ותיארו בצבעים קודרים ואמיתיים את המצב בכי רע, היו שם גדולי הדיינים שדיברו על הצורך להבטיח שהדור השני לא עושה שטויות עם הדירה שקיבלו מההורים וכן הלאה.

כאשר ר' איצ'ה דזיאלובסקי העניק לי את רשות המילה האחרונה (בגלל שאיחרתי – הרגל נעשה טבע) בקשתי מהנוכחים שלא יישפכו את התינוק אם המים, כלומר שלא יביאו אנשים למצב שבו הם חושדים בכל מה שלא זז שהוא נוכלות, הדבר הזה טענתי עלול להביא לשיתוק מוחלט של שוק השקעות הנדל"ן החרדי אשר היה והינו הקטליזטור הראשי של הציבור החרדי בדרכו לנישואי ילדים ברוגע ושלווה, המסר המרכזי של שתי דקות הנאום שלי זה מה שאתם הולכים לקרוא באלף מילים הבאות: לא כל עסקה כושלת היא אשמת המשווק!

צרות אחרונות משכחות את הראשונות וכך שכחתי מזה לגמרי, אלא שהשבוע פורסמה כתבה בעיתון 'דה-מרקר' (מי שלא מכיר לא הפסיד - מלא באהבת כסף ושנאת חרדים) כתבת תחקיר עומק אודות תופעת העוקצים בציבור החרדי הכרוכים במבצעי 10/90 הזכורים לשימצה.

מה שלא אהבתי זה ההתמקדות במתווך חרדי מסוים כאילו הוא שורש הרע בעולם כולו ואיך מלאו ליבו כביכול, ומעשה שהיה כך הווה בעשרות עותקים ברחבי הארץ שרובם מוכרים לי היטיב:

אברכים שחושבים שהם אנשי-עסקים פותו בידי אנשי-עסקים שחושבים שהם אברכים לקנות דירות פאר בערים שהם מכירים רק מחלונות האוטובוס בדרך למירון, נתניה ובת ים מככבות בכתבה אך זה לאורך כל הארץ בערים אשר אברך ממוצע מכיר את שמותיהם רק מהתרעות פיקוד העורף (או מהנפילות שאחריהן) ומעולם לא ביקר בהן.

אז איך משכנעים אברך כולל חסידי בן 22 שקיבל מההורים חצי מיליון ₪ לצורך יחידת 'סליחה' בביתר, לרכוש פנטהוז בהרצליה בארבע מיליון ₪ ?

מספרים לו שזה מבצע מיוחד שהתגלה רק למתווך בגילוי שמימי וכעת צריך רק לשלם עשרה אחוז שזה ארבע מאות אלף שקל ואת המאה הנותרים להביא למתווך על הגילוי הנפלא.

ואיך הדלפון שלנו יממן את מה שעשירי טבריה מתקשים?

כאן מגיע החלק השני של הגילוי אליהו – המתווך יודע לנבא כי בעוד שלוש שנים, כשיצטרכו להשלים את הרכישה הדירה תהיה שווה חמישה מיליון, ואז האברך דנן יתברר כסוחר מוצלח ביותר אשר ימשוך חזרה את הארבע מאות ועוד מיליון רווח נקי וכך לא יצטרך לגור בדירת הסליחה אלא בדירה גדולה המרחיבה דעתו של אדם ומרחיבה ארנקו של המשווק.

אז איפה הקצ'?

שעכשיו זה "אחרי שלוש שנים" ומתברר כי המחיר הכי גבוה שאפשר לקבל על הדירה הוא שלוש וחצי מיליון ואחרי ההוצאות מגיעים לשלוש מאתיים נטו ביד, מה שאומר שלפעמים עדיף לאותו אברך לעשות "ויברח" ולהותיר את הארבע מאות אצל החברה והמשווק ולחזור ליחידת הסליחה אבל וחפוי ראש, והפעם כשוכר...

זה פחות או יותר המסלול שאותו עוברות בחודשים אלו מאות משפחות מאנ"ש שכל מה שהם רצו זה לחתן את הילדים בכבוד וכעת הם מרוסקים לחלוטין וייקח להם שנים רבות אם בכלל כדי להתאושש מהתהום הכלכלית שהם הוכנסו אליה בידי משווק פלוני.

אך עשרת הקוראים כאן יודעים שעד כאן הייתה רק ההקדמה, כעת נתחיל עם הניתוח הכואב של הנתונים ואת הצד של לימוד זכות:

ובכן, קודם כל צריך לדעת שרבים מאוד הרוויחו בפריסיילים ותכניות דומות הרבה כסף, פגשתי ועודני פוגש כל יום אברכים צעירים ומבוגרים שהרוויחו סכומים אגדיים בשנים האחרונות כתוצאה מהפטנט הזה, לא ערכתי מחקר עומק אך מהתרשמותי המרוויחים רבים בהרבה על המפסידים וחבל שאת זה שומרים בסוד מאימת המצ'ינגים, הסיבה היחידה שמספרים לי על כך זה או כדי לשאול איך לעשות את הסיבוב הבא או כדי להתייעץ איך לצמצם את המסים העצומים (ברוך השם, כשיש מס סימן שיש שבח).

כל מי שקנה דירה בירושלים במחירי פריסייל של עשרים ומשהו אלף עשה את המיליון הזה, כך גם רבים שהשקיעו בחלק מהפרוייקטים בבן שמן וכך גם במקומות נוספים אשר המחירים עלו שם דרמטית ולקחו איתם את המשקיעים כלפי מעלה.

אז מה קרה בכל הפרוייקטים הכושלים?

שני דברים, הראשון שלא ידוע לי אם קרה זה הקפצת מחירים, מאוד ייתכן שמשווק מסוים יבוא לקבלן שיש לו כבר פריסייל ויגיד לו במקום למכור ב3.9 אביא לך קונים בארבע מיליון ואז מקבלים תרי זוזי: מאה אלף מהקבלן ועוד אחד מהלקוח, חד גדיא דזבין את אבא.

זה נורא לשמוע שיש דברים כאלו וטיפש מי שנופל לכך אך מי שיותר טיפש ממנו הוא מי שמאמין שאפשר למנוע דבר כזה באמצעות בירור אם המתווך אמין: גם המתווך האמין ביותר לא יעמוד בפני ניסיון של מאתיים אלף ₪ רק מלאך יוותר על זה ולא ניתנה תורת העסקים למלאכי השרת.

אך הדבר הזה לא מתקיים בדרך כלל משום שרוב הקונים יודעים לבדוק בערך את המחיר בסביבה ולא נופלים לבורות עמוקים, מה שכן קורה זה הדבר השני ועליו ברצוננו לדבר:

המחיר פשוט לא עלה, ולפעמים אפילו ירד.

כן רבייסיי, מחירי דירות לא רק עולים, לפעמים הם גם יורדים, כגון למשל בתקופת מלחמה.

עד מלחמת שמחת-נורא המחירים בנתניה למשל אכן השתוללו כי הצרפתים קנו שם בהמוניהם והוא הדין בצפת שהאמריקאים עטו עליה כי אצלם אין הבדל בין ירושלים לצפת, באמריקה זה מרחק סביר לנסיעה יומיומית לעבודה, אז מישהו משווק להם את זה כירושלים לעניים והם קנו וקנו והמחירים עלו ועלו והייתה היתכנות מסויימת לעלייה צפוייה.

ואז הגיע המלחמה ואין חוצניקים, ועוד מלחמה ועוד מבצע ושום דבר לא חזר לעצמו ואפשר לקלל את איראן (מגיע להם) ואת החמאס (עוד יותר מגיע) אך זה לא יעזור לעובדה הפשוטה שמחירי המגדלים שיועדו בעיקר לאוכלוסיות אלו צולל.

לא בהרבה, אך מספיקה ירידה של 8% כדי שכל העסק יהפוך להפסד.

זה נכון שמעצבן שהמשווק ניבא שהמחירים יעלו והם לא, אמנם אמרו חז"ל שנבואה ניתנה לשוטים אך האמונה כי יש למישהו נבואה ניתנה לשוטים גדולים עוד יותר... כל בר דעת העושה עסקים יודע שבכל הקשור לניבוי עתידות - המשווק ועטיפת המסטיק יודעים לנבא באותה מידה ומי שמסתמך על הבטחות אודות העתיד (כולל אלפי אברכים שנופלים היום בפריסייל של המחר שנקרא פינוי בינוי המבוסס על אותה נבואה כמעט) אין לו לבוא בטענות אלא על עצמו, לא המשווק נשך לשונרא.

מקווה שהצלחתי להסביר: לא כל עסקה כושלת היא נוכלות ולא כל ירידת מחירים היא עקיצה, בכל עסק ייתכן מאוד הפסד ומי שלא מוכן לכך שלא ייכנס לעולם ההשקעות.

אז להפסיק להשקיע בנדל"ן?

חלילה, כמה שיותר להשקיע בנדל"ן וכל המרבה הרי זה משובח – ואם ירצה השם ויהיה זמן נרחיב אולי בטור הבא על "מה כן" – אך רק עסקאות נטולות הימור על כל הקופה, כך שגם אם נגזר עליך להפסיד זה יהיה רק קצת ורק זמני.

ברור לי שכל הדברים האמורים כאן ברורים לכל אחד מעשרת הקוראים וסליחה שבזבזתי את זמנכם אך אם זה ירגיע אבא סוער אחד -שכועס בכל ליבו על המתווך שכאילו הפיל את החתן שלו - והיה זה שכרי.



גילוי נאות: לכותב אין ולא היה שום אינטרס כלכלי בשום פרוייקט של פריסל והוא אינו קשור היום לשום שיווק לא במישרין ולא בעקיפין, המידע מובא ללא כל אינטרס כלכלי אלא כצדקה ושירות לציבור, לשאלות ספציפיות ניתן לפנות למייל והתשובות שם חינם וללא אחריות.
סיכום אירועים: איראן בלהבות - מהמחאות ועד לסף עימות עולמי

הרקע וההתפרצות (סוף דצמבר 2025):

המחאות החלו ב-28 בדצמבר 2025 בטהראן, על רקע משבר כלכלי חריף וצניחה חדה בערך הריאל. מה שהחל כזעקת סוחרים ואזרחים על יוקר המחיה, הפך במהירות לגל הפגנות חסר תקדים ב-187 ערים הקורא להפלת המשטר.


הטבח והחשכת המידע (ינואר 2026):
  • דיכוי אלים: המשטר האיראני הגיב באכזריות יוצאת דופן. לפי נתוני ארגון זכויות האדם HRANA, נכון ל-23 בינואר, מספר ההרוגים המאומת עומד על למעלה מ-5,000 בני אדם, בהם 4,716 מפגינים ועשרות ילדים.
    יש דיווחים לא מאומתים מצד האופוזיציה האיראנית על מעל 60,000 הרוגים!

  • מעצרים המוניים: למעלה מ-26,500 בני אדם נעצרו, וקיים חשש כבד להוצאות להורג המוניות בבתי הכלא.

  • חסימת אינטרנט: החל מה-8 בינואר הוטל מצור דיגיטלי כמעט מוחלט על המדינה כדי למנוע זליגת תיעודים מהטבח.

המעורבות האמריקנית - "הארמדה של טראמפ":
הנשיא טראמפ, שחזר והזהיר את טהראן מפני המשך הטבח, הכריז ב-22 בינואר כי "ארמדה" אמריקנית (צי ספינות מלחמה, כולל נושאת המטוסים אברהם לינקולן) עושה את דרכה למפרץ הפרסי. טראמפ הבהיר כי ארה"ב בוחנת אפשרויות תקיפה ישירות נגד מטרות שלטוניות אם לא ייפסק הדיכוי. ולאחר הדלפות על ממדי הטבח, הכריז "העזרה בדרך".


הזווית הישראלית והאזורית:
  • כוננות שיא: ישראל נמצאת בדריכות עליונה מחשש שהסלמה אמריקנית תוביל לתגובה איראנית ישירה או באמצעות שלוחיה (פרוקסי).

  • איומי נתניהו: ראש הממשלה נתניהו הזהיר כי אם איראן תבצע "טעות" ותתקוף את ישראל, היא תפגוש עוצמה שטרם הכירה.

  • איומי טהראן: המשטר האיראני הודיע כי במקרה של תקיפה, בסיסים אמריקניים ויעדים בישראל יהיו "מטרות לגיטימיות".

באשכול זה נמשיך לעדכן סביב השעון בכל התפתחות, דיווחים מהשטח ופרשנויות ביטחוניות.
עודכן אדר תשפ"ד
ראשית, גופי הכשרות
ברוב אשכולות בנושא 'השקעות בשוק ההון' בפרוג, משתרבב עניין הכשרות.
למען הסדר באשכול זה נעלה עדכונים בנושא כשרות.
אני אשתדל לסכם ולתמצת ככל האפשר.

יש 4 גופי כשרות
  • בד"ץ העדה החרדית - על פי פסקי הרב יעקב בלוי זצ"ל שהיה בקיא גדול בתחום שוק ההון והוא שהביא את פסקיו ועל פי פסקים אלו נוהגים עד היום בגוף כשרות זה. היום הכשרות בראשות הרב שלמה זאב קרליבך.
  • גלאט הון - על פי פסקי רבי ניסים קרליץ והרב שמואל ואזנר. שסמכו ידיהם על הרב יעקב לנדו שמכיר את שוק ההון לעומקו. הרב משה שטרנבוך ראב"ד העדה החרדית הוא מרבני 'גלאט הון'.
  • תשואה כהלכה – הרב שמואל דוד גרוס, רב חסידי גור אשדוד ועוד רבנים מוכרים וידועים בכל שכבות הציבור החרדי.
  • כלכלה על פי ההלכה- הרב אריה דביר, על פי פסקי הרב יוסף שלום אלישיב.

היום בכל החברות יש מסלולים כשרים, שמאושרים לפחות ע"י אחת מהכשרויות.
בין החברות שנמצאת ברשותם תעודת כשרות אפשר למצוא את:
אלטשולר שחם, אינפיניטי, הפניקס, הראל, כלל, מגדל, מור, מיטב דש, מנורה.

רשימות קרנות כשרות:

אשכולות דומים

ראיתי בכמה אשכולות את ההענות של חברי הפורום ונדהמתי,.
חושבת אולי אני גם בשלב הראשוני אוכל להנות מהייעוץ שלכם.


כיום יש לנו את הדירה הקיימת, ב"ה.
וכעת אנו קונים את היחידה (הצמודה) לדירה שלנו.
היות ואנו זקוקים לדירה גדולה יותר.

בשרטוט בקובץ המצורף יש :
צד ימין שטח שכתוב עליו 28.5 מטר - (ועוד שטח שיצא מחזית הבנין בסה"כ מינימום 30 מטר)
השטח שכתוב בעפרון חזית בנין - יוצאים רלסים שיכולים לצאת קצת (השכן כבר השקיע את הרלסים)

הצד השמאלי של השרטוט הוא של יחידה להשכרה שלנו.
שאותה בעזרת השם עוד כמה שנים נוכל להכניס אלינו גם.

המטרה שלשמה אנו קנינו את הדירה לידינו (בפועל היה הכל דירה אחת אך כשקנינו את הדירה שלנו המוכר נשאר עם השטח הזה)
היא להרוויח:
סלון גדול - ספה+ ארון ספרים+ ויטרינה/קומודה+ שולחן וכסאות סלון גדוללל
עוד חדר שינה ל 2 בחורות ( בעזרת השם יהפך לחדר אירוח לזוגות נשואים/יולדות + יחידת הורים צמודה פיצית ככל הניתן)
מטבח גדול כולל פינת אוכל וחשוב שטח עבודה במרכז כולל אחסון מתחת (וכסאות מסביב רק אם ניתן) כמו שאומרים E
ויש שם חצי חדר שינה - הקיר שצמוד למטבח שלי - שאותו אני רוצה להגדיל לחדר נורמלי 2 מיטות ארונות ושולחן אולי וכו.
כך שבסך הכל אני רוצה להשאר עם:
ארון נוסף כניסה לבית דחוף (לא חשוב כל כך בכניסה אבל חשוב המקום אחסון הזה
חדר שינה הורים+ יחידה
חדר ילדים הקיים
חדר ארוח +יחידה פיצית
סלון גדול
מטבח גדול
חדר שינה/ ילדים

הסוכה היא מהסלון הקיים, רק מעל אין בניות וכו'.

אודה לכל הצעה רלוונטית שתוכל לעזור לי ולקדם אותי לראות אם אכן זה מסתדר לנו.

תודה רבה!

אין לי את הקובץ בפתוח.

קבצים מצורפים​

ראיתי בכמה אשכולות את ההענות של חברי הפורום ונדהמתי,.
חושבת אולי אני גם בשלב הראשוני אוכל להנות מהייעוץ שלכם.


כיום יש לנו את הדירה הקיימת, ב"ה.
וכעת אנו קונים את היחידה (הצמודה) לדירה שלנו.
היות ואנו זקוקים לדירה גדולה יותר.

בשרטוט בקובץ המצורף יש :
צד ימין שטח שכתוב עליו 28.5 מטר - (ועוד שטח שיצא מחזית הבנין בסה"כ מינימום 30 מטר)
השטח שכתוב בעפרון חזית בנין - יוצאים רלסים שיכולים לצאת קצת (השכן כבר השקיע את הרלסים)

הצד השמאלי של השרטוט הוא של יחידה להשכרה שלנו.
שאותה בעזרת השם עוד כמה שנים נוכל להכניס אלינו גם.

המטרה שלשמה אנו קנינו את הדירה לידינו (בפועל היה הכל דירה אחת אך כשקנינו את הדירה שלנו המוכר נשאר עם השטח הזה)
היא להרוויח:
סלון גדול - ספה+ ארון ספרים+ ויטרינה/קומודה+ שולחן וכסאות סלון גדוללל
עוד חדר שינה ל 2 בחורות ( בעזרת השם יהפך לחדר אירוח לזוגות נשואים/יולדות + יחידת הורים צמודה פיצית ככל הניתן)
מטבח גדול כולל פינת אוכל וחשוב שטח עבודה במרכז כולל אחסון מתחת (וכסאות מסביב רק אם ניתן) כמו שאומרים E
ויש שם חצי חדר שינה - הקיר שצמוד למטבח שלי - שאותו אני רוצה להגדיל לחדר נורמלי 2 מיטות ארונות ושולחן אולי וכו.
כך שבסך הכל אני רוצה להשאר עם:
ארון נוסף כניסה לבית דחוף (לא חשוב כל כך בכניסה אבל חשוב המקום אחסון הזה
חדר שינה הורים+ יחידה
חדר ילדים הקיים
חדר ארוח +יחידה פיצית
סלון גדול
מטבח גדול
חדר שינה/ ילדים

הסוכה היא מהסלון הקיים, רק מעל אין בניות וכו'.

אודה לכל הצעה רלוונטית שתוכל לעזור לי ולקדם אותי לראות אם אכן זה מסתדר לנו.

תודה רבה!

הצטרפות לניוזלטר

איזה כיף שהצטרפתם לניוזלטר שלנו!

מעכשיו, תהיו הראשונים לקבל את כל העדכונים, החדשות, ההפתעות בלעדיות, והתכנים הכי חמים שלנו בפרוג!

לוח מודעות

הפרק היומי

הפרק היומי! כל ערב פרק תהילים חדש. הצטרפו אלינו לקריאת תהילים משותפת!


תהילים פרק כה

אלְדָוִד אֵלֶיךָ יי נַפְשִׁי אֶשָּׂא:באֱלֹהַי בְּךָ בָטַחְתִּי אַל אֵבוֹשָׁה אַל יַעַלְצוּ אֹיְבַי לִי:גגַּם כָּל קוֶֹיךָ לֹא יֵבֹשׁוּ יֵבֹשׁוּ הַבּוֹגְדִים רֵיקָם:דדְּרָכֶיךָ יי הוֹדִיעֵנִי אֹרְחוֹתֶיךָ לַמְּדֵנִי:ההַדְרִיכֵנִי בַאֲמִתֶּךָ וְלַמְּדֵנִי כִּי אַתָּה אֱלֹהֵי יִשְׁעִי אוֹתְךָ קִוִּיתִי כָּל הַיּוֹם:וזְכֹר רַחֲמֶיךָ יי וַחֲסָדֶיךָ כִּי מֵעוֹלָם הֵמָּה:זחַטֹּאות נְעוּרַי וּפְשָׁעַי אַל תִּזְכֹּר כְּחַסְדְּךָ זְכָר לִי אַתָּה לְמַעַן טוּבְךָ יי:חטוֹב וְיָשָׁר יי עַל כֵּן יוֹרֶה חַטָּאִים בַּדָּרֶךְ:טיַדְרֵךְ עֲנָוִים בַּמִּשְׁפָּט וִילַמֵּד עֲנָוִים דַּרְכּוֹ:יכָּל אָרְחוֹת יי חֶסֶד וֶאֱמֶת לְנֹצְרֵי בְרִיתוֹ וְעֵדֹתָיו:יאלְמַעַן שִׁמְךָ יי וְסָלַחְתָּ לַעֲוֹנִי כִּי רַב הוּא:יבמִי זֶה הָאִישׁ יְרֵא יי יוֹרֶנּוּ בְּדֶרֶךְ יִבְחָר:יגנַפְשׁוֹ בְּטוֹב תָּלִין וְזַרְעוֹ יִירַשׁ אָרֶץ:ידסוֹד יי לִירֵאָיו וּבְרִיתוֹ לְהוֹדִיעָם:טועֵינַי תָּמִיד אֶל יי כִּי הוּא יוֹצִיא מֵרֶשֶׁת רַגְלָי:טזפְּנֵה אֵלַי וְחָנֵּנִי כִּי יָחִיד וְעָנִי אָנִי:יזצָרוֹת לְבָבִי הִרְחִיבוּ מִמְּצוּקוֹתַי הוֹצִיאֵנִי:יחרְאֵה עָנְיִי וַעֲמָלִי וְשָׂא לְכָל חַטֹּאותָי:יטרְאֵה אוֹיְבַי כִּי רָבּוּ וְשִׂנְאַת חָמָס שְׂנֵאוּנִי:כשָׁמְרָה נַפְשִׁי וְהַצִּילֵנִי אַל אֵבוֹשׁ כִּי חָסִיתִי בָךְ:כאתֹּם וָיֹשֶׁר יִצְּרוּנִי כִּי קִוִּיתִיךָ:כבפְּדֵה אֱלֹהִים אֶת יִשְׂרָאֵל מִכֹּל צָרוֹתָיו:
נקרא  2  פעמים
למעלה