תכנון 'יחידה'

  • הוסף לסימניות
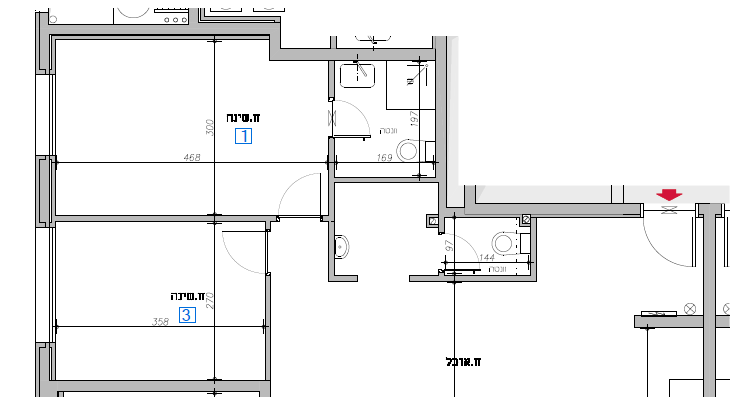
  • #1
אשמח לקבל חוו"ד דעת מקצועית
תודה
 

קבצים מצורפים

  • תכנון יחידה.png
    תכנון יחידה.png
    KB 72.4 · צפיות: 350
  • הוסף לסימניות
  • #2
לא אוהבת שהחדר המרכזי "סגור" בתוך חדר, הייתי מורידה את הדלת והקירות המיותרים, ומנסה להזיז את הדלת לחדר שינה שלא יהיה מול דלת הכניסה לבית, ואת מכונת הכביסה והמייבש מכניס לתוך ארון.
בהצלחה!
 
  • הוסף לסימניות
  • #4
יש שם הרבה מה לשפר גם בניצול מקום של מעברים וכו', וגם בחלל המרכזי כשמו שכתבו למעלה, שהוא סגור וכו'.
אני חושבת שכדאי לך לקחת אדריכלית/מעצבת שתמקסם לך את המקום וממילא את התשואה...
בהצלחה!
 
  • הוסף לסימניות
  • #7
קשה לתת חוו"ד מקצועית על תכנית חובבנית בביצועה.
וחסרים פה פרטים בסיסיים של תנאי השטח, הבסיס, הצרכים וכדו'
האם זהו שטח קיים שמנסים להמנע משינויים ככל הניתן?
האם יש דרישות/ מגבלות מסויימות?
 
  • הוסף לסימניות
  • #8
קשה לתת חוו"ד מקצועית על תכנית חובבנית בביצועה.
וחסרים פה פרטים בסיסיים של תנאי השטח, הבסיס, הצרכים וכדו'
האם זהו שטח קיים שמנסים להמנע משינויים ככל הניתן?
האם יש דרישות/ מגבלות מסויימות?
האם אפשר להזיז את דלת הכניסה לקיר אחר? (משמעותי מאד)
איפה היחידה בארץ? מה מקובל ביחידות דיור לזוגות באזור? מה ישדרג ויעלה את המחיר?
התכנון כרגע לא מיטיב עם השטח ולא מחמיא לו.
 
  • הוסף לסימניות
  • #9
תודה על הכל אני ינסה לשפץ ולהעלות שוב
אבל אני כן מעדיפה סלון ומטבח מרווח עם ספה, וחדר חמוד רק לשינה
 
  • הוסף לסימניות
  • #11
קשה לתת חוו"ד מקצועית על תכנית חובבנית בביצועה.
וחסרים פה פרטים בסיסיים של תנאי השטח, הבסיס, הצרכים וכדו'
האם זהו שטח קיים שמנסים להמנע משינויים ככל הניתן?
האם יש דרישות/ מגבלות מסויימות?
כמובן שיש גם רצון לחסוך בכסף, אחרי הכל זה יחידה שהולכים להוריד מבית בשביל שתניב
 
  • הוסף לסימניות
  • #13
ממש אהבתי את הכיוון אבל זה לשבור יותר קירות, מזה הפס האלכסוני הצהוב ששמת ??
את עוסקת בתחום ?
הקירות הצהובים אלו קירות חדשים ולא מדובר בשבירה של הרבה קירות, רק באמבטיה, הפס האלכסוני זה דלת כדי לסגור לחדר שינה, נותן כניסה מרווחת יותר למטבח, ולא, אני לא עוסקת בתחום באופן מקצועי בינתיים
 
  • הוסף לסימניות
  • #14
@נחמי עדיין לא ענית אם הקירות קיימים? אם האמבטיה קימת? אני מאמינה שהיעוץ שונה לקיים או לא קיים.
 
  • הוסף לסימניות
  • #15
ודאי שהקירות קיימים זה דירה חדשה מקבלן, הנה תמונת הבסיס
1622532588266.png
 
  • הוסף לסימניות
  • #16
מצרפת לך קשקוש שעלה בדעתי מייד,
הרעיון הוא - כניסה מרווחת ומזמינה (בפרט ביחידות, זה חשוב מאד) אין עניין להכנס לתוך מסדרון צר.
פינת ישיבה - מעלה את ערך היחידה ומאד קורצת לזוגות.
חלוקה ל2 אזורים - סלון - מטבח, וחדר שינה - אמבטיה.
בטוח לי שעם חשיבה מעמיקה יותר ניתן להוציא כאן הרבה אופציות, ואופצות טובות יותר.
סה"כ, נתוני השטח טובים, צריך רק לחשוב היטב על חלוקה שמיטיבה עם השטח.
חבל לוותר עליו.
לפרוג.jpg
 
  • הוסף לסימניות
  • #17
מצרפת לך קשקוש שעלה בדעתי מייד,
הרעיון הוא - כניסה מרווחת ומזמינה (בפרט ביחידות, זה חשוב מאד) אין עניין להכנס לתוך מסדרון צר.
פינת ישיבה - מעלה את ערך היחידה ומאד קורצת לזוגות.
חלוקה ל2 אזורים - סלון - מטבח, וחדר שינה - אמבטיה.
בטוח לי שעם חשיבה מעמיקה יותר ניתן להוציא כאן הרבה אופציות, ואופצות טובות יותר.
סה"כ, נתוני השטח טובים, צריך רק לחשוב היטב על חלוקה שמיטיבה עם השטח.
חבל לוותר עליו.
צפה בקובץ המצורף 899354
אבל חבל על האמבטיה הקיימת
גם אני הייתי מזיזה את הכניסה ליחידה : המסדרון לא מוסיף ליחידה ולוקחת מהדירה
 
  • הוסף לסימניות
  • #18
מאוד אהבתי את התכנית הראשונה שהעליתם
היא נראית מצויינת
ובלי הרבה בלגן של עבודה
אני הייתי נשאר איתה
 
  • הוסף לסימניות
  • #19
אפשרי כפי שתכננת
שימי לב לאופציה שהוספתי
כמובן שיש הרבה אפשרויות. זו אחת מהן ללא עיון מעמיק
אני התייחסתי לתוכנית שלך למעלה.
1. להוריד את הקיר האמצעי ואין צורך בדלת של המטבח( כמובן שתלוי בצרכים שלכם)
כך יש תחושה של יותר מרחב
לפי מה שראיתי לא קיים שם עמוד אבל יש לבדוק זאת שוב
2. להוסיף אחסון בצד שמאל של הדלת הראשית שאת מוסיפה בין40-60 ס"מ .עדיף 60
3.אין צורך בפרוזדור ארוך . אפשרי שדלת הכניסה תהיה היכן שדלת השירותים כיום
מצרפת קובץ לעיונך שבוצע בכמה דקות כדי להראות כיוון
WhatsApp Image 2021-06-01 at 17.14.32.jpeg
 
נערך לאחרונה ב:
  • הוסף לסימניות
  • #20
מצרפת לך קשקוש שעלה בדעתי מייד,
הרעיון הוא - כניסה מרווחת ומזמינה (בפרט ביחידות, זה חשוב מאד) אין עניין להכנס לתוך מסדרון צר.
פינת ישיבה - מעלה את ערך היחידה ומאד קורצת לזוגות.
חלוקה ל2 אזורים - סלון - מטבח, וחדר שינה - אמבטיה.
בטוח לי שעם חשיבה מעמיקה יותר ניתן להוציא כאן הרבה אופציות, ואופצות טובות יותר.
סה"כ, נתוני השטח טובים, צריך רק לחשוב היטב על חלוקה שמיטיבה עם השטח.
חבל לוותר עליו.
צפה בקובץ המצורף 899354
אבל את לוקחת לי שטח מהסלון, וגם מבטלת אמבטיה קיימת, ולגבי המסדרוןן אז בכל מקרה צריך שיהיה, כי אא"פ להכנס ליחידה מתוך הבית בעצמו צריך לקרב אותו לדלת הראשית ואז ליצור חלל
 

פרוגבוט

תוכן שיווקי
פרסומת

אשכולות דומים

הצטרפות לניוזלטר

איזה כיף שהצטרפתם לניוזלטר שלנו!

מעכשיו, תהיו הראשונים לקבל את כל העדכונים, החדשות, ההפתעות בלעדיות, והתכנים הכי חמים שלנו בפרוג!

לוח מודעות

הפרק היומי

הפרק היומי! כל ערב פרק תהילים חדש. הצטרפו אלינו לקריאת תהילים משותפת!


תהילים פרק כה

אלְדָוִד אֵלֶיךָ יי נַפְשִׁי אֶשָּׂא:באֱלֹהַי בְּךָ בָטַחְתִּי אַל אֵבוֹשָׁה אַל יַעַלְצוּ אֹיְבַי לִי:גגַּם כָּל קוֶֹיךָ לֹא יֵבֹשׁוּ יֵבֹשׁוּ הַבּוֹגְדִים רֵיקָם:דדְּרָכֶיךָ יי הוֹדִיעֵנִי אֹרְחוֹתֶיךָ לַמְּדֵנִי:ההַדְרִיכֵנִי בַאֲמִתֶּךָ וְלַמְּדֵנִי כִּי אַתָּה אֱלֹהֵי יִשְׁעִי אוֹתְךָ קִוִּיתִי כָּל הַיּוֹם:וזְכֹר רַחֲמֶיךָ יי וַחֲסָדֶיךָ כִּי מֵעוֹלָם הֵמָּה:זחַטֹּאות נְעוּרַי וּפְשָׁעַי אַל תִּזְכֹּר כְּחַסְדְּךָ זְכָר לִי אַתָּה לְמַעַן טוּבְךָ יי:חטוֹב וְיָשָׁר יי עַל כֵּן יוֹרֶה חַטָּאִים בַּדָּרֶךְ:טיַדְרֵךְ עֲנָוִים בַּמִּשְׁפָּט וִילַמֵּד עֲנָוִים דַּרְכּוֹ:יכָּל אָרְחוֹת יי חֶסֶד וֶאֱמֶת לְנֹצְרֵי בְרִיתוֹ וְעֵדֹתָיו:יאלְמַעַן שִׁמְךָ יי וְסָלַחְתָּ לַעֲוֹנִי כִּי רַב הוּא:יבמִי זֶה הָאִישׁ יְרֵא יי יוֹרֶנּוּ בְּדֶרֶךְ יִבְחָר:יגנַפְשׁוֹ בְּטוֹב תָּלִין וְזַרְעוֹ יִירַשׁ אָרֶץ:ידסוֹד יי לִירֵאָיו וּבְרִיתוֹ לְהוֹדִיעָם:טועֵינַי תָּמִיד אֶל יי כִּי הוּא יוֹצִיא מֵרֶשֶׁת רַגְלָי:טזפְּנֵה אֵלַי וְחָנֵּנִי כִּי יָחִיד וְעָנִי אָנִי:יזצָרוֹת לְבָבִי הִרְחִיבוּ מִמְּצוּקוֹתַי הוֹצִיאֵנִי:יחרְאֵה עָנְיִי וַעֲמָלִי וְשָׂא לְכָל חַטֹּאותָי:יטרְאֵה אוֹיְבַי כִּי רָבּוּ וְשִׂנְאַת חָמָס שְׂנֵאוּנִי:כשָׁמְרָה נַפְשִׁי וְהַצִּילֵנִי אַל אֵבוֹשׁ כִּי חָסִיתִי בָךְ:כאתֹּם וָיֹשֶׁר יִצְּרוּנִי כִּי קִוִּיתִיךָ:כבפְּדֵה אֱלֹהִים אֶת יִשְׂרָאֵל מִכֹּל צָרוֹתָיו:
נקרא  2  פעמים
למעלה