תכנון 'יחידה'

  • הוסף לסימניות
  • #21
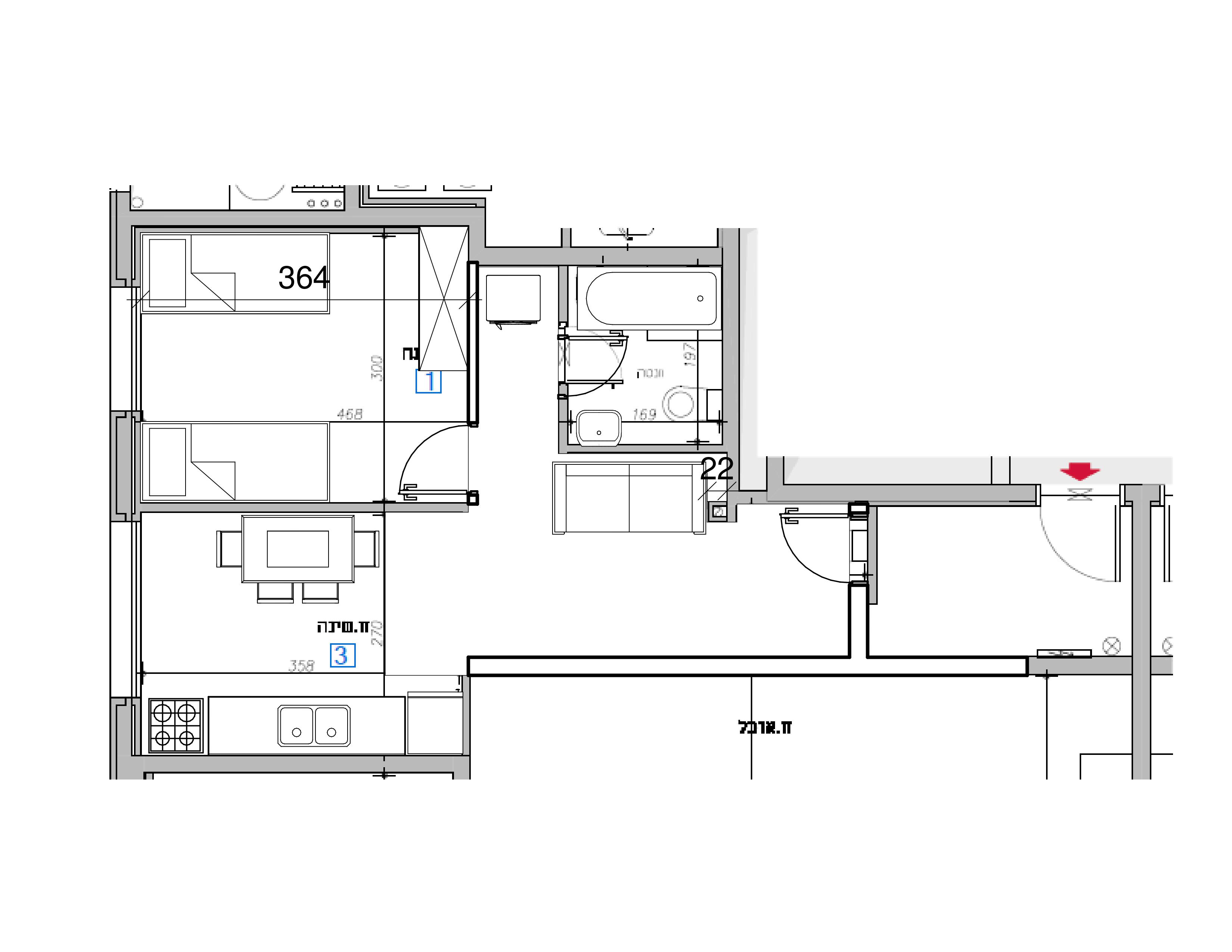
בשילוב כל העצות והרעיונות חשבתי ככה, ועכשיו צריכה גם עזרה בתכנון הכניסה לשתי הדירות והסתרת המטבח
1622562341645.png
 
  • הוסף לסימניות
  • #22
בשילוב כל העצות והרעיונות חשבתי ככה, ועכשיו צריכה גם עזרה בתכנון הכניסה לשתי הדירות והסתרת המטבח
צפה בקובץ המצורף 899648
מדהים, הפריע לי רק הגודל של האמבטיה, היא ממש גדולה, והמיקומים של הדלתות והסניטרי
מישהו יכול להסביר לי אחת ולתמיד למה בהרבה יחידות הגודל של האמבטיה ביחסיות ליחידה גדול בהרבה? יש סיבה לזה?
 
  • הוסף לסימניות
  • #23
בשילוב כל העצות והרעיונות חשבתי ככה, ועכשיו צריכה גם עזרה בתכנון הכניסה לשתי הדירות והסתרת המטבח
צפה בקובץ המצורף 899648
יקירתי
את בודקת מידות? מעברים?
חייב להיות מדוייקים ולבדוק לפי ס"מ כל פרט
קחי בחשבון לדוגמא שבשביל מכונת כביסה וייבוש אתצריכה לפחות עומק של 67 ס"מ
ושירותים לא יכולים להיות צמודים לאמבטיה,
כמו כן החלל כלל לא מנוצל וחבל ממש
חבל מאד ,
כמו שלא כל אחד יכול היות אינסטלטור כך לא כל אחד יכול לתכנן בית
לפי התכנון יהיה תמחור היחידה, הנוחות בה, הפרקטיקה
לא על מנת לפגוע חס ושלום אלא על מנת שלא יהיו טעויות
ואז קשה מאד יהיה לתקן
בהצלחה אהובה
 
  • הוסף לסימניות
  • #25
יקירתי
את בודקת מידות? מעברים?
חייב להיות מדוייקים ולבדוק לפי ס"מ כל פרט
קחי בחשבון לדוגמא שבשביל מכונת כביסה וייבוש אתצריכה לפחות עומק של 67 ס"מ
ושירותים לא יכולים להיות צמודים לאמבטיה,
כמו כן החלל כלל לא מנוצל וחבל ממש
חבל מאד ,
כמו שלא כל אחד יכול היות אינסטלטור כך לא כל אחד יכול לתכנן בית
לפי התכנון יהיה תמחור היחידה, הנוחות בה, הפרקטיקה
לא על מנת לפגוע חס ושלום אלא על מנת שלא יהיו טעויות
ואז קשה מאד יהיה לתקן
בהצלחה אהובה

לדעתי הפורום לא נועד כדי לשכנע לקוחות לקחת אדריכלית
מי שמרגיש בנוח לתכנן את הדירה לבד - זו בחירה שלו
ומי שרוצה לעזור - תבוא עליו ברכה

אני למשל תיכננתי את הדירה שלי לבד
בסוף הלכתי לשעת ייעוץ אצל אדריכלית
ולמעשה אני מרגיש מצויין עם הירה שתיכננתי
אני לא חושב שאדריכלית היתה מגיעה לזה
כי אני בסופו של דבר יודע הכי טוב מה הם הצרכים שלי

אנשים מבקשים עזרה
מי שמרגיש בנוח לעזור עזרה קטנה - שיתן מה שיש לו
זו דעתי
שאו ברכה
 
  • הוסף לסימניות
  • #26
לדעתי הפורום לא נועד כדי לשכנע לקוחות לקחת אדריכלית
מי שמרגיש בנוח לתכנן את הדירה לבד - זו בחירה שלו
ומי שרוצה לעזור - תבוא עליו ברכה

אני למשל תיכננתי את הדירה שלי לבד
בסוף הלכתי לשעת ייעוץ אצל אדריכלית
ולמעשה אני מרגיש מצויין עם הירה שתיכננתי
אני לא חושב שאדריכלית היתה מגיעה לזה
כי אני בסופו של דבר יודע הכי טוב מה הם הצרכים שלי

אנשים מבקשים עזרה
מי שמרגיש בנוח לעזור עזרה קטנה - שיתן מה שיש לו
זו דעתי
שאו ברכה
צודק מאה אחוז

אני אשמח לקבל כיוון לגבי הכניסה לבית.

וגם יש כזה דבר בלי אדריכלית? שאני יביא לקבלן את השרטוט?

ואם אדריכלית, מה העלות לתכנון כזאת יחידה ??
 
  • הוסף לסימניות
  • #28
צודק מאה אחוז

אני אשמח לקבל כיוון לגבי הכניסה לבית.

וגם יש כזה דבר בלי אדריכלית? שאני יביא לקבלן את השרטוט?

ואם אדריכלית, מה העלות לתכנון כזאת יחידה ??

לדעתי הפורום לא נועד כדי לשכנע לקוחות לקחת אדריכלית
מי שמרגיש בנוח לתכנן את הדירה לבד - זו בחירה שלו
ומי שרוצה לעזור - תבוא עליו ברכה

אני למשל תיכננתי את הדירה שלי לבד
בסוף הלכתי לשעת ייעוץ אצל אדריכלית
ולמעשה אני מרגיש מצויין עם הירה שתיכננתי
אני לא חושב שאדריכלית היתה מגיעה לזה
כי אני בסופו של דבר יודע הכי טוב מה הם הצרכים שלי

אנשים מבקשים עזרה
מי שמרגיש בנוח לעזור עזרה קטנה - שיתן מה שיש לו
זו דעתי
שאו ברכה
אני גם חשבתי ככה פעם, כיום אני בלימודים,
וחלק מהתפקיד, מהלימודים והעיסוק הוא להתאים את התכנון לצרכים שלכם,
בשינוי פנים תצטרכי לראות בכל מקרה תוכניות מהנדס בשביל לראות איזה קירות את יכולה לשבור, יכול להיות שימליצו לך לקחת מהנדס לביקור כדי להיות בטוחה,
את לא חייבת לקחת אדריכל אבל זה הבדל עצום וזועק בין מי שעושה לבד למי שלא, כי אדריכל שזה העיסוק היומיומי שלו שם לב לפרטים קטנים, לנוחות ולפונקציונאליות שאדם פרטי גם אם מכיר אותם לא שם לב, או לא מודע ביחידה יש גם את העניין של הבידוד האקוסטי, חשוב מאד!!!
ממליצה בכל פה לקחת קל יותר לבנות נכון מראש מלתקן דברים אחר כך
וגם אם לא לקחת קחי לפחות מישהו שישרטט מקצועי תוכניות עבודה
כי תוכנית כזו לא יכולה להגיע לקבלן, אלא אם כן את רוצה שהוא יבנה בערך ואיך שמתחשק לו
בהצלחה!!
(עזרה - בכיף! זה לא סותר!)
 
נערך לאחרונה ב:
  • הוסף לסימניות
  • #29
זה אומר שמהנדס חייבים ואדריכלית רק מומלץ ?

למי שיש עוד רעיונות לגבי הכניסה לדירה והמפגש עם המטבח אני ישמח שתעלה
 
  • הוסף לסימניות
  • #30
תשיגי מהחברה את התוכניות מהנדס, אי אפשר לשבור קירות בלי לדעת איפה יש עמוד קורה וכו' - זה סכנת נפשות
את צריכה גם מישהו שיראה אותם ויבין בהם ויגיד לך אם כדאי לך לקחת ביקור של מהנדס לפי מה שאני יודעת זה לא מאד יקר (כמה מאות שקלים לביקור)
אדריכל או מעצב פנים מרכז לך את כל זה ואחראי על הכל
יכול להיתקע לך עמוד באמצע קיר שתרצי לשבור ותצטרכי לשנות תוכניות
 
  • הוסף לסימניות
  • #31
זה אומר שמהנדס חייבים ואדריכלית רק מומלץ ?

למי שיש עוד רעיונות לגבי הכניסה לדירה והמפגש עם המטבח אני ישמח שתעלה

גם מהנדס - מומלץ, לא חייבים
בדרך כלל רואים איפה יש עמודים
והקבלן גם יודע לבדוק איפה יש ברזל וכו'

ליתר ביטחון - כן כדאי להביא מהנדס - משהו בסביבות 400 שח
 
  • הוסף לסימניות
  • #32
- הפנים של האמבטיה זה לא סופי, זה יהיה מושקע ומושלם ומפנק אל דאגה
-- אני מאוד אוהבת מרחב ושטח פתוח ככה שלא מפריע לי 'חללים בלתי מנוצלים' במיוחד
- כמה העלות בערך לאדריכלית ???
 
  • הוסף לסימניות
  • #33
- הפנים של האמבטיה זה לא סופי, זה יהיה מושקע ומושלם ומפנק אל דאגה
-- אני מאוד אוהבת מרחב ושטח פתוח ככה שלא מפריע לי 'חללים בלתי מנוצלים' במיוחד
- כמה העלות בערך לאדריכלית ???
יש כל מיני רמות לא בקיאה (עדיין) במחירים
יש הבדל גם ברמת הליווי שנותנים לך יכול להיות מבסיס של פגישת יעוץ, בדיקת קונסטרוקציה וזהו
ויכול להיות עד רמת בחירת החומרים לעיצוב יחד איתך,
ממליצה לך ללכת לפגישה או לברר מול אדריכלית מה האופציות והמחירים
הצלחות!!!!
אגב הפינוק לא קשור לפונקציונאליות במיוחד ביחידות הכל חייב להיות הכי נגיש ונח לשימוש בעולם!!
לא פעם מגלים אחרי הבניה שהמכונת כביסה לא נכנסת בדלת או שהמקום לאמבטיה חושב בלי הקרמיקות ולא נכנס בסוף ועוד על זו הדרך
מבטיחה שאני מפסיקה לשכנע בזאת!
(אני לא עובדת כרגע- תועלת לא תצמח לי מזה)
 
נערך לאחרונה ב:
  • הוסף לסימניות
  • #35
לדעתי הפורום לא נועד כדי לשכנע לקוחות לקחת אדריכלית
מי שמרגיש בנוח לתכנן את הדירה לבד - זו בחירה שלו
ומי שרוצה לעזור - תבוא עליו ברכה

אני למשל תיכננתי את הדירה שלי לבד
בסוף הלכתי לשעת ייעוץ אצל אדריכלית
ולמעשה אני מרגיש מצויין עם הירה שתיכננתי
אני לא חושב שאדריכלית היתה מגיעה לזה
כי אני בסופו של דבר יודע הכי טוב מה הם הצרכים שלי

אנשים מבקשים עזרה
מי שמרגיש בנוח לעזור עזרה קטנה - שיתן מה שיש לו
זו דעתי
שאו ברכה
גם מהנדס - מומלץ, לא חייבים
בדרך כלל רואים איפה יש עמודים
והקבלן גם יודע לבדוק איפה יש ברזל וכו'

ליתר ביטחון - כן כדאי להביא מהנדס - משהו בסביבות 400 שח
איך אתה יכול לקחת אחריות על דברים כל כך בעלי חשיבות????
את תישא בנזקים?
אתה תלך לשלם לה על תיקון של טעויות?
ויותר מזה : על סיכון חיים?
צריך פרופורציה
מה זה כסף לעומת חיים?


בדרך כלל אני לא נכנסת לפורומים האלה
במקרה נכנסתי כדי לעזור
גם אם היו משלמים לי מיליון דולר עם כל הכבוד לא הייתי עושה את הפרויקט הזה.
לא חסר כסף ב"ה ולא חסר לקוחות
ד' זן ומפרנס

מה שכתבתי נכתב מתוך רצון לעזור נטו
מי שלוקח את זה לכל מיני מחשבות של לשכנע שיהיה לו לבריאות
אנחנו כאן לכוון
ובכיף רשמתי את דעתי באשכול ושרטטתי כיוון באהבה
אך אני לא אקח אחריות כל כך גדולה באשכול לאשר תוכנית שאדם תכנן לבד
ושוב
מתוך אחריות ועזרה ולא , אני ממש לא משכנעת לקחת אדריכלית או לא
מצידי שכל מי שיכול שיתכנן את הבית שלו.
זכותי לרשום כך בתור בעלת מקצוע שראיתי במו עיני אנשים שבוכים על טעויות שעשו.

בכך אני סיימתי את דברי
 
  • הוסף לסימניות
  • #36
מצטרפת לכל מילה של @R.H. DESIGN !
בכל אופן, מצרפת לך עוד כיוון מחשבה של סקיצה ראשונית לגמרי, לא לביצוע בלי התאמה מלאה של משהי מקצועית!!!! לטובתך...
ניסיתי מה שפחות הזזת קירות וסניטרים, לא בטוח שמצדיק..
0001.jpg
 
  • הוסף לסימניות
  • #37
יש אפשרות להזיז את הדלת הראשית לכאן? ואז אתם תצאו עם מבואה ומקום לארון מעילים/עגלה וליחידה לא יהיה שביל בכניסה:
1622614243603.png
 
  • הוסף לסימניות
  • #38
-
-- אני מאוד אוהבת מרחב ושטח פתוח ככה שלא מפריע לי 'חללים בלתי מנוצלים' במיוחד

את סותרת את עצמך, כי אם את אוהבת מרחב ושטח פתוח - חללים בלתי מנוצלים לא יעשו את זה, למשל אם כל המבואה לא יהיה מחובר לסלון לא יווצר כאן תחושת מרחב, אבל כן יהיו נישות שגם הם נחמדים וחשובים אבל תחושת מרחב יותר חשוב
 
נערך לאחרונה ב:
  • הוסף לסימניות
  • #39
איך אתה יכול לקחת אחריות על דברים כל כך בעלי חשיבות????
את תישא בנזקים?
אתה תלך לשלם לה על תיקון של טעויות?
ויותר מזה : על סיכון חיים?
צריך פרופורציה
מה זה כסף לעומת חיים?


בדרך כלל אני לא נכנסת לפורומים האלה
במקרה נכנסתי כדי לעזור
גם אם היו משלמים לי מיליון דולר עם כל הכבוד לא הייתי עושה את הפרויקט הזה.
לא חסר כסף ב"ה ולא חסר לקוחות
ד' זן ומפרנס

מה שכתבתי נכתב מתוך רצון לעזור נטו
מי שלוקח את זה לכל מיני מחשבות של לשכנע שיהיה לו לבריאות
אנחנו כאן לכוון
ובכיף רשמתי את דעתי באשכול ושרטטתי כיוון באהבה
אך אני לא אקח אחריות כל כך גדולה באשכול לאשר תוכנית שאדם תכנן לבד
ושוב
מתוך אחריות ועזרה ולא , אני ממש לא משכנעת לקחת אדריכלית או לא
מצידי שכל מי שיכול שיתכנן את הבית שלו.
זכותי לרשום כך בתור בעלת מקצוע שראיתי במו עיני אנשים שבוכים על טעויות שעשו.

בכך אני סיימתי את דברי

כל מילה!

ואם כבר מדברים על כסף,
סתם שאלה..
כמה אתם הולכים להשקיע בפרויקט?
וכמה תעלה לכם אדריכלית?..
כל סכום נחשב, זה בטוח.
אבל תחשבו שנייה כמה יעלה לכם לתקן או לשנות תוך כדי תנועה.
וכמה הקבלן יוכל לעבוד עליכם ולהוסיף עוד דרישות תשלום
כשלא ברור לו מה "בדיוק" הוא צריך לעשות.

במיוחד כשמדברים על דירות להשקעה.
התמורה שתקבלו עבור הנכס
גם כשזה תכנון בסיסי ותכניות עבודה.
תיהיה גבוהה יותר. ופחות תחלופה.
זה פשוט ימכור את עצמו!

ללא קשר שמי שיכול לעזור בפורום עוזר בשמחה!
אך זה לא באמת תחליף לתכנון מדוייק.
 
  • הוסף לסימניות
  • #40
אני רוצה להבהיר את דברי

אני מסכים לגמרי שבדרך כלל מומלץ לקחת אדריכלית
וזה עשוי לחסוך הרבה זמן, וכאב ראש, וגם הרבה כסף ועגמת נפש

אני מסכים גם שהשכר שהאדריכליות לוקחות
הוא מוצדק ושווה את התמורה בדרך כלל

עם זאת
אין תחליף לעבודה שהלקוח - קרי בעל הדירה - אמור לעשות
ז"א להרגיש את השטח , לדמיין את עצמו בדירה
ואיך אפשר למקסם את השטח - לצרכים שלו
אף אחד אחר לא באמת יכול להגיע למקסימום הבנה - יותר מהלקוח עצמו
וזה תהליך שלוקח זמן
לכן אני כן ממליץ לאנשים: שבו עם עצמכם
ותתחילו להרגיש את התכנית
וגם אחרי שהולכים לאדריכלית
אי אפשר לסמוך עליה בעיניים עצומות
כי היא יכולה להיות אלופה ומקצועית
אבל באמת לדעת מה אני צריך - רק אני יכול

ומישהו שמעלה לפורום תכניות כאלו
בסך הכל רוצה לקבל עוד רעיונות כדי "להתבשל" יותר
ולזה נועד הפורום לעזור ברעיונות ובעצות

אם היא היתה שואלת
האם ללכת לאדריכלית או לעשות תכנית לבד
אני מבין שכל אחד יגיד את דעתו
אבל היא מבקשת רעיונות לתכנית - זה הכל
ולא צריך להחליש את רוחה ש"היא בכלל לא מבינה
ואין לה בכלל יכולת לחשוב על תכניות " .....

זה כל מה שהתכוונתי להגיד
וכשיפתחו נושא האם ללכת לאדריכלית או לעשות תכניות לבד
אני יגיד את דעתי המורחבת בעניין

תודה ובהצלחה לכולם
 

פרוגבוט

תוכן שיווקי
פרסומת

אשכולות דומים

הצטרפות לניוזלטר

איזה כיף שהצטרפתם לניוזלטר שלנו!

מעכשיו, תהיו הראשונים לקבל את כל העדכונים, החדשות, ההפתעות בלעדיות, והתכנים הכי חמים שלנו בפרוג!

לוח מודעות

הפרק היומי

הפרק היומי! כל ערב פרק תהילים חדש. הצטרפו אלינו לקריאת תהילים משותפת!


תהילים פרק כה

אלְדָוִד אֵלֶיךָ יי נַפְשִׁי אֶשָּׂא:באֱלֹהַי בְּךָ בָטַחְתִּי אַל אֵבוֹשָׁה אַל יַעַלְצוּ אֹיְבַי לִי:גגַּם כָּל קוֶֹיךָ לֹא יֵבֹשׁוּ יֵבֹשׁוּ הַבּוֹגְדִים רֵיקָם:דדְּרָכֶיךָ יי הוֹדִיעֵנִי אֹרְחוֹתֶיךָ לַמְּדֵנִי:ההַדְרִיכֵנִי בַאֲמִתֶּךָ וְלַמְּדֵנִי כִּי אַתָּה אֱלֹהֵי יִשְׁעִי אוֹתְךָ קִוִּיתִי כָּל הַיּוֹם:וזְכֹר רַחֲמֶיךָ יי וַחֲסָדֶיךָ כִּי מֵעוֹלָם הֵמָּה:זחַטֹּאות נְעוּרַי וּפְשָׁעַי אַל תִּזְכֹּר כְּחַסְדְּךָ זְכָר לִי אַתָּה לְמַעַן טוּבְךָ יי:חטוֹב וְיָשָׁר יי עַל כֵּן יוֹרֶה חַטָּאִים בַּדָּרֶךְ:טיַדְרֵךְ עֲנָוִים בַּמִּשְׁפָּט וִילַמֵּד עֲנָוִים דַּרְכּוֹ:יכָּל אָרְחוֹת יי חֶסֶד וֶאֱמֶת לְנֹצְרֵי בְרִיתוֹ וְעֵדֹתָיו:יאלְמַעַן שִׁמְךָ יי וְסָלַחְתָּ לַעֲוֹנִי כִּי רַב הוּא:יבמִי זֶה הָאִישׁ יְרֵא יי יוֹרֶנּוּ בְּדֶרֶךְ יִבְחָר:יגנַפְשׁוֹ בְּטוֹב תָּלִין וְזַרְעוֹ יִירַשׁ אָרֶץ:ידסוֹד יי לִירֵאָיו וּבְרִיתוֹ לְהוֹדִיעָם:טועֵינַי תָּמִיד אֶל יי כִּי הוּא יוֹצִיא מֵרֶשֶׁת רַגְלָי:טזפְּנֵה אֵלַי וְחָנֵּנִי כִּי יָחִיד וְעָנִי אָנִי:יזצָרוֹת לְבָבִי הִרְחִיבוּ מִמְּצוּקוֹתַי הוֹצִיאֵנִי:יחרְאֵה עָנְיִי וַעֲמָלִי וְשָׂא לְכָל חַטֹּאותָי:יטרְאֵה אוֹיְבַי כִּי רָבּוּ וְשִׂנְאַת חָמָס שְׂנֵאוּנִי:כשָׁמְרָה נַפְשִׁי וְהַצִּילֵנִי אַל אֵבוֹשׁ כִּי חָסִיתִי בָךְ:כאתֹּם וָיֹשֶׁר יִצְּרוּנִי כִּי קִוִּיתִיךָ:כבפְּדֵה אֱלֹהִים אֶת יִשְׂרָאֵל מִכֹּל צָרוֹתָיו:
נקרא  2  פעמים
למעלה