קבוצת אדריכלות ועיצוב פנים

פורום הבית של קבוצת עיצוב פנים של פרוג המאגד אנשי המקצוע מתחום האדריכלות, עיצוב הפנים, תכנון ובניה והום סטילינג.
מנהלות הקבוצה: רותי וינברג, חדוי פלבני, לינוי אלקין
להצטרפות לקהילת אדריכלות ועיצוב פנים, לחצו כאן ←

אדריכלות ועיצוב פנים >> תוכן מקצועי

תיקי עבודות של הדמיות אדריכליות >> העבודות האחרונות, תהנו!

וילה ניו-יורקית
חדר שינה Master | שילוב חומרים וטקסטורות
שלום לכל האדריכלים , אשמח ממש לעזרתכם:

אנחנו גרים בדירת קומת כניסה בירושלים.

כל הבניין עשה שינוי תב”ע המאפשר הרחבה לקומה הקיימת, וכן לקומות ראשונות (כמוני) מגיע גם בניה מתחת לדירה, שתשמש את דיירי הבית בלבד (לא יחידה, סוג של קומת מחסן) . חלק מהבנייה כוללת ממ”ד.

אחרי הצעות מחיר מקבלן ובגלל העלויות האסטרונומיות של בניית יסודות ממ”ד , חפירות וכו’ אנחנו לא מעוניינים בכלל לבנות את הקומה התחתונה, אלא רק להוציא עמודים/ רלסים ולהרחיב את הקומה הקיימת.

מבחינת בנייה- הקבלן אמר שהדבר אפשרי, השאלה מה מבחינת החוק והרשות.

השאלות שלי: האם בשינוי תב”ע העירייה תאפשר לי להרחיב רק את הקומה שלי ללא בניית היסודות והקומה התחתונה?

2. לאור העובדה שמדובר בשינוי תבע הכולל ממ”ד, האם העירייה תאפשר לי להרחיב באופן רגיל ללא ממ”ד? (אני הרי לא מעוניינת בחפירות ויסודות ממ”ד) או שבגלל שהקומות העליונות נשענות עלי הם חייבות תשתיות של יסודות לממ”ד?

ממש מודה ומעריכה את הקדשת הזמן לענות לי ולסייע!
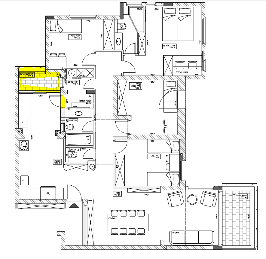
מצ"ב תכנון לדירה
בעבר העלתי את החלק של היחידת הורים , קיבלנו כמה רעיונות - עזר לנו לחשיבה מחודשת אבל החלטנו להישאר עם הסקיצה הזו כי חשוב לנו מראה גדול של חדר , אמבטיה ופינת עבודה שתשמש לפינה עם כורסאות כשנחליט... (הפינת עבודה מסומנת כתחומה אבל היא לא תחומה , ולא בגודל הזה , והארון שמצוייר יהיה קטן ונועד להסוות את הפינה)


כמה שאלות
החדר שירות אחרי האמבטיה כי המבנה שלו עם עמודים לכן לא מסתדר שיהיה שם אמבטיה ,
לאמבטיה יש חלון עליון לחדר שירות,
ולחדר שירות חלון לשטח בסוף המטבח - שוקלים להפוך אותו למרפסונת (ישמש תליית כביסה החוצה ובגשם בתוכו , מקום למגב , מטאטא וכו, מקפיא). האם זה נכון?????
מתלבטת האם להוסיף דלת מהחדר שירות למטבח. האם זה נכון????
מצד אחד זה נוח ומאפשר גישה ישירה לתליית כביסה ואפילו מעבר לחדרים
מצד שני בשטח הזה מצד המטבח אולי יותר נכון לשים פינת ישיבה?
איך הייתם מתכננים את המטבח???
אני בשלב של תכנון המטבח ואשמח לקבל רעיונות.
חשוב לי מטבח כמה שיותר מואר , מאוורר ופתוח בעין - עד כמה שאפשר

עוד נקודה
לגבי הארון מעילים
זה לא יקטין מאוד את הכניסה לבית? מה הייתם מציעים?

יעזור לנו מאוד !!!!

1737414189884.png
אני מתלבטת איפה נכון למקם רובוט שואב.
מצורפת תמונה של חלק מהמסדרון, שירותי אורחים וחדר שירות. בפינה שליד חדר השירות אמור להיות ארון שירות (מסומן באדום). הוא לא ממש קרוב לחלל הציבורי אבל רואים אותו משם.
יש לי רובוט שואב שאני מחפשת לו מקום, ואני רוצה לעשות הכנה גם ליום שבו נרצה להחליף אותו ברובוט שואב-שוטף שמחובר ישירות למים וניקוז.
האפשרויות שחשבתי עליהן הן כאלו:
1) בשירותי אורחים, מתחת לארון הכיור, צמוד לקיר שבו הדלת.
2) להשאיר את הצד השמאלי התחתון של ארון השירות פתוח (חור בארון).
3) להסתפק בארון צר יותר ולשים את הרובוט לידו.
השטח שתופס הרובוט הוא כ-40 על 40 ס"מ. הרובוט הנוכחי נמוך, רובוט שואב-שוטף שמחובר לניקוז הוא בערך בגובה 30-40 ס"מ, ובלי חיבור לניקוז משהו כמו 50-90.
מה דעתכם, מבחינה פרקטית ואסתטית?
אפשרות 2 היתה הרעיון המקורי אבל אני לא שלמה איתו מבחינה אסתטית. אפשרות 3 תיצור "מדרגה" במסדרון אז גם נראה לי פחות מוצלח אסתטית. לוותר לגמרי על ארון השירות לא ממש בא בחשבון.

אני נוטה לאפשרות 1. נראה לי שהשטח שזה יתפוס לא יפריע לתפקוד של השירותים - אני טועה?

מבחינה קונספטואלית אולי קצת מוזר לפגוש מכשיר כזה בשירותים. אני מתלבטת אם זה יהרוס את היופי - דווקא בגלל ששירותי האורחים יהיו פחות בשימוש יום-יומי, ויהיו בהם פחות חפצים, חשבתי שזה המקום להשקיע בעיצוב. אבל מצד שני זה לא משהו שיראו אותו מהחלל הציבורי, והעמדות של הרובוטים החדשים מעוצבות בצורה די נקיה, ככה שבפני עצמו זה לא משהו מכוער מדי.
בחדר השירות אני לא רואה אפשרות פרקטית לשים את הרובוט בלי שהוא יפריע לתפקוד, גם ככה די צפוף שם.



1737311650978.png

הצטרפות לניוזלטר

איזה כיף שהצטרפתם לניוזלטר שלנו!

מעכשיו, תהיו הראשונים לקבל את כל העדכונים, החדשות, ההפתעות בלעדיות, והתכנים הכי חמים שלנו בפרוג!

לוח מודעות

הפרק היומי

הפרק היומי! כל ערב פרק תהילים חדש. הצטרפו אלינו לקריאת תהילים משותפת!


תהילים פרק כה

אלְדָוִד אֵלֶיךָ יי נַפְשִׁי אֶשָּׂא:באֱלֹהַי בְּךָ בָטַחְתִּי אַל אֵבוֹשָׁה אַל יַעַלְצוּ אֹיְבַי לִי:גגַּם כָּל קוֶֹיךָ לֹא יֵבֹשׁוּ יֵבֹשׁוּ הַבּוֹגְדִים רֵיקָם:דדְּרָכֶיךָ יי הוֹדִיעֵנִי אֹרְחוֹתֶיךָ לַמְּדֵנִי:ההַדְרִיכֵנִי בַאֲמִתֶּךָ וְלַמְּדֵנִי כִּי אַתָּה אֱלֹהֵי יִשְׁעִי אוֹתְךָ קִוִּיתִי כָּל הַיּוֹם:וזְכֹר רַחֲמֶיךָ יי וַחֲסָדֶיךָ כִּי מֵעוֹלָם הֵמָּה:זחַטֹּאות נְעוּרַי וּפְשָׁעַי אַל תִּזְכֹּר כְּחַסְדְּךָ זְכָר לִי אַתָּה לְמַעַן טוּבְךָ יי:חטוֹב וְיָשָׁר יי עַל כֵּן יוֹרֶה חַטָּאִים בַּדָּרֶךְ:טיַדְרֵךְ עֲנָוִים בַּמִּשְׁפָּט וִילַמֵּד עֲנָוִים דַּרְכּוֹ:יכָּל אָרְחוֹת יי חֶסֶד וֶאֱמֶת לְנֹצְרֵי בְרִיתוֹ וְעֵדֹתָיו:יאלְמַעַן שִׁמְךָ יי וְסָלַחְתָּ לַעֲוֹנִי כִּי רַב הוּא:יבמִי זֶה הָאִישׁ יְרֵא יי יוֹרֶנּוּ בְּדֶרֶךְ יִבְחָר:יגנַפְשׁוֹ בְּטוֹב תָּלִין וְזַרְעוֹ יִירַשׁ אָרֶץ:ידסוֹד יי לִירֵאָיו וּבְרִיתוֹ לְהוֹדִיעָם:טועֵינַי תָּמִיד אֶל יי כִּי הוּא יוֹצִיא מֵרֶשֶׁת רַגְלָי:טזפְּנֵה אֵלַי וְחָנֵּנִי כִּי יָחִיד וְעָנִי אָנִי:יזצָרוֹת לְבָבִי הִרְחִיבוּ מִמְּצוּקוֹתַי הוֹצִיאֵנִי:יחרְאֵה עָנְיִי וַעֲמָלִי וְשָׂא לְכָל חַטֹּאותָי:יטרְאֵה אוֹיְבַי כִּי רָבּוּ וְשִׂנְאַת חָמָס שְׂנֵאוּנִי:כשָׁמְרָה נַפְשִׁי וְהַצִּילֵנִי אַל אֵבוֹשׁ כִּי חָסִיתִי בָךְ:כאתֹּם וָיֹשֶׁר יִצְּרוּנִי כִּי קִוִּיתִיךָ:כבפְּדֵה אֱלֹהִים אֶת יִשְׂרָאֵל מִכֹּל צָרוֹתָיו:
נקרא  2  פעמים
למעלה