חוו״ד - עיצוב מטבח

  • פותח הנושא dem
  • פורסם בתאריך
  • הוסף לסימניות
  • #1
פירסמתי בטעות (?) בפורום בניה ושיפוצים.
הייתי שמחה לשמוע מה חושבים פה על התכנון. ואולי יש טיפים / עיצות מניסיון
---רגע לפני ששולחים את התכנית לנגר.
צפה בקובץ המצורף 224777
תודה רבה ושבוע טוב :)
 

קבצים מצורפים

  • unnamed (1).png
    KB 40 · צפיות: 70
  • הוסף לסימניות
  • #2
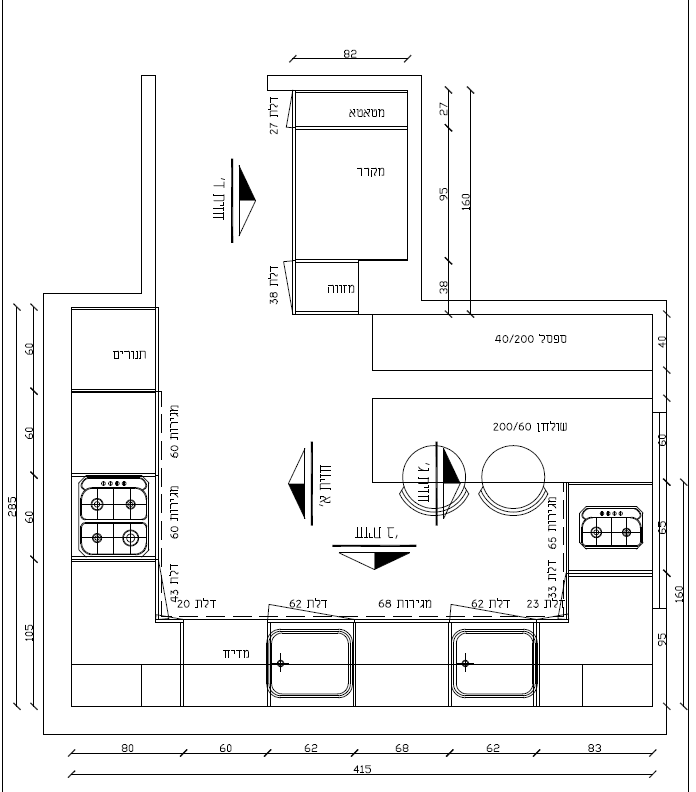
'מלמעלה' התכנון נראה בסדר, למרות שאין כאן מידות כלליות של המטבח.

מה שכן, תנסו להזיז את המקרר ימינה/שמאלה יותר וכך תקבלו מזווה של 60-65 ס"מ
ולא 2 ארונות צרים.

אגב, מה רוחב הכניסה למטבח?
צריך לבדוק שיהיה מספיק מקום לפתיחת דלת המקרר(אחרת המעבר ייחסם כל פעם
שיפתחו את המקרר)

בהצלחה!
 
  • הוסף לסימניות
  • #3
ממבט ראשון (ובשעה זו...) גם לי הפריע מיד המיקום של המקרר בכניסה.
(לגבי המגיבה מעלי- א"א להזיז את המקרר ימינה- יש שם קיר...)
הקלפות- למה אחת 95 ואחת 90? גם 5 ס"מ הבדל זה בולט בעין!
כדאי שתצייני מידות כלליות של המטבח ומרחקים מהפינת אוכל לשיש.
 
  • הוסף לסימניות
  • #4
אופס..
עכשיו אני רואה.

טוב, מה לעשות? השעה... :)
 
  • הוסף לסימניות
  • #5
אם יש שם גם תנור חלבי, הוא די רחוק מהחלק החלבי שבמטבח, במצבים כאלו מקובל לעשות בין הכיורים שיש מוגבה במקצת כששם יהיה תנור חלבי, כך גם יש הפרדה יפה בין החלבי לבשרי, ולא סתם קרש שיש, גם מעצב מאד את המראה הכללי של המטבח (הרבה עושים גם כנ"ל בארונות למעלה, שאותו חלק גם עולה כלפי מעלה בגובה זהה), בעוד מספר ימים אוכל אולי לצרף תמונה להמחשה.
המקום גם יתאים לתמי-4 או דברים מהסוג הזה, או סתם פרחים או פינת קפה מעוצבת...
בהצלחה!
 
  • הוסף לסימניות
  • #6
תודה רבה לכולם על התגובות!

נכתב ע"י shיפי;1511741:
'מלמעלה' התכנון נראה בסדר, למרות שאין כאן מידות כלליות של המטבח.

מה שכן, תנסו להזיז את המקרר ימינה/שמאלה יותר וכך תקבלו מזווה של 60-65 ס"מ
ולא 2 ארונות צרים.

אגב, מה רוחב הכניסה למטבח?
צריך לבדוק שיהיה מספיק מקום לפתיחת דלת המקרר(אחרת המעבר ייחסם כל פעם
שיפתחו את המקרר)

בהצלחה!

אכן המקרר עלול קצת להפריע. אבל חשבנו על מקרר בעל 2 דלתות כך שהפתיחה לא תחסום את כל המעבר (מקווה...) אם יש לך רעיון אחר איך לסדר את המעבר הזה - אשמח לשמוע.

נכתב ע"י 100ZEVET;1511748:
ממבט ראשון (ובשעה זו...) גם לי הפריע מיד המיקום של המקרר בכניסה.
(לגבי המגיבה מעלי- א"א להזיז את המקרר ימינה- יש שם קיר...)
הקלפות- למה אחת 95 ואחת 90? גם 5 ס"מ הבדל זה בולט בעין!
כדאי שתצייני מידות כלליות של המטבח ומרחקים מהפינת אוכל לשיש.

תודה. את צודקת בקשר לקלאפות, אני אשאל. נראה לי שמצוינות שם מידות למטה?

נכתב ע"י תלמידים;1511761:
אם יש שם גם תנור חלבי, הוא די רחוק מהחלק החלבי שבמטבח, במצבים כאלו מקובל לעשות בין הכיורים שיש מוגבה במקצת כששם יהיה תנור חלבי, כך גם יש הפרדה יפה בין החלבי לבשרי, ולא סתם קרש שיש, גם מעצב מאד את המראה הכללי של המטבח (הרבה עושים גם כנ"ל בארונות למעלה, שאותו חלק גם עולה כלפי מעלה בגובה זהה), בעוד מספר ימים אוכל אולי לצרף תמונה להמחשה.
המקום גם יתאים לתמי-4 או דברים מהסוג הזה, או סתם פרחים או פינת קפה מעוצבת...
בהצלחה!

נשמע רעיון מוצלח, אכן מפריע לנו השטח ה"מת" בין חלבי לבשרי, אבל לא הבנתי מה אתה מציע. לחלק את השיש ל2 ולשים ארון באמצע עם תנור? אשמח לראות דוגמא.

תודה שוב ואשמח לשמוע עוד תגובות!
 
  • הוסף לסימניות
  • #7
תכנית יפה,
האם על השיש בפינות יש ארונות של 50 ס"מ? זה לא כ"כ ברור מהתכנית, פינה בשיש היא אזור עבודה נהדר (בשונה מפינה בארון שהיא בעייתית מאד וקשה לפתירה שימושית), חבל לסגור אותה בארונות.
לגבי הכיורים- המשטח ביניהם הוא כלל לא שטח 'מת', הוא שטח עזר נהדר בשעת רחיצת כלים, בישול וכדו', כמובן שיש להזהר מהנחת דברים חמים עליו, או רק 'פרווה' שלא יהיה טרף, לא הייתי ממליצה להגביה את המשטח עבור תנור, מה גם שתנור חד תאי נכנס מתחת שיש בגובה סטנדרטי, רק בשביל העיצוב לא הייתי מספידה שטח כה יעיל (גם עיצובית- נתון בספק ובטעם אישי...)
חשבתם גם על אופציה של כיורים צמודים? אמנם עיצובית מתקבלת תוצאה קצת פחות יפה, אבל אתם מרוויחים משני צידי הכיורים משטחים ארוכים ורציפים יותר.
מעניין באמת לראות את מידות השולחן והספסל עם המעברים שם.

אבל שוב- התכנית מקסימה ומנצלת!!
 
  • הוסף לסימניות
  • #8
נראה שרצית לסדר את המטבח שצד שמאל וצד ימין יתאימו.אבל יש בזה חסרונות.
1. השיש ה"מת" בין 2 הכיורים.כמו שציינו קודמותי.
2 מפריע לי שיש הרבה מקום לשיש בשרי אחד ישר ונוח לעבודה.ואת חילקת אותו לכמה חלקים. כמו כן בכל מקרה מקרר בתחילת מטבח הוא לרוב חסרון.אלא א"כ ממש אין ברירה. אני הייתי חושבת בתחילת המטבח שיהיו ארונות גבוהים כמו מזווה/ארונות פסח.שהחזית שלהם תהיה יפה ומעניינת. בהתאם לכניסה. ואת המטבח מסדרת בצורה שונה.
3. פינת האוכל קצת ב"עונש".
4. תנסי לחשוב על מטבח לא בצורת ר. כדי לא להפסיד 2 פינות. אולי מקרר וחלבי היכן שמיקמת פינת אוכל. ואת הפינת אוכל תנסי לשים בקיר ממול.
 
  • הוסף לסימניות
  • #9
נכתב ע"י revrut;1511931:
תכנית יפה,
האם על השיש בפינות יש ארונות של 50 ס"מ? זה לא כ"כ ברור מהתכנית, פינה בשיש היא אזור עבודה נהדר (בשונה מפינה בארון שהיא בעייתית מאד וקשה לפתירה שימושית), חבל לסגור אותה בארונות.
לגבי הכיורים- המשטח ביניהם הוא כלל לא שטח 'מת', הוא שטח עזר נהדר בשעת רחיצת כלים, בישול וכדו', כמובן שיש להזהר מהנחת דברים חמים עליו, או רק 'פרווה' שלא יהיה טרף, לא הייתי ממליצה להגביה את המשטח עבור תנור, מה גם שתנור חד תאי נכנס מתחת שיש בגובה סטנדרטי, רק בשביל העיצוב לא הייתי מספידה שטח כה יעיל (גם עיצובית- נתון בספק ובטעם אישי...)
חשבתם גם על אופציה של כיורים צמודים? אמנם עיצובית מתקבלת תוצאה קצת פחות יפה, אבל אתם מרוויחים משני צידי הכיורים משטחים ארוכים ורציפים יותר.
מעניין באמת לראות את מידות השולחן והספסל עם המעברים שם.

אבל שוב- התכנית מקסימה ומנצלת!!

תודה! האמת שבסוף כן חשבתי על תנור דו תאי גם לחלבי. אני אנסה לחשוב איפה עוד אפשר להכניס אותו. בקשר לפינות בשיש, מעניין מה שאת אומרת, כי תמיד חשבתי שאם אין ארון (תריס או משהו דומה) שאפשר לאחסן שם דברים כבדים כגון מיקסר ומעבד מזון אז אין שימוש לפינות. כי הרי הפינה קצת רחוקה מדי בשביל עבודה על השיש. אבל עכשיו כשאני חושבת על זה שוב, יכול להיות שאת צודקת. את חושבת שאפשרי לעשות כזה ארון רק בצד אחד? או שזה לא יהיה סימטרי? (כי כן חשוב לי מקום להנ"ל וגם חשוב מקום עבודה מרווח)
כיורים צמודים, אני לא בדיוק הבנתי מה ההלכה למעשה, אבל כנראה שבעלי מדי שמרני בשביל זה :)
צירפתי תוכנית עם יותר מידות.

נכתב ע"י עיצוב קונקט;1511942:
נראה שרצית לסדר את המטבח שצד שמאל וצד ימין יתאימו.אבל יש בזה חסרונות.
1. השיש ה"מת" בין 2 הכיורים.כמו שציינו קודמותי.
2 מפריע לי שיש הרבה מקום לשיש בשרי אחד ישר ונוח לעבודה.ואת חילקת אותו לכמה חלקים. כמו כן בכל מקרה מקרר בתחילת מטבח הוא לרוב חסרון.אלא א"כ ממש אין ברירה. אני הייתי חושבת בתחילת המטבח שיהיו ארונות גבוהים כמו מזווה/ארונות פסח.שהחזית שלהם תהיה יפה ומעניינת. בהתאם לכניסה. ואת המטבח מסדרת בצורה שונה.
3. פינת האוכל קצת ב"עונש".
4. תנסי לחשוב על מטבח לא בצורת ר. כדי לא להפסיד 2 פינות. אולי מקרר וחלבי היכן שמיקמת פינת אוכל. ואת הפינת אוכל תנסי לשים בקיר ממול.

תודה על התגובה. בקשר למקרר, האפשרות היחידה היא כמו שאתה אומר לשים את זה במקום הספסל והשולחן. אבל לשים אותם ממול?! נשמע לי יותר "עונש"... ככה לפחות יש את כל המרווח מהכניסה למטבח בשביל להסתובב. אם זה ממול זה יהיה תחום עם שיש וארונות מכל הצדדים, ודבוק לקיר. אני לא צודקת? אולי לא הבנתי בדיוק את ההצעה שלך.
 

קבצים מצורפים

  • תוכנית מידות.png
    KB 41.6 · צפיות: 39
  • הוסף לסימניות
  • #10
למה לא להצמיד את הכיורים אחד לשני, ואז לא יהיה לך שטח "מת". ותרויחי עוד שטח לבשרי\חלבי.
לדעתי הפינת אוכל לא ב"עונש", מבחינת המיקום שלה זה מצוין כי אם תשימי אותה בכל מקום אחר זה יפריע למעבר. רק צריך לבדוק שהמרחקים בין הפינת אוכל לשיש מספיקים.
לגבי המקרר בכניסה- גם עם 2 דלתות המעבר יחסם ברגע שיפתחו, זה לא משנה- כי אם את עומדת שם ומוציאה משהו והדלת\הדלתות נפתחות ל180 מעלות - את חוסמת את המעבר כך שאת הבעיה זה לא פותר אולי יהיה לך יותר קל לתמרן עם 2 דלתות קטנות יותר- אבל למעבר זה לא ממש עוזר. אני מאמינה שניסיתם עוד אופציות למיקום המקרר. ואם מיקמתם שם כנראה שזה הברירת מחדל.
מה המידות בכניסה?
 
  • הוסף לסימניות
  • #11
נכתב ע"י 100ZEVET;1512011:
למה לא להצמיד את הכיורים אחד לשני, ואז לא יהיה לך שטח "מת". ותרויחי עוד שטח לבשרי\חלבי.
לדעתי הפינת אוכל לא ב"עונש", מבחינת המיקום שלה זה מצוין כי אם תשימי אותה בכל מקום אחר זה יפריע למעבר. רק צריך לבדוק שהמרחקים בין הפינת אוכל לשיש מספיקים.
לגבי המקרר בכניסה- גם עם 2 דלתות המעבר יחסם ברגע שיפתחו, זה לא משנה- כי אם את עומדת שם ומוציאה משהו והדלת\הדלתות נפתחות ל180 מעלות - את חוסמת את המעבר כך שאת הבעיה זה לא פותר אולי יהיה לך יותר קל לתמרן עם 2 דלתות קטנות יותר- אבל למעבר זה לא ממש עוזר. אני מאמינה שניסיתם עוד אופציות למיקום המקרר. ואם מיקמתם שם כנראה שזה הברירת מחדל.
מה המידות בכניסה?

תודה. אכן ניסינו גם אפשרויות שונות ולא הלך. לגבי הכיורים ציינתי למעלה שלבעלי יש קצת בעיה עם זה (שמרנות...הוא לא מכיר מטבחים כאלה. אנשים באמת עושים את זה?)
המידות בכניסה, לפי מה שראיתי בתכנית אחרת רוחב הפתח הוא 80 ס"מ. מצד שמאל יש את השירותי אורחים שעד הרגע אני מתחרטת שלא העפתי אותם :eek:
 
  • הוסף לסימניות
  • #12
לגבי כיורים צמודים- יש אותם לאלפים, בכל מטבח קבלן כמעט זה מה שנותנים וגם בהרבה מטבחים אחרים, עושים הגבהת שיש- לוח שיש בין הכיורים חמניעת התזות ושאר מרעין בישין ויש כלאו שלא אוהבים את המראה של לוח השיש, הייתי חושבת על זה, אם כי אחזור על דברי- לדעתי השטח באמצע הוא לא 'מת' הוא שימושי, רק יש מעלה למשטח ארון והמשכי ע"פ משטחים, משטחים מחולקים.
פינת נאוכל בסדר מבחינת מיקומה, לפי המידות החלקיות שיש שם- מספיק ספסל של 35 ס"מ עומק עבור ישיבת ילדים, והשולחן נצמד אליו כמעט לחלוטין, מה שנותן מעט יותר מרוול בין השולחן לבין השיש, הייתי מרחיבה מעט את השולחן ומעט את המעבר.
המעבר בכניסה נראה של 90+ ס"מ, במקרר 2 דלתות הבעיה תיהיה פחותה אם כי עדיין קיימת. מה שעוד חבל באפשרות הזו היא שהמבט למטבח הוא מוסתר ולא נותן את מלוא היופי כבר מהכניסה.
 
  • הוסף לסימניות
  • #13
הקירות בנויים כבר? כתבת שיש ליד המטבח שרותי אורחים- אולי אפשר לעשות שינוי קל (להקטין מעט- מה גודלם) והמטבח יגדל???
או שאם אלו הנתונים- אז כבר לאחר מעשה אין הרבה מה לעשות....
 
  • הוסף לסימניות
  • #14
נכתב ע"י 100ZEVET;1512082:
הקירות בנויים כבר? כתבת שיש ליד המטבח שרותי אורחים- אולי אפשר לעשות שינוי קל (להקטין מעט- מה גודלם) והמטבח יגדל???
או שאם אלו הנתונים- אז כבר לאחר מעשה אין הרבה מה לעשות....

בנוי כבר :( ותאמיני לי שלקחנו את המקסימום למטבח...
 
  • הוסף לסימניות
  • #15
האופציה של החלפת פינת אוכל עם שיש חלבי.היא בהנחה שהבשרי יתקצר.....
מטבח א"א לתכנן של "רגל אחת" מתוכנית קיימת.מכינים כמה אפשרויות.ואת הטובה ביותר מיישימים.צריך לחשוב על הכל. קשה לתת תגובות להצעה אחת משורטטת.

_____________________________________
עיצוב קונקט-מעצבת ברמה אחרת
 
  • הוסף לסימניות
  • #16
נכתב ע"י dem;1512175:
בנוי כבר :( ותאמיני לי שלקחנו את המקסימום למטבח...
את יכולה להיות רגועה ושלימה עם התכנון, כי בסה"כ התוכנית מעולה!
נראה שניסו לעשות את המקסימום והמטבח תוכנן בהתאם לצרכייך שלך.
תהיי בטוחה שגם אם האדריכל הגדול בעולם יעלה לכאן את התוכניות שלו, יהיה לכל אחד פה הערה\הארה.
(אין מה לעשות- 2 יהודים על שולחן אחד לכל אחד דעות שונות....;))
אז זה שכל אחד מעלה עצות והערות לשינוי- זה כי העלת את זה לכאן וכל אחד מנסה לייעל... אבל בסה"כ, התכנון מצוין, החלוקה מצוינת. לפעמים יש אילוצים- כמו המקרר שמלכתחילה לא היו ממקמים מקרר בכניסת מעבר למטבח אך נראה שבאמת אין מקום אחר ריאלי, כי כל מקום אחר היה פוגע, או במשטחי עבודה או במיקום של פינת אוכל. אבל בסופו של דבר קיבלת מטבח מרווח יחסית שיכול לתפקד מעולה. ורואים שהיתה כאן מחשבה על כל פונקציה בפני עצמה!!!
 
  • הוסף לסימניות
  • #17
נכתב ע"י 100ZEVET;1512359:
את יכולה להיות רגועה ושלימה עם התכנון, כי בסה"כ התוכנית מעולה!
נראה שניסו לעשות את המקסימום והמטבח תוכנן בהתאם לצרכייך שלך.
תהיי בטוחה שגם אם האדריכל הגדול בעולם יעלה לכאן את התוכניות שלו, יהיה לכל אחד פה הערה\הארה.
(אין מה לעשות- 2 יהודים על שולחן אחד לכל אחד דעות שונות....;))
אז זה שכל אחד מעלה עצות והערות לשינוי- זה כי העלת את זה לכאן וכל אחד מנסה לייעל... אבל בסה"כ, התכנון מצוין, החלוקה מצוינת. לפעמים יש אילוצים- כמו המקרר שמלכתחילה לא היו ממקמים מקרר בכניסת מעבר למטבח אך נראה שבאמת אין מקום אחר ריאלי, כי כל מקום אחר היה פוגע, או במשטחי עבודה או במיקום של פינת אוכל. אבל בסופו של דבר קיבלת מטבח מרווח יחסית שיכול לתפקד מעולה. ורואים שהיתה כאן מחשבה על כל פונקציה בפני עצמה!!!

תודה על העידוד... :) ותודה לכולם על התגובות המחכימות.
 
  • הוסף לסימניות
  • #18
מעיון לא מעמיק בתוכנית נראה לי שכשישבו על הכסאות לאכול (לא על הספסל) אין מצב לבשל. האזור שם כמעט נחסם.
 
  • הוסף לסימניות
  • #19
חשבתם על אופציה של החלפת מיקום פינת האוכל במיקום המקרר והמזווה?

נראה שניתן להפוך את קיר הספסל לקיר ארונות גבוהים ולהטמיע בו מקרר, בילד אין ומזווה - ואז להמשיך את השיש בצורת ח' הפוכה ויהיה לך המון משטח לעבודה ובפינה שנוצרה תוכלי לשים את מכשירי החשמל.
כמובן קיר הגבוהים יסתיים בקו הקיר שמעליו (המזווה יורד) - כך שהכניסה למטבח נהיית יותר מרווחת ויש קשר עין בין השוהים במטבח לאוכלים בפינת האוכל.
 
  • הוסף לסימניות
  • #20
נכתב ע"י תלמידים;1511761:
אם יש שם גם תנור חלבי, הוא די רחוק מהחלק החלבי שבמטבח, במצבים כאלו מקובל לעשות בין הכיורים שיש מוגבה במקצת כששם יהיה תנור חלבי, כך גם יש הפרדה יפה בין החלבי לבשרי, ולא סתם קרש שיש, גם מעצב מאד את המראה הכללי של המטבח (הרבה עושים גם כנ"ל בארונות למעלה, שאותו חלק גם עולה כלפי מעלה בגובה זהה), בעוד מספר ימים אוכל אולי לצרף תמונה להמחשה.
המקום גם יתאים לתמי-4 או דברים מהסוג הזה, או סתם פרחים או פינת קפה מעוצבת...
בהצלחה!

התכוונתי לזה.
למעלה קאפות וכדו', למטה במרכז תנור בצדדים כיורים ומתחתיהם ארונות.
בהצלחה!
 

פרוגבוט

תוכן שיווקי
פרסומת

פוסטים חדשים שאולי לא קראת....

הכותרת לא באה להתריס היא באה להדגיש מצב
ולא לא באתי לומר שאבא או אמא עם ילד או שניים זה לא אתגר
אבל שימו לב
בעוד אתם בונים על ההורים לרוב פסח ולכן מכשירים פיסת שיש קטן לפינת קפה. מדף במקרר. ובארון
כי מילא רוב החג נהייה אצל ההורים
ההורים והרווקים בבית קורעים את עצמם [תזכרו זה לא היה כזה מזמן]
כן אמא שלך לא נחה כבר 3 שבועות

להפוך בית שלם 100+ מטר של ארונות כיורים שולחנות מטבח סלון כיסאות מזווה מיטות
לכשר לפסח
לאפשרות שאתם וילדכם הסתובבו בחופשיות עם מצה ואפיקומן שסבא קנה
לא נכנסתי להוצאות המטורפות שקצת עוברות לידכם. למה שתקנו מצות יין או חסה או נייר כסף לציפוי המטבח
ושוב לא בהאשמה ולא בטרוניה אלא כנתון מציאותי
אז זו''צ יקר קצת שימת לב
לפרגן לבוא לעזור חצי יום
לפרגן ארוחה לעובדים בבית [הבית שלך חמץ המטבח שלהם במרפסת שרות]
לתת מילה טובה או שוקולד
והחשוב מכל
מעשרות להורים
הם חשובים יותר מכל כולל ארגון או קמחה דפסחא הם ההורים שלך

והם יממנו לך את ארוחות וסעודות החג
בס"ד

ההבדל בין נוכלות לבין כישלון



לפני כחודש נערך בבני ברק מיפגש מאוד מעניין של גוף הנקרא "הפורום להגנת הצרכן" והוא עסק בעיקר בדרכים למניעת נפילות נדל"ן בהם הציבור החרדי "מומחה" ליפול חזור ונפול.

הנוכחים, מומחים איש איש בתחומו, תיארו את הנוכלויות הרווחות היום ותיארו בצבעים קודרים ואמיתיים את המצב בכי רע, היו שם גדולי הדיינים שדיברו על הצורך להבטיח שהדור השני לא עושה שטויות עם הדירה שקיבלו מההורים וכן הלאה.

כאשר ר' איצ'ה דזיאלובסקי העניק לי את רשות המילה האחרונה (בגלל שאיחרתי – הרגל נעשה טבע) בקשתי מהנוכחים שלא יישפכו את התינוק אם המים, כלומר שלא יביאו אנשים למצב שבו הם חושדים בכל מה שלא זז שהוא נוכלות, הדבר הזה טענתי עלול להביא לשיתוק מוחלט של שוק השקעות הנדל"ן החרדי אשר היה והינו הקטליזטור הראשי של הציבור החרדי בדרכו לנישואי ילדים ברוגע ושלווה, המסר המרכזי של שתי דקות הנאום שלי זה מה שאתם הולכים לקרוא באלף מילים הבאות: לא כל עסקה כושלת היא אשמת המשווק!

צרות אחרונות משכחות את הראשונות וכך שכחתי מזה לגמרי, אלא שהשבוע פורסמה כתבה בעיתון 'דה-מרקר' (מי שלא מכיר לא הפסיד - מלא באהבת כסף ושנאת חרדים) כתבת תחקיר עומק אודות תופעת העוקצים בציבור החרדי הכרוכים במבצעי 10/90 הזכורים לשימצה.

מה שלא אהבתי זה ההתמקדות במתווך חרדי מסוים כאילו הוא שורש הרע בעולם כולו ואיך מלאו ליבו כביכול, ומעשה שהיה כך הווה בעשרות עותקים ברחבי הארץ שרובם מוכרים לי היטיב:

אברכים שחושבים שהם אנשי-עסקים פותו בידי אנשי-עסקים שחושבים שהם אברכים לקנות דירות פאר בערים שהם מכירים רק מחלונות האוטובוס בדרך למירון, נתניה ובת ים מככבות בכתבה אך זה לאורך כל הארץ בערים אשר אברך ממוצע מכיר את שמותיהם רק מהתרעות פיקוד העורף (או מהנפילות שאחריהן) ומעולם לא ביקר בהן.

אז איך משכנעים אברך כולל חסידי בן 22 שקיבל מההורים חצי מיליון ₪ לצורך יחידת 'סליחה' בביתר, לרכוש פנטהוז בהרצליה בארבע מיליון ₪ ?

מספרים לו שזה מבצע מיוחד שהתגלה רק למתווך בגילוי שמימי וכעת צריך רק לשלם עשרה אחוז שזה ארבע מאות אלף שקל ואת המאה הנותרים להביא למתווך על הגילוי הנפלא.

ואיך הדלפון שלנו יממן את מה שעשירי טבריה מתקשים?

כאן מגיע החלק השני של הגילוי אליהו – המתווך יודע לנבא כי בעוד שלוש שנים, כשיצטרכו להשלים את הרכישה הדירה תהיה שווה חמישה מיליון, ואז האברך דנן יתברר כסוחר מוצלח ביותר אשר ימשוך חזרה את הארבע מאות ועוד מיליון רווח נקי וכך לא יצטרך לגור בדירת הסליחה אלא בדירה גדולה המרחיבה דעתו של אדם ומרחיבה ארנקו של המשווק.

אז איפה הקצ'?

שעכשיו זה "אחרי שלוש שנים" ומתברר כי המחיר הכי גבוה שאפשר לקבל על הדירה הוא שלוש וחצי מיליון ואחרי ההוצאות מגיעים לשלוש מאתיים נטו ביד, מה שאומר שלפעמים עדיף לאותו אברך לעשות "ויברח" ולהותיר את הארבע מאות אצל החברה והמשווק ולחזור ליחידת הסליחה אבל וחפוי ראש, והפעם כשוכר...

זה פחות או יותר המסלול שאותו עוברות בחודשים אלו מאות משפחות מאנ"ש שכל מה שהם רצו זה לחתן את הילדים בכבוד וכעת הם מרוסקים לחלוטין וייקח להם שנים רבות אם בכלל כדי להתאושש מהתהום הכלכלית שהם הוכנסו אליה בידי משווק פלוני.

אך עשרת הקוראים כאן יודעים שעד כאן הייתה רק ההקדמה, כעת נתחיל עם הניתוח הכואב של הנתונים ואת הצד של לימוד זכות:

ובכן, קודם כל צריך לדעת שרבים מאוד הרוויחו בפריסיילים ותכניות דומות הרבה כסף, פגשתי ועודני פוגש כל יום אברכים צעירים ומבוגרים שהרוויחו סכומים אגדיים בשנים האחרונות כתוצאה מהפטנט הזה, לא ערכתי מחקר עומק אך מהתרשמותי המרוויחים רבים בהרבה על המפסידים וחבל שאת זה שומרים בסוד מאימת המצ'ינגים, הסיבה היחידה שמספרים לי על כך זה או כדי לשאול איך לעשות את הסיבוב הבא או כדי להתייעץ איך לצמצם את המסים העצומים (ברוך השם, כשיש מס סימן שיש שבח).

כל מי שקנה דירה בירושלים במחירי פריסייל של עשרים ומשהו אלף עשה את המיליון הזה, כך גם רבים שהשקיעו בחלק מהפרוייקטים בבן שמן וכך גם במקומות נוספים אשר המחירים עלו שם דרמטית ולקחו איתם את המשקיעים כלפי מעלה.

אז מה קרה בכל הפרוייקטים הכושלים?

שני דברים, הראשון שלא ידוע לי אם קרה זה הקפצת מחירים, מאוד ייתכן שמשווק מסוים יבוא לקבלן שיש לו כבר פריסייל ויגיד לו במקום למכור ב3.9 אביא לך קונים בארבע מיליון ואז מקבלים תרי זוזי: מאה אלף מהקבלן ועוד אחד מהלקוח, חד גדיא דזבין את אבא.

זה נורא לשמוע שיש דברים כאלו וטיפש מי שנופל לכך אך מי שיותר טיפש ממנו הוא מי שמאמין שאפשר למנוע דבר כזה באמצעות בירור אם המתווך אמין: גם המתווך האמין ביותר לא יעמוד בפני ניסיון של מאתיים אלף ₪ רק מלאך יוותר על זה ולא ניתנה תורת העסקים למלאכי השרת.

אך הדבר הזה לא מתקיים בדרך כלל משום שרוב הקונים יודעים לבדוק בערך את המחיר בסביבה ולא נופלים לבורות עמוקים, מה שכן קורה זה הדבר השני ועליו ברצוננו לדבר:

המחיר פשוט לא עלה, ולפעמים אפילו ירד.

כן רבייסיי, מחירי דירות לא רק עולים, לפעמים הם גם יורדים, כגון למשל בתקופת מלחמה.

עד מלחמת שמחת-נורא המחירים בנתניה למשל אכן השתוללו כי הצרפתים קנו שם בהמוניהם והוא הדין בצפת שהאמריקאים עטו עליה כי אצלם אין הבדל בין ירושלים לצפת, באמריקה זה מרחק סביר לנסיעה יומיומית לעבודה, אז מישהו משווק להם את זה כירושלים לעניים והם קנו וקנו והמחירים עלו ועלו והייתה היתכנות מסויימת לעלייה צפוייה.

ואז הגיע המלחמה ואין חוצניקים, ועוד מלחמה ועוד מבצע ושום דבר לא חזר לעצמו ואפשר לקלל את איראן (מגיע להם) ואת החמאס (עוד יותר מגיע) אך זה לא יעזור לעובדה הפשוטה שמחירי המגדלים שיועדו בעיקר לאוכלוסיות אלו צולל.

לא בהרבה, אך מספיקה ירידה של 8% כדי שכל העסק יהפוך להפסד.

זה נכון שמעצבן שהמשווק ניבא שהמחירים יעלו והם לא, אמנם אמרו חז"ל שנבואה ניתנה לשוטים אך האמונה כי יש למישהו נבואה ניתנה לשוטים גדולים עוד יותר... כל בר דעת העושה עסקים יודע שבכל הקשור לניבוי עתידות - המשווק ועטיפת המסטיק יודעים לנבא באותה מידה ומי שמסתמך על הבטחות אודות העתיד (כולל אלפי אברכים שנופלים היום בפריסייל של המחר שנקרא פינוי בינוי המבוסס על אותה נבואה כמעט) אין לו לבוא בטענות אלא על עצמו, לא המשווק נשך לשונרא.

מקווה שהצלחתי להסביר: לא כל עסקה כושלת היא נוכלות ולא כל ירידת מחירים היא עקיצה, בכל עסק ייתכן מאוד הפסד ומי שלא מוכן לכך שלא ייכנס לעולם ההשקעות.

אז להפסיק להשקיע בנדל"ן?

חלילה, כמה שיותר להשקיע בנדל"ן וכל המרבה הרי זה משובח – ואם ירצה השם ויהיה זמן נרחיב אולי בטור הבא על "מה כן" – אך רק עסקאות נטולות הימור על כל הקופה, כך שגם אם נגזר עליך להפסיד זה יהיה רק קצת ורק זמני.

ברור לי שכל הדברים האמורים כאן ברורים לכל אחד מעשרת הקוראים וסליחה שבזבזתי את זמנכם אך אם זה ירגיע אבא סוער אחד -שכועס בכל ליבו על המתווך שכאילו הפיל את החתן שלו - והיה זה שכרי.



גילוי נאות: לכותב אין ולא היה שום אינטרס כלכלי בשום פרוייקט של פריסל והוא אינו קשור היום לשום שיווק לא במישרין ולא בעקיפין, המידע מובא ללא כל אינטרס כלכלי אלא כצדקה ושירות לציבור, לשאלות ספציפיות ניתן לפנות למייל והתשובות שם חינם וללא אחריות.
סיכום אירועים: איראן בלהבות - מהמחאות ועד לסף עימות עולמי

הרקע וההתפרצות (סוף דצמבר 2025):

המחאות החלו ב-28 בדצמבר 2025 בטהראן, על רקע משבר כלכלי חריף וצניחה חדה בערך הריאל. מה שהחל כזעקת סוחרים ואזרחים על יוקר המחיה, הפך במהירות לגל הפגנות חסר תקדים ב-187 ערים הקורא להפלת המשטר.


הטבח והחשכת המידע (ינואר 2026):
  • דיכוי אלים: המשטר האיראני הגיב באכזריות יוצאת דופן. לפי נתוני ארגון זכויות האדם HRANA, נכון ל-23 בינואר, מספר ההרוגים המאומת עומד על למעלה מ-5,000 בני אדם, בהם 4,716 מפגינים ועשרות ילדים.
    יש דיווחים לא מאומתים מצד האופוזיציה האיראנית על מעל 60,000 הרוגים!

  • מעצרים המוניים: למעלה מ-26,500 בני אדם נעצרו, וקיים חשש כבד להוצאות להורג המוניות בבתי הכלא.

  • חסימת אינטרנט: החל מה-8 בינואר הוטל מצור דיגיטלי כמעט מוחלט על המדינה כדי למנוע זליגת תיעודים מהטבח.

המעורבות האמריקנית - "הארמדה של טראמפ":
הנשיא טראמפ, שחזר והזהיר את טהראן מפני המשך הטבח, הכריז ב-22 בינואר כי "ארמדה" אמריקנית (צי ספינות מלחמה, כולל נושאת המטוסים אברהם לינקולן) עושה את דרכה למפרץ הפרסי. טראמפ הבהיר כי ארה"ב בוחנת אפשרויות תקיפה ישירות נגד מטרות שלטוניות אם לא ייפסק הדיכוי. ולאחר הדלפות על ממדי הטבח, הכריז "העזרה בדרך".


הזווית הישראלית והאזורית:
  • כוננות שיא: ישראל נמצאת בדריכות עליונה מחשש שהסלמה אמריקנית תוביל לתגובה איראנית ישירה או באמצעות שלוחיה (פרוקסי).

  • איומי נתניהו: ראש הממשלה נתניהו הזהיר כי אם איראן תבצע "טעות" ותתקוף את ישראל, היא תפגוש עוצמה שטרם הכירה.

  • איומי טהראן: המשטר האיראני הודיע כי במקרה של תקיפה, בסיסים אמריקניים ויעדים בישראל יהיו "מטרות לגיטימיות".

באשכול זה נמשיך לעדכן סביב השעון בכל התפתחות, דיווחים מהשטח ופרשנויות ביטחוניות.
עודכן אדר תשפ"ד
ראשית, גופי הכשרות
ברוב אשכולות בנושא 'השקעות בשוק ההון' בפרוג, משתרבב עניין הכשרות.
למען הסדר באשכול זה נעלה עדכונים בנושא כשרות.
אני אשתדל לסכם ולתמצת ככל האפשר.

יש 4 גופי כשרות
  • בד"ץ העדה החרדית - על פי פסקי הרב יעקב בלוי זצ"ל שהיה בקיא גדול בתחום שוק ההון והוא שהביא את פסקיו ועל פי פסקים אלו נוהגים עד היום בגוף כשרות זה. היום הכשרות בראשות הרב שלמה זאב קרליבך.
  • גלאט הון - על פי פסקי רבי ניסים קרליץ והרב שמואל ואזנר. שסמכו ידיהם על הרב יעקב לנדו שמכיר את שוק ההון לעומקו. הרב משה שטרנבוך ראב"ד העדה החרדית הוא מרבני 'גלאט הון'.
  • תשואה כהלכה – הרב שמואל דוד גרוס, רב חסידי גור אשדוד ועוד רבנים מוכרים וידועים בכל שכבות הציבור החרדי.
  • כלכלה על פי ההלכה- הרב אריה דביר, על פי פסקי הרב יוסף שלום אלישיב.

היום בכל החברות יש מסלולים כשרים, שמאושרים לפחות ע"י אחת מהכשרויות.
בין החברות שנמצאת ברשותם תעודת כשרות אפשר למצוא את:
אלטשולר שחם, אינפיניטי, הפניקס, הראל, כלל, מגדל, מור, מיטב דש, מנורה.

רשימות קרנות כשרות:

הצטרפות לניוזלטר

איזה כיף שהצטרפתם לניוזלטר שלנו!

מעכשיו, תהיו הראשונים לקבל את כל העדכונים, החדשות, ההפתעות בלעדיות, והתכנים הכי חמים שלנו בפרוג!

לוח מודעות

הפרק היומי

הפרק היומי! כל ערב פרק תהילים חדש. הצטרפו אלינו לקריאת תהילים משותפת!


תהילים פרק כה

אלְדָוִד אֵלֶיךָ יי נַפְשִׁי אֶשָּׂא:באֱלֹהַי בְּךָ בָטַחְתִּי אַל אֵבוֹשָׁה אַל יַעַלְצוּ אֹיְבַי לִי:גגַּם כָּל קוֶֹיךָ לֹא יֵבֹשׁוּ יֵבֹשׁוּ הַבּוֹגְדִים רֵיקָם:דדְּרָכֶיךָ יי הוֹדִיעֵנִי אֹרְחוֹתֶיךָ לַמְּדֵנִי:ההַדְרִיכֵנִי בַאֲמִתֶּךָ וְלַמְּדֵנִי כִּי אַתָּה אֱלֹהֵי יִשְׁעִי אוֹתְךָ קִוִּיתִי כָּל הַיּוֹם:וזְכֹר רַחֲמֶיךָ יי וַחֲסָדֶיךָ כִּי מֵעוֹלָם הֵמָּה:זחַטֹּאות נְעוּרַי וּפְשָׁעַי אַל תִּזְכֹּר כְּחַסְדְּךָ זְכָר לִי אַתָּה לְמַעַן טוּבְךָ יי:חטוֹב וְיָשָׁר יי עַל כֵּן יוֹרֶה חַטָּאִים בַּדָּרֶךְ:טיַדְרֵךְ עֲנָוִים בַּמִּשְׁפָּט וִילַמֵּד עֲנָוִים דַּרְכּוֹ:יכָּל אָרְחוֹת יי חֶסֶד וֶאֱמֶת לְנֹצְרֵי בְרִיתוֹ וְעֵדֹתָיו:יאלְמַעַן שִׁמְךָ יי וְסָלַחְתָּ לַעֲוֹנִי כִּי רַב הוּא:יבמִי זֶה הָאִישׁ יְרֵא יי יוֹרֶנּוּ בְּדֶרֶךְ יִבְחָר:יגנַפְשׁוֹ בְּטוֹב תָּלִין וְזַרְעוֹ יִירַשׁ אָרֶץ:ידסוֹד יי לִירֵאָיו וּבְרִיתוֹ לְהוֹדִיעָם:טועֵינַי תָּמִיד אֶל יי כִּי הוּא יוֹצִיא מֵרֶשֶׁת רַגְלָי:טזפְּנֵה אֵלַי וְחָנֵּנִי כִּי יָחִיד וְעָנִי אָנִי:יזצָרוֹת לְבָבִי הִרְחִיבוּ מִמְּצוּקוֹתַי הוֹצִיאֵנִי:יחרְאֵה עָנְיִי וַעֲמָלִי וְשָׂא לְכָל חַטֹּאותָי:יטרְאֵה אוֹיְבַי כִּי רָבּוּ וְשִׂנְאַת חָמָס שְׂנֵאוּנִי:כשָׁמְרָה נַפְשִׁי וְהַצִּילֵנִי אַל אֵבוֹשׁ כִּי חָסִיתִי בָךְ:כאתֹּם וָיֹשֶׁר יִצְּרוּנִי כִּי קִוִּיתִיךָ:כבפְּדֵה אֱלֹהִים אֶת יִשְׂרָאֵל מִכֹּל צָרוֹתָיו:
נקרא  2  פעמים
למעלה