ייעוץ ועזרה

  • פותח הנושא mali
  • פורסם בתאריך
  • הוסף לסימניות
  • #1
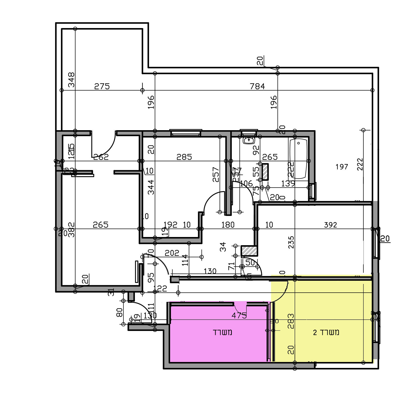
שלום וברכה לכל בעלי המקצוע טובי העין המסתובבים פה. יש ברשתנו דירה המחולקת לדירת מגורים + 2 משרדים קטנים. לאחר שהרבה הציעו לנו לחלק את הדירה לשני סטודיו, התיעצנו עם מעצב שהציע שני פתרונות, אופציה א אשר נותנת סטודיו קצת פחות מוצלח אך בלי צורך לבטל אמבטיה קיימת (חיסכון קל) לעומת אופציה ב הנותנת לדעתנו מראה אנושי ונורמלי ל-2 היחידות.
מצרפת את הדירה כפי שהיא כיום + 2 האופציות (האופציות לא שורטטו עדיין מקצועי, אלא רק לאחר החלטה) ונשמח לקבל חוו"ד, הערות/הארות/המלצות מכל מי שמוכן לסייע על השינוי שיתקבל הכי טוב במינימום שינויים אפשרי. (בכדי לחסוך בעלויות

תודה רבה מראש
צפה בקובץ המצורף 240564

צפה בקובץ המצורף 240565

צפה בקובץ המצורף 240566
 

קבצים מצורפים

  • דירה כיום.pdf
    KB 712.2 · צפיות: 20
  • חלוקה ל-2 יחידות אופציה א.pdf
    1.1 MB · צפיות: 32
  • חלוקה ל-2 יחידות אופציה ב.pdf
    1 MB · צפיות: 33
  • הוסף לסימניות
  • #2

קבצים מצורפים

  • דירה כיום.jpg
    KB 184.8 · צפיות: 25
  • חלוקה ל-2 יחידות אופציה א.jpg
    KB 210 · צפיות: 20
  • חלוקה ל-2 יחידות אופציה ב.jpg
    KB 191.2 · צפיות: 39
  • הוסף לסימניות
  • #3
אופציה ב ניראת לי יותר בשינוי קל:
 

קבצים מצורפים

  • חלוקה ל-2 יחידות אופציה ב.png
    KB 187.2 · צפיות: 21
  • הוסף לסימניות
  • #4
ב' יותר טובה
אבל עדיין צריך לעבוד על התכניות האלה. הן מאד בוסריות וזקוקות לפתרונות עבור העמודים

בהצלחה!!
 
  • הוסף לסימניות
  • #5
כמובן שאופציה ב' עדיפה מפני שבאופציה א' רוחב ח. שינה מאד צר ותהיי מוגבלת עם שוכרים.כ"כ יותר נחמד להכנס לחלל פתוח ולא למקום צר(האם יש מספיק מקום למעבר ולהעברת רהיטים בין העמוד לקיר המשותף עם היח' השניה?).
ב- 2 האופציות אין איפה לשים ארון בח. שינה ביח' התכלת ולכן השינוי של מינדי פותר את הבעיה הזו, אולם אם אני מזהה נכון אז במקרה זה אין חלון לח. שינה. אי לכך ניקול צודקת בכך שצריך עדיין לעבוד על התכנית, לשים רהיטים ולראות שאין בעיה בחדרים.
דבר נוסף, האם דלת האמבטיה ביח' התכלת בכוונה מצורפת לח. שינה? כאשר אין שרותים נוסף זה מאד לא נוח (גם לזה מינדי נתנה פיתרון).
בהצלחה.
 
  • הוסף לסימניות
  • #6
בהסתכלות מלמעלה, לדעתי יש פה עוד הרבה מה לעבוד..
גם האופציה הראשונה וגם השניה, לא ממש יכולות לתפקד.
חסרות מידות, אך איפה שכן נתת מידות הגדלים שם נראים לא ריאלים בכלל. לדוג' ח. שינה בגודל 2.85X2.57 לא יכול לשמש לזוג...
וכן בדירה הימנית, המעברים ביו העמוד לקירות לא נראים אפשריים..
אם יש אפשרות להזיז גם את המשרדים ולשחק עם כל החלל כולו. הייתי מציעה לנסות אופציות נוספות עם חלוקה אחרת כדי שכל יחידה \ משרד יוכל לתפקד נכון עם גדלים נכונים ומתאימים, הן בגודל החלל\חדר והן במעברים\פתחים.
בהצלחה
 
  • הוסף לסימניות
  • #7
נכתב ע"י מינדי ל;1643193:
אופציה ב ניראת לי יותר בשינוי קל:

אם תוכלי להסביר מה יותר טוב בשינוי הזה? כי בעצם זה לפרק מטבח קיים, ואני לא רואה סיבה הנראית לעין. כי מיקמת את ח. השינה בדירה התכלת בלי חלון
 
  • הוסף לסימניות
  • #8
אסביר בקצרה:
יותר נעים להכנס לדירה שיש בה חלל גדול פתוח ולא להכנס לדירה שהיא בעצם מחסן חדרים
אבל כמו ש100ZEVET אומרת יש פה מה לעבוד התכנון הוא ממש מלמעלה לא התיחסו לעמודים ולכן זה לא נקרא דירה שעברה תכנון!!!!!!!
בכל מקרה יש כאן אופציה (חדר שינה עם חלון.- את האמבטיה אפשר לאוורר עם ונטה)
 

קבצים מצורפים

  • 3.png
    KB 155.4 · צפיות: 22
  • הוסף לסימניות
  • #9
נכתב ע"י 100ZEVET;1643264:
בהסתכלות מלמעלה, לדעתי יש פה עוד הרבה מה לעבוד..
גם האופציה הראשונה וגם השניה, לא ממש יכולות לתפקד.
חסרות מידות, אך איפה שכן נתת מידות הגדלים שם נראים לא ריאלים בכלל. לדוג' ח. שינה בגודל 2.85X2.57 לא יכול לשמש לזוג...
וכן בדירה הימנית, המעברים ביו העמוד לקירות לא נראים אפשריים..
אם יש אפשרות להזיז גם את המשרדים ולשחק עם כל החלל כולו. הייתי מציעה לנסות אופציות נוספות עם חלוקה אחרת כדי שכל יחידה \ משרד יוכל לתפקד נכון עם גדלים נכונים ומתאימים, הן בגודל החלל\חדר והן במעברים\פתחים.
בהצלחה

נא לשים לב לטעות:
זה 3.85/2.57-אפשר להסתדר עם זה!!!
 
  • הוסף לסימניות
  • #10
נכתב ע"י מינדי ל;1643818:
נא לשים לב לטעות:
זה 3.85/2.57-אפשר להסתדר עם זה!!!

נראה לי הראיה שלי עדיין תקינה....
בכל אופן לא מצאתי בתוכנית שכתוב 3.85. תתקני אותי אם כן:
 

קבצים מצורפים

  • %20-2%~1.JPG
    KB 320.7 · צפיות: 17
  • הוסף לסימניות
  • #11
נכתב ע"י 100ZEVET;1643855:
נראה לי הראיה שלי עדיין תקינה....
בכל אופן לא מצאתי בתוכנית שכתוב 3.85. תתקני אותי אם כן:

הראיה שלך תקינה ב"ה :)

ברור שיותר נעים להיכנס לדירה עם חלל, בכל מקרה בגלל שהרגשנו שהתכנון הוא בוסרי לגמרי לא התקדמנו לשרטוט.

בכל אופן בהצעה של מינדי ל. יש כאן בעייתיות החדר שינה בדירה השמאלית שהעברת את מיקומו למה שהיה מטבח, החלק השני שמסומן כשירותים וביטלת אותו, בשמאלו יש מרזבים, כך שא"א למקרם שם ח. שינה.

בקיצור , אתם ממליצים לי לשלם למעצב ההוא את שכרו ולעבור שמעצב שכנראה מבין יותר?

ואולי בעצם אפנה אליכם, מי שיכול לסייע בפתרון מוצלח לפרוייקט הזה, נשמח מאוד לקבל הצעמ"ח באישי או למייל: <לא ניתן לפרסם מיילים באופן פומבי>
חשוב לציין: מעונינים ליצור יחידות נעימות. (למרות שכפי השוק כאן הן תושכרנה גם אם לא תהיינה כאלו)
במינימום עלויות של שבירת קירות/הזזת נק' אינסטלציה וכו' (כמובן ככל הניתן)
העמודים שם למיטב הבנתנו קבועים שם עד בא גואל צדק. הם תומכים בגג הבנין.

תודה מראש על כל הצעה.
וכמובן אפשר להמשיך להעלות רעיונות בקשר למצ"ב למעלה :) :)
 
  • הוסף לסימניות
  • #12
סליחה

עכשיו הבנתי מה הבעיה
שימי לב להצעה שלי שהופכים את חדר שינה עם חדר מגורים-שזה גם יותר נכון!
אז את מקבלת חדר של 382/265 את הקיר של 265 אפשר להזיז מעט ע"מ לקבל חדר ברוחב 270 שפחות יצור בעיות ברמה של שכירות!
 
  • הוסף לסימניות
  • #13
לא הייתי אומרת לך דבר ראשון לעזוב את המעצב/ת איתה עבדתם,
לא ראינו תכניות ברורות שלו/ה, ייתכן ומעט התקדמות תניב תכניות טובות יותר, אם באתם אחרי המלצות, אז למה לברוח?
רק אם אתם רואים שההתקדמות אינה משביעה את רצונכם ועדיין יש 'חורים' רציניים בתכנית- אז תשקלו עזיבה.
וכמובן מציעה בזאת את שירותי למקרה שתחפשו בעל מקצוע אחר...
 
  • הוסף לסימניות
  • #14
נכתב ע"י revrut;1644029:
לא הייתי אומרת לך דבר ראשון לעזוב את המעצב/ת איתה עבדתם,
לא ראינו תכניות ברורות שלו/ה, ייתכן ומעט התקדמות תניב תכניות טובות יותר, אם באתם אחרי המלצות, אז למה לברוח?
רק אם אתם רואים שההתקדמות אינה משביעה את רצונכם ועדיין יש 'חורים' רציניים בתכנית- אז תשקלו עזיבה.
וכמובן מציעה בזאת את שירותי למקרה שתחפשו בעל מקצוע אחר...

זהו. שזה לא דבר ראשון, הוא כבר מדשדש במקום די הרבה זמן. מן תקוע כזה.
ואולי זה מתוך רצונו לחסוך לנו בשינויים :( , והוא מעונין לעמוד במשימה, הגם שייתכן שאינה ישימה. כמובן שאכבד חוו"ד מקצועית.
מה את אומרת? חוץ מלהרוס הכל יש מה לעשות בנתונים הנ"ל תוך התחשבות במטבח הקיים כבר בדירה התכלת, והתחשבות גם האינסטלציה?
 
  • הוסף לסימניות
  • #15
נכתב ע"י מינדי ל;1644009:
עכשיו הבנתי מה הבעיה
שימי לב להצעה שלי שהופכים את חדר שינה עם חדר מגורים-שזה גם יותר נכון!
אז את מקבלת חדר של 382/265 את הקיר של 265 אפשר להזיז מעט ע"מ לקבל חדר ברוחב 270 שפחות יצור בעיות ברמה של שכירות!


סליחה על השאלה. כפי שציינתי מלכתחילה הייתי מעדיפה להשאיר את המטבח בדירה התכלת במיקומו. כי הוא פשוט בנוי שם. לא יותר פשוט להזיז את הקיר שלו פנימה, מה שיגדיל את חדר השינה? סה"כ על הקיר שבין המטבח לח.שינה אין שום דבר משמעותי..
 
  • הוסף לסימניות
  • #17
מרב שזה ברור לי, לא הבחנתי שבתוכנית המקורית - זה לא מסומן. אז הוספתי את זה באמצעות כיתוב ומצרפת את התיקון.
צפה בקובץ המצורף 240684
 

קבצים מצורפים

  • דירה כיום.jpg
    KB 211.9 · צפיות: 18
  • הוסף לסימניות
  • #18
אחרון להיום!!!

חחח
סתם בא לי מוזה!:)
( יש מלא עבודה )
בייי
בהצלחה
 

קבצים מצורפים

  • דירה כיום.png
    KB 143.8 · צפיות: 22
  • הוסף לסימניות
  • #19
נכתב ע"י מינדי ל;1644234:
חחח
סתם בא לי מוזה!:)
( יש מלא עבודה )
בייי
בהצלחה

תודה, מינדי :)

מה שסימנת בחום, זה ארון?

ושינית את הכניסה, והשירותים ואמבטיה יילך לסוף המטבח? הבנתי טוב?
 
  • הוסף לסימניות
  • #20
אכן כן
זה די מלמעלה!
אולי גם לזה אפשר למצוא פתרון
 

פרוגבוט

תוכן שיווקי
פרסומת

פוסטים חדשים שאולי לא קראת....

הכותרת לא באה להתריס היא באה להדגיש מצב
ולא לא באתי לומר שאבא או אמא עם ילד או שניים זה לא אתגר
אבל שימו לב
בעוד אתם בונים על ההורים לרוב פסח ולכן מכשירים פיסת שיש קטן לפינת קפה. מדף במקרר. ובארון
כי מילא רוב החג נהייה אצל ההורים
ההורים והרווקים בבית קורעים את עצמם [תזכרו זה לא היה כזה מזמן]
כן אמא שלך לא נחה כבר 3 שבועות

להפוך בית שלם 100+ מטר של ארונות כיורים שולחנות מטבח סלון כיסאות מזווה מיטות
לכשר לפסח
לאפשרות שאתם וילדכם הסתובבו בחופשיות עם מצה ואפיקומן שסבא קנה
לא נכנסתי להוצאות המטורפות שקצת עוברות לידכם. למה שתקנו מצות יין או חסה או נייר כסף לציפוי המטבח
ושוב לא בהאשמה ולא בטרוניה אלא כנתון מציאותי
אז זו''צ יקר קצת שימת לב
לפרגן לבוא לעזור חצי יום
לפרגן ארוחה לעובדים בבית [הבית שלך חמץ המטבח שלהם במרפסת שרות]
לתת מילה טובה או שוקולד
והחשוב מכל
מעשרות להורים
הם חשובים יותר מכל כולל ארגון או קמחה דפסחא הם ההורים שלך

והם יממנו לך את ארוחות וסעודות החג
בס"ד

ההבדל בין נוכלות לבין כישלון



לפני כחודש נערך בבני ברק מיפגש מאוד מעניין של גוף הנקרא "הפורום להגנת הצרכן" והוא עסק בעיקר בדרכים למניעת נפילות נדל"ן בהם הציבור החרדי "מומחה" ליפול חזור ונפול.

הנוכחים, מומחים איש איש בתחומו, תיארו את הנוכלויות הרווחות היום ותיארו בצבעים קודרים ואמיתיים את המצב בכי רע, היו שם גדולי הדיינים שדיברו על הצורך להבטיח שהדור השני לא עושה שטויות עם הדירה שקיבלו מההורים וכן הלאה.

כאשר ר' איצ'ה דזיאלובסקי העניק לי את רשות המילה האחרונה (בגלל שאיחרתי – הרגל נעשה טבע) בקשתי מהנוכחים שלא יישפכו את התינוק אם המים, כלומר שלא יביאו אנשים למצב שבו הם חושדים בכל מה שלא זז שהוא נוכלות, הדבר הזה טענתי עלול להביא לשיתוק מוחלט של שוק השקעות הנדל"ן החרדי אשר היה והינו הקטליזטור הראשי של הציבור החרדי בדרכו לנישואי ילדים ברוגע ושלווה, המסר המרכזי של שתי דקות הנאום שלי זה מה שאתם הולכים לקרוא באלף מילים הבאות: לא כל עסקה כושלת היא אשמת המשווק!

צרות אחרונות משכחות את הראשונות וכך שכחתי מזה לגמרי, אלא שהשבוע פורסמה כתבה בעיתון 'דה-מרקר' (מי שלא מכיר לא הפסיד - מלא באהבת כסף ושנאת חרדים) כתבת תחקיר עומק אודות תופעת העוקצים בציבור החרדי הכרוכים במבצעי 10/90 הזכורים לשימצה.

מה שלא אהבתי זה ההתמקדות במתווך חרדי מסוים כאילו הוא שורש הרע בעולם כולו ואיך מלאו ליבו כביכול, ומעשה שהיה כך הווה בעשרות עותקים ברחבי הארץ שרובם מוכרים לי היטיב:

אברכים שחושבים שהם אנשי-עסקים פותו בידי אנשי-עסקים שחושבים שהם אברכים לקנות דירות פאר בערים שהם מכירים רק מחלונות האוטובוס בדרך למירון, נתניה ובת ים מככבות בכתבה אך זה לאורך כל הארץ בערים אשר אברך ממוצע מכיר את שמותיהם רק מהתרעות פיקוד העורף (או מהנפילות שאחריהן) ומעולם לא ביקר בהן.

אז איך משכנעים אברך כולל חסידי בן 22 שקיבל מההורים חצי מיליון ₪ לצורך יחידת 'סליחה' בביתר, לרכוש פנטהוז בהרצליה בארבע מיליון ₪ ?

מספרים לו שזה מבצע מיוחד שהתגלה רק למתווך בגילוי שמימי וכעת צריך רק לשלם עשרה אחוז שזה ארבע מאות אלף שקל ואת המאה הנותרים להביא למתווך על הגילוי הנפלא.

ואיך הדלפון שלנו יממן את מה שעשירי טבריה מתקשים?

כאן מגיע החלק השני של הגילוי אליהו – המתווך יודע לנבא כי בעוד שלוש שנים, כשיצטרכו להשלים את הרכישה הדירה תהיה שווה חמישה מיליון, ואז האברך דנן יתברר כסוחר מוצלח ביותר אשר ימשוך חזרה את הארבע מאות ועוד מיליון רווח נקי וכך לא יצטרך לגור בדירת הסליחה אלא בדירה גדולה המרחיבה דעתו של אדם ומרחיבה ארנקו של המשווק.

אז איפה הקצ'?

שעכשיו זה "אחרי שלוש שנים" ומתברר כי המחיר הכי גבוה שאפשר לקבל על הדירה הוא שלוש וחצי מיליון ואחרי ההוצאות מגיעים לשלוש מאתיים נטו ביד, מה שאומר שלפעמים עדיף לאותו אברך לעשות "ויברח" ולהותיר את הארבע מאות אצל החברה והמשווק ולחזור ליחידת הסליחה אבל וחפוי ראש, והפעם כשוכר...

זה פחות או יותר המסלול שאותו עוברות בחודשים אלו מאות משפחות מאנ"ש שכל מה שהם רצו זה לחתן את הילדים בכבוד וכעת הם מרוסקים לחלוטין וייקח להם שנים רבות אם בכלל כדי להתאושש מהתהום הכלכלית שהם הוכנסו אליה בידי משווק פלוני.

אך עשרת הקוראים כאן יודעים שעד כאן הייתה רק ההקדמה, כעת נתחיל עם הניתוח הכואב של הנתונים ואת הצד של לימוד זכות:

ובכן, קודם כל צריך לדעת שרבים מאוד הרוויחו בפריסיילים ותכניות דומות הרבה כסף, פגשתי ועודני פוגש כל יום אברכים צעירים ומבוגרים שהרוויחו סכומים אגדיים בשנים האחרונות כתוצאה מהפטנט הזה, לא ערכתי מחקר עומק אך מהתרשמותי המרוויחים רבים בהרבה על המפסידים וחבל שאת זה שומרים בסוד מאימת המצ'ינגים, הסיבה היחידה שמספרים לי על כך זה או כדי לשאול איך לעשות את הסיבוב הבא או כדי להתייעץ איך לצמצם את המסים העצומים (ברוך השם, כשיש מס סימן שיש שבח).

כל מי שקנה דירה בירושלים במחירי פריסייל של עשרים ומשהו אלף עשה את המיליון הזה, כך גם רבים שהשקיעו בחלק מהפרוייקטים בבן שמן וכך גם במקומות נוספים אשר המחירים עלו שם דרמטית ולקחו איתם את המשקיעים כלפי מעלה.

אז מה קרה בכל הפרוייקטים הכושלים?

שני דברים, הראשון שלא ידוע לי אם קרה זה הקפצת מחירים, מאוד ייתכן שמשווק מסוים יבוא לקבלן שיש לו כבר פריסייל ויגיד לו במקום למכור ב3.9 אביא לך קונים בארבע מיליון ואז מקבלים תרי זוזי: מאה אלף מהקבלן ועוד אחד מהלקוח, חד גדיא דזבין את אבא.

זה נורא לשמוע שיש דברים כאלו וטיפש מי שנופל לכך אך מי שיותר טיפש ממנו הוא מי שמאמין שאפשר למנוע דבר כזה באמצעות בירור אם המתווך אמין: גם המתווך האמין ביותר לא יעמוד בפני ניסיון של מאתיים אלף ₪ רק מלאך יוותר על זה ולא ניתנה תורת העסקים למלאכי השרת.

אך הדבר הזה לא מתקיים בדרך כלל משום שרוב הקונים יודעים לבדוק בערך את המחיר בסביבה ולא נופלים לבורות עמוקים, מה שכן קורה זה הדבר השני ועליו ברצוננו לדבר:

המחיר פשוט לא עלה, ולפעמים אפילו ירד.

כן רבייסיי, מחירי דירות לא רק עולים, לפעמים הם גם יורדים, כגון למשל בתקופת מלחמה.

עד מלחמת שמחת-נורא המחירים בנתניה למשל אכן השתוללו כי הצרפתים קנו שם בהמוניהם והוא הדין בצפת שהאמריקאים עטו עליה כי אצלם אין הבדל בין ירושלים לצפת, באמריקה זה מרחק סביר לנסיעה יומיומית לעבודה, אז מישהו משווק להם את זה כירושלים לעניים והם קנו וקנו והמחירים עלו ועלו והייתה היתכנות מסויימת לעלייה צפוייה.

ואז הגיע המלחמה ואין חוצניקים, ועוד מלחמה ועוד מבצע ושום דבר לא חזר לעצמו ואפשר לקלל את איראן (מגיע להם) ואת החמאס (עוד יותר מגיע) אך זה לא יעזור לעובדה הפשוטה שמחירי המגדלים שיועדו בעיקר לאוכלוסיות אלו צולל.

לא בהרבה, אך מספיקה ירידה של 8% כדי שכל העסק יהפוך להפסד.

זה נכון שמעצבן שהמשווק ניבא שהמחירים יעלו והם לא, אמנם אמרו חז"ל שנבואה ניתנה לשוטים אך האמונה כי יש למישהו נבואה ניתנה לשוטים גדולים עוד יותר... כל בר דעת העושה עסקים יודע שבכל הקשור לניבוי עתידות - המשווק ועטיפת המסטיק יודעים לנבא באותה מידה ומי שמסתמך על הבטחות אודות העתיד (כולל אלפי אברכים שנופלים היום בפריסייל של המחר שנקרא פינוי בינוי המבוסס על אותה נבואה כמעט) אין לו לבוא בטענות אלא על עצמו, לא המשווק נשך לשונרא.

מקווה שהצלחתי להסביר: לא כל עסקה כושלת היא נוכלות ולא כל ירידת מחירים היא עקיצה, בכל עסק ייתכן מאוד הפסד ומי שלא מוכן לכך שלא ייכנס לעולם ההשקעות.

אז להפסיק להשקיע בנדל"ן?

חלילה, כמה שיותר להשקיע בנדל"ן וכל המרבה הרי זה משובח – ואם ירצה השם ויהיה זמן נרחיב אולי בטור הבא על "מה כן" – אך רק עסקאות נטולות הימור על כל הקופה, כך שגם אם נגזר עליך להפסיד זה יהיה רק קצת ורק זמני.

ברור לי שכל הדברים האמורים כאן ברורים לכל אחד מעשרת הקוראים וסליחה שבזבזתי את זמנכם אך אם זה ירגיע אבא סוער אחד -שכועס בכל ליבו על המתווך שכאילו הפיל את החתן שלו - והיה זה שכרי.



גילוי נאות: לכותב אין ולא היה שום אינטרס כלכלי בשום פרוייקט של פריסל והוא אינו קשור היום לשום שיווק לא במישרין ולא בעקיפין, המידע מובא ללא כל אינטרס כלכלי אלא כצדקה ושירות לציבור, לשאלות ספציפיות ניתן לפנות למייל והתשובות שם חינם וללא אחריות.
סיכום אירועים: איראן בלהבות - מהמחאות ועד לסף עימות עולמי

הרקע וההתפרצות (סוף דצמבר 2025):

המחאות החלו ב-28 בדצמבר 2025 בטהראן, על רקע משבר כלכלי חריף וצניחה חדה בערך הריאל. מה שהחל כזעקת סוחרים ואזרחים על יוקר המחיה, הפך במהירות לגל הפגנות חסר תקדים ב-187 ערים הקורא להפלת המשטר.


הטבח והחשכת המידע (ינואר 2026):
  • דיכוי אלים: המשטר האיראני הגיב באכזריות יוצאת דופן. לפי נתוני ארגון זכויות האדם HRANA, נכון ל-23 בינואר, מספר ההרוגים המאומת עומד על למעלה מ-5,000 בני אדם, בהם 4,716 מפגינים ועשרות ילדים.
    יש דיווחים לא מאומתים מצד האופוזיציה האיראנית על מעל 60,000 הרוגים!

  • מעצרים המוניים: למעלה מ-26,500 בני אדם נעצרו, וקיים חשש כבד להוצאות להורג המוניות בבתי הכלא.

  • חסימת אינטרנט: החל מה-8 בינואר הוטל מצור דיגיטלי כמעט מוחלט על המדינה כדי למנוע זליגת תיעודים מהטבח.

המעורבות האמריקנית - "הארמדה של טראמפ":
הנשיא טראמפ, שחזר והזהיר את טהראן מפני המשך הטבח, הכריז ב-22 בינואר כי "ארמדה" אמריקנית (צי ספינות מלחמה, כולל נושאת המטוסים אברהם לינקולן) עושה את דרכה למפרץ הפרסי. טראמפ הבהיר כי ארה"ב בוחנת אפשרויות תקיפה ישירות נגד מטרות שלטוניות אם לא ייפסק הדיכוי. ולאחר הדלפות על ממדי הטבח, הכריז "העזרה בדרך".


הזווית הישראלית והאזורית:
  • כוננות שיא: ישראל נמצאת בדריכות עליונה מחשש שהסלמה אמריקנית תוביל לתגובה איראנית ישירה או באמצעות שלוחיה (פרוקסי).

  • איומי נתניהו: ראש הממשלה נתניהו הזהיר כי אם איראן תבצע "טעות" ותתקוף את ישראל, היא תפגוש עוצמה שטרם הכירה.

  • איומי טהראן: המשטר האיראני הודיע כי במקרה של תקיפה, בסיסים אמריקניים ויעדים בישראל יהיו "מטרות לגיטימיות".

באשכול זה נמשיך לעדכן סביב השעון בכל התפתחות, דיווחים מהשטח ופרשנויות ביטחוניות.
עודכן אדר תשפ"ד
ראשית, גופי הכשרות
ברוב אשכולות בנושא 'השקעות בשוק ההון' בפרוג, משתרבב עניין הכשרות.
למען הסדר באשכול זה נעלה עדכונים בנושא כשרות.
אני אשתדל לסכם ולתמצת ככל האפשר.

יש 4 גופי כשרות
  • בד"ץ העדה החרדית - על פי פסקי הרב יעקב בלוי זצ"ל שהיה בקיא גדול בתחום שוק ההון והוא שהביא את פסקיו ועל פי פסקים אלו נוהגים עד היום בגוף כשרות זה. היום הכשרות בראשות הרב שלמה זאב קרליבך.
  • גלאט הון - על פי פסקי רבי ניסים קרליץ והרב שמואל ואזנר. שסמכו ידיהם על הרב יעקב לנדו שמכיר את שוק ההון לעומקו. הרב משה שטרנבוך ראב"ד העדה החרדית הוא מרבני 'גלאט הון'.
  • תשואה כהלכה – הרב שמואל דוד גרוס, רב חסידי גור אשדוד ועוד רבנים מוכרים וידועים בכל שכבות הציבור החרדי.
  • כלכלה על פי ההלכה- הרב אריה דביר, על פי פסקי הרב יוסף שלום אלישיב.

היום בכל החברות יש מסלולים כשרים, שמאושרים לפחות ע"י אחת מהכשרויות.
בין החברות שנמצאת ברשותם תעודת כשרות אפשר למצוא את:
אלטשולר שחם, אינפיניטי, הפניקס, הראל, כלל, מגדל, מור, מיטב דש, מנורה.

רשימות קרנות כשרות:

הצטרפות לניוזלטר

איזה כיף שהצטרפתם לניוזלטר שלנו!

מעכשיו, תהיו הראשונים לקבל את כל העדכונים, החדשות, ההפתעות בלעדיות, והתכנים הכי חמים שלנו בפרוג!

לוח מודעות

הפרק היומי

הפרק היומי! כל ערב פרק תהילים חדש. הצטרפו אלינו לקריאת תהילים משותפת!


תהילים פרק כה

אלְדָוִד אֵלֶיךָ יי נַפְשִׁי אֶשָּׂא:באֱלֹהַי בְּךָ בָטַחְתִּי אַל אֵבוֹשָׁה אַל יַעַלְצוּ אֹיְבַי לִי:גגַּם כָּל קוֶֹיךָ לֹא יֵבֹשׁוּ יֵבֹשׁוּ הַבּוֹגְדִים רֵיקָם:דדְּרָכֶיךָ יי הוֹדִיעֵנִי אֹרְחוֹתֶיךָ לַמְּדֵנִי:ההַדְרִיכֵנִי בַאֲמִתֶּךָ וְלַמְּדֵנִי כִּי אַתָּה אֱלֹהֵי יִשְׁעִי אוֹתְךָ קִוִּיתִי כָּל הַיּוֹם:וזְכֹר רַחֲמֶיךָ יי וַחֲסָדֶיךָ כִּי מֵעוֹלָם הֵמָּה:זחַטֹּאות נְעוּרַי וּפְשָׁעַי אַל תִּזְכֹּר כְּחַסְדְּךָ זְכָר לִי אַתָּה לְמַעַן טוּבְךָ יי:חטוֹב וְיָשָׁר יי עַל כֵּן יוֹרֶה חַטָּאִים בַּדָּרֶךְ:טיַדְרֵךְ עֲנָוִים בַּמִּשְׁפָּט וִילַמֵּד עֲנָוִים דַּרְכּוֹ:יכָּל אָרְחוֹת יי חֶסֶד וֶאֱמֶת לְנֹצְרֵי בְרִיתוֹ וְעֵדֹתָיו:יאלְמַעַן שִׁמְךָ יי וְסָלַחְתָּ לַעֲוֹנִי כִּי רַב הוּא:יבמִי זֶה הָאִישׁ יְרֵא יי יוֹרֶנּוּ בְּדֶרֶךְ יִבְחָר:יגנַפְשׁוֹ בְּטוֹב תָּלִין וְזַרְעוֹ יִירַשׁ אָרֶץ:ידסוֹד יי לִירֵאָיו וּבְרִיתוֹ לְהוֹדִיעָם:טועֵינַי תָּמִיד אֶל יי כִּי הוּא יוֹצִיא מֵרֶשֶׁת רַגְלָי:טזפְּנֵה אֵלַי וְחָנֵּנִי כִּי יָחִיד וְעָנִי אָנִי:יזצָרוֹת לְבָבִי הִרְחִיבוּ מִמְּצוּקוֹתַי הוֹצִיאֵנִי:יחרְאֵה עָנְיִי וַעֲמָלִי וְשָׂא לְכָל חַטֹּאותָי:יטרְאֵה אוֹיְבַי כִּי רָבּוּ וְשִׂנְאַת חָמָס שְׂנֵאוּנִי:כשָׁמְרָה נַפְשִׁי וְהַצִּילֵנִי אַל אֵבוֹשׁ כִּי חָסִיתִי בָךְ:כאתֹּם וָיֹשֶׁר יִצְּרוּנִי כִּי קִוִּיתִיךָ:כבפְּדֵה אֱלֹהִים אֶת יִשְׂרָאֵל מִכֹּל צָרוֹתָיו:
נקרא  2  פעמים
למעלה