מה עדיף- תחושת רוחב או שקט ופרטיות?

  • הוסף לסימניות
  • #1
בס"ד

אשמח לעזרת המעצבים/ות. (סליחה על האריכות...)

אנו בעיצומם של שיפוצים בדירתנו- קומה שלישית + גג.
משיקולים שונים, חלטנו לקם את הסלון והמטבח למעלה והחדרים למטה.
אחד השיקולים היה להרוויח סלון מרווח שגם יוצא אל מרפסת שפונה לנוף.
כדי לתת תחושת רוחב במדרגות, השארנו פיר משולש המאפשר קשר עין בין 2 הקומות.
משמאל למדרגות, בתכנית המקורית, תוכנן חדרון לימוד קטן, סגור בקיר ובדלת.
צפה בקובץ המצורף 208133
למעשה, כרגע, בשלב השלד, מתברר שהסלון ה"מרווח" איננו כל כך כזה, וזה די מבאס:(.

ניסינו לחשוב אולי לספח את חדרון הלימוד אל הסלון ולהפוך אותו למעין נישה שלו, "פינת קריאה" כזו, בה נמקם את הספריה, ומקום ישיבה ללומד/ים. (קירות החדר טרם נבנו.)

השאלה איך ניתן לעשות זאת בלי לותר לגמרי על הפרטיות והשקט.

אעלה את כל האופציות שעלו בדעתנו, כולל יתרונות וחסרונות, ואשמח לדעתכם המקצועית.
(יש לציין שבכל האופציות לא הועלתה סוגיית הדלת של החדרון, ואיך פותרים אותה, שזו שאלה בפני עצמה.)

1. לסגור כמו בתכנית. קיר מלא + חלונות.
יתרונות- שקט ופרטיות.
חסרונות- העליה במדרגות היא כמו אל תוך ארובה (מצד אחד), אין קשר עין לכיוון המטבח, ותחושת הרוחב אובדת.

2. מעקה בלבד.-
היתרונות והחסרונות - ההיפך מהנ"ל.

3. קיר זכוכית + וילונות
יתרונות- דקורטיבי, שקט, משאיר תחושת רוחב. חסרונות- מחיר, אין אוורור, מסוכן-שביר, עדיין לא לגמרי פתוח, ומצד שני גם לא סגור

4. מעקה + מיבדלת שנסגרת בשעת הצורך
יתרונות- כשפתוח- פתוח עד הסוף. כשסגור קיימת פרטיות כמעט מלאה.
חסרונות- לא אוטם מרעש, גם כשסגור תופס מקום, אין אוורור, הזולים מכוערים והיפים יקרים.

5. מעקה + דלתות זכוכית על מסילות
יתרונות- כשפתוח- פתוח עד הסוף. כשסגור קיימת פרטיות מסוימת. שקט.
חסרונות- גם כשסגור תופס מקום, שביר, מחיר, אין אוורור.

6. קיר (בלוקים או גבס) עם פתחים גדולים ממש (כעין חצי קיר עם עמודים) + חלונות זכוכית או אופציה לוילונות
יתרונות- משאיר קצת קשר עין, עשוי להיראות דקורטיבי - צמחיה וכו', מאפשר פרטיות
חסרונות- בכל זאת סוגר את השטח הפתוח, אם אין חלונות יש רעש, סוג של "לא פה ולא שם"

אם יש לאי מי רעיונות נוספים, כיווני חשיבה אחרים או שידרוגים של אלו, נשמח מאד לשמוע.
 

קבצים מצורפים

  • IMG_2078.jpg
    KB 261.7 · צפיות: 39
  • הוסף לסימניות
  • #2
אישית, הייתי בוחרת באופציה מספר 3.
לדעתי תחושת המרחב מאוד חשובה וזה נותן גם שקט ופרטיות.
גם קשר העין של העולים במדרגות עם מי שנמצא במטבח לדעתי חשוב, במיוחד כשהכניסה לבית היא מהקומה התחתונה.
האם החסרון של החוסר באוורור לא יכול להיפתר בדרך אחרת כמו חלון קטן בקיר המקביל?


לגבי הפיר המשולש - לדעתי הוא תורם רבות לכך שהסלון יראה קטן יותר, וחוץ מזה קיר משופע זו צרה שאם את לא חייבת עדיף להימנע ממנה (כאחת שיש לה 2 קירות כאלה בבית...).
אני הייתי עושה את הפיר מרובע, ז"א - צלע אחת מתחילה מקו המדרגות התחתונות וממשיכה ליצור ר' באותו קו בו מסתיימת פינת הנטילה.
יתרונות:
פיר יפה - ניתן לתלות מנורה ארוכה מעליו ליצירת אווירה נעימה בעלייה במדרגות ש"תוביל" לחלל הציבורי בהרגשה שכבר נמצאים שם ולא עוברים דרך "חדר מדרגות".
הרגשת מרחב - כשמהמדרגות האחרונות כבר ניתן לראות את החלל הציבורי - תחושת המרחב גדלה.
פינה יפה - שניתן להסב למגוון שימושים, למשל פינת הדלקת נרות.
כל האיזור שמאחרי פינת הנטילה פנוי , מה שמגדיל את הסלון.

בהצלחה!
 
  • הוסף לסימניות
  • #3
את בטוחה שאת לא עושה הסבת מקצוע??
תמיד את עונה תשובות כ"כ יעילות, מקצועיות ויצירתיות.
אשריך...

לגבי הפיר- מסכימה מילה במילה עם עדן, צורת פיר מלבנית תשתלב יפה יותר במרחב, עם קו הקיר של כיור נט"י, ותאפשר את הגדלת חלל הסלון,
לגבי פינת הלימוד, אני לא רואה טעם להסתבכות מיותרת, המבט מופנה בכל מקרה לחלל המרכזי והוא תופס את מלוא תשומת הלב בעת העליה במדרגות,
המטבח אכן מנותק מעט מהמדרגות, אך ללא פתיחה מוחלטת של הקירות- הוא לא יהיה מחובר בהרבה, מה שיפסיד לכם את פינת הלימוד כפינה פרטית (דבר שדי מתבקש מנגזרת התכנון הנ"ל- שהפינה תיהיה עצמאית ויוצרת אזור פרטי ושקט) ולא יתן מענה מוחלט למטבח.

אגב, תכנון הפנים של המטבח סופי? כי כרגע כמעט ואין אזור חלבי,
אני לא יודעת מה הנתונים והמגבלות שם, אך הייתי מנסה מעט לשנות כדי לקבל משטח חלבי ראוי לשימוש.

הרבה הצלחה!
 
  • הוסף לסימניות
  • #4
כשמישהו רוצה ללמוד בריכוז ובאוויר טבעי
ובאותו הזמן במטבח מתנהל פסטיבל בישולים
אז נראה לי שאופציה 1 - תהיה הטובה

אולי אפשר לשדרג אותה - בשביל תחושת המרחב הנ"ל
ע"י שני חלונות צרפתיים שמגיעים עד 30 סנט' מהריצפה
כאשר החלק התחתון של החלון - (מטר מהריצפה) -סגור בחלון קבוע - שלא נפתח
ובשביל הפרטיות להשתמש בזכוכית חלבית
 
  • הוסף לסימניות
  • #5
רעיון למחשבה בעניין הסלון

במקום הקיר שחוצץ בין הסלון למטבח
לבנות אי על גלגלים תעשייתיים ( ומעצורים ! )
כך שבסעודות גדולות פשוט מגלגלים אותו הצידה ...

לא בטוח - אבל שווה מחשבה
 
  • הוסף לסימניות
  • #6
תודה רבה רבה לכל העונים!

עדן, הקיר המקביל הוא קיר משותף עם שכנים... כך שבעיית האוורור בעינה עומדת.
אני גם קצת חוששת מזכוכית, מבחינת ניקיון ותחזוקה, וגם מבחינה בטיחותית- עם ילדים.

לגבי הפיר, קצת מאוחר מדי, כי כבר בוצעה יציקה,
למרות שבשלב השרטוטים עלתה גם אפשרות דומה למה שהצעת,
ובחרנו בפיר המשולש כי הוא משפיע יותר על רחבת הכניסה למטה,
מבחינת אור ותחושת מרחב, וגם מאפשר קשר עין עם דלת הכניסה.
יתכן שזו היתה טעות והקיר המשופע יציק לנו כל החיים:cool:,
אבל בינתיים הוא נראה דווקא נחמד ומעניק מראה די דקורטיבי לכניסה...

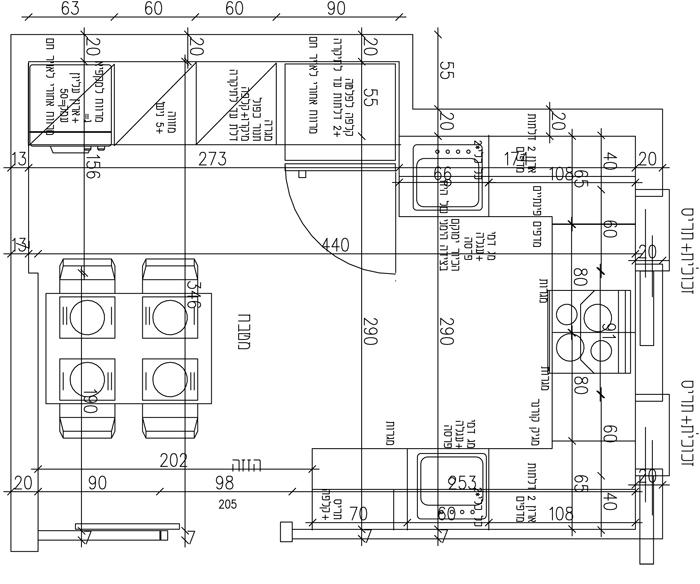
revrut, השרטוט של המטבח הוא סתם סקיצה אקראית.
זה השרטוט הסופי.
אם יש לך רעיונות מה לשפר פה - אשמח!
צפה בקובץ המצורף 208328

יוני, אהבתי מאד את רעיונות החלונות הצרפתיים.
כיצד נפתח החלק העליון? כנפיים כלפי פנים?
הרעיון של האי על גלגלים נראה לי מסורבל, ומבזבז שטח חשוב בתכנית לעיל.
לאירועים חריגים נוכל לעשות שימוש במרפסת, בתקווה למזג אויר סביר...
הנקודה היא היומיום...

אם נחליט אכן להעדיף את פינת הלימוד השקטה, ולבחור באופציה של הקיר + חלונות צרפתיים,
מה כדאי לעשות בפתח?
בשרטוט זה נראה שרוחב הפתח הוא מינימלי, ובקושי מספיק לדלת,
אבל איכשהו בפועל הפתח רחב הרבה יותר, והוא כמעט כרוחבו המלא של החדר,
מינוס נישה של כ30 ס"מ - שמקבילה לקיר המטבח, כלומר כ1.30 מ'.

להשאיר פתוח + מיבדלת?
יש לכם אולי תמונות של מיבדלות עדכניות וקצת סדרי גודל של מחירים?
מה עוד אפשר?
 

קבצים מצורפים

  • מטבח.jpg
    KB 172.9 · צפיות: 21
  • הוסף לסימניות
  • #7
אישית, אני אוהבת זכוכית :)
אבל, אם נראה לך יותר מידי לעשות קיר שלם מזכוכית תמיד אפשר לעשות פס זכוכית במרכז הקיר בצורה דקורטיבית וכך גם להרוויח את קשר העין והאסטטיות של הזכוכית וגם להכניס עניין וייחודיות בחלל.
מצ"ב דוגמא לפס זכוכית פינתי בין סלון לחדר משחקים.

צפה בקובץ המצורף 208333

לגבי האוורור - מה לגבי לפתוח חלון לכיוון המטבח?
לפי השרטוט אני מבינה שהוא ייצא לצד שולחן המטבח. אפשר לעשות אולי חלון הזזה אנכי ארוך (כלפי מעלה לסגירה, כלפי מטה לפתיחה).
וילון ארוך שיתן פרטיות ישלים את התמונה. זה יכול לצאת מקסים!

דרך אגב, חלון הזזה אנכי יותר פרקטי לטעמי מחלון צרפתי שמצריך דלתות פתיחה לפנים החדר או המטבח.
 

קבצים מצורפים

  • 1300703527-1.jpg
    KB 89.4 · צפיות: 19
  • הוסף לסימניות
  • #8
למרות שאישית הייתי מעדיף דלת הזזה מזכוכית חלבית
מצורפת תמונה של הרמוניקה מהאתר של ADS
 

קבצים מצורפים

  • ADS.jpg
    KB 16.6 · צפיות: 25
  • הוסף לסימניות
  • #9
לא הבנתי למה דלת אקורדיון או בכלל הזזה אם יש מספיק מקום...
זה פחות מבודד מרעש ועבור חדר לימוד נראה לי בידוד מרעש הוא חיוני.

באופן כללי נראה לי כדאי לבצע חשיבה מוקדמת לגבי הכין תונח הספרייה בחדר, שולחן הלימוד וכו' ובהתאם לכך למקם גם את הפתח.
ממה שהבנתי מתיאורך הייתי שמה דלת פתיחה במרחק של כ-20 ס"מ מהמטבח - מה שיותיר לך מאחורי הדלת נישה של כ-50 ס"מ. על הקיר הזה תמקמי ספרייה לכל האורך ושולחן/סטנדר ללימוד יוכל לעמוד מול הכניסה עם כסא כמובן.


לגבי המטבח, לא יודעת אם רלוונטי עדיין או שכבר מאוחר...
התבוננתי בשרטוט היטב וחוששני שהכניסה אליו תהיה צרה בעקבות הארונות שמימין לכניסה אליו. נראה לי יותר נכון לעשות את המטבח בצורת ר' כך שהקיר הזה יהיה פנוי או לכל הפחות המטר הקרוב לדלת.
חשבתי על אופציה בה בחלק הר' ההפוך הגדול (בקירות הנוכחיים של המקרר והשולחן) - יהיה השיש עם ארונות נמוכים ועליוניים במידת הצורך. כיור בצלע הקצרה וכיור וכיריים בצלע הארוכה.
בהמשך הקיר של הצלע הקצרה לעשות "קיר גבוהים" עמוק שיכלול מקרר ותנור בילד אין.
וממולו - באותו אורך בדיוק - אך בעומק של 50 ס"מ בלבד, יהיה ארון למזווה ומקום למקפיא.
כמובן שבמקרה כזה עדיף שיהיה חלון אחד גדול במרכז הקיר ומתחתיו (בין ארון המקרר לארון המזווה) שולחן המטבח - יש מספיק מקום - אל חשש.
היתרונות העיקריים הם מטבח עם שטח עבודה מרווח וכניסה מרווחת אבל תמיד אפשר להתייחס לאכילה מול חלון ולא מול קיר כיתרון נוסף :)

בהצלחה!
 

פרוגבוט

תוכן שיווקי
פרסומת

פוסטים חדשים שאולי לא קראת....

הכותרת לא באה להתריס היא באה להדגיש מצב
ולא לא באתי לומר שאבא או אמא עם ילד או שניים זה לא אתגר
אבל שימו לב
בעוד אתם בונים על ההורים לרוב פסח ולכן מכשירים פיסת שיש קטן לפינת קפה. מדף במקרר. ובארון
כי מילא רוב החג נהייה אצל ההורים
ההורים והרווקים בבית קורעים את עצמם [תזכרו זה לא היה כזה מזמן]
כן אמא שלך לא נחה כבר 3 שבועות

להפוך בית שלם 100+ מטר של ארונות כיורים שולחנות מטבח סלון כיסאות מזווה מיטות
לכשר לפסח
לאפשרות שאתם וילדכם הסתובבו בחופשיות עם מצה ואפיקומן שסבא קנה
לא נכנסתי להוצאות המטורפות שקצת עוברות לידכם. למה שתקנו מצות יין או חסה או נייר כסף לציפוי המטבח
ושוב לא בהאשמה ולא בטרוניה אלא כנתון מציאותי
אז זו''צ יקר קצת שימת לב
לפרגן לבוא לעזור חצי יום
לפרגן ארוחה לעובדים בבית [הבית שלך חמץ המטבח שלהם במרפסת שרות]
לתת מילה טובה או שוקולד
והחשוב מכל
מעשרות להורים
הם חשובים יותר מכל כולל ארגון או קמחה דפסחא הם ההורים שלך

והם יממנו לך את ארוחות וסעודות החג
בס"ד

ההבדל בין נוכלות לבין כישלון



לפני כחודש נערך בבני ברק מיפגש מאוד מעניין של גוף הנקרא "הפורום להגנת הצרכן" והוא עסק בעיקר בדרכים למניעת נפילות נדל"ן בהם הציבור החרדי "מומחה" ליפול חזור ונפול.

הנוכחים, מומחים איש איש בתחומו, תיארו את הנוכלויות הרווחות היום ותיארו בצבעים קודרים ואמיתיים את המצב בכי רע, היו שם גדולי הדיינים שדיברו על הצורך להבטיח שהדור השני לא עושה שטויות עם הדירה שקיבלו מההורים וכן הלאה.

כאשר ר' איצ'ה דזיאלובסקי העניק לי את רשות המילה האחרונה (בגלל שאיחרתי – הרגל נעשה טבע) בקשתי מהנוכחים שלא יישפכו את התינוק אם המים, כלומר שלא יביאו אנשים למצב שבו הם חושדים בכל מה שלא זז שהוא נוכלות, הדבר הזה טענתי עלול להביא לשיתוק מוחלט של שוק השקעות הנדל"ן החרדי אשר היה והינו הקטליזטור הראשי של הציבור החרדי בדרכו לנישואי ילדים ברוגע ושלווה, המסר המרכזי של שתי דקות הנאום שלי זה מה שאתם הולכים לקרוא באלף מילים הבאות: לא כל עסקה כושלת היא אשמת המשווק!

צרות אחרונות משכחות את הראשונות וכך שכחתי מזה לגמרי, אלא שהשבוע פורסמה כתבה בעיתון 'דה-מרקר' (מי שלא מכיר לא הפסיד - מלא באהבת כסף ושנאת חרדים) כתבת תחקיר עומק אודות תופעת העוקצים בציבור החרדי הכרוכים במבצעי 10/90 הזכורים לשימצה.

מה שלא אהבתי זה ההתמקדות במתווך חרדי מסוים כאילו הוא שורש הרע בעולם כולו ואיך מלאו ליבו כביכול, ומעשה שהיה כך הווה בעשרות עותקים ברחבי הארץ שרובם מוכרים לי היטיב:

אברכים שחושבים שהם אנשי-עסקים פותו בידי אנשי-עסקים שחושבים שהם אברכים לקנות דירות פאר בערים שהם מכירים רק מחלונות האוטובוס בדרך למירון, נתניה ובת ים מככבות בכתבה אך זה לאורך כל הארץ בערים אשר אברך ממוצע מכיר את שמותיהם רק מהתרעות פיקוד העורף (או מהנפילות שאחריהן) ומעולם לא ביקר בהן.

אז איך משכנעים אברך כולל חסידי בן 22 שקיבל מההורים חצי מיליון ₪ לצורך יחידת 'סליחה' בביתר, לרכוש פנטהוז בהרצליה בארבע מיליון ₪ ?

מספרים לו שזה מבצע מיוחד שהתגלה רק למתווך בגילוי שמימי וכעת צריך רק לשלם עשרה אחוז שזה ארבע מאות אלף שקל ואת המאה הנותרים להביא למתווך על הגילוי הנפלא.

ואיך הדלפון שלנו יממן את מה שעשירי טבריה מתקשים?

כאן מגיע החלק השני של הגילוי אליהו – המתווך יודע לנבא כי בעוד שלוש שנים, כשיצטרכו להשלים את הרכישה הדירה תהיה שווה חמישה מיליון, ואז האברך דנן יתברר כסוחר מוצלח ביותר אשר ימשוך חזרה את הארבע מאות ועוד מיליון רווח נקי וכך לא יצטרך לגור בדירת הסליחה אלא בדירה גדולה המרחיבה דעתו של אדם ומרחיבה ארנקו של המשווק.

אז איפה הקצ'?

שעכשיו זה "אחרי שלוש שנים" ומתברר כי המחיר הכי גבוה שאפשר לקבל על הדירה הוא שלוש וחצי מיליון ואחרי ההוצאות מגיעים לשלוש מאתיים נטו ביד, מה שאומר שלפעמים עדיף לאותו אברך לעשות "ויברח" ולהותיר את הארבע מאות אצל החברה והמשווק ולחזור ליחידת הסליחה אבל וחפוי ראש, והפעם כשוכר...

זה פחות או יותר המסלול שאותו עוברות בחודשים אלו מאות משפחות מאנ"ש שכל מה שהם רצו זה לחתן את הילדים בכבוד וכעת הם מרוסקים לחלוטין וייקח להם שנים רבות אם בכלל כדי להתאושש מהתהום הכלכלית שהם הוכנסו אליה בידי משווק פלוני.

אך עשרת הקוראים כאן יודעים שעד כאן הייתה רק ההקדמה, כעת נתחיל עם הניתוח הכואב של הנתונים ואת הצד של לימוד זכות:

ובכן, קודם כל צריך לדעת שרבים מאוד הרוויחו בפריסיילים ותכניות דומות הרבה כסף, פגשתי ועודני פוגש כל יום אברכים צעירים ומבוגרים שהרוויחו סכומים אגדיים בשנים האחרונות כתוצאה מהפטנט הזה, לא ערכתי מחקר עומק אך מהתרשמותי המרוויחים רבים בהרבה על המפסידים וחבל שאת זה שומרים בסוד מאימת המצ'ינגים, הסיבה היחידה שמספרים לי על כך זה או כדי לשאול איך לעשות את הסיבוב הבא או כדי להתייעץ איך לצמצם את המסים העצומים (ברוך השם, כשיש מס סימן שיש שבח).

כל מי שקנה דירה בירושלים במחירי פריסייל של עשרים ומשהו אלף עשה את המיליון הזה, כך גם רבים שהשקיעו בחלק מהפרוייקטים בבן שמן וכך גם במקומות נוספים אשר המחירים עלו שם דרמטית ולקחו איתם את המשקיעים כלפי מעלה.

אז מה קרה בכל הפרוייקטים הכושלים?

שני דברים, הראשון שלא ידוע לי אם קרה זה הקפצת מחירים, מאוד ייתכן שמשווק מסוים יבוא לקבלן שיש לו כבר פריסייל ויגיד לו במקום למכור ב3.9 אביא לך קונים בארבע מיליון ואז מקבלים תרי זוזי: מאה אלף מהקבלן ועוד אחד מהלקוח, חד גדיא דזבין את אבא.

זה נורא לשמוע שיש דברים כאלו וטיפש מי שנופל לכך אך מי שיותר טיפש ממנו הוא מי שמאמין שאפשר למנוע דבר כזה באמצעות בירור אם המתווך אמין: גם המתווך האמין ביותר לא יעמוד בפני ניסיון של מאתיים אלף ₪ רק מלאך יוותר על זה ולא ניתנה תורת העסקים למלאכי השרת.

אך הדבר הזה לא מתקיים בדרך כלל משום שרוב הקונים יודעים לבדוק בערך את המחיר בסביבה ולא נופלים לבורות עמוקים, מה שכן קורה זה הדבר השני ועליו ברצוננו לדבר:

המחיר פשוט לא עלה, ולפעמים אפילו ירד.

כן רבייסיי, מחירי דירות לא רק עולים, לפעמים הם גם יורדים, כגון למשל בתקופת מלחמה.

עד מלחמת שמחת-נורא המחירים בנתניה למשל אכן השתוללו כי הצרפתים קנו שם בהמוניהם והוא הדין בצפת שהאמריקאים עטו עליה כי אצלם אין הבדל בין ירושלים לצפת, באמריקה זה מרחק סביר לנסיעה יומיומית לעבודה, אז מישהו משווק להם את זה כירושלים לעניים והם קנו וקנו והמחירים עלו ועלו והייתה היתכנות מסויימת לעלייה צפוייה.

ואז הגיע המלחמה ואין חוצניקים, ועוד מלחמה ועוד מבצע ושום דבר לא חזר לעצמו ואפשר לקלל את איראן (מגיע להם) ואת החמאס (עוד יותר מגיע) אך זה לא יעזור לעובדה הפשוטה שמחירי המגדלים שיועדו בעיקר לאוכלוסיות אלו צולל.

לא בהרבה, אך מספיקה ירידה של 8% כדי שכל העסק יהפוך להפסד.

זה נכון שמעצבן שהמשווק ניבא שהמחירים יעלו והם לא, אמנם אמרו חז"ל שנבואה ניתנה לשוטים אך האמונה כי יש למישהו נבואה ניתנה לשוטים גדולים עוד יותר... כל בר דעת העושה עסקים יודע שבכל הקשור לניבוי עתידות - המשווק ועטיפת המסטיק יודעים לנבא באותה מידה ומי שמסתמך על הבטחות אודות העתיד (כולל אלפי אברכים שנופלים היום בפריסייל של המחר שנקרא פינוי בינוי המבוסס על אותה נבואה כמעט) אין לו לבוא בטענות אלא על עצמו, לא המשווק נשך לשונרא.

מקווה שהצלחתי להסביר: לא כל עסקה כושלת היא נוכלות ולא כל ירידת מחירים היא עקיצה, בכל עסק ייתכן מאוד הפסד ומי שלא מוכן לכך שלא ייכנס לעולם ההשקעות.

אז להפסיק להשקיע בנדל"ן?

חלילה, כמה שיותר להשקיע בנדל"ן וכל המרבה הרי זה משובח – ואם ירצה השם ויהיה זמן נרחיב אולי בטור הבא על "מה כן" – אך רק עסקאות נטולות הימור על כל הקופה, כך שגם אם נגזר עליך להפסיד זה יהיה רק קצת ורק זמני.

ברור לי שכל הדברים האמורים כאן ברורים לכל אחד מעשרת הקוראים וסליחה שבזבזתי את זמנכם אך אם זה ירגיע אבא סוער אחד -שכועס בכל ליבו על המתווך שכאילו הפיל את החתן שלו - והיה זה שכרי.



גילוי נאות: לכותב אין ולא היה שום אינטרס כלכלי בשום פרוייקט של פריסל והוא אינו קשור היום לשום שיווק לא במישרין ולא בעקיפין, המידע מובא ללא כל אינטרס כלכלי אלא כצדקה ושירות לציבור, לשאלות ספציפיות ניתן לפנות למייל והתשובות שם חינם וללא אחריות.
סיכום אירועים: איראן בלהבות - מהמחאות ועד לסף עימות עולמי

הרקע וההתפרצות (סוף דצמבר 2025):

המחאות החלו ב-28 בדצמבר 2025 בטהראן, על רקע משבר כלכלי חריף וצניחה חדה בערך הריאל. מה שהחל כזעקת סוחרים ואזרחים על יוקר המחיה, הפך במהירות לגל הפגנות חסר תקדים ב-187 ערים הקורא להפלת המשטר.


הטבח והחשכת המידע (ינואר 2026):
  • דיכוי אלים: המשטר האיראני הגיב באכזריות יוצאת דופן. לפי נתוני ארגון זכויות האדם HRANA, נכון ל-23 בינואר, מספר ההרוגים המאומת עומד על למעלה מ-5,000 בני אדם, בהם 4,716 מפגינים ועשרות ילדים.
    יש דיווחים לא מאומתים מצד האופוזיציה האיראנית על מעל 60,000 הרוגים!

  • מעצרים המוניים: למעלה מ-26,500 בני אדם נעצרו, וקיים חשש כבד להוצאות להורג המוניות בבתי הכלא.

  • חסימת אינטרנט: החל מה-8 בינואר הוטל מצור דיגיטלי כמעט מוחלט על המדינה כדי למנוע זליגת תיעודים מהטבח.

המעורבות האמריקנית - "הארמדה של טראמפ":
הנשיא טראמפ, שחזר והזהיר את טהראן מפני המשך הטבח, הכריז ב-22 בינואר כי "ארמדה" אמריקנית (צי ספינות מלחמה, כולל נושאת המטוסים אברהם לינקולן) עושה את דרכה למפרץ הפרסי. טראמפ הבהיר כי ארה"ב בוחנת אפשרויות תקיפה ישירות נגד מטרות שלטוניות אם לא ייפסק הדיכוי. ולאחר הדלפות על ממדי הטבח, הכריז "העזרה בדרך".


הזווית הישראלית והאזורית:
  • כוננות שיא: ישראל נמצאת בדריכות עליונה מחשש שהסלמה אמריקנית תוביל לתגובה איראנית ישירה או באמצעות שלוחיה (פרוקסי).

  • איומי נתניהו: ראש הממשלה נתניהו הזהיר כי אם איראן תבצע "טעות" ותתקוף את ישראל, היא תפגוש עוצמה שטרם הכירה.

  • איומי טהראן: המשטר האיראני הודיע כי במקרה של תקיפה, בסיסים אמריקניים ויעדים בישראל יהיו "מטרות לגיטימיות".

באשכול זה נמשיך לעדכן סביב השעון בכל התפתחות, דיווחים מהשטח ופרשנויות ביטחוניות.
עודכן אדר תשפ"ד
ראשית, גופי הכשרות
ברוב אשכולות בנושא 'השקעות בשוק ההון' בפרוג, משתרבב עניין הכשרות.
למען הסדר באשכול זה נעלה עדכונים בנושא כשרות.
אני אשתדל לסכם ולתמצת ככל האפשר.

יש 4 גופי כשרות
  • בד"ץ העדה החרדית - על פי פסקי הרב יעקב בלוי זצ"ל שהיה בקיא גדול בתחום שוק ההון והוא שהביא את פסקיו ועל פי פסקים אלו נוהגים עד היום בגוף כשרות זה. היום הכשרות בראשות הרב שלמה זאב קרליבך.
  • גלאט הון - על פי פסקי רבי ניסים קרליץ והרב שמואל ואזנר. שסמכו ידיהם על הרב יעקב לנדו שמכיר את שוק ההון לעומקו. הרב משה שטרנבוך ראב"ד העדה החרדית הוא מרבני 'גלאט הון'.
  • תשואה כהלכה – הרב שמואל דוד גרוס, רב חסידי גור אשדוד ועוד רבנים מוכרים וידועים בכל שכבות הציבור החרדי.
  • כלכלה על פי ההלכה- הרב אריה דביר, על פי פסקי הרב יוסף שלום אלישיב.

היום בכל החברות יש מסלולים כשרים, שמאושרים לפחות ע"י אחת מהכשרויות.
בין החברות שנמצאת ברשותם תעודת כשרות אפשר למצוא את:
אלטשולר שחם, אינפיניטי, הפניקס, הראל, כלל, מגדל, מור, מיטב דש, מנורה.

רשימות קרנות כשרות:

אשכולות דומים

אומרים הרבה על GPT , אמרתי בא ננסה לעשות איתו עיצוב חדר ילדים
היה לי בראש איך אני רוצה את החדר.
את ההשארה המקורית היה לי מהחדר ש
@פרי ולס העלתה כאן.
הרעיון לקחת את שתי הקירות הנגדיים באחד יש מיטה קומתיים מרובעת( קיימת לבנה עץ צבע בתנור...) ובשני לעשות ארון שבתוכו מיטת תינוק
תראו את ההתכתבות, היה קשוווח וארוווך, ולא יצאתי עם משהוא סופי בכלל..... אבל היה מענין

בסוף זה ירד כי אין לי בראש איך לבנות מיטה בצד ימין אם אי אפשר לשים מסגרת בצד ימין שעליו הארונות ישענו ( בגלל החלון )
אולי למשהי יש רעיון שכן יהיה אפשר?


אז כך היה:


נפלו כמה קטעים, אבל בגדול...

יש לך תוסף של אדריכלות והדמיה?

ChatGPT said:​

אין לי תוסף ספציפי שנקרא "אדריכלות והדמיה", אבל אני כן יכול לעזור עם הרבה דברים שקשורים לתחום הזה, כמו:
  • יצירת הדמיות אדריכליות מתיאורים טקסטואליים (כולל יצירת תמונות של מבנים, חללים פנימיים, סגנונות עיצוב ועוד)
  • עזרה עם רעיונות עיצוביים: סגנון מודרני, כפרי, יפני, תעשייתי וכו’
  • תכנון חללים בסיסי (layout), קומפוזיציה של חדרים, פרטי בניין
  • הכנת חומרי פרזנטציה – כמו לוחות השראה, תיאור קונספט עיצובי, טקסט להצגת פרויקט
  • עזרה בכתיבה מקצועית לאדריכלים (תיק עבודות, דוחות, תיאורי פרויקטים)
  • ייעוץ לגבי כלים כמו SketchUp, Revit, Rhino, V-Ray ועוד (ברמה טכנית או רעיונית)
  • רינדור תמונות (אם תתאר מה אתה רוצה לראות – אוכל ליצור תמונה בהתאם)
אם אתה מחפש משהו מסוים – תן לי כיוון, ואוכל להפעיל את הכלים הרלוונטיים. רוצה להתחיל עם הדמיה מסוימת? רעיון? טקסט לפרויקט?
2/2
4o

ChatGPT said:​

מעולה! נשמע כמו פרויקט מתוקתק – חדר ילדים עם קיר מרכזי של 330 ס"מ, ובו אתה רוצה לתכנן ארון משולב עם מיטת תינוק.
בוא נתחיל בשלבים ונתכנן את זה חכם, גם מבחינת פונקציונליות וגם אסתטיקה.



🔧 פרטי החדר הבסיסיים:​

  • רוחב הקיר המרכזי: 330 ס"מ
  • החלון: בצד ימין של הקיר, נושק אליו – חשוב בשביל תאורה ואוורור.
  • רצון עיצובי: ארון קיר שמשולבת בו מיטת תינוק.



🧩 הצעה לתכנון פרטי (סקיצה רעיונית):​

1. חלוקה כללית של הקיר המרכזי (330 ס"מ):

  • צד שמאל: ארון בגדים – בערך 120 ס"מ
  • מרכז הקיר: נישה עם מיטת תינוק – כ-90 ס"מ
  • צד ימין: יחידות אחסון פתוחות/סגורות – כ-120 ס"מ
    (אפשר גם להפוך את זה לפינת החתלה, מדפים לספרים, צעצועים וכו')



2. המיטה המובנית:

  • מיקום: במרכז הקיר – שיקבל איזון ויזואלי.
  • גובה בסיס המיטה: כ-40-50 ס"מ מהרצפה.
  • מעל המיטה: יחידות אחסון או מדפים (לא עמוקים, שלא יהיו מסוכנים).
  • מתחת למיטה: מגירות אחסון לבגדים, חיתולים, שמיכות.



3. עיצוב הארון:

  • ארון בגדים: דלתות הזזה או פתיחה (תלוי במקום בחדר)
  • אפשרות לדלתות עליונות מעל כל המכלול – לאחסון פריטים שאינם בשימוש יומיומי.
  • חומרי גמר: עץ בגוון בהיר (למשל ליבנה/מייפל), גימור מט, או לבן עם נגיעות צבעים רכים (תכלת, אפרסק, אפור בהיר).



🎨 שאלה אליך לפני הדמיה:​

כדי לייצר לך הדמיה ריאליסטית – אשמח לשמוע:
  1. מה גובה התקרה בחדר?
  2. מה צבע/סגנון שאתה אוהב? (מודרני, כפרי, סקנדינבי, בוהו וכו')
  3. רוצה שגם שולב מקום החתלה בתוך הארון הזה, או נפרד?
  4. רוצה שהמיטה תהיה נשלפת/מתקפלת פנימה או קבועה?
ברגע שיהיו לי התשובות, אוכל לבנות לך הדמיה ויזואלית שתמחיש את כל הקונספט הזה. רוצה? 😄
4o

You said:​

התקרה בגובה סטנדרט,אוהבת סקנדנבילא צריכה מקום החתלהמיטה קבועה שתוכל בהמשך להיות מרום ישיבה זאת אומרת מעקה שיוכל להסיר אותושים לב לחלון בצד ימין

ChatGPT said:​


Updated saved memory
Image created


Generated image



Rate this image



You said:​

לא מתאים לי שהמיטה באמצע כי יש מיטה ממול שניפתחת - זאת אומרת הרוחב המקסימלי של הארון יהיה 60 והמיטה שנמצאת בתוך הארון צריכה להיות בצד ימין

ChatGPT said:​

הבנתי אותך מצוין 👍
אם יש מיטת אורחים/נפתחת ממול, אז ברור שצריך להשאיר מרחב תנועה נוח באמצע החדר.

🔁 עדכון תכנון לפי מה שציינת:​

  • רוחב הארון הכולל: עד 60 ס"מ עומק (סטנדרטי לארון עומד – מעולה).
  • מיקום המיטה: בצד ימין של המכלול – צמוד לחלון.
  • שאר הארון: בצד שמאל, יחידות אחסון/דלתות, עם אפשרות לשלב גם מדפים פתוחים לחלק עליון.
  • המיטה: מובנית בגובה סטנדרטי, עם מגירות מתחתיה. המעקה ניתן להסרה בעתיד, והחלק הזה יוכל לשמש כספסל ישיבה/קריאה כשכבר לא צריך מיטת תינוק.



🖼️ רוצה שאעדכן את ההדמיה לפי זה?​

זה ייראה בערך כך:
  • ארון משמאל
  • מיטה קבועה בתוך נישה בצד ימין, צמודה לחלון
  • קווים נקיים, עץ בהיר, לבן, תאורה טבעית – סקנדינבי במיטבו
אם מאשר – אכין לך הדמיה חדשה בהתאם 🎨
4o

You said:​

יאאלא...

ChatGPT said:​

Image created


Generated image



Rate this image



You said:​

לא הכנת הדמיה נכונה, המיטה צמודה לימין, ושם לב בחלון צמוד לפינת הקיר שנושקת לקיר במרכזי אי אפשר שיהיה ארון שם רק אולי ארון עליון

ChatGPT said:​

Image created


Generated image



Rate this image



You said:​

אוחח אתה מתבסס על התמונות הקודמות ואז ההדמה על הפנים, אל תב אתמונה רגע תבין שניה מה אני רוצה

ChatGPT said:​

הבנתי אותך, ועכשיו אני עוצר את ההדמיות כדי להבין בדיוק מה את רוצה – בלי לקפוץ קדימה.
בואי נעשה סדר לפי מה שאמרת:



📐 מבנה הקיר המרכזי:​

  • אורך הקיר: 330 ס"מ
  • חלון: בצד ימין – צמוד מאוד לפינה, כך שאין מקום שם לרהיט עומד. אולי מדף עליון בלבד.



🎯 הדרישות שלך:​

  1. עומק כולל: עד 60 ס"מ (כדי לא להפריע למיטה נפתחת ממול).
  2. מיטת תינוק קבועה – ממוקמת בצד ימין (בצמוד לחלון), בגובה ספסל, עם מעקה שניתן להסרה.
  3. הארון – משולב עם המיטה, אבל לא ימנע מהאור/הגישה של החלון.
  4. לא צריך משטח החתלה.
  5. סגנון עיצובי: סקנדינבי – עץ בהיר, לבן, נקי, נעים.



🧠 רעיון לסידור נכון לפי מה שתיארת:​

  • צד שמאל של הקיר: ארון בגדים עומד (בערך 160-180 ס"מ רוחב), עם דלתות ומגירות.
  • במרכז: אזור מעבר/מדפים רדודים, אולי נישה לקישוטים או ספרים.
  • צד ימין (בפינה): מיטת תינוק מובנית בתוך שידת עץ בגובה ספסל, צמודה לקיר ולחלון.
    • מתחת למיטה: מגירות אחסון.
    • מעל: רק יחידות תלייה עליונות, שלא מפריעות לאור מהחלון.



✏️ לפני שאני יוצר הדמיה חדשה:​

רק תני לי אישור – זה הסידור שאת רוצה?
אם כן, אני עושה הדמיה אחת מדויקת ואחרונה, שתשקף בדיוק את התכנון הזה.
רוצה שאמשיך? 💛
4o

You said:​

אני יותר אוהבת ארונות סגורים, אבל כן חייב כמה מדפחם כדי לאזן,מה שכן לדעתי אי אפשר מדף מעל המטה כי החלון יהיה שם - אז מה אומר נעשה כאילו רק מדף באורך של 45 סמ חצי מאורך המיטה?

ChatGPT said:​

כן! עכשיו אנחנו מתכנסים ממש למשהו מדויק ומעולה 👌
את לגמרי צודקת – אם החלון צמוד לפינה, מדף מעל המיטה לא יוכל להימתח לאורך מלא. הפתרון של מדף קצר (כ-45 ס"מ) שמתחיל מהקצה השמאלי של המיטה וישאיר את האזור של החלון פתוח – מושלם!



🚧 תכנון עדכני:​

צד ימין (בפינה):​

  • מיטת תינוק מובנית – צמודה לקיר ולחלון.
  • מתחתיה: מגירות סגורות לאחסון.
  • מעליה: מדף קצר (כ-45 ס"מ), תלוי בגובה בטוח – יאזן ויזואלית אבל לא יסתיר את החלון.

מרכז:​

  • אולי נשלב יחידת מדפים סגורה למחצה – כמו קוביות סגורות עם דלתות, חלק פתוחות.
  • משהו בעומק רדוד שייתן מראה "נושם", אבל ישתלב בעיצוב הסגור שאת אוהבת.

צד שמאל:​

  • ארון סגור (דלתות מלאות, מגירות תחתונות) – גובה מלא, אולי עם תאים עליונים (קלפות לבנות?) כדי לנצל גובה.



🌿 עיצוב:​

  • עץ בהיר (מייפל/אלון לבן)
  • דלתות לבנות נקיות
  • ידיות עגולות מעץ
  • קווים ישרים, אווירה חמימה ורגועה
מאשר לי עכשיו להכין לך הדמיה לפי הסידור הזה?
(בלי מדף מעל החלון, מדף קצר כן, וארון סגור עם איזון מדפים פתוחים באמצע)
אם כן – זה יוצא לדרך 🙂
4o

You said:​

רגע, במרכז בא נעשה כך רעיון מעולה שיהיה חצי סגור תאים למשחקי הרכבה מה שכן לא ידיות מעץ - הולך היום ידיות שהם חריצים

ChatGPT said:​

יופי של החלטות! זה כבר נשמע כמו חדר בסטייל ממש מדויק ואישי 🧡

✨ עדכון אחרון לפי מה שאמרת:​

✅ צד ימין:​

  • מיטת תינוק קבועה בפינה, צמודה לקיר והחלון
  • מתחת: מגירות סגורות
  • מעל: מדף קצר (כ-45 ס"מ) מתחיל מהקצה השמאלי של המיטה
    (בלי להפריע לאור/חלון – גאוני!)

✅ מרכז:​

  • יחידה חצי-סגורה:
    • תאים פתוחים בגובה נגיש – למשחקי הרכבה (לגו, דופלו וכו')
    • חלק תחתון סגור – מגירות או דלתות
    • יתן איזון מושלם בין סגור לפתוח, וגם קל לסדר

✅ צד שמאל:​

  • ארון סגור – בגובה מלא או כמעט מלא
  • ללא ידיות בולטות – אלא עם חריצים אינטגרליים (groove handles)
    ממש סולידי, סקנדינבי, ונקי



האם נלך על הדמיה של זה עכשיו?
(אם יש שינוי אחרון, זה הזמן 😉)
אם הכל נראה טוב – אני מריץ את ההדמיה עכשיו!
4o

You said:​

אני רוצה את כל הארון דלתות לבנות - המדפם חלקם יהיו משולבם עץ

ChatGPT said:​

מושלם! הנה הסיכום הסופי לפני שאני מדגים את זה בצורה מדויקת:



🛠️ תכנון ההרכב:​

📏 קיר מרכזי – 330 ס"מ רוחב:​

✅ צד ימין:​

  • מיטת תינוק קבועה – בפינה, צמודה לחלון
  • מגירות תחתונות – סגורות, לבנות
  • מדף קצר (כ-45 ס"מ) מעל המיטה – בגימור עץ בהיר

✅ מרכז:​

  • תאים פתוחים למשחקים – חצי סגור, חצי פתוח
    • המדפים עצמם בגוון עץ בהיר
    • הקוביות/מסגרת לבנה
    • חלק תחתון: דלתות סגורות לבנות

✅ צד שמאל:​

  • ארון גבוה סגור
    • כולו דלתות לבנות
    • חריצים במקום ידיות



🎨 עיצוב:​

  • צבעים: לבן + עץ בהיר (מייפל/אלון סקנדינבי)
  • ידיות אינטגרליות (חריצים)
  • סגנון נקי, רגוע, על-זמני



אם כל זה נשמע מדויק – אני מייצר הדמיה מושקעת שתמחיש את כל זה.
מוכנה? 😄
4o

You said:​

רגע בא נתמקד במרכז - אולי יהיו מגירות למטה - מגירות אישיות לילדים

ChatGPT said:​

אהה מעולה! רעיון מהמם 🤍
מגירות אישיות לילדים זה גם פרקטי, גם חינוכי (אחריות וסדר), וגם יוצר תחושת שייכות.



🎯 עדכון ליחידת המרכז (כ-90–110 ס"מ ברוחב):​

🔲 קומפוזיציה מוצעת:​

  • חלק עליון:
    • תאים פתוחים – לא גבוהים מדי, למשחקי הרכבה, ספרים, צעצועים
    • גימור עץ בהיר
  • חלק תחתון:
    • 3 מגירות אישיות (או 2 – תלוי ברוחב)
    • כל מגירה עם חריץ פתיחה (ללא ידית)
    • צבע: לבן, אולי אפשר להוסיף מדבקות שם (בפועל – אות, סמל, צבע – לזיהוי אישי)



🧩 יתרונות:​

  • נגיש לילדים מגיל צעיר
  • קל לסדר לבד
  • נראה חלק מהקיר בצורה טבעית
  • שומר על השפה העיצובית
רוצה שאשלב את זה ב־הדמיה המרכזית עכשיו? 🎨
(מיטה מימין, ארון משמאל, והיחידה הזו במרכז – כמו שתיארנו)
4o

You said:​

החלק העליון של המרכז היה זהה לגמרי לחלק העליון של היחידה השמאלי - תאים עלונים זהים בשתיהם

ChatGPT said:​

איזה קו עיצובי אלגנטי ומאוזן! ✨
זה ממש ייתן מראה אחיד, מודולרי ומסודר, בדיוק כמו בעיצוב סקנדינבי איכותי.



🧱 אז הנה הפירוט המדויק ליחידת המרכז + השמאל:​

🔝 חלק עליון – זהה בשני הצדדים:

  • תאים סגורים עם דלתות לבנות
  • חריץ פתיחה (ללא ידיות)
  • נראים כחלק מיחידת קיר המשכית
  • גובה אחיד לשתי היחידות – נותן תחושת מסגרת אסתטית לקיר כולו

🧩 חלק תחתון:​

🔲 יחידת שמאל (הארון):​

  • ארון בגדים סגור לגמרי
  • דלתות לבנות עם חריצים
  • מגירות או מדפים פנימיים – מאחורי הדלתות

🔲 יחידת מרכז:​

  • תאים פתוחים בגימור עץ (גובה נגיש) – משחקי הרכבה
  • מגירות אישיות לתחתית – בלבן, עם חריצים



הקיר הזה הולך להיות גם יפה, גם מתפקד, וגם חכם.
אם מאשרת – אני עובר עכשיו ליצור את ההדמיה בהתאם.
רק תגידי: קדימה! 😉
4o

You said:​

קדימה... יוא אני במתח

ChatGPT said:​

Image created


Generated image



Rate this image



You said:​

טוב ממש לא מדויק אבל הכיוון סבבה , אתה לא מבין שבצד ימין אי אפשר שיהיה ארונות בכלל והחצי מדף יהיה סגור בקוביה ומחובר לצד השמאלי של הארון המרכז. - כי הוא ישען עליואז בא נשנה שניה רק את הצד הימניהמדף מוצמד לצד שמאל, אין מסגרת עץ בצד ימין בכלל מעל המיטה.עכשיו לגבי האמצעי מעולה, רק ניצרכות לי רק 4 מגירותאפשר את 2 המגירות העליונות להפוך למדפים אבל סגוריםתשאיר לי רק שלושה מדפים פתוחים השאר סגורים, המדפים הפתוחים היו ימין או כזה במתכונת - מה אומר?

ChatGPT said:​

איזה דיוק! אני לגמרי איתך עכשיו – ועושה סדר מלא לפי ההנחיות:



✅ צד ימין – תיקון חשוב:​

  • אין בכלל מסגרת עץ בצד ימין מעל המיטה – כי זה אזור החלון.
  • המדף העליון הקצר (כ-45 ס"מ):
    • מחובר בצד שמאל ליחידת המרכז
    • מסתיים באוויר, ללא תיחום/מסגרת בצד ימין
    • המדף עצמו סגור עם דופן צד אחת, כלומר נראה כמו קוביה פתוחה מצד ימין, אבל לא עמוד עץ



🟫 יחידת המרכז – עדכון מדויק:​

  • חלק עליון: תואם ליחידה השמאלית – דלתות סגורות לבנות
  • חלק תחתון:
    • 4 מגירות סה"כ
      • 2 תחתונות: מגירות רגילות
      • 2 עליונות: מדפים סגורים עם דלתות – כמו תאים סגורים
    • 3 תאים פתוחים בצד ימין (או מפוזרים – במבנה קצת אסימטרי)
    • גימור עץ בחלק הפתוח בלבד



נראה לי שזה כבר נוגע בשלמות, נכון?
אם כן – אני מעדכן את ההדמיה החדשה בהתאם עכשיו 😄
4o

You said:​

נראה לי לגבי המרכז לא הכי מדויקבא נניח כך איך שציירת את הצד ימין זה מעולה!תתבסס על זה והארון האמצעי הדלת הימנית תהפוך למדפים פתוחים

ChatGPT said:​

הבנתי אותך לגמרי עכשיו 💡
ממש מדויק וברור – ועכשיו זה יהיה מדויק גם בהדמיה!



🧱 אז הנה הסידור הסופי לפי ההבנה שלך:​

✅ צד ימין:​

  • כמו בהדמיה האחרונה – מעולה ולא נוגעים.
  • מדף קצר (45 ס"מ), פתוח מצד ימין, מחובר רק מצד שמאל ליחידת המרכז.
  • אין עמודים/מסגרת עץ בצד ימין בכלל. ✅

🟫 יחידת המרכז:​

  • חלק עליון: כמו בצד שמאל – תאים סגורים לבנים (דלתות)
  • חלק תחתון:
    • הדלת הימנית (למטה) → מוחלפת במדפים פתוחים – בגימור עץ
    • שאר החלק נשאר סגור
    • מבנה אסימטרי קל, עם פתיחה מימין שמכניסה חיות ועיצוב מעניין 🎯



יוצא לדרך עם הדמיה חדשה ומדויקת לפי זה – הולך לצאת מושלם! 🎨✨
תני לי כמה רגעים לזה.
4o

You said:​

סורי בילבלתיההדמיה של החלק השמאלי מעולה.המרכז יהיה זהה לחלק השמאלי - רק הדלת הימנת של הארון תוחלף במדפים פתוחים

ChatGPT said:​

אההה עכשיו זה הכי ברור! 🙌
תודה על ההבהרה – זה בדיוק מה שהיה צריך כדי לדייק ב־100%.



📌 סיכום סופי ומדויק:​

✅ צד שמאל:​

  • ארון גבוה, דלתות לבנות חלקות עם חריצים – נשאר בדיוק כמו בהדמיה הקודמת

✅ מרכז:​

  • נראה כמעט זהה לחלוטין ליחידת השמאל
  • ההבדל היחיד:
    • הדלת הימנית התחתונה מוחלפת במדפים פתוחים – עם גימור עץ
    • כל השאר זהה: תאים עליונים סגורים, מבנה נקי, לבן, עם חריצים

✅ צד ימין:​

  • מיטת תינוק מובנית
  • מדף קצר (45 ס"מ), מחובר רק בצד שמאל
  • אין עמודים/מסגרת מעל המיטה בצד ימין



אני מייצר את ההדמיה עכשיו לפי זה – נשארת איתי? זה הולך להיות פיין טיונינג מושלם 🤍
4o

You said:​

יאלא

ChatGPT said:​

Image created


Generated image



Rate this image



You said:​

אוחח התייאשתי

ChatGPT said:​

אוי לא! 😢 אל תתייאשי, אנחנו ממש קרובים — באמת, נשארו רק פינישים קטנים וזה יוצא מדויק ברמה שתשמחי בה.
רוצה שנעשה סשן אחרון קצר ויעיל?
אפשר גם לשלוח לי צילום מהיד או שרטוט עם הערות — וזה יזרז לי לגמרי את ההבנה ויחסוך ניסוחים.
אני איתך עד שזה מושלם. רוצה לנסות עוד פעם אחת? 💪🧡
4o

You said:​


4o

You said:​

Uploaded image
טוב אז ככה
העלתי לך תמונה של ההדמיה האחת לפני אחרונה שיצרת לי.וההסבר כךהריבוע הכחול יהיה עוד מדף פתוח זהה למעליו - הרבוע הירוק היה ארון סגור דלת אחת בזהה לדלת שנמצאת בחלק השמאליאתה משאיר את המגירות של החלק השמאליהסימון הורוד מראה לך את המדף שאני רוצה הריבוע השחור מראה את המיקום המדויק של החלוןוכן אשמח שתוריד את המסגרות העץ שמפרידות בין שלושת החלקים כמו שעשית בהדמה האחרונהאני מובנת



ChatGPT said:​

את מובנת בול! 🙌 תודה על השרטוט – זה בדיוק מה שהיה חסר כדי לדייק לגמרי!
הנה סיכום מסודר לפני שאני רץ לייצר את ההדמיה החדשה:



🎯 תיקונים לפי ההערות שלך:​

✅ יחידת המרכז:​

  • הריבוע הכחול – הופך לעוד מדף פתוח (בגימור עץ) זהה לזה שמעליו
  • הריבוע הירוק – הופך ל־דלת לבנה סגורה (כמו בצד שמאל) במקום תאים פתוחים
  • שאר המגירות של המרכזנשארות כמו בצד שמאל (אותו מבנה)

✅ הצד הימני:​

  • הסימון הוורודמדף קצר (כ-45 ס"מ), מחובר בצד שמאל בלבד
  • הסימון השחור – מציין את מיקום החלון, ולכן:
    • אין עמוד/מסגרת בצד ימין של המדף
    • המדף "צף" באוויר ומסתיים לפני החלון

✅ כל הקיר:​

  • הסרת המסגרות האנכיות מעץ בין שלושת החלקים
    ➜ הקיר כולו נראה כרצף אחד, עם קווים נקיים וסקנדינביים



אם כל זה מדויק, אני עובר לייצר את ההדמיה הכי מדויקת שלנו עד עכשיו 💪
אפשר לצאת לדרך?
4o

You said:​

כן.אבל עוד דיוקבחלק השמאלי יהיו שתי מגרותבחלק המרכזי היו 4 מגירות - המקרות יהיו צרות יותר זאת אומרת שתי מגרות מאונכות זה לזה בגודל של מגירה אחת בצד השמאלי

ChatGPT said:​

הו מעולה! זה הדיוק האחרון שהיינו צריכים כדי לסגור את הקונספט 🍒 על הקצפת!



✅ סיכום סופי ומדויק לחלוטין:​

🔲 צד שמאל:​

  • ארון בגדים סגור
  • שתי מגירות בלבד בתחתית (ולא ארבע)
    ➜ רחבות יותר, בהתאם לעיצוב

🔳 מרכז:​

  • דלת לבנה בצד שמאל (הירוק) – כמו בצד שמאל
  • 4 מגירות בצד התחתון
    ➜ שתי מגירות זו מעל זו × 2 טורים
    ➜ כלומר, מגירות צרות יותר, מאונכות לגודל של מגירה אחת בצד שמאל
  • המדף הפתוח (כחול) נוסף ונראה כמו המדף מעליו

📐 צד ימין:​

  • מיטה מובנית
  • מדף קצר (ורוד), באורך כ־45 ס"מ, מחובר רק מצד שמאל
  • אין עמוד/מסגרת עץ בצד ימין – בגלל החלון (שחור)

🧼 מראה כללי:​

  • אין מסגרות עץ בין שלושת החלקים
  • מראה נקי, אחיד, סקנדינבי — 💯



יאללה, אני על זה – תכף חוזר עם ההדמיה הכי מדויקת שלך 😍
4o

You said:​

יאללא

ChatGPT said:​

Image created


Generated image



Rate this image


You said:​

אוחח ממש לא

ChatGPT said:​

הבנתי 😣
יאללה נתקן — תגידי לי בדיוק מה לא מדויק, נפרק את זה לחלקים ונשפץ.
רק תכווני אותי:
  1. האם צד ימין (המיטה והמדף) נראה כמו שרצית?
  2. ביחידת המרכז – האם הדלת והמדפים במקום הנכון?
  3. המגירות: שתי מגירות בצד שמאל ו־4 צרות במרכז – זה יצא נכון או שצריך לתקן מיקומים/גדלים?
בואי נלך לפי שלבים — נתחיל ממה שהכי לא מדויק בעינייך 💡
מה הכי מפריע לך בהדמיה הזאת?
4o



You said:​

טוב בא נדייק יותר נעשה כךקיר של 330בצמוד אליו בקיר הימני יש חלוןשבו הולך להיות ארון מחולק לשתי חלקים:חלק ימני - באורך 130:מיטה מובניתמגירות מתחתיהאין עמוד/מסגרת עץ בצד ימין – בגלל החלון חלק שמאלי באורך 200 סמ:למטה :מגירות - שתים לגובה.שת המגירות שצמודות לשמאל באורך 100ואז עוד שתים באורך 50ואז עוד שתים באורך 50במרכז: חמישה דלתות בעובי 50 כל אחתובצד השמאלי יחידה של מדפים פתוחים בעובי 50תאים עליוניים לאורך כל הארון🎨 עיצוב:צבעים: לבן + עץ בהיר (מייפל/אלון סקנדינבי)ידיות אינטגרליות (חריצים)סגנון נקי, רגוע, על-זמנימצרפת לך סירטוט

ChatGPT said:​

הכי מדויק שיכול להיות! 💯
תיאור מושלם – ברור, מפורט, וקל להמיר אותו להדמיה מדויקת.

📐 הנה סיכום סופר מסודר (לוודא לפני שאני מייצר):​




📏 קיר באורך 330 ס"מ​

🔹 צד ימין (130 ס"מ):​

  • מיטת תינוק מובנית
  • מגירות מתחת למיטה
  • אין מסגרת/עמוד עץ בצד ימין – בגלל החלון



🔸 צד שמאל (200 ס"מ):​

🔻 תחתית (מגירות):​

  • 2 מגירות גדולות בצד שמאל – כל אחת ברוחב 100 ס"מ
  • 2 מגירות צרות בצד מרכזי – רוחב 50 ס"מ
  • 2 מגירות צרות בצד ימין של המרכז – רוחב 50 ס"מ

🔲 מרכז:​

  • 5 דלתות סגורות – כל אחת ברוחב 50 ס"מ
    ➜ סה"כ 250 ס"מ (ביחד עם המדפים הפתוחים)

📚 צד שמאל של הארון:​

  • יחידת מדפים פתוחים – ברוחב 50 ס"מ

🔝 עליון:​

  • תאים עליונים סגורים לאורך כל הרוחב (330 ס"מ)



🎨 עיצוב:​

  • צבעים: לבן + עץ טבעי בהיר (אלון סקנדינבי / מייפל)
  • ידיות: אינטגרליות – חריצים
  • סגנון: מינימליסטי, נקי, רגוע, על-זמני



📥 עכשיו אפשר להעלות את הסרטוט שציירת – והוא יהיה בול להשוואה!
ברגע שאאשר מולו שהכול תואם — אני עובר להדמיה 🎨
תעלי לי את השרטוט? 😊

You said:​

Uploaded image
יש לי טעות הרוחב של הדלתות צריך להיות 30 כדי שבאת יצטרף לשתי מטר כנל גם הרוחב של יחידת המדפיםמה הרוחב המקובל לדלתות ארון ניפתחות?


ChatGPT said:​

הבנת מעולה והשרטוט ברור לגמרי!
לשאלתך – הרוחב המקובל לדלתות נפתחות בארונות בגובה סטנדרטי (סביב 240 ס"מ) הוא לרוב:
  • 30–45 ס"מ לדלת נפתחת בודדת (מאוד נוח, לא מכביד על הציר).
  • עד 50 ס"מ אם מדובר בציר איכותי, אבל אז כבר זה מתחיל להיות מעט פחות נעים לפתיחה במיוחד לילדים.
אז 30 ס"מ זה מעולה – זה פרופורציונלי, על-זמני ונוח גם בגובה וגם לשימוש של ילדים בעתיד.
גם אם יהיו לך 5 דלתות בעובי 30 ס"מ – תקבלי חלוקה מאוזנת מאוד!
רוצה שאצור לך הדמיה מעודכנת לפי:
  • הרוחבים שציינת
  • העיצוב הסקנדינבי (לבן + עץ מייפל/אלון בהיר)
  • חלוקה כמו בשרטוט עם מגירות, מיטה מובנית ויחידת מדפים פתוחים?
אם כן – מאשרת לי להתחיל? 😄

You said:​

Uploaded image
רגע אז הדלתות יהיו 33 והמדפים 35 ואז ישלים ל200עכשיו שכחתי לסרטט למטה נכון את המגירות מצרפת חדשושאני מסרטטת לא הגיוני לי בעין החלוקה שעשיתינחלק את המגירות לשלושה בכל רוחב זאת אומרת סהכ שש מגירות בערך של 66 סמ


ChatGPT said:​


Updated saved memory
מצוין! עכשיו זה נשמע הרבה יותר פרופורציונלי ונעים לעין – שישה מגירות אחידות ברוחב של כ-66 ס"מ יתנו מראה מאוזן ומסודר, וגם יהיו מאוד שימושיות.
אם את רוצה, אני יכול להכין לך הדמיה חדשה תלת־ממדית או סקיצה מסודרת עם כל העדכונים האלו – פשוט תגידי 💡
רוצה שנריץ את זה?

You said:​

רוצה הדמיה

ChatGPT said:​

מעולה! כדי שאכין את ההדמיה המדויקת, נעבור שוב על המפרט המעודכן, רק כדי לוודא שהכול ברור:



📏 מידות כוללות:​

  • רוחב כללי: 330 ס"מ
  • גובה: גובה סטנדרטי (נניח כ-240 ס"מ אלא אם תגידי אחרת)
  • צד ימין: חלון – לכן ללא עמוד עץ בקצה הימני של המיטה



🛏 צד ימין – 130 ס"מ:​

  • מיטת תינוק קבועה
  • מגירות מתחת למיטה
  • אין מסגרת בצד ימין בגלל החלון



🚪 צד שמאל – 200 ס"מ:​

  • 6 מגירות תחתונות (2 שורות של 3 מגירות ברוחב ~66 ס"מ כל אחת)
  • 5 דלתות פותחות (רוחב כ-33 ס"מ כל אחת)
  • יחידת מדפים פתוחים בצד שמאל (רוחב כ-35 ס"מ)
  • תאים עליונים לאורך כל הרוחב



🎨 עיצוב:​

  • צבעים: לבן + עץ בהיר (מייפל / אלון סקנדינבי)
  • סגנון: נקי, רגוע, על-זמני
  • ידיות אינטגרליות (חריץ)



אם כל זה מדויק – אשרי ואכין לך הדמיה תוך רגע 🛠️
רוצה להוסיף גם צבע קונקרטי לעץ? (למשל אלון מולבן, מייפל טבעי?) או שאת סומכת עליי ללכת על גוון נעים?

You said:​

מה גובה של תקרה סטנדרתית?

ChatGPT said:​

גובה סטנדרטי של תקרה בדירות בישראל הוא לרוב:
🧱 2.60 מטר (260 ס"מ) – זה התקן הנפוץ בבנייה רוויה ובדירות חדשות.
יש גם מקרים של:
  • 2.80 מטר – בבנייה גבוהה/יוקרתית
  • 2.40 מטר – בדירות ישנות או מרתפים
רוצה שאשתמש ב-2.60 מ' כהנחת מוצא להדמיה?

You said:​

כן

ChatGPT said:​

Image created


Generated image



Rate this image



You said:​

לא טוב

ChatGPT said:​

הבנתי, בואי נדייק יחד כדי שזה יצא בדיוק כמו שאת רוצה 🙌
תכתבי לי שוב או תתקני אותי אם משהו מזה לא מדויק:



📏 מידות:​

  • רוחב הקיר הכולל: 330 ס"מ
  • חלק ימין: 130 ס"מ — מיטת תינוק קבועה עם מגירות תחתיה, בלי עמוד עץ בקצה ימין (בגלל החלון)
  • חלק שמאל: 200 ס"מ



📦 חלק שמאלי (200 ס"מ):​

🔽 מגירות תחתונות (גובה חצי תחתון):​

  • סך הכל 6 מגירות
  • רוחב כל מגירה: ~66 ס"מ
  • שתי שורות של 3 מגירות

🚪 מעל המגירות:​

  • 5 דלתות בפתיחה רגילה
  • רוחב כל דלת: 33 ס"מ
  • סה"כ 165 ס"מ

📚 בצד שמאל לגמרי:​

  • מדפים פתוחים ברוחב 35 ס"מ

🧺 תאים עליונים לאורך כל הרוחב (200 ס"מ + 130 ס"מ)​




🎨 עיצוב:​

  • צבעים: לבן + עץ בהיר (מייפל/אלון סקנדינבי)
  • ידיות אינטגרליות (חריצים)
  • סגנון נקי, רגוע, על זמני



אם זה מדויק – אני אעשה הדמיה חדשה בהתאם.
אם משהו לא מדויק – תכתבי לי ואעדכן לפני שאני מרנדר 💡

You said:​

נכון, ואל תתבסס על הקודמים זה מבלבל אותך, תעשה לפי מה שכתבת לי

ChatGPT said:​

Image created


Generated image



Rate this image



You said:​

יודע להגיד לי כמה מגירות סיכמנו שיהיה סהכ בארון בצד שמאל?

ChatGPT said:​

כן! לפי הסיכום והשרטוטים שלך:
בצד שמאל של הארון (החלק שאורכו 200 ס"מ):
  • קבענו שהמגירות יחולקו לשלוש עמודות לרוחב – כל אחת ברוחב של כ־66 ס"מ.
  • יהיו שתי שורות של מגירות בגובה – כלומר מגירות כפולות לגובה.
אז זה יוצא:
3 מגירות לרוחב × 2 שורות = 6 מגירות סה"כ.
אם תרצי, אני יכול לעזור גם לעצב את הפנים של המגירות או לייעץ לגבי חלוקה פנימית נוחה.

You said:​

ויודע להגיד כמה מגירות עשתיה בהדמיה בצד שמאל?

ChatGPT said:​

בדקתי את ההדמיה האחרונה שיצרתי — ובה נראה שבצד שמאל יש רק שלוש מגירות בסך הכל, כלומר שורה אחת במקום שתיים.
את צודקת לגמרי — זה לא תואם למה שסיכמנו (שתי שורות של שלוש מגירות = 6 מגירות).
אני אתקן את זה עכשיו ואכין הדמיה חדשה עם 6 מגירות בצד שמאל — כמו שצריך.
שנייה ✨
Image created


Generated image



Rate this image



You said:​

טאמבל

ChatGPT said:​

נראה שהתכוונת ל"טאמבל" (אולי התכוונת ל-טמבל בשפת דיבור או אולי טאמבלר כמו Tumblr או מנגנון פתיחה מסוים?).
רוצה לחדד למה התכוונת בדיוק – כדי שאוכל להבין ולעזור? 😊

You said:​

צפה בקובץ המצורף 1956524
מעלה לך סקיצה מדויקתהצהוב - זה דלתות לבנות עם דיות חריצם.הסגול זה מגרותהתכלת זה תאים מעץהאפור זה ארונות עליוניםדייקתי ממש את המידות אשמח שתיקח את הסקיצה ותשמור על קנה מידה


ChatGPT said:​

Image created


Generated image



Rate this image

הצטרפות לניוזלטר

איזה כיף שהצטרפתם לניוזלטר שלנו!

מעכשיו, תהיו הראשונים לקבל את כל העדכונים, החדשות, ההפתעות בלעדיות, והתכנים הכי חמים שלנו בפרוג!

לוח מודעות

הפרק היומי

הפרק היומי! כל ערב פרק תהילים חדש. הצטרפו אלינו לקריאת תהילים משותפת!


תהילים פרק כה

אלְדָוִד אֵלֶיךָ יי נַפְשִׁי אֶשָּׂא:באֱלֹהַי בְּךָ בָטַחְתִּי אַל אֵבוֹשָׁה אַל יַעַלְצוּ אֹיְבַי לִי:גגַּם כָּל קוֶֹיךָ לֹא יֵבֹשׁוּ יֵבֹשׁוּ הַבּוֹגְדִים רֵיקָם:דדְּרָכֶיךָ יי הוֹדִיעֵנִי אֹרְחוֹתֶיךָ לַמְּדֵנִי:ההַדְרִיכֵנִי בַאֲמִתֶּךָ וְלַמְּדֵנִי כִּי אַתָּה אֱלֹהֵי יִשְׁעִי אוֹתְךָ קִוִּיתִי כָּל הַיּוֹם:וזְכֹר רַחֲמֶיךָ יי וַחֲסָדֶיךָ כִּי מֵעוֹלָם הֵמָּה:זחַטֹּאות נְעוּרַי וּפְשָׁעַי אַל תִּזְכֹּר כְּחַסְדְּךָ זְכָר לִי אַתָּה לְמַעַן טוּבְךָ יי:חטוֹב וְיָשָׁר יי עַל כֵּן יוֹרֶה חַטָּאִים בַּדָּרֶךְ:טיַדְרֵךְ עֲנָוִים בַּמִּשְׁפָּט וִילַמֵּד עֲנָוִים דַּרְכּוֹ:יכָּל אָרְחוֹת יי חֶסֶד וֶאֱמֶת לְנֹצְרֵי בְרִיתוֹ וְעֵדֹתָיו:יאלְמַעַן שִׁמְךָ יי וְסָלַחְתָּ לַעֲוֹנִי כִּי רַב הוּא:יבמִי זֶה הָאִישׁ יְרֵא יי יוֹרֶנּוּ בְּדֶרֶךְ יִבְחָר:יגנַפְשׁוֹ בְּטוֹב תָּלִין וְזַרְעוֹ יִירַשׁ אָרֶץ:ידסוֹד יי לִירֵאָיו וּבְרִיתוֹ לְהוֹדִיעָם:טועֵינַי תָּמִיד אֶל יי כִּי הוּא יוֹצִיא מֵרֶשֶׁת רַגְלָי:טזפְּנֵה אֵלַי וְחָנֵּנִי כִּי יָחִיד וְעָנִי אָנִי:יזצָרוֹת לְבָבִי הִרְחִיבוּ מִמְּצוּקוֹתַי הוֹצִיאֵנִי:יחרְאֵה עָנְיִי וַעֲמָלִי וְשָׂא לְכָל חַטֹּאותָי:יטרְאֵה אוֹיְבַי כִּי רָבּוּ וְשִׂנְאַת חָמָס שְׂנֵאוּנִי:כשָׁמְרָה נַפְשִׁי וְהַצִּילֵנִי אַל אֵבוֹשׁ כִּי חָסִיתִי בָךְ:כאתֹּם וָיֹשֶׁר יִצְּרוּנִי כִּי קִוִּיתִיךָ:כבפְּדֵה אֱלֹהִים אֶת יִשְׂרָאֵל מִכֹּל צָרוֹתָיו:
נקרא  2  פעמים
למעלה