עיצוב מה דעת הציבור לגבי התוכנית?

  • הוסף לסימניות
  • #41
השיש החלבי הוא רק האי?
 
  • הוסף לסימניות
  • #42
הכיריים דומינו במיקום מאד לא נגיש
קשה לבשל בפינה בעומק
ומשטח עבודה של יותר מ120 הוא לא נח בכלל
צריך לטייל בין הכיור לכיריים
עדיף שיהיו 40 נוספים מהצד השני של הכיריים
משטח של 109 לבשרי לא קטן מדי?
המשטח הכי גדול שיכול להיות נח הוא של 120
109 לא רחוק ממנו
אפשר להוריד 10 מהצד השני של הכיריים ולהשאיר שם 30 ופה 119
אבל בגלל הבילד אין העמוק ליד העדפתי לתת 40 משטח נוסף (וגם ב40 עוד אפשר לעשות משהו)
זה אומר שא"א לעמוד במקביל ליד 2 הכיורים?
נכון
אם רוצים אפשר להחליף ולשים איפה שהכיור החלבי- את הכיריים דומינו
ואת הכיור על האי
אבל אז לא יוכלו לעמוד ליד הכיריים דומינו והכיור ביחד
כדי לימור הפרדה מסוימת בין הכניסה לבית למטבח

לא תהיה הרגשה שנכנסים הביתה למטבח ושיושבים על הכניסה?
ולמה לא תסובבו את דלת הכניסה שיכנסו ישר לסלון עם אור בעיניים?
 
  • הוסף לסימניות
  • #43
השיש החלבי הוא רק האי?
כן
ולמה לא תסובבו את דלת הכניסה שיכנסו ישר לסלון עם אור בעיניים?
לא מפחיד שמישהו עומד מאחורי הדלת ומקבל אותה בבום לפרצוף?
המשטח הכי גדול שיכול להיות נח הוא של 120
בזה אני לא לגמרי מסכימה.
היום הכיור מונח לי פה:
1695287392496.png
(באדום) והכירה איפה שכתוב בילדאין ואם היה לי עוד ביניהם זה לא היה מיותר...
שיש של 120 נראה לי ממש בלתי אפשרי...

1695287482387.png

פה זה נראה יותר טוב?
 
  • הוסף לסימניות
  • #44
לטעמי התכנון העכשווי ממש לא עובד נכון
מה גם שהתוכנית נורא מבולגנת וקשה לקריאה...
מציעה לחשוב שוב על הנתונים של-כיורים/כיריים/משטחי שיש/אי
יש פה הרבה מאד ליקויים.
 
  • הוסף לסימניות
  • #45
לא מפחיד שמישהו עומד מאחורי הדלת ומקבל אותה בבום לפרצוף?
וכשהיא לכיוון הזה לא יכולים לקבל אותה בפרצוף?
בזה אני לא לגמרי מסכימה.
לי יש 150 (מטבח שלא אני תכננתי...)
והייתי מעדיפה אם היה מחולק ל120 ועוד 30 בצד השני של הכיריים
(ואגב, זה אחד הכללים החזקים והידועים בתכנון מטבחים)
אם התנסית בזה בעבר ואהבת -לכי על זה
רק קחי בחשבון (לא יודעת בת כמה את..) שבגיל מבוגר מרחקים גדולים עוד יותר מפריעים
 
  • הוסף לסימניות
  • #46
לטעמי התכנון העכשווי ממש לא עובד נכון
מה גם שהתוכנית נורא מבולגנת וקשה לקריאה...
מציעה לחשוב שוב על הנתונים של-כיורים/כיריים/משטחי שיש/אי
יש פה הרבה מאד ליקויים.
מסכימה לפרט?
מה לא עובד נכון ומהם הליקויים?
 
  • הוסף לסימניות
  • #47
מסכימה לפרט?
מה לא עובד נכון ומהם הליקויים?
מה ש @א שיינפלד כתבה-
הכיריים החלביות הגישה אליהם ממש לא נוחה!
שטח גדול מדי לשיש הבשרי, ושטח פצפון לשיש החלבי
האי מאד צפוף, גם מבחינת המקומות ישיבה וגם מבחינת המעבר עם המקרר
באופן כללי יש ריכוז של יותר מדי דברים באיזור הזה
1695289309578.png

לעומת האיזור הזה
1695289383785.png
 
  • הוסף לסימניות
  • #48
לגבי הכיריים החלביות
זה לא שהגישה לא נוחה
אין בכלל גישה אליהם

וכבר אמרתי בהתחלה וחוזרת על זה שוב כירים בקצה בלי "קיר" ליד- מאד לא נח ולא בטיחותי
 
  • הוסף לסימניות
  • #49
גברת שיינפלד
ראיתי באתר שלכם מבצע
אשמח לשמוע מה הוא כולל?
והאם זה עדיין בתוקף ....
 
  • הוסף לסימניות
  • #50
  • הוסף לסימניות
  • #51
המטבח לדעתי צפוף ממש - - אם לא מאוחר מידי הייתי בודק אופציה "מחוץ לקופסא"
להחליף בין המטבח לחדר מס 3 ולפתוח אותו עם הסלון ועם גישה למרפסת
 
  • הוסף לסימניות
  • #52
המטבח לדעתי צפוף ממש - - אם לא מאוחר מידי הייתי בודק אופציה "מחוץ לקופסא"
להחליף בין המטבח לחדר מס 3 ולפתוח אותו עם הסלון ועם גישה למרפסת
רעיון מעניין!
אבל נראה שלמטבח אין חלון כשלעצמו אלא רק מהמרפסת שרות .מה שאומר שינוי מערכתי יותר. המטבח לחדר 3 ,חדר 3 לאמבטיה ומרפסת שרות ואמבטיה ושרות למטבח
 
  • הוסף לסימניות
  • #53
אכן, חשבנו ע"כ, אבל כמו ש @byy אומרת, לא יהיה לחדר חלון, וגם אם זה אמבטיה ושירותים, להם ג"כ לא יהיה חלון (לא מסוגלת...)
 
  • הוסף לסימניות
  • #54
עכשיו נשמע יותר הגיוני?
1695892852435.png

אם נתעלם מההנחה של הכסאות סביב השולחן...
 
  • הוסף לסימניות
  • #55
  • הוסף לסימניות
  • #57
  • הוסף לסימניות
  • #58
עכשיו נשמע יותר הגיוני?
צפה בקובץ המצורף 1469519
אם נתעלם מההנחה של הכסאות סביב השולחן...
לדעתי
1---כדאי להחליף במיקום בין הכיור החלבי לירקות --הוא תקוע בפינה ליד הדלפק --ממש לא נח
2-- גם להחליף בבשרי במיקומים --בין הכיור הבשרי לבין הגז
3- ואם אפשר להגדיל את בנישה במקום 50- ---60 --אז היה אפשר למקם שם את הבילד אין - זה היה מצוין
 

פרוגבוט

תוכן שיווקי
פרסומת

פוסטים חדשים שאולי לא קראת....

הכותרת לא באה להתריס היא באה להדגיש מצב
ולא לא באתי לומר שאבא או אמא עם ילד או שניים זה לא אתגר
אבל שימו לב
בעוד אתם בונים על ההורים לרוב פסח ולכן מכשירים פיסת שיש קטן לפינת קפה. מדף במקרר. ובארון
כי מילא רוב החג נהייה אצל ההורים
ההורים והרווקים בבית קורעים את עצמם [תזכרו זה לא היה כזה מזמן]
כן אמא שלך לא נחה כבר 3 שבועות

להפוך בית שלם 100+ מטר של ארונות כיורים שולחנות מטבח סלון כיסאות מזווה מיטות
לכשר לפסח
לאפשרות שאתם וילדכם הסתובבו בחופשיות עם מצה ואפיקומן שסבא קנה
לא נכנסתי להוצאות המטורפות שקצת עוברות לידכם. למה שתקנו מצות יין או חסה או נייר כסף לציפוי המטבח
ושוב לא בהאשמה ולא בטרוניה אלא כנתון מציאותי
אז זו''צ יקר קצת שימת לב
לפרגן לבוא לעזור חצי יום
לפרגן ארוחה לעובדים בבית [הבית שלך חמץ המטבח שלהם במרפסת שרות]
לתת מילה טובה או שוקולד
והחשוב מכל
מעשרות להורים
הם חשובים יותר מכל כולל ארגון או קמחה דפסחא הם ההורים שלך

והם יממנו לך את ארוחות וסעודות החג
בס"ד

ההבדל בין נוכלות לבין כישלון



לפני כחודש נערך בבני ברק מיפגש מאוד מעניין של גוף הנקרא "הפורום להגנת הצרכן" והוא עסק בעיקר בדרכים למניעת נפילות נדל"ן בהם הציבור החרדי "מומחה" ליפול חזור ונפול.

הנוכחים, מומחים איש איש בתחומו, תיארו את הנוכלויות הרווחות היום ותיארו בצבעים קודרים ואמיתיים את המצב בכי רע, היו שם גדולי הדיינים שדיברו על הצורך להבטיח שהדור השני לא עושה שטויות עם הדירה שקיבלו מההורים וכן הלאה.

כאשר ר' איצ'ה דזיאלובסקי העניק לי את רשות המילה האחרונה (בגלל שאיחרתי – הרגל נעשה טבע) בקשתי מהנוכחים שלא יישפכו את התינוק אם המים, כלומר שלא יביאו אנשים למצב שבו הם חושדים בכל מה שלא זז שהוא נוכלות, הדבר הזה טענתי עלול להביא לשיתוק מוחלט של שוק השקעות הנדל"ן החרדי אשר היה והינו הקטליזטור הראשי של הציבור החרדי בדרכו לנישואי ילדים ברוגע ושלווה, המסר המרכזי של שתי דקות הנאום שלי זה מה שאתם הולכים לקרוא באלף מילים הבאות: לא כל עסקה כושלת היא אשמת המשווק!

צרות אחרונות משכחות את הראשונות וכך שכחתי מזה לגמרי, אלא שהשבוע פורסמה כתבה בעיתון 'דה-מרקר' (מי שלא מכיר לא הפסיד - מלא באהבת כסף ושנאת חרדים) כתבת תחקיר עומק אודות תופעת העוקצים בציבור החרדי הכרוכים במבצעי 10/90 הזכורים לשימצה.

מה שלא אהבתי זה ההתמקדות במתווך חרדי מסוים כאילו הוא שורש הרע בעולם כולו ואיך מלאו ליבו כביכול, ומעשה שהיה כך הווה בעשרות עותקים ברחבי הארץ שרובם מוכרים לי היטיב:

אברכים שחושבים שהם אנשי-עסקים פותו בידי אנשי-עסקים שחושבים שהם אברכים לקנות דירות פאר בערים שהם מכירים רק מחלונות האוטובוס בדרך למירון, נתניה ובת ים מככבות בכתבה אך זה לאורך כל הארץ בערים אשר אברך ממוצע מכיר את שמותיהם רק מהתרעות פיקוד העורף (או מהנפילות שאחריהן) ומעולם לא ביקר בהן.

אז איך משכנעים אברך כולל חסידי בן 22 שקיבל מההורים חצי מיליון ₪ לצורך יחידת 'סליחה' בביתר, לרכוש פנטהוז בהרצליה בארבע מיליון ₪ ?

מספרים לו שזה מבצע מיוחד שהתגלה רק למתווך בגילוי שמימי וכעת צריך רק לשלם עשרה אחוז שזה ארבע מאות אלף שקל ואת המאה הנותרים להביא למתווך על הגילוי הנפלא.

ואיך הדלפון שלנו יממן את מה שעשירי טבריה מתקשים?

כאן מגיע החלק השני של הגילוי אליהו – המתווך יודע לנבא כי בעוד שלוש שנים, כשיצטרכו להשלים את הרכישה הדירה תהיה שווה חמישה מיליון, ואז האברך דנן יתברר כסוחר מוצלח ביותר אשר ימשוך חזרה את הארבע מאות ועוד מיליון רווח נקי וכך לא יצטרך לגור בדירת הסליחה אלא בדירה גדולה המרחיבה דעתו של אדם ומרחיבה ארנקו של המשווק.

אז איפה הקצ'?

שעכשיו זה "אחרי שלוש שנים" ומתברר כי המחיר הכי גבוה שאפשר לקבל על הדירה הוא שלוש וחצי מיליון ואחרי ההוצאות מגיעים לשלוש מאתיים נטו ביד, מה שאומר שלפעמים עדיף לאותו אברך לעשות "ויברח" ולהותיר את הארבע מאות אצל החברה והמשווק ולחזור ליחידת הסליחה אבל וחפוי ראש, והפעם כשוכר...

זה פחות או יותר המסלול שאותו עוברות בחודשים אלו מאות משפחות מאנ"ש שכל מה שהם רצו זה לחתן את הילדים בכבוד וכעת הם מרוסקים לחלוטין וייקח להם שנים רבות אם בכלל כדי להתאושש מהתהום הכלכלית שהם הוכנסו אליה בידי משווק פלוני.

אך עשרת הקוראים כאן יודעים שעד כאן הייתה רק ההקדמה, כעת נתחיל עם הניתוח הכואב של הנתונים ואת הצד של לימוד זכות:

ובכן, קודם כל צריך לדעת שרבים מאוד הרוויחו בפריסיילים ותכניות דומות הרבה כסף, פגשתי ועודני פוגש כל יום אברכים צעירים ומבוגרים שהרוויחו סכומים אגדיים בשנים האחרונות כתוצאה מהפטנט הזה, לא ערכתי מחקר עומק אך מהתרשמותי המרוויחים רבים בהרבה על המפסידים וחבל שאת זה שומרים בסוד מאימת המצ'ינגים, הסיבה היחידה שמספרים לי על כך זה או כדי לשאול איך לעשות את הסיבוב הבא או כדי להתייעץ איך לצמצם את המסים העצומים (ברוך השם, כשיש מס סימן שיש שבח).

כל מי שקנה דירה בירושלים במחירי פריסייל של עשרים ומשהו אלף עשה את המיליון הזה, כך גם רבים שהשקיעו בחלק מהפרוייקטים בבן שמן וכך גם במקומות נוספים אשר המחירים עלו שם דרמטית ולקחו איתם את המשקיעים כלפי מעלה.

אז מה קרה בכל הפרוייקטים הכושלים?

שני דברים, הראשון שלא ידוע לי אם קרה זה הקפצת מחירים, מאוד ייתכן שמשווק מסוים יבוא לקבלן שיש לו כבר פריסייל ויגיד לו במקום למכור ב3.9 אביא לך קונים בארבע מיליון ואז מקבלים תרי זוזי: מאה אלף מהקבלן ועוד אחד מהלקוח, חד גדיא דזבין את אבא.

זה נורא לשמוע שיש דברים כאלו וטיפש מי שנופל לכך אך מי שיותר טיפש ממנו הוא מי שמאמין שאפשר למנוע דבר כזה באמצעות בירור אם המתווך אמין: גם המתווך האמין ביותר לא יעמוד בפני ניסיון של מאתיים אלף ₪ רק מלאך יוותר על זה ולא ניתנה תורת העסקים למלאכי השרת.

אך הדבר הזה לא מתקיים בדרך כלל משום שרוב הקונים יודעים לבדוק בערך את המחיר בסביבה ולא נופלים לבורות עמוקים, מה שכן קורה זה הדבר השני ועליו ברצוננו לדבר:

המחיר פשוט לא עלה, ולפעמים אפילו ירד.

כן רבייסיי, מחירי דירות לא רק עולים, לפעמים הם גם יורדים, כגון למשל בתקופת מלחמה.

עד מלחמת שמחת-נורא המחירים בנתניה למשל אכן השתוללו כי הצרפתים קנו שם בהמוניהם והוא הדין בצפת שהאמריקאים עטו עליה כי אצלם אין הבדל בין ירושלים לצפת, באמריקה זה מרחק סביר לנסיעה יומיומית לעבודה, אז מישהו משווק להם את זה כירושלים לעניים והם קנו וקנו והמחירים עלו ועלו והייתה היתכנות מסויימת לעלייה צפוייה.

ואז הגיע המלחמה ואין חוצניקים, ועוד מלחמה ועוד מבצע ושום דבר לא חזר לעצמו ואפשר לקלל את איראן (מגיע להם) ואת החמאס (עוד יותר מגיע) אך זה לא יעזור לעובדה הפשוטה שמחירי המגדלים שיועדו בעיקר לאוכלוסיות אלו צולל.

לא בהרבה, אך מספיקה ירידה של 8% כדי שכל העסק יהפוך להפסד.

זה נכון שמעצבן שהמשווק ניבא שהמחירים יעלו והם לא, אמנם אמרו חז"ל שנבואה ניתנה לשוטים אך האמונה כי יש למישהו נבואה ניתנה לשוטים גדולים עוד יותר... כל בר דעת העושה עסקים יודע שבכל הקשור לניבוי עתידות - המשווק ועטיפת המסטיק יודעים לנבא באותה מידה ומי שמסתמך על הבטחות אודות העתיד (כולל אלפי אברכים שנופלים היום בפריסייל של המחר שנקרא פינוי בינוי המבוסס על אותה נבואה כמעט) אין לו לבוא בטענות אלא על עצמו, לא המשווק נשך לשונרא.

מקווה שהצלחתי להסביר: לא כל עסקה כושלת היא נוכלות ולא כל ירידת מחירים היא עקיצה, בכל עסק ייתכן מאוד הפסד ומי שלא מוכן לכך שלא ייכנס לעולם ההשקעות.

אז להפסיק להשקיע בנדל"ן?

חלילה, כמה שיותר להשקיע בנדל"ן וכל המרבה הרי זה משובח – ואם ירצה השם ויהיה זמן נרחיב אולי בטור הבא על "מה כן" – אך רק עסקאות נטולות הימור על כל הקופה, כך שגם אם נגזר עליך להפסיד זה יהיה רק קצת ורק זמני.

ברור לי שכל הדברים האמורים כאן ברורים לכל אחד מעשרת הקוראים וסליחה שבזבזתי את זמנכם אך אם זה ירגיע אבא סוער אחד -שכועס בכל ליבו על המתווך שכאילו הפיל את החתן שלו - והיה זה שכרי.



גילוי נאות: לכותב אין ולא היה שום אינטרס כלכלי בשום פרוייקט של פריסל והוא אינו קשור היום לשום שיווק לא במישרין ולא בעקיפין, המידע מובא ללא כל אינטרס כלכלי אלא כצדקה ושירות לציבור, לשאלות ספציפיות ניתן לפנות למייל והתשובות שם חינם וללא אחריות.
סיכום אירועים: איראן בלהבות - מהמחאות ועד לסף עימות עולמי

הרקע וההתפרצות (סוף דצמבר 2025):

המחאות החלו ב-28 בדצמבר 2025 בטהראן, על רקע משבר כלכלי חריף וצניחה חדה בערך הריאל. מה שהחל כזעקת סוחרים ואזרחים על יוקר המחיה, הפך במהירות לגל הפגנות חסר תקדים ב-187 ערים הקורא להפלת המשטר.


הטבח והחשכת המידע (ינואר 2026):
  • דיכוי אלים: המשטר האיראני הגיב באכזריות יוצאת דופן. לפי נתוני ארגון זכויות האדם HRANA, נכון ל-23 בינואר, מספר ההרוגים המאומת עומד על למעלה מ-5,000 בני אדם, בהם 4,716 מפגינים ועשרות ילדים.
    יש דיווחים לא מאומתים מצד האופוזיציה האיראנית על מעל 60,000 הרוגים!

  • מעצרים המוניים: למעלה מ-26,500 בני אדם נעצרו, וקיים חשש כבד להוצאות להורג המוניות בבתי הכלא.

  • חסימת אינטרנט: החל מה-8 בינואר הוטל מצור דיגיטלי כמעט מוחלט על המדינה כדי למנוע זליגת תיעודים מהטבח.

המעורבות האמריקנית - "הארמדה של טראמפ":
הנשיא טראמפ, שחזר והזהיר את טהראן מפני המשך הטבח, הכריז ב-22 בינואר כי "ארמדה" אמריקנית (צי ספינות מלחמה, כולל נושאת המטוסים אברהם לינקולן) עושה את דרכה למפרץ הפרסי. טראמפ הבהיר כי ארה"ב בוחנת אפשרויות תקיפה ישירות נגד מטרות שלטוניות אם לא ייפסק הדיכוי. ולאחר הדלפות על ממדי הטבח, הכריז "העזרה בדרך".


הזווית הישראלית והאזורית:
  • כוננות שיא: ישראל נמצאת בדריכות עליונה מחשש שהסלמה אמריקנית תוביל לתגובה איראנית ישירה או באמצעות שלוחיה (פרוקסי).

  • איומי נתניהו: ראש הממשלה נתניהו הזהיר כי אם איראן תבצע "טעות" ותתקוף את ישראל, היא תפגוש עוצמה שטרם הכירה.

  • איומי טהראן: המשטר האיראני הודיע כי במקרה של תקיפה, בסיסים אמריקניים ויעדים בישראל יהיו "מטרות לגיטימיות".

באשכול זה נמשיך לעדכן סביב השעון בכל התפתחות, דיווחים מהשטח ופרשנויות ביטחוניות.
עודכן אדר תשפ"ד
ראשית, גופי הכשרות
ברוב אשכולות בנושא 'השקעות בשוק ההון' בפרוג, משתרבב עניין הכשרות.
למען הסדר באשכול זה נעלה עדכונים בנושא כשרות.
אני אשתדל לסכם ולתמצת ככל האפשר.

יש 4 גופי כשרות
  • בד"ץ העדה החרדית - על פי פסקי הרב יעקב בלוי זצ"ל שהיה בקיא גדול בתחום שוק ההון והוא שהביא את פסקיו ועל פי פסקים אלו נוהגים עד היום בגוף כשרות זה. היום הכשרות בראשות הרב שלמה זאב קרליבך.
  • גלאט הון - על פי פסקי רבי ניסים קרליץ והרב שמואל ואזנר. שסמכו ידיהם על הרב יעקב לנדו שמכיר את שוק ההון לעומקו. הרב משה שטרנבוך ראב"ד העדה החרדית הוא מרבני 'גלאט הון'.
  • תשואה כהלכה – הרב שמואל דוד גרוס, רב חסידי גור אשדוד ועוד רבנים מוכרים וידועים בכל שכבות הציבור החרדי.
  • כלכלה על פי ההלכה- הרב אריה דביר, על פי פסקי הרב יוסף שלום אלישיב.

היום בכל החברות יש מסלולים כשרים, שמאושרים לפחות ע"י אחת מהכשרויות.
בין החברות שנמצאת ברשותם תעודת כשרות אפשר למצוא את:
אלטשולר שחם, אינפיניטי, הפניקס, הראל, כלל, מגדל, מור, מיטב דש, מנורה.

רשימות קרנות כשרות:

אשכולות דומים

שלום רב,
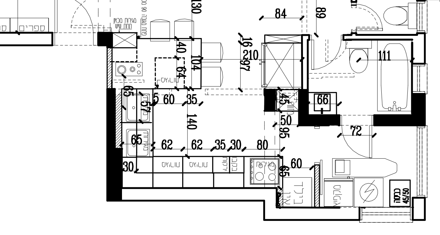
אשמח לקבל חוות דעת מקצועית לגבי תוכנית מטבח מצורפת.

רקע תכנוני קצר:
המטבח מתוכנן להיות סגור ונפרד מהסלון.
קיימת העדפה לשני תנורים בגובה זהה (לא חובה).
קיים צורך במשטחי עבודה גדולים ככל האפשר, ואם ניתן לשלב מקפיא יתרון.
מספר מקומות הישיבה הנדרש: עד שלושה.

פירוט התוכנית:
מקפיא ממוקם בפינה הפונה לכיוון הסלון, סגור בתוך ארון.
בהמשך אותו קיר מתוכנן ארון לאחסון מעילים ותיקים.
בצד הנגדי ממוקם אזור התנורים.

חשוב לציין כי מיקום הכיורים והכיריים בשלב זה הינו עקרוני בלבד. המיקום סומן על ידי ואינו סופי, ולכן אשמח לחוות דעתכן לגבי ההיגיון התכנוני ונוחות השימוש.

אשמח להתייחסות מקצועית לנקודות הבאות:
* הלוגיקה הכללית של תכנון המטבח.​
* מרווח של 40 ס"מ בין ארון המיקסר לכיור - האם עומד בסטנדרטים תכנוניים?​
* מרחק של 50 ס"מ בין הבר לכיור - האם נוח ופרקטי?​
* מיקום הכיריים בפינה - האם מדובר בפתרון יעיל?​
* והאם קיימת אפשרות לשילוב אזור נוסף לכיריים חלבי.​

אשמח לכל הערה, תובנה או כיוון לשיפור.
תודה מראש על הזמן וההתייחסות.

1766422922412.png
אנחנו עומדים לפני שיפוץ ויש לנו בגדול את התוכנית הרצויה היינו שם עם הקבלן שיפוצים וגם איש מטבחים.
יש לנו ספק קטן לגבי יצירת חדר שירות. ותוספת שירותים בקומה הראשונה.
אני מצרף את התוכנית של שתי הקומות ואשמח לקבל הצעת מחיר.
מדובר על דירה מספר 4.
קומה 1
בקומה הראשונה משנים את המטבח ממש לכניסה לבית.
המטבח שנמצא היום מבוטל כי אנחנו פותחים שם קיר (ויטרינה גדולה ליציאה לגינה) הקיר הימני של חדר שינה מספר 3 נכנס עד לקו אפס עם החלון (חדר עבודה).
חדר שינה מספר 2 הופך ליחידת הורים מה שאומר שלא יהיו לנו שירותי אורחים הספק שלנו האם לבנות בצמוד לחדר העבודה שירותי אורחים. לא לכיוון הסלון אלא צמוד לדלת של חדר העבודה.

קומה 2
בקומה השנייה אנחנו רוצים לבטל את יחידת ההורים ולעשות את המקלחת שלה למקלחת קומתית ואת המקלחת הקיימת להפוך לחדר שירות גדול שיכלול מכונת כביסה מייבש תלייה לחולצות קרש גיהוץ וכו'.
כנראה שנצטרך להגדיל את החדר על חשבון החדר הסמוך. זו בגדול התוכנית נשמח לקבל עצות מחכימות

הצטרפות לניוזלטר

איזה כיף שהצטרפתם לניוזלטר שלנו!

מעכשיו, תהיו הראשונים לקבל את כל העדכונים, החדשות, ההפתעות בלעדיות, והתכנים הכי חמים שלנו בפרוג!

לוח מודעות

הפרק היומי

הפרק היומי! כל ערב פרק תהילים חדש. הצטרפו אלינו לקריאת תהילים משותפת!


תהילים פרק כה

אלְדָוִד אֵלֶיךָ יי נַפְשִׁי אֶשָּׂא:באֱלֹהַי בְּךָ בָטַחְתִּי אַל אֵבוֹשָׁה אַל יַעַלְצוּ אֹיְבַי לִי:גגַּם כָּל קוֶֹיךָ לֹא יֵבֹשׁוּ יֵבֹשׁוּ הַבּוֹגְדִים רֵיקָם:דדְּרָכֶיךָ יי הוֹדִיעֵנִי אֹרְחוֹתֶיךָ לַמְּדֵנִי:ההַדְרִיכֵנִי בַאֲמִתֶּךָ וְלַמְּדֵנִי כִּי אַתָּה אֱלֹהֵי יִשְׁעִי אוֹתְךָ קִוִּיתִי כָּל הַיּוֹם:וזְכֹר רַחֲמֶיךָ יי וַחֲסָדֶיךָ כִּי מֵעוֹלָם הֵמָּה:זחַטֹּאות נְעוּרַי וּפְשָׁעַי אַל תִּזְכֹּר כְּחַסְדְּךָ זְכָר לִי אַתָּה לְמַעַן טוּבְךָ יי:חטוֹב וְיָשָׁר יי עַל כֵּן יוֹרֶה חַטָּאִים בַּדָּרֶךְ:טיַדְרֵךְ עֲנָוִים בַּמִּשְׁפָּט וִילַמֵּד עֲנָוִים דַּרְכּוֹ:יכָּל אָרְחוֹת יי חֶסֶד וֶאֱמֶת לְנֹצְרֵי בְרִיתוֹ וְעֵדֹתָיו:יאלְמַעַן שִׁמְךָ יי וְסָלַחְתָּ לַעֲוֹנִי כִּי רַב הוּא:יבמִי זֶה הָאִישׁ יְרֵא יי יוֹרֶנּוּ בְּדֶרֶךְ יִבְחָר:יגנַפְשׁוֹ בְּטוֹב תָּלִין וְזַרְעוֹ יִירַשׁ אָרֶץ:ידסוֹד יי לִירֵאָיו וּבְרִיתוֹ לְהוֹדִיעָם:טועֵינַי תָּמִיד אֶל יי כִּי הוּא יוֹצִיא מֵרֶשֶׁת רַגְלָי:טזפְּנֵה אֵלַי וְחָנֵּנִי כִּי יָחִיד וְעָנִי אָנִי:יזצָרוֹת לְבָבִי הִרְחִיבוּ מִמְּצוּקוֹתַי הוֹצִיאֵנִי:יחרְאֵה עָנְיִי וַעֲמָלִי וְשָׂא לְכָל חַטֹּאותָי:יטרְאֵה אוֹיְבַי כִּי רָבּוּ וְשִׂנְאַת חָמָס שְׂנֵאוּנִי:כשָׁמְרָה נַפְשִׁי וְהַצִּילֵנִי אַל אֵבוֹשׁ כִּי חָסִיתִי בָךְ:כאתֹּם וָיֹשֶׁר יִצְּרוּנִי כִּי קִוִּיתִיךָ:כבפְּדֵה אֱלֹהִים אֶת יִשְׂרָאֵל מִכֹּל צָרוֹתָיו:
נקרא  2  פעמים
למעלה