• הוסף לסימניות
  • #1
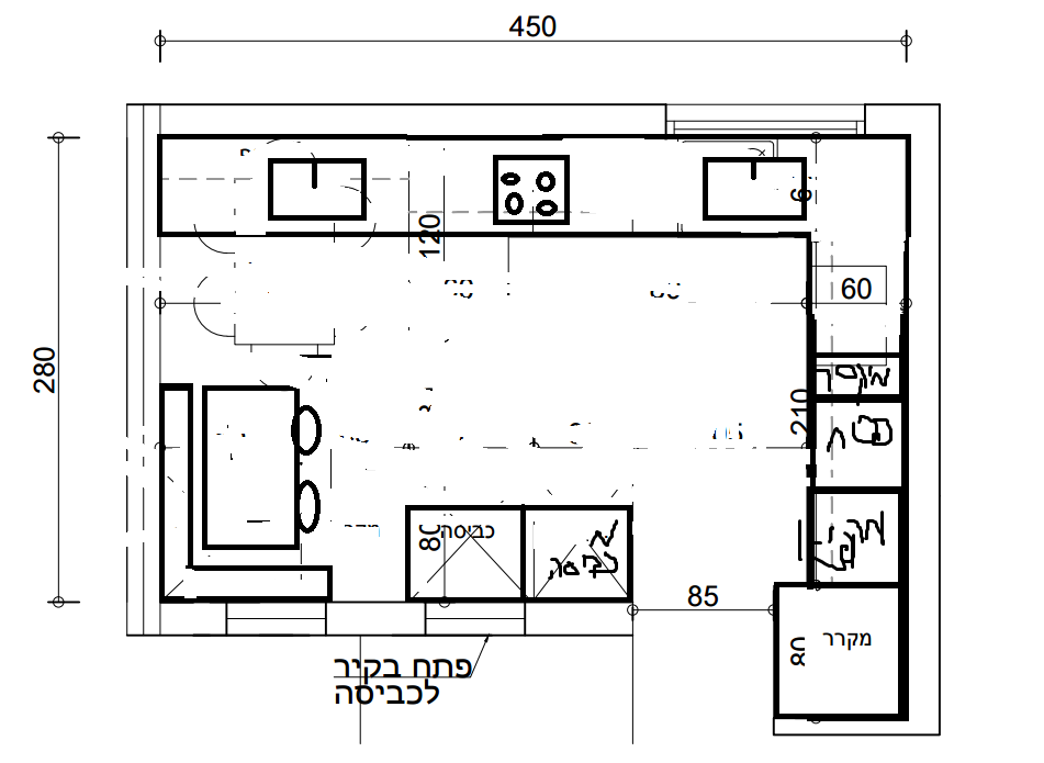
אז זה המטבח:
#המקרר קצת הרבה תקוע בכניסה אבל בקיר של הכביסה הוא לא נכנס, בגלל שהחלון לכביסה חייב להיות שם הוא במקום חלון קיים, יש רעיון אחר למישהו??
#הגז -תנור הוא קיים והלקוחה לא מעוניינת בבילד אין ,האם זה שעושים שהארון והשיש יפסיקו וימשיכו אחריו מייקר מאד את העסק??
# מה עדיף ארון המשכי לכביסה של 80ס"מ כמו ב 1, או ארון שבתחילתו 80 ואח"כ 60 שאמנם העומקים שנים אבל אז ניתן להאריך את השיש בעוד 20 ס"מ,
#האם מעבר של 85 בכניסה ו 80 במעבר בין השיש לארון זה בסדר ?
-השולחן זהו מקומו לאחר סקיצות רבות וזה רצון הלקוחה...
אשמח להארות...והערות...!!
תודה!!
 

קבצים מצורפים

  • מטבח 1.pdf
    KB 132.8 · צפיות: 0
  • מטבח 2.pdf
    KB 132.9 · צפיות: 42
  • הוסף לסימניות
  • #2
  • הוסף לסימניות
  • #4
חכי, זה היה אמור להיות ההמשך...

את צריכה להעלות קובץ תמונה ואז זה גלוי,
מה שבד"כ אני עושה- גוזרת מתוך קובץ ה-PDF ע"י כלי החיתוך שנראה כך:
צפה בקובץ המצורף 281546
 
  • הוסף לסימניות
  • #5
נכתב ע"י revrut;1988509:
חכי, זה היה אמור להיות ההמשך...

את צריכה להעלות קובץ תמונה ואז זה גלוי,
מה שבד"כ אני עושה- גוזרת מתוך קובץ ה-PDF ע"י כלי החיתוך שנראה כך:
צפה בקובץ המצורף 281546
אין לי כזה כלי...
 
  • הוסף לסימניות
  • #7
למה לא להחליף את מקום המקרר וארון פסח - ומה שהמקרר יותר רחב ירד מהמקום הנוכחי של המקרר - ז"א ארון פסח יהיה ברוחב השיש - לפי ציור 2
המקום שכתוב כביסה במה מדובר? ארון או מעבר כביסה??
 
  • הוסף לסימניות
  • #8
ולעניין המטבח-
1. הארונות הגבוהים חייבים להיות פחות עמוקים, בעייני עדיפה מדרגה ע"מ לפתוח קצת את הכניסה למטבח שכרגע די חנוקה.
גם ארון למכונת כביסה יכול להיות עמוק פחות 70-75 ס"מ מספיק בהחלט
2. המקרר- בהתחשב בכניסה הצרה והצפופה- נראה לי שכן אפשר להכניס אותו צמוד למכונת הכביסה, כך גם המיקום שלו יהיה יותר במרכז העניינים וגם הכניסה תרווח משמעותית, לעניין חלון הכביסה- התכנון הוא להשתמש בו כמו שהוא או ליצור שם מעיין פתח אחר? כי אם לא משתמשים החלון הקיים, גם אם החלון הוא הזזה, ניתן שהמקרר יכסה מעט את החלון, מה גם שניתן להצר את ארון המכונה למינימום כרגע יש שם 20 ס"מ 'מיותרים' (בטוחה שהם ישמשו לחומרי ניקוי וכדו' אבל בכל אופן... אולי כדאי למצוא להם מיקום אחר)
המקפיא יעמוד בכניסה למטבח (גם קצת חבל, אבל פחות מפריע מהמקרר כי הוא פחות בשימוש ויותר קטן)
השיש יהיה מעט יותר ארוך, אפשר לשקול להזיז את הכיור קרוב יותר לכניסה, אולי גם להעביר את הכיירים לפינה, או להזיזם לכל הפחות 10 ס"מ ימינה (כרגע המשטח בינם לבין הכיור מציק מעט בקוטנו) ואז המשטח בינם לבין הגיור יגדל.
3. את חתיכת השיש שיורדת לכיוון הארונות הגבוהים לא הייתי מאריכה בכל אופן, אולי ב-10 ס"מ, ע"מ לאפשר מעבר נוח יותר מפינת האוכל ואליה בהתחשב בכך שכאשר יושבים שם החלל כולו תפוס.

בהצלחה!
 
  • הוסף לסימניות
  • #9
נכתב ע"י הני כגנס;1988532:
למה לא להחליף את מקום המקרר וארון פסח - ומה שהמקרר יותר רחב ירד מהמקום הנוכחי של המקרר - ז"א ארון פסח יהיה ברוחב השיש - לפי ציור 2
המקום שכתוב כביסה במה מדובר? ארון או מעבר כביסה??
המקרר לא יכול להיות שם כי אז יחסום את מעבר הכביסה, הכביסה זה מקום שלשם תיפול הכביסה מתוך האמבטיה ברור שתהיה שם חלוקה נוספת...
 
  • הוסף לסימניות
  • #10
מטבח

מה את אומרת על הרעיון הזה?

ניסתי בתוכנית הזו לענות על כל צרכי הלקוחה ומצד שני לנסות שהמטבח לא יהיה צפוף כל כך,

אז כך:
הפריעה לי רגל השיש שיוצאת לאמצע המטבח ופשוט יישרתי את השיש לכל אורך הקיר הארוך,כשהכיריים מפרידות בין בשרי לחלבי. קיבלנו שישים מרווחים לבשרי והחלבי!

את פינת האוכל השארתי במקום שהלקוחה מעוניינת בו ותכננתי ספסל ישיבה במקום כסאות, מעולה לבית עם ילדים!

ארון הכביסה נשאר במקומו ולידו מכונת הכביסה.

המקרר במקום הזה פחות מפריעה לי והצמדתי לו את שאר הארונות הגבוהים ז"א: מקפיא ארון פסח, ואם היא הלקןחה מעוניינת אז גם ארון תריס למיקסר.

מה אומרים?
 

קבצים מצורפים

  • 1.PNG
    KB 50.8 · צפיות: 24
  • הוסף לסימניות
  • #11
הרעיון של RG נראה הרבה יותר טוב. אבל מיקום המקרר בכניסה לא ריאלי, אין שם מקום.
במקומו עדיף להתחיל עם ארון פסח, מקפיא, ואחריהם לשים מקרר ׁ(כך המקרר גם יתקרב למשטחי העבודה)

ועוד דבר.. הנישה של המקרר צרה למשפחה ברוכת ילדים.
עדיף להגדיל למטר ולחפש מקרר יותר רחב ופחות עמוק

הארה נוספת..
במטבח הזה 2 משטחי העבודה העיקריים שצמודים לכיריים קטנים מדי. והשמאלי ביותר פחות שימושי והימני פחות מנוצל.
לכן.. אם לא מבשלים הרבה בחלבי, עדיף להצמיד את הכיורים ולהרוויח משטחי עבודה גדולים ושימושיים
 
  • הוסף לסימניות
  • #12
לגבי הנישה- כדאי קצת להגדיל אבל ל90 מספיק. בסופו של דבר המקררים הרגילים שנכנסים ב90 מכילים כמעט 600 ליטר, והגדולים הsbs ו4 דלתות מכילים 650, לא כזה משמעותי כשיש מקפיא.

אני לעצמי החלטתי על 90.
 
  • הוסף לסימניות
  • #13
המקררים שמכילים 600 ליטר ונכנסים ב90 ס"מ יבלטו מאוד במטבח הזה
 
  • הוסף לסימניות
  • #14
את המקום לפינת אוכל ניתן להקטין מ 150 ל130??
 
  • הוסף לסימניות
  • #15
נכתב ע"י א6;1989179:
המקררים שמכילים 600 ליטר ונכנסים ב90 ס"מ יבלטו מאוד במטבח הזה

ישנו מקרר קיים סטנדרט בעומק 75 ס"מ ורוחב 85 ס"מ
 
  • הוסף לסימניות
  • #16
יבלטו מקו הארונות? זה בכל מקרה יהיה. גם המקררים הרחבים מגיעים ל 70 ס"מ עומק, ומקרר רגיל יש כבר ב72-74. ההבדל לא עצום. אני מעדיפה מקרר בולט אבל נח, עמוק מספיק לסירים, במחיר שפוי ושלוקח מה שפחות משטחי העבודה. ענין של העדפות אישיות.
 
  • הוסף לסימניות
  • #17
תודה לכולם על ההערות...
המטבח תוקן מעט...
#האם לפינת האוכל מספיק 1.30 מ'??
RG התוכנית נראית אכן יותר מרווחת אך הלקוחה היתה מעוניינת "ברגל השיש" כדי לתת איזו שהיא הפרדה לפינת אוכל...
ו revrut למדתי משהו ... סוף סוף הצלחתי לערוך טוב...
 

קבצים מצורפים

  • תיקון מטבח.jpg
    KB 162.1 · צפיות: 26
  • הוסף לסימניות
  • #18
משטח העבודה העיקרי הוא בין הכיור לכיריים, אורכו מינימום 90 ס"מ ומקסימום 120.
 
  • הוסף לסימניות
  • #19
נראה הרבה יותר טוב
בהצלחה!
 
  • הוסף לסימניות
  • #20
מצוין!
עוד כמה נק' קטנות:
אם פינת האוכל היא ללא ספסל- מומלץ לתת לה לכל הפחות 1.40 מ' רוחב, כרגע זה ממש צפוף.
וכמו שכבר העירו- את הכיורים תרחיקי מהכיריים, את שניהם.
הייתי הופכת בין המקפיא לארון פסח, למה? כי ככה את יכולה לנצל את מלוא העומק, מה שמתבזבז לך מאחורי המקפיא (החסרון הוא שארון הפסח סמוך לפינת האוכל).
ואת ממש יכולה להוריד מעומק הארונות- מכונת כביסה- עומקה כ-60 ס"מ+ 5 ס"מ לברז, עוד כמה ס"מ לדלת ולרווח ומגיעים ל-70, רוצה יותר מרווח? תני 75 ס"מ, אבל למה 85 ס"מ? גם המקרר לא צריך כזה עומק, חבל כאן על כל ס"מ.
 

פרוגבוט

תוכן שיווקי
פרסומת

פוסטים חדשים שאולי לא קראת....

הכותרת לא באה להתריס היא באה להדגיש מצב
ולא לא באתי לומר שאבא או אמא עם ילד או שניים זה לא אתגר
אבל שימו לב
בעוד אתם בונים על ההורים לרוב פסח ולכן מכשירים פיסת שיש קטן לפינת קפה. מדף במקרר. ובארון
כי מילא רוב החג נהייה אצל ההורים
ההורים והרווקים בבית קורעים את עצמם [תזכרו זה לא היה כזה מזמן]
כן אמא שלך לא נחה כבר 3 שבועות

להפוך בית שלם 100+ מטר של ארונות כיורים שולחנות מטבח סלון כיסאות מזווה מיטות
לכשר לפסח
לאפשרות שאתם וילדכם הסתובבו בחופשיות עם מצה ואפיקומן שסבא קנה
לא נכנסתי להוצאות המטורפות שקצת עוברות לידכם. למה שתקנו מצות יין או חסה או נייר כסף לציפוי המטבח
ושוב לא בהאשמה ולא בטרוניה אלא כנתון מציאותי
אז זו''צ יקר קצת שימת לב
לפרגן לבוא לעזור חצי יום
לפרגן ארוחה לעובדים בבית [הבית שלך חמץ המטבח שלהם במרפסת שרות]
לתת מילה טובה או שוקולד
והחשוב מכל
מעשרות להורים
הם חשובים יותר מכל כולל ארגון או קמחה דפסחא הם ההורים שלך

והם יממנו לך את ארוחות וסעודות החג
בס"ד

ההבדל בין נוכלות לבין כישלון



לפני כחודש נערך בבני ברק מיפגש מאוד מעניין של גוף הנקרא "הפורום להגנת הצרכן" והוא עסק בעיקר בדרכים למניעת נפילות נדל"ן בהם הציבור החרדי "מומחה" ליפול חזור ונפול.

הנוכחים, מומחים איש איש בתחומו, תיארו את הנוכלויות הרווחות היום ותיארו בצבעים קודרים ואמיתיים את המצב בכי רע, היו שם גדולי הדיינים שדיברו על הצורך להבטיח שהדור השני לא עושה שטויות עם הדירה שקיבלו מההורים וכן הלאה.

כאשר ר' איצ'ה דזיאלובסקי העניק לי את רשות המילה האחרונה (בגלל שאיחרתי – הרגל נעשה טבע) בקשתי מהנוכחים שלא יישפכו את התינוק אם המים, כלומר שלא יביאו אנשים למצב שבו הם חושדים בכל מה שלא זז שהוא נוכלות, הדבר הזה טענתי עלול להביא לשיתוק מוחלט של שוק השקעות הנדל"ן החרדי אשר היה והינו הקטליזטור הראשי של הציבור החרדי בדרכו לנישואי ילדים ברוגע ושלווה, המסר המרכזי של שתי דקות הנאום שלי זה מה שאתם הולכים לקרוא באלף מילים הבאות: לא כל עסקה כושלת היא אשמת המשווק!

צרות אחרונות משכחות את הראשונות וכך שכחתי מזה לגמרי, אלא שהשבוע פורסמה כתבה בעיתון 'דה-מרקר' (מי שלא מכיר לא הפסיד - מלא באהבת כסף ושנאת חרדים) כתבת תחקיר עומק אודות תופעת העוקצים בציבור החרדי הכרוכים במבצעי 10/90 הזכורים לשימצה.

מה שלא אהבתי זה ההתמקדות במתווך חרדי מסוים כאילו הוא שורש הרע בעולם כולו ואיך מלאו ליבו כביכול, ומעשה שהיה כך הווה בעשרות עותקים ברחבי הארץ שרובם מוכרים לי היטיב:

אברכים שחושבים שהם אנשי-עסקים פותו בידי אנשי-עסקים שחושבים שהם אברכים לקנות דירות פאר בערים שהם מכירים רק מחלונות האוטובוס בדרך למירון, נתניה ובת ים מככבות בכתבה אך זה לאורך כל הארץ בערים אשר אברך ממוצע מכיר את שמותיהם רק מהתרעות פיקוד העורף (או מהנפילות שאחריהן) ומעולם לא ביקר בהן.

אז איך משכנעים אברך כולל חסידי בן 22 שקיבל מההורים חצי מיליון ₪ לצורך יחידת 'סליחה' בביתר, לרכוש פנטהוז בהרצליה בארבע מיליון ₪ ?

מספרים לו שזה מבצע מיוחד שהתגלה רק למתווך בגילוי שמימי וכעת צריך רק לשלם עשרה אחוז שזה ארבע מאות אלף שקל ואת המאה הנותרים להביא למתווך על הגילוי הנפלא.

ואיך הדלפון שלנו יממן את מה שעשירי טבריה מתקשים?

כאן מגיע החלק השני של הגילוי אליהו – המתווך יודע לנבא כי בעוד שלוש שנים, כשיצטרכו להשלים את הרכישה הדירה תהיה שווה חמישה מיליון, ואז האברך דנן יתברר כסוחר מוצלח ביותר אשר ימשוך חזרה את הארבע מאות ועוד מיליון רווח נקי וכך לא יצטרך לגור בדירת הסליחה אלא בדירה גדולה המרחיבה דעתו של אדם ומרחיבה ארנקו של המשווק.

אז איפה הקצ'?

שעכשיו זה "אחרי שלוש שנים" ומתברר כי המחיר הכי גבוה שאפשר לקבל על הדירה הוא שלוש וחצי מיליון ואחרי ההוצאות מגיעים לשלוש מאתיים נטו ביד, מה שאומר שלפעמים עדיף לאותו אברך לעשות "ויברח" ולהותיר את הארבע מאות אצל החברה והמשווק ולחזור ליחידת הסליחה אבל וחפוי ראש, והפעם כשוכר...

זה פחות או יותר המסלול שאותו עוברות בחודשים אלו מאות משפחות מאנ"ש שכל מה שהם רצו זה לחתן את הילדים בכבוד וכעת הם מרוסקים לחלוטין וייקח להם שנים רבות אם בכלל כדי להתאושש מהתהום הכלכלית שהם הוכנסו אליה בידי משווק פלוני.

אך עשרת הקוראים כאן יודעים שעד כאן הייתה רק ההקדמה, כעת נתחיל עם הניתוח הכואב של הנתונים ואת הצד של לימוד זכות:

ובכן, קודם כל צריך לדעת שרבים מאוד הרוויחו בפריסיילים ותכניות דומות הרבה כסף, פגשתי ועודני פוגש כל יום אברכים צעירים ומבוגרים שהרוויחו סכומים אגדיים בשנים האחרונות כתוצאה מהפטנט הזה, לא ערכתי מחקר עומק אך מהתרשמותי המרוויחים רבים בהרבה על המפסידים וחבל שאת זה שומרים בסוד מאימת המצ'ינגים, הסיבה היחידה שמספרים לי על כך זה או כדי לשאול איך לעשות את הסיבוב הבא או כדי להתייעץ איך לצמצם את המסים העצומים (ברוך השם, כשיש מס סימן שיש שבח).

כל מי שקנה דירה בירושלים במחירי פריסייל של עשרים ומשהו אלף עשה את המיליון הזה, כך גם רבים שהשקיעו בחלק מהפרוייקטים בבן שמן וכך גם במקומות נוספים אשר המחירים עלו שם דרמטית ולקחו איתם את המשקיעים כלפי מעלה.

אז מה קרה בכל הפרוייקטים הכושלים?

שני דברים, הראשון שלא ידוע לי אם קרה זה הקפצת מחירים, מאוד ייתכן שמשווק מסוים יבוא לקבלן שיש לו כבר פריסייל ויגיד לו במקום למכור ב3.9 אביא לך קונים בארבע מיליון ואז מקבלים תרי זוזי: מאה אלף מהקבלן ועוד אחד מהלקוח, חד גדיא דזבין את אבא.

זה נורא לשמוע שיש דברים כאלו וטיפש מי שנופל לכך אך מי שיותר טיפש ממנו הוא מי שמאמין שאפשר למנוע דבר כזה באמצעות בירור אם המתווך אמין: גם המתווך האמין ביותר לא יעמוד בפני ניסיון של מאתיים אלף ₪ רק מלאך יוותר על זה ולא ניתנה תורת העסקים למלאכי השרת.

אך הדבר הזה לא מתקיים בדרך כלל משום שרוב הקונים יודעים לבדוק בערך את המחיר בסביבה ולא נופלים לבורות עמוקים, מה שכן קורה זה הדבר השני ועליו ברצוננו לדבר:

המחיר פשוט לא עלה, ולפעמים אפילו ירד.

כן רבייסיי, מחירי דירות לא רק עולים, לפעמים הם גם יורדים, כגון למשל בתקופת מלחמה.

עד מלחמת שמחת-נורא המחירים בנתניה למשל אכן השתוללו כי הצרפתים קנו שם בהמוניהם והוא הדין בצפת שהאמריקאים עטו עליה כי אצלם אין הבדל בין ירושלים לצפת, באמריקה זה מרחק סביר לנסיעה יומיומית לעבודה, אז מישהו משווק להם את זה כירושלים לעניים והם קנו וקנו והמחירים עלו ועלו והייתה היתכנות מסויימת לעלייה צפוייה.

ואז הגיע המלחמה ואין חוצניקים, ועוד מלחמה ועוד מבצע ושום דבר לא חזר לעצמו ואפשר לקלל את איראן (מגיע להם) ואת החמאס (עוד יותר מגיע) אך זה לא יעזור לעובדה הפשוטה שמחירי המגדלים שיועדו בעיקר לאוכלוסיות אלו צולל.

לא בהרבה, אך מספיקה ירידה של 8% כדי שכל העסק יהפוך להפסד.

זה נכון שמעצבן שהמשווק ניבא שהמחירים יעלו והם לא, אמנם אמרו חז"ל שנבואה ניתנה לשוטים אך האמונה כי יש למישהו נבואה ניתנה לשוטים גדולים עוד יותר... כל בר דעת העושה עסקים יודע שבכל הקשור לניבוי עתידות - המשווק ועטיפת המסטיק יודעים לנבא באותה מידה ומי שמסתמך על הבטחות אודות העתיד (כולל אלפי אברכים שנופלים היום בפריסייל של המחר שנקרא פינוי בינוי המבוסס על אותה נבואה כמעט) אין לו לבוא בטענות אלא על עצמו, לא המשווק נשך לשונרא.

מקווה שהצלחתי להסביר: לא כל עסקה כושלת היא נוכלות ולא כל ירידת מחירים היא עקיצה, בכל עסק ייתכן מאוד הפסד ומי שלא מוכן לכך שלא ייכנס לעולם ההשקעות.

אז להפסיק להשקיע בנדל"ן?

חלילה, כמה שיותר להשקיע בנדל"ן וכל המרבה הרי זה משובח – ואם ירצה השם ויהיה זמן נרחיב אולי בטור הבא על "מה כן" – אך רק עסקאות נטולות הימור על כל הקופה, כך שגם אם נגזר עליך להפסיד זה יהיה רק קצת ורק זמני.

ברור לי שכל הדברים האמורים כאן ברורים לכל אחד מעשרת הקוראים וסליחה שבזבזתי את זמנכם אך אם זה ירגיע אבא סוער אחד -שכועס בכל ליבו על המתווך שכאילו הפיל את החתן שלו - והיה זה שכרי.



גילוי נאות: לכותב אין ולא היה שום אינטרס כלכלי בשום פרוייקט של פריסל והוא אינו קשור היום לשום שיווק לא במישרין ולא בעקיפין, המידע מובא ללא כל אינטרס כלכלי אלא כצדקה ושירות לציבור, לשאלות ספציפיות ניתן לפנות למייל והתשובות שם חינם וללא אחריות.
סיכום אירועים: איראן בלהבות - מהמחאות ועד לסף עימות עולמי

הרקע וההתפרצות (סוף דצמבר 2025):

המחאות החלו ב-28 בדצמבר 2025 בטהראן, על רקע משבר כלכלי חריף וצניחה חדה בערך הריאל. מה שהחל כזעקת סוחרים ואזרחים על יוקר המחיה, הפך במהירות לגל הפגנות חסר תקדים ב-187 ערים הקורא להפלת המשטר.


הטבח והחשכת המידע (ינואר 2026):
  • דיכוי אלים: המשטר האיראני הגיב באכזריות יוצאת דופן. לפי נתוני ארגון זכויות האדם HRANA, נכון ל-23 בינואר, מספר ההרוגים המאומת עומד על למעלה מ-5,000 בני אדם, בהם 4,716 מפגינים ועשרות ילדים.
    יש דיווחים לא מאומתים מצד האופוזיציה האיראנית על מעל 60,000 הרוגים!

  • מעצרים המוניים: למעלה מ-26,500 בני אדם נעצרו, וקיים חשש כבד להוצאות להורג המוניות בבתי הכלא.

  • חסימת אינטרנט: החל מה-8 בינואר הוטל מצור דיגיטלי כמעט מוחלט על המדינה כדי למנוע זליגת תיעודים מהטבח.

המעורבות האמריקנית - "הארמדה של טראמפ":
הנשיא טראמפ, שחזר והזהיר את טהראן מפני המשך הטבח, הכריז ב-22 בינואר כי "ארמדה" אמריקנית (צי ספינות מלחמה, כולל נושאת המטוסים אברהם לינקולן) עושה את דרכה למפרץ הפרסי. טראמפ הבהיר כי ארה"ב בוחנת אפשרויות תקיפה ישירות נגד מטרות שלטוניות אם לא ייפסק הדיכוי. ולאחר הדלפות על ממדי הטבח, הכריז "העזרה בדרך".


הזווית הישראלית והאזורית:
  • כוננות שיא: ישראל נמצאת בדריכות עליונה מחשש שהסלמה אמריקנית תוביל לתגובה איראנית ישירה או באמצעות שלוחיה (פרוקסי).

  • איומי נתניהו: ראש הממשלה נתניהו הזהיר כי אם איראן תבצע "טעות" ותתקוף את ישראל, היא תפגוש עוצמה שטרם הכירה.

  • איומי טהראן: המשטר האיראני הודיע כי במקרה של תקיפה, בסיסים אמריקניים ויעדים בישראל יהיו "מטרות לגיטימיות".

באשכול זה נמשיך לעדכן סביב השעון בכל התפתחות, דיווחים מהשטח ופרשנויות ביטחוניות.
עודכן אדר תשפ"ד
ראשית, גופי הכשרות
ברוב אשכולות בנושא 'השקעות בשוק ההון' בפרוג, משתרבב עניין הכשרות.
למען הסדר באשכול זה נעלה עדכונים בנושא כשרות.
אני אשתדל לסכם ולתמצת ככל האפשר.

יש 4 גופי כשרות
  • בד"ץ העדה החרדית - על פי פסקי הרב יעקב בלוי זצ"ל שהיה בקיא גדול בתחום שוק ההון והוא שהביא את פסקיו ועל פי פסקים אלו נוהגים עד היום בגוף כשרות זה. היום הכשרות בראשות הרב שלמה זאב קרליבך.
  • גלאט הון - על פי פסקי רבי ניסים קרליץ והרב שמואל ואזנר. שסמכו ידיהם על הרב יעקב לנדו שמכיר את שוק ההון לעומקו. הרב משה שטרנבוך ראב"ד העדה החרדית הוא מרבני 'גלאט הון'.
  • תשואה כהלכה – הרב שמואל דוד גרוס, רב חסידי גור אשדוד ועוד רבנים מוכרים וידועים בכל שכבות הציבור החרדי.
  • כלכלה על פי ההלכה- הרב אריה דביר, על פי פסקי הרב יוסף שלום אלישיב.

היום בכל החברות יש מסלולים כשרים, שמאושרים לפחות ע"י אחת מהכשרויות.
בין החברות שנמצאת ברשותם תעודת כשרות אפשר למצוא את:
אלטשולר שחם, אינפיניטי, הפניקס, הראל, כלל, מגדל, מור, מיטב דש, מנורה.

רשימות קרנות כשרות:

הצטרפות לניוזלטר

איזה כיף שהצטרפתם לניוזלטר שלנו!

מעכשיו, תהיו הראשונים לקבל את כל העדכונים, החדשות, ההפתעות בלעדיות, והתכנים הכי חמים שלנו בפרוג!

לוח מודעות

הפרק היומי

הפרק היומי! כל ערב פרק תהילים חדש. הצטרפו אלינו לקריאת תהילים משותפת!


תהילים פרק כה

אלְדָוִד אֵלֶיךָ יי נַפְשִׁי אֶשָּׂא:באֱלֹהַי בְּךָ בָטַחְתִּי אַל אֵבוֹשָׁה אַל יַעַלְצוּ אֹיְבַי לִי:גגַּם כָּל קוֶֹיךָ לֹא יֵבֹשׁוּ יֵבֹשׁוּ הַבּוֹגְדִים רֵיקָם:דדְּרָכֶיךָ יי הוֹדִיעֵנִי אֹרְחוֹתֶיךָ לַמְּדֵנִי:ההַדְרִיכֵנִי בַאֲמִתֶּךָ וְלַמְּדֵנִי כִּי אַתָּה אֱלֹהֵי יִשְׁעִי אוֹתְךָ קִוִּיתִי כָּל הַיּוֹם:וזְכֹר רַחֲמֶיךָ יי וַחֲסָדֶיךָ כִּי מֵעוֹלָם הֵמָּה:זחַטֹּאות נְעוּרַי וּפְשָׁעַי אַל תִּזְכֹּר כְּחַסְדְּךָ זְכָר לִי אַתָּה לְמַעַן טוּבְךָ יי:חטוֹב וְיָשָׁר יי עַל כֵּן יוֹרֶה חַטָּאִים בַּדָּרֶךְ:טיַדְרֵךְ עֲנָוִים בַּמִּשְׁפָּט וִילַמֵּד עֲנָוִים דַּרְכּוֹ:יכָּל אָרְחוֹת יי חֶסֶד וֶאֱמֶת לְנֹצְרֵי בְרִיתוֹ וְעֵדֹתָיו:יאלְמַעַן שִׁמְךָ יי וְסָלַחְתָּ לַעֲוֹנִי כִּי רַב הוּא:יבמִי זֶה הָאִישׁ יְרֵא יי יוֹרֶנּוּ בְּדֶרֶךְ יִבְחָר:יגנַפְשׁוֹ בְּטוֹב תָּלִין וְזַרְעוֹ יִירַשׁ אָרֶץ:ידסוֹד יי לִירֵאָיו וּבְרִיתוֹ לְהוֹדִיעָם:טועֵינַי תָּמִיד אֶל יי כִּי הוּא יוֹצִיא מֵרֶשֶׁת רַגְלָי:טזפְּנֵה אֵלַי וְחָנֵּנִי כִּי יָחִיד וְעָנִי אָנִי:יזצָרוֹת לְבָבִי הִרְחִיבוּ מִמְּצוּקוֹתַי הוֹצִיאֵנִי:יחרְאֵה עָנְיִי וַעֲמָלִי וְשָׂא לְכָל חַטֹּאותָי:יטרְאֵה אוֹיְבַי כִּי רָבּוּ וְשִׂנְאַת חָמָס שְׂנֵאוּנִי:כשָׁמְרָה נַפְשִׁי וְהַצִּילֵנִי אַל אֵבוֹשׁ כִּי חָסִיתִי בָךְ:כאתֹּם וָיֹשֶׁר יִצְּרוּנִי כִּי קִוִּיתִיךָ:כבפְּדֵה אֱלֹהִים אֶת יִשְׂרָאֵל מִכֹּל צָרוֹתָיו:
נקרא  2  פעמים
למעלה